Art exhibitions, music and theathral shows, festivals, sport events and more. All in one place.
Art exhibitions, music and theathral shows, festivals, sport events and more. All in one place.
The project proposes a new strategy for creating biomimetic architectural structures based on the idea of adaptation to a dynamically changing environment and with the use of advanced machine learning and AI methods. The biomimetic architecture uses physical and virtual processes that are transformed and assembled into structures based on environmental properties and behaviour. The project investigates a living dynamic system as a complex set of natural and cultural sub-processes.
The masía (from the Latin mansus, means to remain) is a dispersed habitat system in the spanish southeast area at risk of disappearing and with it its autonomous and sustainable operation linked to territory and the identity of inhabitants. We rehabilitate a 17th century masía with decarbonization strategies, using local materials, modernizing the rammed earth local technique and involving artisans and people in a powerful circular economy project. An architecture that relinks human to nature.
A disused brownfield site, centrally located in the historic city of Karlovac, is envisioned as an urban-natural place of new productivity. The site is
transformed into a vibrant mixed-use neighborhood that functions as a self-sustainable system producing energy, food, knowledge – and new levels of urbanity for the surrounding areas. The existing, forest-like environment found on parts of the site is preserved and enhanced so the neighborhood also doubles as a calming, green oasis in the city.
Prossima Apertura opens 8600 sqm of public space after 20 years of inaccessibility and renovates 35000 sqm of an underused park in the periphery of Aprilia, a city 50 km south of Roma. The approach integrates interdisciplinarity, participation and innovative methods in public work, combining the physical redevelopment with the construction of a collective sense of togetherness. Architecture, psycho-social research, art and communication work together to actively involve citizens in the process.
Circle Centre aims to tackle the problem of overconsumption, which leads to degradation of environmental resources. By having a 'Library of goods' with items that we do not need everyday, we can start changing the idea of ownership. Here you can borrow items, instead of buying new ones, and thus reduce production resources and waste formation. As a part of this movement, we also host open educational events and hands-on workshops focused on sustainability and circularity
People need disconnection, well-being and sustainability. Meanwhile, our countryside is depopulated and abandoned, increasing the gap between rural and urban worlds. Sande is a village built around small Galician vineyards and which was known to be the happiest village in the area. We propose both a revival of these historic vines and a place for city dwellers seeking to resource. The aim is to ensure that rural activities in Galicia are socially, economically and environmentally sustainable
The 6x6 Block project focusses on the capacity of our constructions to configure atmospheres arisen from the moulding of the climate as an alternative to those that defy it, and leads us to imagine the housing of the present as a superstructure, a physical and climatic support, an open ecosystem ready to host both the already known ways of life and their still unsuspected variations.
FABER is a privately developed endeavour designed to inspire social and cultural wellbeing - one which connects local, regional and international stakeholders and actions, and that is focused on the power of creativity, innovation and the sustainable development of local communities.
FABER offers meeting and event spaces, contemporary workspaces, a prototyping&small production workshop, and a bistro - all in a refurbished building that is part of the local industrial legacy of Timișoara.
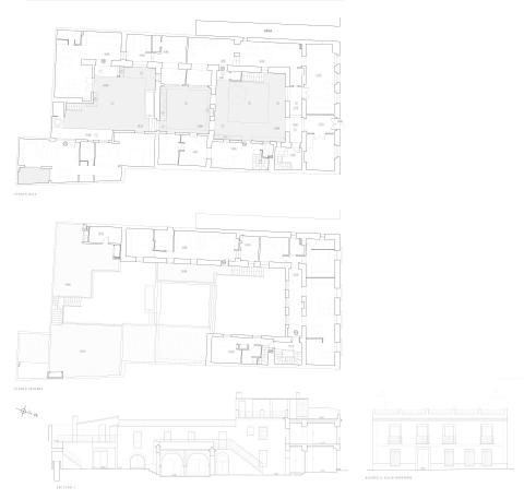
PAX is proposing an innovative system of governance that fosters a new a model of urban regeneration through social innovation in a heritage context. The rehabilitation of the patio-houses in Córdoba aims to restore the environmental values of the Mediterranean city and upgrade its historical characteristics in a contemporary way together with the citizenship: from its architectural value as a World Heritage site to its anthropological value as Intangible Heritage of Humanity (UNESCO 2012).