Liepaja has a rich cultural and historical heritage – lots of cultural monuments and pearls of architecture. Liepaja City Council approved financial support program for owners of cultural monuments in 2015. The aim of this program is to support and promote the preservation of cultural monuments in the public interest and to improve the quality of life for citizens in the city of Liepaja. At this moment 69 cultural monuments are financially supported, as far as possible restored.
NEB Prizes 2021: All Applications
Filter by
Applications (2025)
Showing results 231 to 240

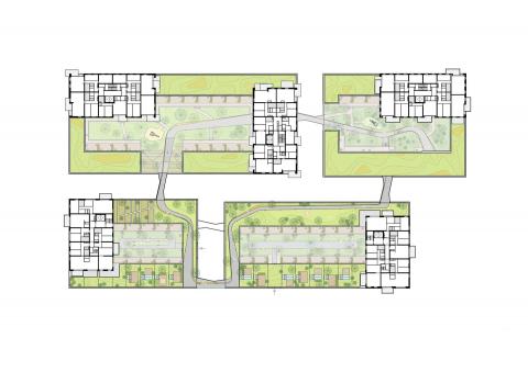
The Groene Kaap is a housing project on Katendrecht in the city of Rotterdam. This former industrial area is transforming into an urban living area. De Groene Kaap consists of four connected buildings with a robust exterior and a lush green inner world: the surprising interiors are interconnected by a walking route. This connection is relevant for the residents, it forges the separate buildings into a neighborhood. But also for the citizens: "meeting" becomes a central theme along the route.

Only 15% of Danish homeowners consult architects when renovating their home. As a result, up to 80% use incorrect methods and materials – reducing sustainability, limiting accessibility and compromising the aesthetic integrity of their projects.
Full Circle Renovations is a digital sustainability certification and communication platform that builds public awareness and confidence in sustainable residential renovations. It connects architects, homeowners and contractors to promote best practices

Valdisotto is experiencing severe problems related to increasing depopulation and the abandonment of buildings and pastures. My architectural project intervene with two specific strategies, capable of imagining scenarios of recovery and reactivation: the creation of a hiking path in the woods to encourage the rediscovery of the territory, and the creation of specific architectural projects to initiate and support new forms of development in line with the Alpine culture and local tradition.

"Dust Eater" is a sculpture by Kuba Bąkowski in the urban space. It combines remote areas of industrial engineering and post-futuristic sculpture with environmentally-oriented artistic practice. It is the result of turning an industrial device into a monumental work of art. It fulfills a futuristic postulate about the usefulness of art, retaining the function of a device and as a giant sculpture -cleaning the city air. It meets the requirements of modern times by shaping pro-ecological attitude.

OpenStructures is a design methodology for modular and cooperative construction. It facilitates circular material flows and simplifies repair and reuse. By anticipating and integrating future adjustments into the DNA of building components, it generates widely interchangeable parts and objects that can be adapted and repaired indefinitely. OpenStructures unfolds through an ongoing exploration by a community of authors that test and evaluate its potential in a variety of disciplines.

MNT Reform is a modular high-quality open hardware laptop — designed and assembled in Europe. Usability, security, and sustainability are our primary goals. A mechanical keyboard and an elaborate industrial design provide for professional ergonomics. MNT Reform supports the Right to Repair: Obsolete parts can be easily replaced without special tools. To reduce the attack surface, MNT Reform has no built-in recording devices. We believe in the Open Source community and encourage to contribute!

Homelessness is an increasing problem in Denmark. Reports show that the problem can be eliminated by 2030 with the right strategies. Therefore, I have developed a proposal for a permanent, aesthetic, sustainable, and proper solution for people without a home. Building on the Housing First strategy and with eye for a minimal budget, I have designed these high quality modular houses ready to be implement anywhere needed.

Be-coming Tree showcases live artists all over the world simultaneously engaging with local trees or woodlands. Observed on a shared Zoom screen, they offer a window on diverse ecosystems and myriad ways of engaging with the theme: Be-coming Tree. Audiences witness live actions, (theatre) performances, stillness, dance. Tickets include rainforest tree donations, making this entanglement of barefoot digital technology and nature a collective eco-art action to support reforestation and solidarity.

Milan is one of the most desirable places for young people who get inspired by Italian culture and want to develop their skills especially in the Arts fields
Therefore the theme of the project is creating a design factory – a place where workshops in Fashion, Design and Photography are organized, as well as contemporary and permanent exhibitions take place which give the opportunity to young talents to express their idea of art.