Skip to main content
European Union logo
New European Bauhaus Prizes

Kashane- Indigenous Emergency Shelter

Basic information

Project Title

Kashane- Indigenous Emergency Shelter

Full project title

Design and construction of creative and local emergency shelter

Category

Modular, adaptable and mobile living solutions

Project Description

emergency relief is evident in emergency situations following a natural disaster, the necessity of creating an emergency settlement to help people, hence the design of a standard local emergency shelter. The main objective of this idea is to design a scalable and flexible structure to provide residential shelter and emergency applications after a disaster (management, therapeutic, etc.) that are compact, lightweightext, ensible, and easy to deploy, thus reducing deployment time visibly.

Project Region

Tehran, Italy

EU Programme or fund

No

Description of the project

Summary

 

Throughout the world and in Iran, destructive earthquakes are common, in addition to the lives destroyed, separate thousands of people, and destroy homes. in this context, an urgent need for the affected community is completely tangible, such as management, health, law enforcement, education, and so on. other hands, past experiences show that the supply of these uses is rapid, standard, and efficient. since the provision of these necessary applications is an effective step in order to provide disaster relief to survivors and disaster management, it is necessary to investigate and propose a plan to provide shelter to these

for this purpose, in this thesis, it has been tried, while reviewing the literature related to research, recognition of rapid supply of portable, light and robust shelter techniques in native areas, as well as day - to - day technologies used throughout the world. also by studying the different experiences of the world and post-accident actions in Iran and then analyzing data derived from these studies, the standard emergency shelter design indices are derived to establish essential public utilities after a disaster. In each of these studies, options such as speed, deployment time, standardization of the designed space, and its fitness with

Key objectives for sustainability

The main objective of this idea is to design a scalable and flexible structure to provide residential shelter and emergency applications after a disaster (management, therapeutic, law enforcement, education, etc.) that are compact, lightweight, extensible, and easy to deploy, thus reducing deployment time visibly. in this study, we tried to use the features of the structures and technique and local materials, and by making these indexes and approaches to global standards, optimum design parameters were extracted to be used in an efficient and efficient design to obtain

Key objectives for aesthetics and quality

This structure can be easily transported and deployed for relief after the crash. After the expiration of the period of emergency, too, it has been removed or used as another user like a warehouse. This flexibility provides opportunities for setting up structures in different climatic conditions. for this purpose, various options are provided to provide lighting, insulation, and ventilation. Flexible architecture increases the life cycle of a structure with the ability to recycle, move, and re-deliver after the first use in post-disaster relief. Therefore, with this practice, economic and social stability can be

Key objectives for inclusion

In October 2017, an earthquake measuring 7.3 on the Richter scale occurred in Kermanshah; in light of the onset of the cold season, the sudden drop in atmospheric temperature, at the very beginning, the tent distribution was carried out among the people for emergency settlement. the hardness of living in the tent due to low temperatures in mountainous regions and the lack of suitable moisture insulation improves the sensitivity of building a shelter in the temporary housing phase, with regard to the scientific and scientific reserves of the people, safe, high-performance, inexpensive, and inexpensive too.

In the first week after the disaster, groups of university friends went to the area and inspected the traditional houses of the people, and started to build the Capro Coleman that was used in the past, and by strengthening it and making structural changes, they started to strengthen and They trained the local people, which to this day has received very positive feedback from rural and even urban people. The construction of canopies was associated with the production and distribution of canopies in the region, but due to the time-consuming production of canopies for all affected people, the construction and production of a finished structure similar to the canopy but localized such as canopies and Coleman and public participation It seemed very necessary.

A tour of the quake-stricken areas hit the quake-stricken areas with an objective of knowing more about the lives of the local people, and the results of the trip were studied as a "home" for different climates with small changes. For the complimentary examination, with the approval and use of their operational details, they were constructed from 11 December to the end of the same month at Shahid Beheshti University.

Innovative character

the need to use these potentials in the design process is considered by the presence in the affected areas and examining the available capacities and observing other shelters that were building with chalk due to local materials (reed).

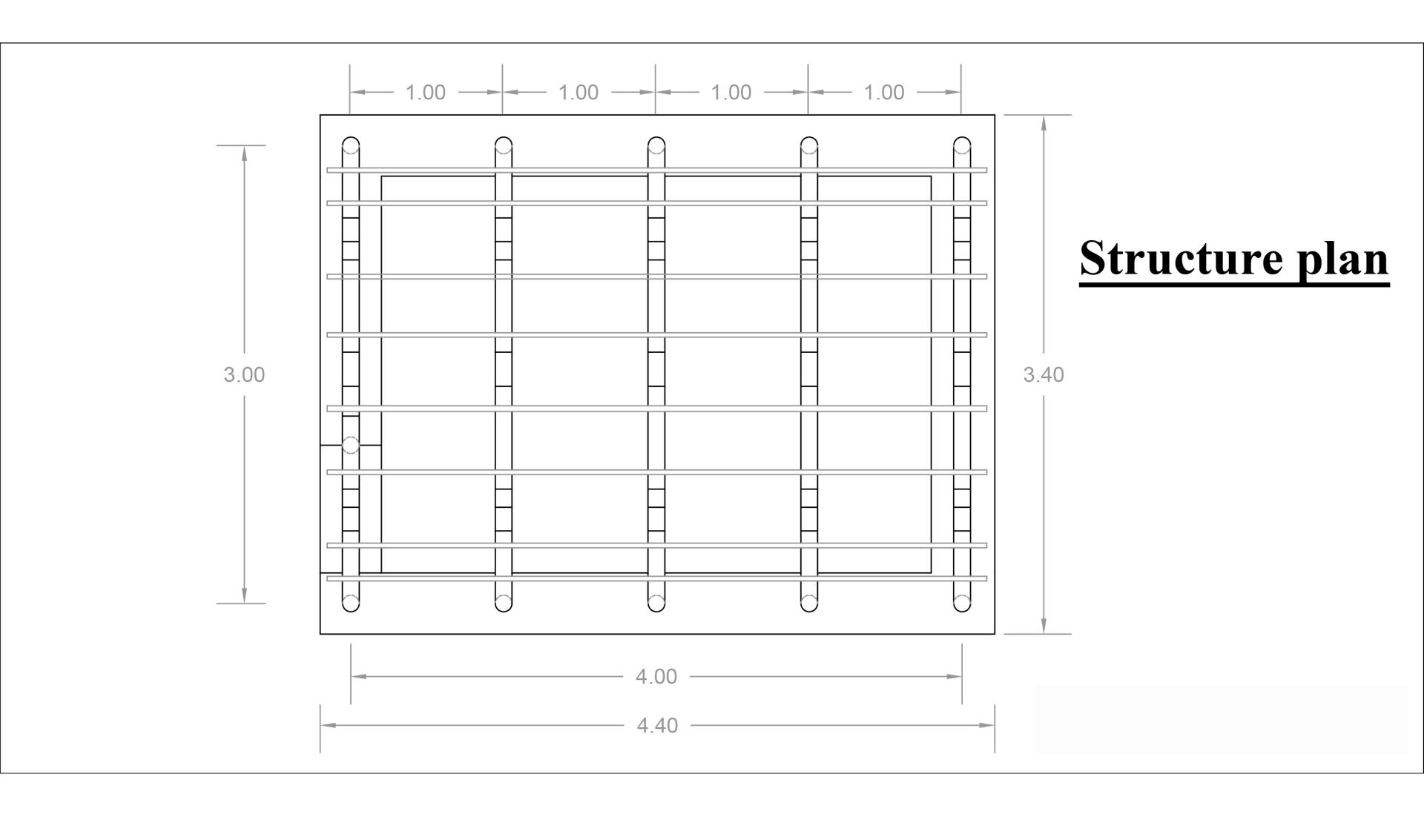
According to the concept, the design of "indigenous rural architecture" and the discussion of cheap, local, light, and portable materials was considered. in the continuation of the plica tube for the structure of the structure and the straw for the bearing structure, we found experiments designed and investigated samples designed around the world as well as the characteristics of the plica tube and the performance of these materials, which is not used in a project as a bearing structure and for the first time it has been used as the main structure of a shelter. in addition to the use of plica tube as a structure, to cement the brittle material as the main structure is a shelter that can be used in addition to structural, mechanical, and electrical facilities.

Indigenous people with specialist monitoring can also set up the main structure at a time less than 3 h, which is very unique in its kind.

Advantages:

+availability in all regions of the world

+Ability to adapt to different climates (Indigenous materials for cover)

+Having a light structure

+Proper cost (given the creation of the same internal space conex)

+Simply put up and speed up the setup

+Lack of skilled training and training

+Ability to expand the structure (modular)

+Create a space with standard dimensions and look like room space

+Reliability and durability of the structure and connection to permanent settlement

+reconstraction the structure by the locals in the form of constant use

+resistant to side forces (wind, storm …)

+Fire-resistant fire because of the use of clay

+Ability to create public participation in structure from start to end

+The ability to build this structure on any type of land without needing special infrastructure

Gallery