Skip to main content
European Union logo
New European Bauhaus Prizes

Constructed Ecosystems

Basic information

Project Title

Constructed Ecosystems

Full project title

A Walk Through Constructed Ecosystems

Category

Reinvented places to meet and share

Project Description

The project is based on the perspective of viewing the urban as a constructed ecosystem. Taking this perspective, every form of life that contributes to the preservation of a livable and biodiverse environment comes to the fore and is taken into account in the process of imagining, developing and realizing a just and ecological society.

Project Region

Berlin, Germany

EU Programme or fund

No

Description of the project

Summary

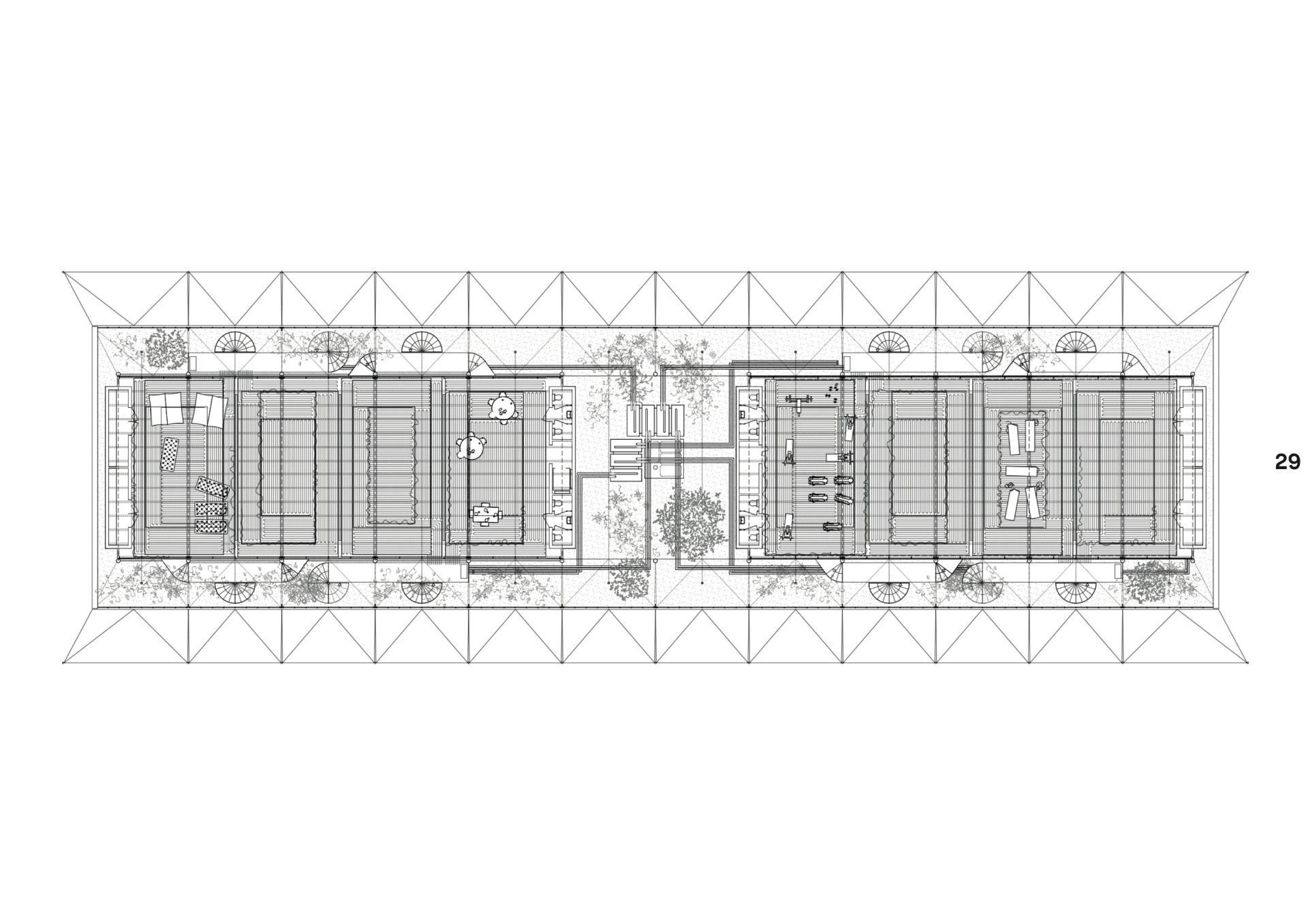
A new form of continuous spatial production, energy supply, food production, residing, working and living, research and renaturation will be proposed for a formerly industrially used site in Berlin Rummelsburg with the aim of initiating the development of a social and ecological life practice. According to the vegetation, different areas are defined, which describe the future relationship between man and nature and an appropriate treatment of soil and vegetation. Areas of renaturation where man takes deliberate targeted measures to support nature in the process of wildness, areas of cultivated nature, research beds that analyze and evaluate the cultivation of plants under different conditions, and areas where contaminated soils are detoxified and renaturated through remediation measures. Existing tanks, originally used as water reservoirs, are being converted into the site's energy center. Through solar cells, biogas plants operated in cooperation with the municipal waste disposal, a combined heat and power plant and water tanks, a decentralized energy supply model is proposed that will make the surrounding area mostly independent of large energy suppliers. The Bioshelter, a residential building for about 200 people, proposes a productive, climate-active form of housing in which human and natural habitats overlap. The algae farm interconnects production cycles of aquaponics, algae production, and a server farm in a way that allows for resource-efficient year-round production. The Movement House transforms an existing industrial building into an infrastructure that stimulates and enables formal and informal movement among residents. The research station collects data on the state of the ecosystem, analyzes, evaluates, experiments, tries and maintains. The residents of the area become gardeners of their shared livelihood - people are involved in multiple ways in the processes that contribute to the preservation of the constructed ecosystem. 

Key objectives for sustainability

A sustainable perspective on the use of resources and the natural basis of life permeates all areas of life in the constructed ecosystem. Food and energy production is organized in a decentralized manner, the efficient use of resources is made possible by interconnecting different production and energy cycles, people become gardeners who actively participate in the care and regeneration of their environment, interspecific coexistence and symbiotic life forms are strengthened for the benefit of all. Productive resources, knowledge and cultural techniques are applied to maintain a living, biodiverse ecosystem. In this sense, sustainability is a multi-layered process that pursues the goal of keeping room for maneuver open.

In this process all spaces and processes on site, that generate an interaction with one another are also linked to nature. We envision a new form of community that is self-evolving through decentralized energy cycles, novel interconnections of infrastructures, and self-contained resource cycles. These shapes of community form around the learning process and eating algae in the production hall, in collaboration with the researchers for soil quality by the garden, in the swimming pool that only gets heated by the energy that is available. The entanglement of energy and resource flows with our communal everyday life strengthens our attention for both.

Key objectives for aesthetics and quality

The complexity of the constructed ecosystem can be experienced. Human, natural and technological movements and processes, constructed and evolved entities create a shared landscape that can be experienced both pragmatically and sensually. The inhabitants and users of the place maintain an active relationship with it. Aesthetics, then, includes the involvement of ecosystem actors and means the subjective and changing perception of all social, ecological, and economic interactions of humans with their surroundings. In contrast to the passive consumption of aesthetic images and styles, aesthetics is for us a process of becoming aware of multiple perceptions. We design with an awareness of the constructedness of the ecosystems that surround us, which means that we do not disguise its components and its functionality. The technical and natural components of the ecosystem itself become space-forming and reveal their peculiar aesthetics.

To avoid a catalogue of defined aesthetical criteria, the focus of the project lies in the democratic inclusion of all. In the mostly vague situations on the plot lies an adaptable potential for all actors. There are spaces in between, like the wintergardens of the bioshelter or the circulation space of the Movement House, of different sizes, allowing for changing and establishing social and spatial structures of learning and communication to form its surroundings. They’re all part of a public process and can’t be defined by an individual. In addition to the inclusion of all stakeholders into the process of evaluation, shaping and designing of the environment, the project proposes a new semantic recodification of elements. By communicating our thoughts through design, we are able to restructure traditional elements and aesthetics of living, producing and working.

Key objectives for inclusion

In order to enable a society that behaves inclusively also towards non-human forms of life, a tolerant and respectful coexistence is needed - spaces of existence, ecological niches and social spheres must be respected. To achieve such inclusion, a socially just society is the precondition. Our project aims to enable people's involvement, to promote their participation in the production of goods, food and space, to decentralize responsibility in order to shape an attentive and conscious approach to the living environment.

The integration of human life into natural energy and metabolic cycles not only dissolves the separation of different habitats and life forms, and the thermal distinction between inside and outside, but also works to eliminate social segregation of people from different social groups and classes.

To include all human and non-human actors, all ground floors of the built plot are publicly accessible. in all proposed buildings the boundary between public and private blurs. Making space for a communicative way of public sphere. It lies an inclusive potential in the interaction, that for example the production hall implies. There are multiple points on which you can link to the production processes. To interact or even only watch is accessible for all and their products are sold nearby. In the Movement House the former sealed concrete floor is being sawn open to use the plants in a thermal separating layer to activate the space for all forms of life, while minimizing the need of human design of the environment.

Innovative character

In order to face the enormous challenges of todays socio-economic and ecological crisis, without knowing how future societies might look like, we believe in the need for a democratic, inclusive and open-ended process of experimentation, evaluation and discarding. In that sense we consider innovation to be a collaborative approach of negotiating our future society. The understanding of innovation can’t be reduced to a technological advance, to optimised products that are passively consumed, but demands the cooperation, the exchange of knowledge and shared experiences of people in their everyday life.

Therefore innovation exceeds being a permanent and inevitable invention of something new, but rather a process of critical re-evaluation of proven practices, which are put into different contexts to gain other perspectives.

So as to initiate the process of collective innovation our project radically expands the circle of actants being involved in it. The understanding of the city as an ecosystem goes hand in hand with the integration of all forms of life and moreover with the strong connection of technological developments, cultural processes, the collective practice of gaining experience and the distribution and transfer of knowledge.

With this idea of innovation new forms of exchange can shape as formal and informal. The thermal layers in between , like the circulation in the Movement House or the greenhouses in the bioshelter, change in their seasonal exposition and become biophilic spaces in between. In the bioshelter newly implemented forms of cohabitation serve for a better understanding of non human actors and their effects. In the Movement House we see the thermal heat pump as the technology combined with its volatile usage becomes the nucleus of new public life. At the station public life is bound to an understanding of other life forms and their communication. A new bio- and socio diversity is being acquired through multiple processes of gardening.

Gallery