Skip to main content
European Union logo
New European Bauhaus Prizes

Constructed Ecosystems

Basic information

Project Title

Constructed Ecosystems

Full project title

A Walk Through Constructed Ecosystems

Category

Regenerated urban and rural spaces

Project Description

The project is based on the perspective of viewing the urban as a constructed ecosystem. Taking this perspective, every form of life that contributes to the preservation of a livable and biodiverse environment comes to the fore and is taken into account in the process of imagining, developing and realizing a just and ecological society.

Project Region

Berlin, Germany

EU Programme or fund

No

Description of the project

Summary

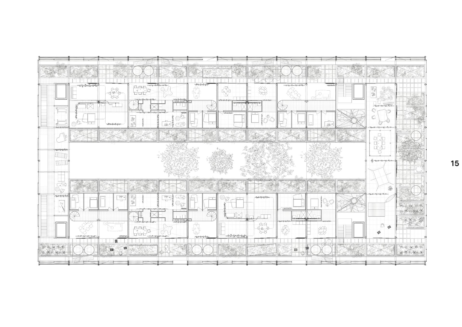
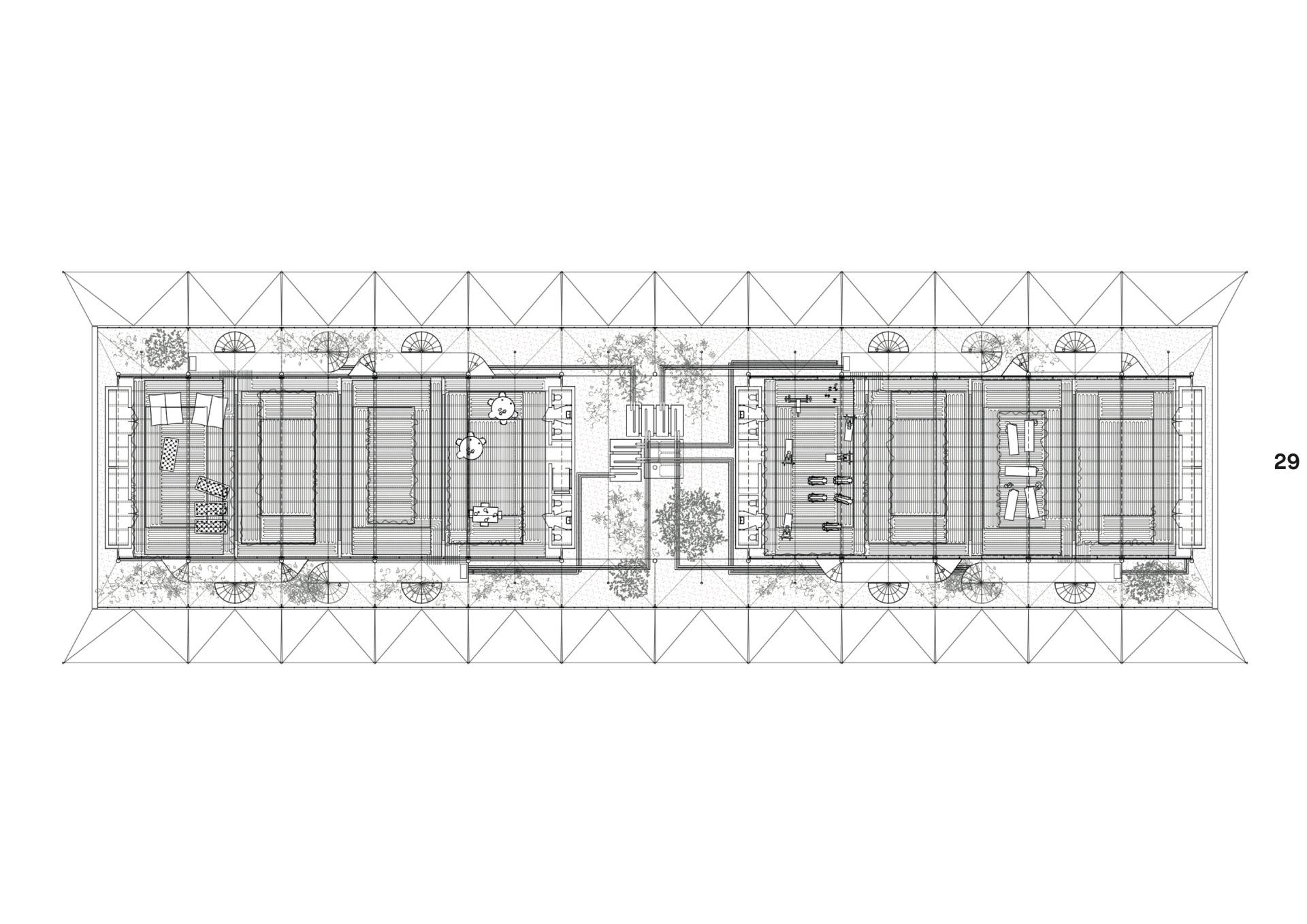
A new form of continuous spatial production, energy supply, food production, residing, working and living, research and renaturation will be proposed for a formerly industrially used site in Berlin Rummelsburg with the aim of initiating the development of a social and ecological life practice. According to the vegetation, different areas are defined, which describe the future relationship between man and nature and an appropriate treatment of soil and vegetation. Areas of renaturation where man takes deliberate targeted measures to support nature in the process of wildness, areas of cultivated nature, research beds that analyze and evaluate the cultivation of plants under different conditions, and areas where contaminated soils are detoxified and renaturated through remediation measures. Existing tanks, originally used as water reservoirs, are being converted into the site's energy center. Through solar cells, biogas plants operated in cooperation with the municipal waste disposal, a combined heat and power plant and water tanks, a decentralized energy supply model is proposed that will make the surrounding area mostly independent of large energy suppliers. The Bioshelter, a residential building for about 200 people, proposes a productive, climate-active form of housing in which human and natural habitats overlap. The algae farm interconnects production cycles of aquaponics, algae production, and a server farm in a way that allows for resource-efficient year-round production. The Movement House transforms an existing industrial building into an infrastructure that stimulates and enables formal and informal movement among residents. The research station collects data on the state of the ecosystem, analyzes, evaluates, experiments, tries and maintains. The residents of the area become gardeners of their shared livelihood - people are involved in multiple ways in the processes that contribute to the preservation of the constructed ecosystem.

Key objectives for sustainability

A sustainable perspective on the use of resources and the natural basis of life permeates all areas of life in the constructed ecosystem. Food and energy production is organized in a decentralized manner, the efficient use of resources is made possible by interconnecting different production and energy cycles, people become gardeners who actively participate in the care and regeneration of their environment, interspecific coexistence and symbiotic life forms are strengthened for the benefit of all. Productive resources, knowledge and cultural techniques are applied to maintain a living, biodiverse ecosystem. In this sense, sustainability is a multi-layered process that pursues the goal of keeping room for maneuver open.

We understand every resource found on site as valuable. Our proposal uses both the built "grey energy" and the existing biomass as "green energy". For us, sustainability also means adding only one chapter to the regenerative development of the site. The new structures we have designed are so generic that they can be repurposed and made available for a reinterpretation of the site.

The silos found on the banks of the Spree will be upgraded and converted into water reservoirs or biogas plants in which municipal biowaste will be recycled. The existing hall typologies will be further developed into a research building and a public movement house, and will each serve as heat-storing building masses in the newly planned lightweight structures. Living vegetation will be supported in its growth to strengthen the climatic self-regulation of the landscape and be resilient to climate changes.

In order to deal with the high pollutant loads in the soils at certain points, soil remediation measures will be carried out, which will be monitored by the scientists in the laboratories of the Houses of Research.

Key objectives for aesthetics and quality

The complexity of the constructed ecosystem can be experienced. Human, natural and technological movements and processes, constructed and evolved entities create a shared landscape that can be experienced both pragmatically and sensually. The inhabitants and users of the place maintain an active relationship with it. Aesthetics, then, includes the involvement of ecosystem actors and means the subjective and changing perception of all social, ecological, and economic interactions of humans with their surroundings. In contrast to the passive consumption of aesthetic images and styles, aesthetics is for us a process of becoming aware of multiple perceptions. We design with an awareness of the constructedness of the ecosystems that surround us, which means that we do not disguise its components and its functionality. The technical and natural components of the ecosystem itself become space-forming and reveal their peculiar aesthetics.

The term nature is derived from the Latin nasci "to come into being, to be born". With our proposal, we bring the processual character of nature to the fore. The site is in a transformative process in which nature appropriates and reshapes the built environment. The transience of human societies, conflicts, and dreams sharpens our understanding of the present. It also makes clear that we cannot conceive of ourselves as independent of nature, and that as humanity we must live and work with the ecosystems in which we exist in order to survive ourselves.

We are not proposing a new romanticism, but a sensitive approach to time, to processes, to becoming and passing, in that we do not want to preserve passing as a figurative state, nor a place that only captures a present state drawn from a human perspective. The perceptible mutability of a place enables both the individual and society to have a realistic, mature understanding of themselves in relation to the world. We understand such a self-understanding as the basis for responsible action.

Key objectives for inclusion

In order to face the enormous challenges of todays socio-economic and ecological crisis, without knowing how future societies might look like, we believe in the need for a democratic, inclusive and open-ended process of experimentation, evaluation and discarding. In that sense we consider innovation to be a collaborative approach of negotiating our future society. The understanding of innovation can’t be reduced to a technological advance, to optimised products that are passively consumed, but demands the cooperation, the exchange of knowledge and shared experiences of people in their everyday life.
Therefore innovation exceeds being a permanent and inevitable invention of something new, but rather a process of critical re-evaluation of proven practices, which are put into different contexts to gain other perspectives.
So as to initiate the process of collective innovation our project radically expands the circle of actants being involved in it. The understanding of the city as an ecosystem goes hand in hand with the integration of all forms of life and moreover with the strong connection of technological developments, cultural processes, the collective practice of gaining experience and the distribution and transfer of knowledge.

Not only has the place been and continues to be appropriated by people, but also, especially after its intensive industrial use, a variety of animals, plants, and fungi have settled that contribute to its regeneration. Including these actors in the transformation processes is crucial for the construction of a living ecosystem. The collective and interspecific appropriation of space contains great inclusive potential, also because, in a social sense, it raises awareness of the contribution that individual actors make and can make to the preservation of the shared basis of life.

Innovative character

In order to face the enormous challenges of todays socio-economic and ecological crisis, without knowing how future societies might look like, we believe in the need for a democratic, inclusive and open-ended process of experimentation, evaluation and discarding. In that sense we consider innovation to be a collaborative approach of negotiating our future society. The understanding of innovation can’t be reduced to a technological advance, to optimised products that are passively consumed, but demands the cooperation, the exchange of knowledge and shared experiences of people in their everyday life.

Therefore innovation exceeds being a permanent and inevitable invention of something new, but rather a process of critical re-evaluation of proven practices, which are put into different contexts to gain other perspectives.

So as to initiate the process of collective innovation our project radically expands the circle of actants being involved in it. The understanding of the city as an ecosystem goes hand in hand with the integration of all forms of life and moreover with the strong connection of technological developments, cultural processes, the collective practice of gaining experience and the distribution and transfer of knowledge.

A network of measuring stations collects data on the material exchange of the constructed ecosystem and allows a detailed scientific understanding of the regeneration process. The collected data is shared with the international research community and fed into a network that allows a comprehensive understanding of different ecosystems on our planet. Intensive microbiological research can be conducted in the laboratories. The landscaping practice tests different plant communities with the aim of constructing resilient habitats. To this end, experimental gardens are established, shade areas are created using climbing plants, niches for insects are created, and soil regeneration measures are tested.

Gallery