Skip to main content
European Union logo
New European Bauhaus Prizes

Constructed Ecosystems

Basic information

Project Title

Constructed Ecosystems

Full project title

A Walk Through Constructed Ecosystems

Category

Buildings renovated in a spirit of circularity

Project Description

The project is based on the perspective of viewing the urban as a constructed ecosystem. Taking this perspective, every form of life that contributes to the preservation of a livable and biodiverse environment comes to the fore and is taken into account in the process of imagining, developing and realizing a just and ecological society.

Project Region

Berlin, Germany

EU Programme or fund

No

Description of the project

Summary

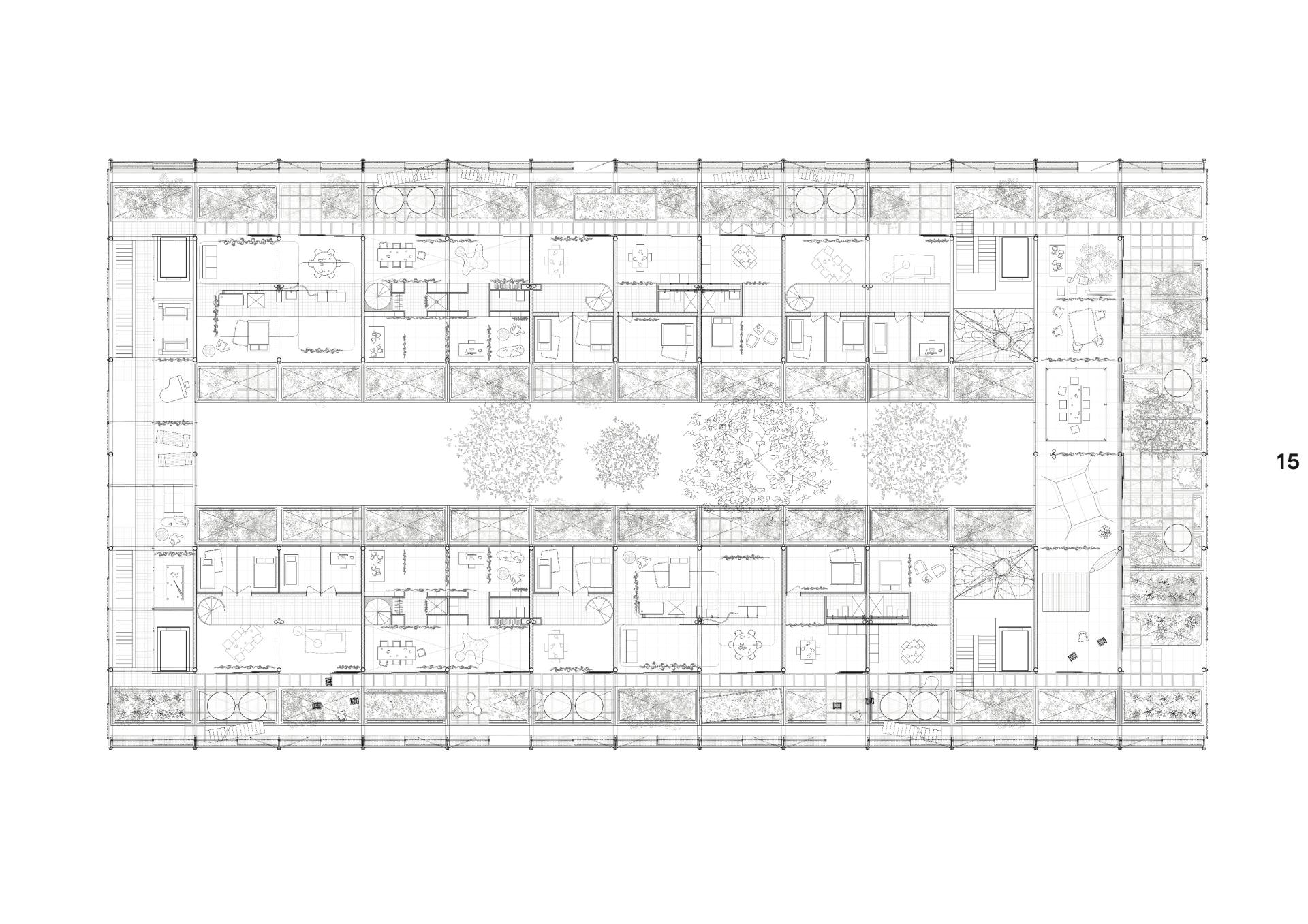
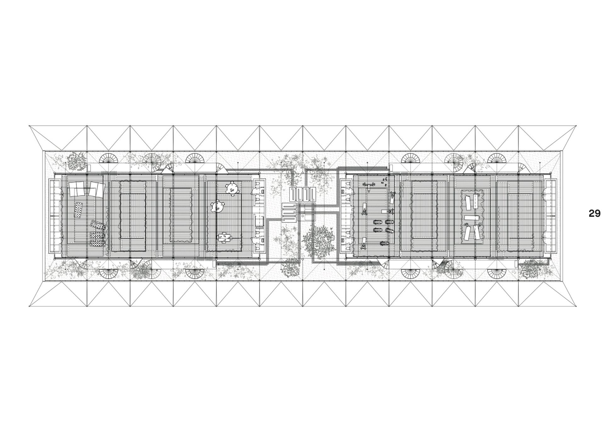
A new form of continuous spatial production, energy supply, food production, residing, working and living, research and renaturation will be proposed for a formerly industrially used site in Berlin Rummelsburg with the aim of initiating the development of a social and ecological life practice. According to the vegetation, different areas are defined, which describe the future relationship between man and nature and an appropriate treatment of soil and vegetation. Areas of renaturation where man takes deliberate targeted measures to support nature in the process of wildness, areas of cultivated nature, research beds that analyze and evaluate the cultivation of plants under different conditions, and areas where contaminated soils are detoxified and renaturated through remediation measures. Existing tanks, originally used as water reservoirs, are being converted into the site's energy center. Through solar cells, biogas plants operated in cooperation with the municipal waste disposal, a combined heat and power plant and water tanks, a decentralized energy supply model is proposed that will make the surrounding area mostly independent of large energy suppliers. The Bioshelter, a residential building for about 200 people, proposes a productive, climate-active form of housing in which human and natural habitats overlap. The algae farm interconnects production cycles of aquaponics, algae production, and a server farm in a way that allows for resource-efficient year-round production. The Movement House transforms an existing industrial building into an infrastructure that stimulates and enables formal and informal movement among residents. The research station collects data on the state of the ecosystem, analyzes, evaluates, experiments, tries and maintains. The residents of the area become gardeners of their shared livelihood - people are involved in multiple ways in the processes that contribute to the preservation of the constructed ecosystem. 

Key objectives for sustainability

A sustainable perspective on the use of resources and the natural basis of life permeates all areas of life in the constructed ecosystem. Food and energy production is organized in a decentralized manner, the efficient use of resources is made possible by interconnecting different production and energy cycles, people become gardeners who actively participate in the care and regeneration of their environment, interspecific coexistence and symbiotic life forms are strengthened for the benefit of all. Productive resources, knowledge and cultural techniques are applied to maintain a living, biodiverse ecosystem. In this sense, sustainability is a multi-layered process that pursues the goal of keeping room for maneuver open.

The collected rainwater serves as water storage of the whole ecosystem and can be distributed as utility water. Biomass and fecal matter from the area are fed into the biogas plant through vacuum lines. The biogas can be fed into the municipal grid in a processed form or converted into electricity by the combined heat and power plant. Urine is flushed into the denitrification reactor in the production hall and then cleaned of other harmful substances in an activated carbon filter. The liquid product can be used as plant fertilizer.

Key objectives for aesthetics and quality

The complexity of the constructed ecosystem can be experienced. Human, natural and technological movements and processes, constructed and evolved entities create a shared landscape that can be experienced both pragmatically and sensually. The inhabitants and users of the place maintain an active relationship with it. Aesthetics, then, includes the involvement of ecosystem actors and means the subjective and changing perception of all social, ecological, and economic interactions of humans with their surroundings. In contrast to the passive consumption of aesthetic images and styles, aesthetics is for us a process of becoming aware of multiple perceptions. We design with an awareness of the constructedness of the ecosystems that surround us, which means that we do not disguise its components and its functionality. The technical and natural components of the ecosystem itself become space-forming and reveal their peculiar aesthetics.

Being an involved active member in a system of interconnected processes also means sharpening our perception from a different perspective. The project with its different places and functions changes over time, during the seasons and through constant use. It also changes the aesthetic experiences of its inhabitants. Being involved in the circular economy means being less alienated from the immediate environment. Processes are visible and can be understood more easily and directly. We understand the metal pipes that dance through the dense apple orchard, we see the beds of the constructed wetland, and perceive the garbage truck that transports our energy sources in different ways.

Key objectives for inclusion

In order to enable a society that behaves inclusively also towards non-human forms of life, a tolerant and respectful coexistence is needed - spaces of existence, ecological niches and social spheres must be respected. To achieve such inclusion, a socially just society is the precondition. Our project aims to enable people's involvement, to promote their participation in the production of goods, food and space, to decentralize responsibility in order to shape an attentive and conscious approach to the living environment.

The integration of human life into natural energy and metabolic cycles not only dissolves the separation of different habitats and life forms, and the thermal distinction between inside and outside, but also works to eliminate social segregation of people from different social groups and classes.

In the production hall lies a huge potential in the combination of circular processes. The idea that all - human and non-human - actors and their influence on each other is made visible, leads to a better understanding of each others condition. In the circular economy, there is no place for waste. Every life form have their place, as there is mutual benefit from each other in natural metabolic cycles.

Innovative character

In order to face the enormous challenges of todays socio-economic and ecological crisis, without knowing how future societies might look like, we believe in the need for a democratic, inclusive and open-ended process of experimentation, evaluation and discarding. In that sense we consider innovation to be a collaborative approach of negotiating our future society. The understanding of  innovation can’t be reduced to a technological advance, to optimised products that are passively consumed, but demands the cooperation, the exchange of knowledge and shared experiences of people in their everyday life.

Therefore innovation exceeds being a permanent and inevitable invention of something new, but rather a process of critical re-evaluation of proven practices, which are put into different contexts to gain other perspectives.

So as to initiate the process of collective innovation our project radically expands the circle of actants being involved in it. The understanding of the city as an ecosystem goes hand in hand with the integration of all forms of life and moreover with the strong connection of technological developments, cultural processes, the collective practice of gaining experience and the distribution and transfer of knowledge.

The production hall links cycles of aquaponics, hydroponics, and algae culture, which benefit from the heat of computing servers. Production processes are interconnected in such a way that external resources can be reduced to a minimum. By linking producers, consumers, and destructors, a sustainable, regenerative, and largely independent cycle is created. The food produced, such as fish, algae, vegetables and salads, is processed and consumed directly in the hall. Urine collected in the toilets is decomposed on site in a filter system to form phosphate and nitrate, which in turn provides nutrients and fertilizer for the plants.

 

Gallery