Skip to main content
European Union logo
New European Bauhaus Prizes

PAX Strategy

Basic information

Project Title

PAX Strategy

Full project title

PAX-Patios de la Axerquía: an Heritage Community for Urban Regeneration and Social Innovation

Category

Reinvented places to meet and share

Project Description

PAX is proposing an innovative system of governance that fosters a new a model of urban regeneration through social innovation in a heritage context. The rehabilitation of the patio-houses in Córdoba aims to restore the environmental values of the Mediterranean city and upgrade its historical characteristics in a contemporary way together with the citizenship: from its architectural value as a World Heritage site to its anthropological value as Intangible Heritage of Humanity (UNESCO 2012).

Project Region

Córdoba, Spain

EU Programme or fund

No

Description of the project

Summary

Following a decades-long real estate bubble involving a culture of indiscriminate ownership and occupation of land, PAX—Patios de la Axerquía is proposing an innovative system of governance in the city of Córdoba in Spain that fosters a new urban model consistent with the aims of the New Urban Agenda and a Smart, Sustainable and Inclusive City: from a culture of speculation to one of rehabilitation. A system of multilevel co-management and social economy provides the basis for the acquisition and cooperative use of empty houses as a model of urban regeneration through social innovation in a heritage context. The rehabilitation of the patio-houses in Axerquía, which have been threatened by gentrification, aims to restore the environmental values of the Mediterranean city and upgrade its historical characteristics in a contemporary way together with the citizenship: from its architectural value as a World Heritage site to its anthropological value as Intangible Heritage of Humanity, as recognised by UNESCO in 2012. The interaction between innovative mechanisms of sustainable urban development opens up a pathway of virtuous policies for the densification of the existing city by the local population, generation of microemployment, and support for collective projects that incorporate refugees and migrants in a system of solidarity. Updating the urban, environmental, social, and economic values of the traditional city is a step toward understanding the Mediterranean city as an undeniable reminder of our past and, at the same time, providing an essential tool for the future development of a smart, sustainable, and inclusive Europe.

Key objectives for sustainability

PAX is looking after the urban ecology through the re-use and densification of the historic city, strengthening of passive measures for traditional architecture and the patio-houses as a green urban system. In the current environment of increasing temperatures, a problem that is accentuated in urban Mediterranean areas, the aim is to create an efficient ecosystem in which mechanical refrigeration is minimised whilst providing increased comfort in both houses and public spaces thanks to knowledge and current technological resources.

To ensure that Córdoba becomes a smart, sustainable, and inclusive city, PAX—Patios de la Axerquía is promoting an integrated project aimed at reactivating the sustainability potential of the centre, thus avoiding tourism-focused gentrification. PAX looks forward to implementing a different productive and cultural model, by multilevel co-management among the citizens.

The most sustainable building is the one that which already exists, and the most sustainable city is one that does not occupy more territory, regenerates itself, and embraces its heritage, environmental, and social values as Mediterranean traditions. The presence in the historic city of many abandoned traditional houses, such as the casas-patio, requires innovative actions that ensure the reactivation of both the architectonic heritage and the intangible heritage by promoting co-habitation in neighbourly homes. The casas-patio is a courtyard house, either single-family or multi-family, as in the casa de vecino (neighbourhood house), which can be traced back to the domus in ancient Rome, and has been an important part of the residential fabric in all Arabic cities. Offering both a meeting place and an interior garden, these patio-houses account for most of the urban fabric of Córdoba and encompass not only urban and architectonical values, but also the ecological components as green cells that guarantee both urban and social ecology.

Key objectives for aesthetics and quality

PAX strategy promotes the purchase of abandoned historic buildings for the densification of the city in the framework of housing, professional and restoration cooperatives, to enable the preservation of both the architectonic and environmental heritage and to maintain the local population.

The architectural design of the first PAX patio-house will acknowledge the heritage value of the building while making it suitable for the contemporary way of life that the families that will live in it require. The ecological value will be the key to reducing the consumption of energy thanks to the presence of the patios and vegetation that encourages the passive circulation and refreshment of the air. The economic aspects will rely on promoting a small rehabilitation cooperative in Córdoba, including training activities designed to optimise the renovation of the building and facilitate new enterprises including responsible and sustainable tourism. Thus the social aspect is the most important aspect, because PAX is facilitating the updating of the heritage value within the collective memory of the people and community. The experiment is continuing, and PAX is seeking new communities to create new cooperatives in Córdoba and in other cities that need, as soon as possible, to start viewing heritage as a contemporary resource that can be used to guarantee smarter, more sustainable, and more inclusive cities.

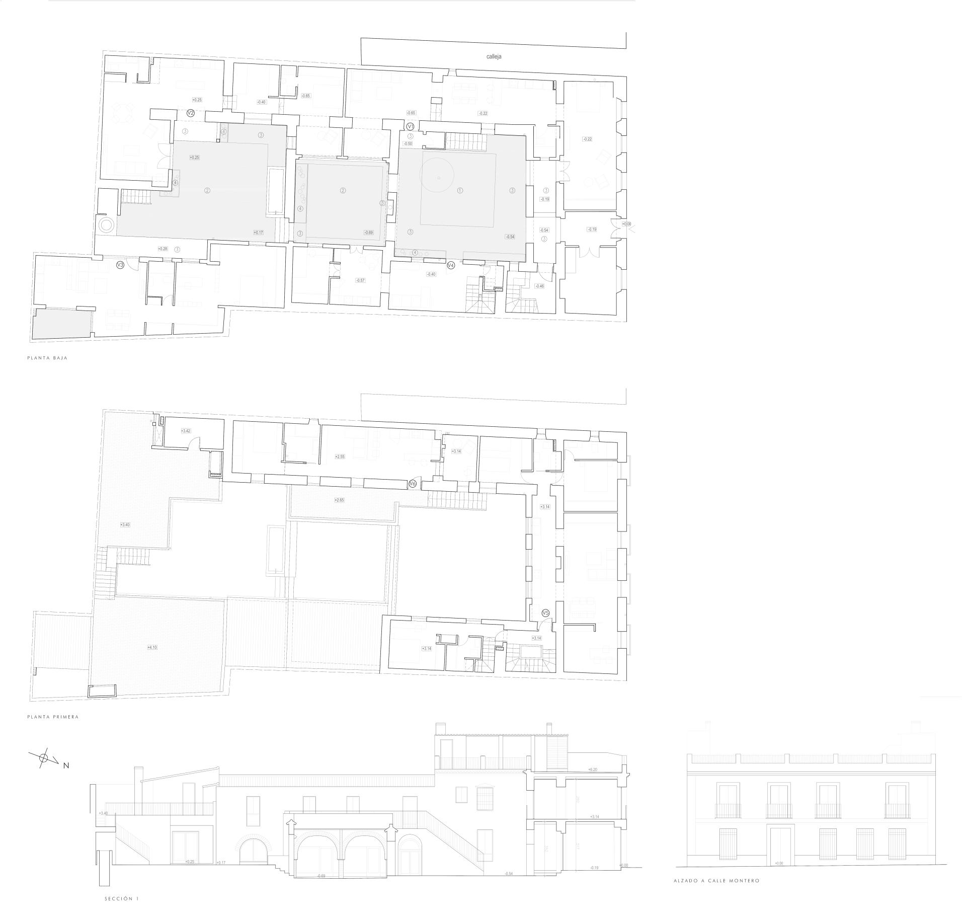
A further decisive element is the physical rehabilitation of the building, which is being undertaken with a view to both preserving its heritage value and ensuring its suitability for the contemporary needs of the six families who will live in it. The executive project has implemented both contemporary and traditional techniques in agreement with the architectural and constructive characteristics of the casa-patio.

Key objectives for inclusion

PAX talks about housing and a social and solidarity economy. A new governance  which involves citizens to form housing and service cooperatives that update the anthropological value of patio-houses and create local micro-employment. Parts of the patio-houses can be reserved for social emergency collectives or refugees, commercial local activities, non-profit organisations, or sustainable and responsible tourism that generates an income for the cooperative. It looks for increasing a sustainable economy network, linked to the market for heritage restoration and local activities to improve the residential uses.

PAX first identified empty houses of patrimonial value and initiated various local laboratories involving a range of stakeholders and citizens, and it is currently working with different groups that are in different phases of the process. Demographically, the groups consist of families in which the parents are about 40 years old, who want to share the educational values of the patio-houses with their children, and women of about 60 years of age who are willing to embrace a process of active aging, sharing their experience to shape the social initiatives that they manage. After discussing the needs of each community cooperative, PAX helps to find the best patio-house to meet those needs so that the material heritage (the building) is a consequence of the intangible heritage (people's way of coexistence). The relationship between PAX and the local neighbourhood associations is also very important because they guarantee the involvement of the residential community, which is a key to share the constitution of a ‘heritage community’ according to the terms of the Faro Convention.

The application of the PAX strategy in Córdoba can act as a ‘laboratory’ that enables stakeholders to experiment with compatibility between the global economy and the local culture by adopting an innovative and holistic point of view, combining the physical and social dimensions.

Results in relation to category

Based on the empowerment of citizens as managers of their habitat, the proposal for urban regeneration contributes to their understanding of a more socially and environmentally sustainable and energy-efficient model adopting an integrated approach than the one that is provided by a city that is continually expanding to consume more territory.

The first PAX cooperative, was created in mid-2018, and used finance provided by the Ethical Bank to purchase an impressive patio-house in Córdoba in January 2019. The house is one of the most interesting casa de vecinos in the northern Axerquia region, a special casa-patio that is suitable for multiple families. With three generous open-air spaces, which constitute an interior landscape that provides relief from the density of Cordoba’s urban fabric, the house, which was built in the 18th century, is quite well preserved, despite the changes that have been made over time by the various families that have lived there. Up to 16 families have lived in the house, generally in poor conditions, and the last owner living there died in the summer of 2018.

The owner decided to sell the patio-house to a PAX cooperative rather than to an external investor who wanted to build a hotel because they recognised that PAX would guarantee a return to the kind of lifestyle they had enjoyed there as children. They understood the social value of the building, thanks to their childhood memories. Six families, consisting of young couples and their children, will share the patio-house. The development of the rules of the cooperative in relation to the way in which the space is to be shared has been a democratic process involving a horizontal decision-making system. The PAX Association and the Cooperative have worked together in a synergistic way to address the economic, legal, urbanistic, and architectonic aspects of the project, paying special attention to the social component that has been displayed within other groups and cooperatives.

How Citizens benefit

The cooperation with neighbourhood associations has been used to implement relationships of co-responsibility around the PAX project that, from the perspective of the social value of heritage, shares collectively a city model, as expressed by Harvey.

Even though the primary goal of PAX is the promotion of a bottom-up experience, it is also collaborating with various public and private institutions to facilitate the multidisciplinary and multilevel aspects of the strategy. The Andalusian Institute of Historic Heritage (Instituto Andaluz del Patrimonio Histórico), the public research centre of the regional Ministry of Culture in Andalucia, is collaborating with PAX to upgrade the Digital Atlas of In- tangible Cultural Heritage with the patio-house data and to prepare training activities for the stakeholders. PAX is collecting data relating to both the material and intangible aspects of the patio-houses, such as drawings, documents, narratives, and photos, and will organise courses for local small enterprises in traditional materials and techniques that will be used to rehabilitate the heritage buildings. The University of Córdoba, in conjunction with the Etnocórdoba research group, is working on the patio-houses from an anthropological point of view, and is collaborating with PAX on the social aspects in relation to the local community. The University of Seville, in conjunction with PAX, has conducted research on the ecology of the patio-house, measuring its ecological benefits as a microclimate temperature moderator in a climate that reaches 45º during two months of the year. The Andalusian Institute of Advanced Sociological Studies (Instituto de Estudios Sociales Avanzados), in conjunction with PAX, is creating a map of gentrification in Córdoba using annual data on the residents and their demographic dynamics.

Innovative character

PAX—Patios de la Axerquía, is a new style of governance in relation to urban regeneration incorporating social innovation in a heritage city. The strategy of urban regeneration through cooperative processes aims to use the empty patio-houses in the historic centre of Córdoba to provide permanent accommodation for local residents. The potential to re-use the existing city, in terms of both its material and intangible heritage values through revitalising abandoned patio-houses in a central neighborhood that is earmarked for future gentrification, has provided the impetus to generate a bottom-up strategy in terms of  housing policy, heritage, urban regeneration, and social cohesion by updating the use of the courtyards through cooperative processes

The housing cooperative is an instrument of the social solidarity economy that promotes co-housing for different groups of people. The constitution of a cooperative allows it to build or rehabilitate a building as a collective property in which each person/family who is part of the cooperative has the right to use of a part of the building without owning the property. The unique feature of PAX compared with other housing cooperatives that have been established as an alternative to property ownership and rental agreements is that it operates in a high-value heritage environment, updating the coexistence that has traditionally characterised the Mediterranean city, and aims to operate as a neighbourhood cooperative that unites housing, rehabilitation, and service cooperatives to generate a local microeconomy.

Gallery