Skip to main content
European Union logo
New European Bauhaus Prizes

Making Lambrate wild again

Basic information

Project Title

Making Lambrate wild again

Full project title

Supporting existing biodiversity in a forgotten railway yard and creating new living options

Category

Solutions for the co-evolution of built environment and nature

Project Description

Living in a city does not always mean experiencing wilderness but the opposite. In my project I am trying to re-connect new urban development with already existing green areas in abandoned railway yard in Milan. I am keeping these green areas as they are and support them to grow even more by proposing a new green network. Moreover I am designing new living options in close proximity to these biodiversity corridors that work in accordance and not against.

Project Region

Prague, Italy

EU Programme or fund

No

Description of the project

Summary

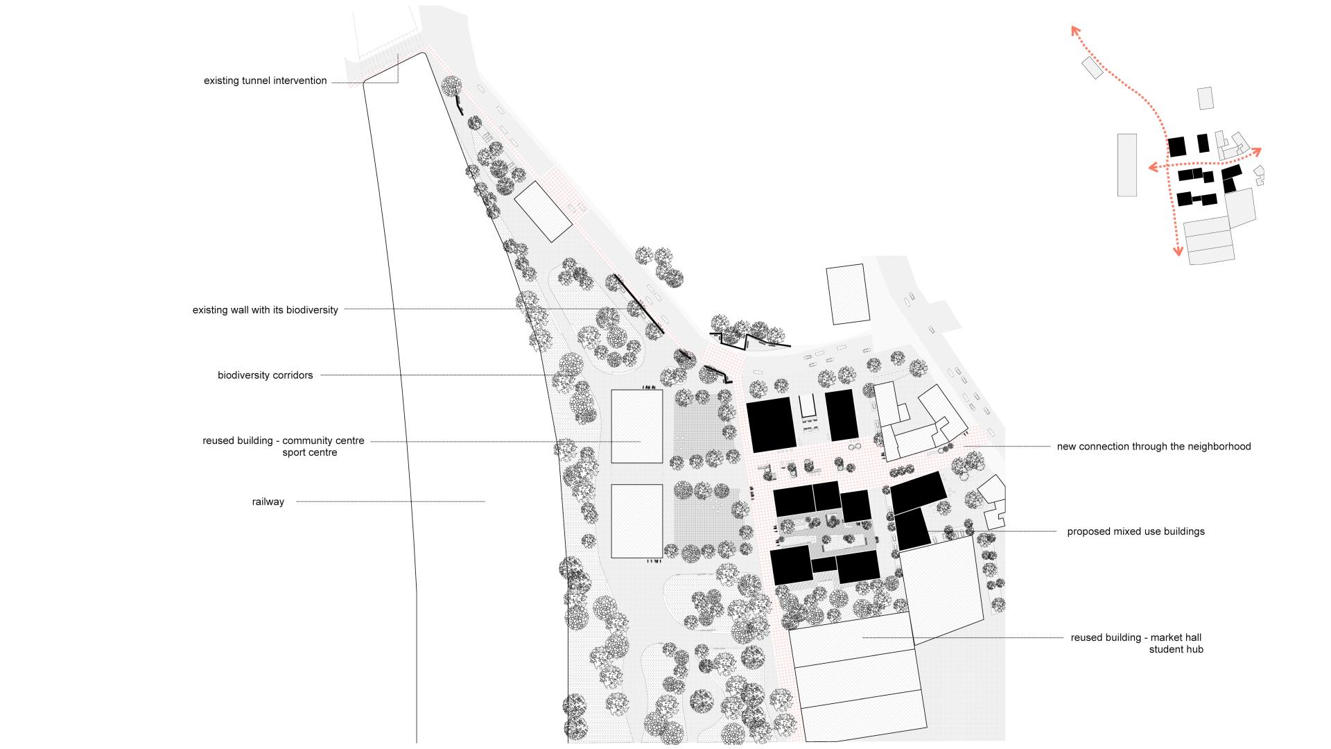
Lambrate neighborhood is known for being clenched by railway, highway and river Lambro. My area takes place along the underused railway yard, where at the moment a huge supermarket takes place with many abandoned industrial buildings. My concept is based mainly on working sensitively with already existing elements and features of the site. Apart from existing building that are kept and transformed, one of these elements is a long wall framing the area from the tunnel which I decided to keep, only perforate at some points. I recognize that as an element worth preserving due to memory of people and in order to support already existing biodiversity in it at some points. I am delicately creating shortcuts in between existing buildings from the main road to my forgotten site and there I am proposing inclusive housing consisting of 7 free standing buildings, at some points connected in ground floor, with inclusive and flexible apartments and multipurpose public space. 

I was facing to a "problem" of huge amount of free space that is impossible to built on, leading along the railway, which is now abandoned. Instead of creating a new green loan type of park, that is not even going to be used by people due to the close proximity of railway and security reasons, I used already existing green elements on my site, only supported their directions and proposed a supportive network of biodiversity corridors that are left as they are, in accordance with the concept of the Third landscape. Through these corridors, paths are designed to support connection of northern part of Lambrate with more cut-off southern part. Moreover this green corridor follows on a bigger scale another existing corridor which leads to river Lambro.

Key objectives for sustainability

In terms of sustainability my project is basically working with 2 key elements: biodiversity and reuse.

In terms of biodiversity I am keeping already existing green elements of underused railway yard as well as walls that are framing it and also at some points contain green ivy creating almost "green wall" concept (except that it was done by nature). These existing green areas are being followed by new network of biodiversity corridors represented by different green elements. (green roofs, green urban pots, green buffers, lines of trees etc.) Providing catalogue of different greenery and biodiversity corridors is great for water retention, providing diversity of species in a city as well as for people's health. Also it is less costly for municipality, because there is no need to take care of it as much. In more urban areas I am proposing green pots, lines of trees with sitting boxes or huge urban pots. In more remote areas I am proposing more wild corridors.

In terms of reuse I am working with existing buildings, I either keep the existing function or I am inserting a new one if the building is abandoned, that is mostly based on community function that needs to be activated in this area. Keeping all those originally industrial buildings was not aim of my studio project, but it was simply my decision to rather reuse than demolish and rebuild.

Key objectives for aesthetics and quality

New buildings that I am proposing on the site are mainly mixed use buildings that have unified appearance of ground floor to be perceived as "one", while the upper floor of each building has its unique facade in terms of different color of cladding, different shading elements etc. in order to experience better orientation on site. Furthermore designing each building as sort of unique one is very important for inhabitants, not only for orientation matter, but they are also more related to them. Some other design elements are being used such as clear marking of each building as well as highlighted and more generous entrances with entrance halls (which is important feature of Milano) to have clear understanding of positioning them.

Unified surfaces materials in public spaces, especially along the main "red connection" should make it easier for inhabitants to move through the neighborhood, indicate the usage of these spaces as well as location. Better orientation in this area was one of the priority problems.

Connection though the tunnel, which is frequently used by pedestrians as one of the important connections to the city centre, was also part of intervention. Except the new proposed lighting system and new materiality in underpassing, that discourages graffity, there has been created a new connection, that leads directly to the neighborhood and so should provide also level of security for users.

Key objectives for inclusion

Each building proposes unique apartments and a way of living. Some of them are designed as cohousing, some of them as more independent living. Effort was to always have the possibility to flexibly adapt to different situations. Some of the apartments are designed as smaller with common areas however can be easily changed into bigger, if the investor/user wishes. Providing this diversity was very important in order to reach different users and not to exclude some possible users.
Smaller but useful apartments design also follows the new "trend" of young people, who have no chance to find affordable apartment in a city.

All proposed buildings and apartments inside are designed in order to be inclusive, because the project was trying to react on the problem of aging population and adaptation to new standards. However these apartments can be used by anyone. Nevertheless aging in them can be easier due to providing shared common spaces, more spacious bathrooms, windows that have lowered windowsill so even in a wheelchair it is possible to see outside.  Almost each apartment has its own balcony or loggia which I find also very significant and sort of new standard.

Organization of buildings should make it easier to interact with neighbors due to shared spaces on the ground floor or intimate courtyard and so for elderly (but not only for them) its could be more simple to establish community and not to live alone.

Innovative character

The innovative character of my concept is simply working with what already exists on my site and I am only trying to improve it in a very simple and non-invasive way. At first I am trying to spot elements that can be preserved, kept and reused.

However the main feature of my proposal is that instead of trying to solve one problematic issue I tried to work more interdisciplinarily and in a complex way. Though one project I strived to show local solutions on many problematics. 

Working with biodiversity in areas that are not going to be used by people that much, due to the present railway, it is quite important decision which I made. This whole area is not going to be serving people directly and so it could serve to the nature, which is something I do not see very often to be thought of in cities. I am trying in my project to "reuse" existing green elements and areas, support them even more and propose new development in accordance with this. New buildings are retreating the existing greenery and respecting that. Moreover they are following proposed green network and help through green roofs and terraces to support biodiversity concept.

Gallery