Skip to main content
European Union logo
New European Bauhaus Prizes

DE LOODS 21 - Artistic Communit Hub

Basic information

Project Title

DE LOODS 21 - Artistic Communit Hub

Full project title

Project of Restoration of an old Warehouse in the Port of Antwerp for the Art Community

Category

Preserved and transformed cultural heritage

Project Description

This is LOODS 21, an old industrial warehouse reactivated by the artistic community of Time Circus. Come to fix your bike, enjoy a beer near the canal or attend our many concerts and activities! With this initiative we aim to scale up our spaces with recicling and reusing philosophy. An improved cultural HUB for the city of Antwerp open to the public of all ages. Come and discover the potencial for innovation of LOODS 21 with us!

Project Region

Ixelles, Belgium

EU Programme or fund

No

Description of the project

Summary

The project is located in the North of Antwerp. Historic frontier between the port and the city. This are is surrounding the docks and an aquatic accessibility. The Eilandje Quartier its rising between the real estate developments and social initiatives. The project aims to recreate the paradigm of the mixed used building as a way to include the old and the new in one place. Different parts that collaborate with each other thus becoming a diverse and integrated space. This project comes from the collaboration of an academic project for the Faculty of architecture of the Universié Libre de Bruxelles and the Artistic community Time Circus Based in Antwerp. The project proposes to remodel the interior of an old industrial warehouse now activated by the community in a cession of the townhall of Antwerp. 

Three basic functions and potential urban development factors of the project are: The fulfill of the logistic function of product placement and transportation between the industries, the ships and the urban areas. Based on the potential of the water as a medium of transportation. A social hub of cultural centers, music halls and museums of gathering and learning space for the community’s. And its link though public transportation to the center of Antwerp. And finally the potential productivity in development of green spaces and vegetal ecosystems reintroduced in to the urban conglomerate. Plus the green mobility bike paths and accessible roads.

Key objectives for sustainability

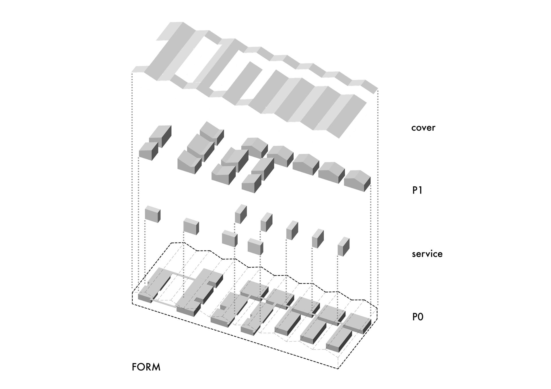
The existing use of the space is completely done with recycled materials and a circular and sustainable methodology. The space serves as a big interprogramatic covered space where different activities related to arts are being developed. From a concert and recording room, a bar and terrace to a welders workshop. The project reorganizes all this activities while restoring the existing iron Warehouse and improving its climatic performance.

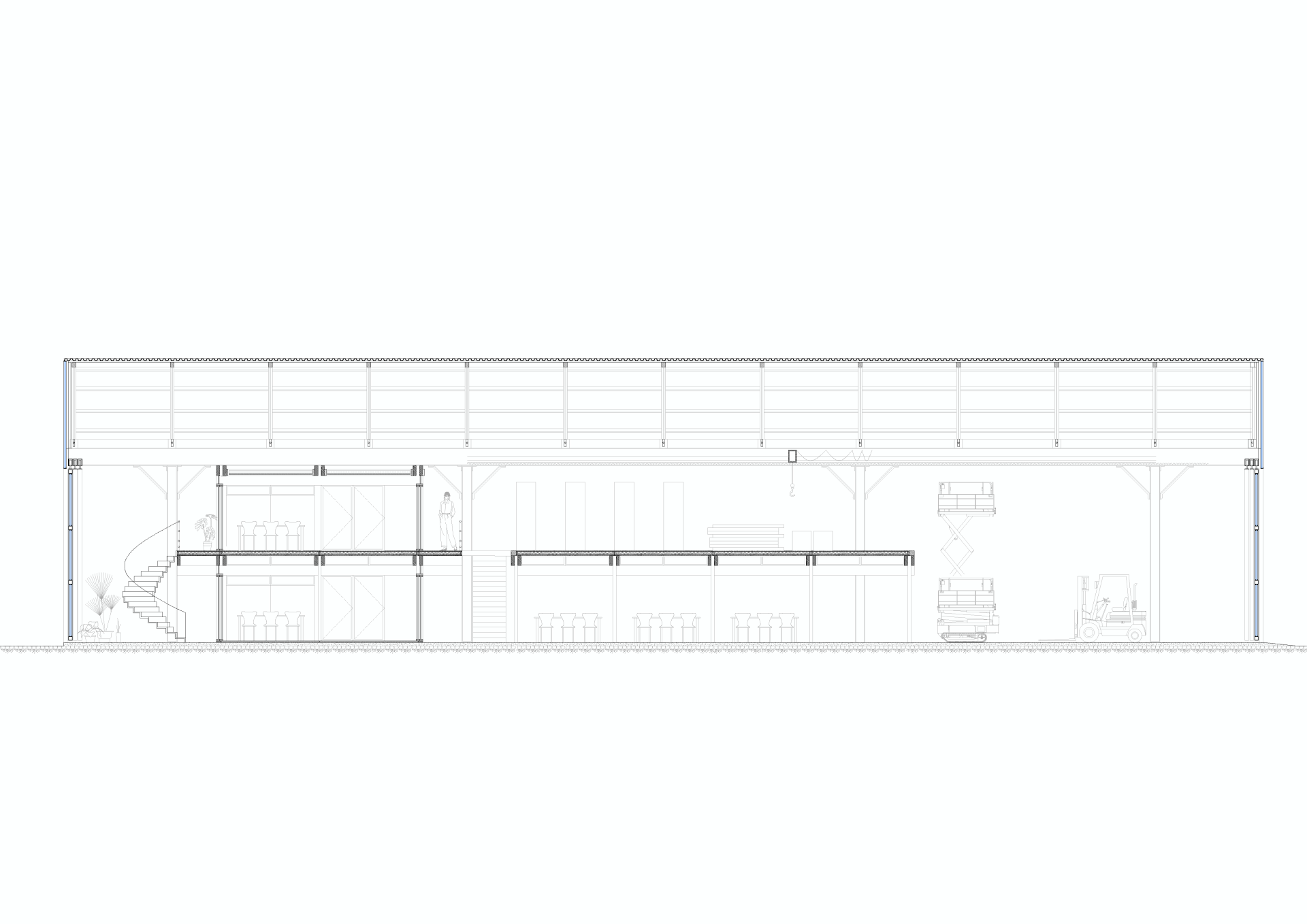
The need for an expansion of the space and a reorganization of the program could be arranged with our proposal. A two stories high wooden structure that will be fabricated in the place and introduced inside the original warehouse. Restoring it in its original state adding a polycarbonate cover. The mixed use program that we propose is based on the needs of the collectives. The augmentation of density and the reorganization of the space allows us to create a mixed use building with a polyvalent character.

Thus there are three different functional parts that work together :The comaking area; where different artisans of different disciplines can work and share knowledge and tools. It includes a storage space and individual working units. The coworking area: Basically office spaces shared by the different collectives with common spaces, meeting rooms and services. It includes a Polyvalent hall and rehearsal and recording rooms for the musicians. The cooperative area; It is the core of the project. Where the administration, social gatherings, urban gardens and evens take place. It’s the most open to the public part of the building opened to both sides of the city. It includes a temporal residence a Bike shop and the Paneik Bar.

Key objectives for aesthetics and quality

The composition of the space consist in the three areas early mentioned linked together by a circulation spine and two façade open corridors. Each working unit is adequately isolated. The lower floor has the wet services and the climatized rooms. The structural configuration of the additional structure is a timeless and simple solution. Two beams attached to a Pilar with screws and a wooden floor. The foundations of these structure are already set in the highly compacted ground below the Warehouse, due to the constant heavy transport of the former industrial area.

The final project will be a translucid cover for an intensively used space. The contemporary and yet simple aesthetics improve the quality of life of its users becoming a gathering place for all the city.

Key objectives for inclusion

The viability of this project is on the capacity of the community to carry on with its completion. The use of recycled materials and available tools makes it simpler to construct. The work can be done by volunteers guided by the professionals of Time Circus. In a series of workshops they have previously engaged civil population on construction works.

Each space follows its functional propose. They are dimensioned based on the study of the needs of each programmatic unit and the placement of its components. For example the access of the Coworking area to the north façade that links its open space to the access of trucks and cranes. Or the isolation walls and courtines around the Polyvalent space that avoids the noise to come out.

The polycarbonate cover and interior spatiality its meant to ease the temperatures in winter and allowed cross ventilation on summer. We find a winter garden area in each façade, as a green space inside the building this climatic buffer protects the inner structure from temperature variations and whether impacts.

Innovative character

With the reuse of wasted materials and the philosophy of Time Circus we can build a new culture Hub for Antwerp in the spirit of Circularity. A bottom up initiative that will end up in a much needed new programmatic spaces for the artistic community in Antwerp. Reaching out for the engagement of all population on its completion.

Gallery