Skip to main content
European Union logo
New European Bauhaus Prizes

The warm house of cold concrete

Basic information

Project Title

The warm house of cold concrete

Full project title

Low energy house in Sofia

Category

Techniques, materials and processes for construction and design

Project Description

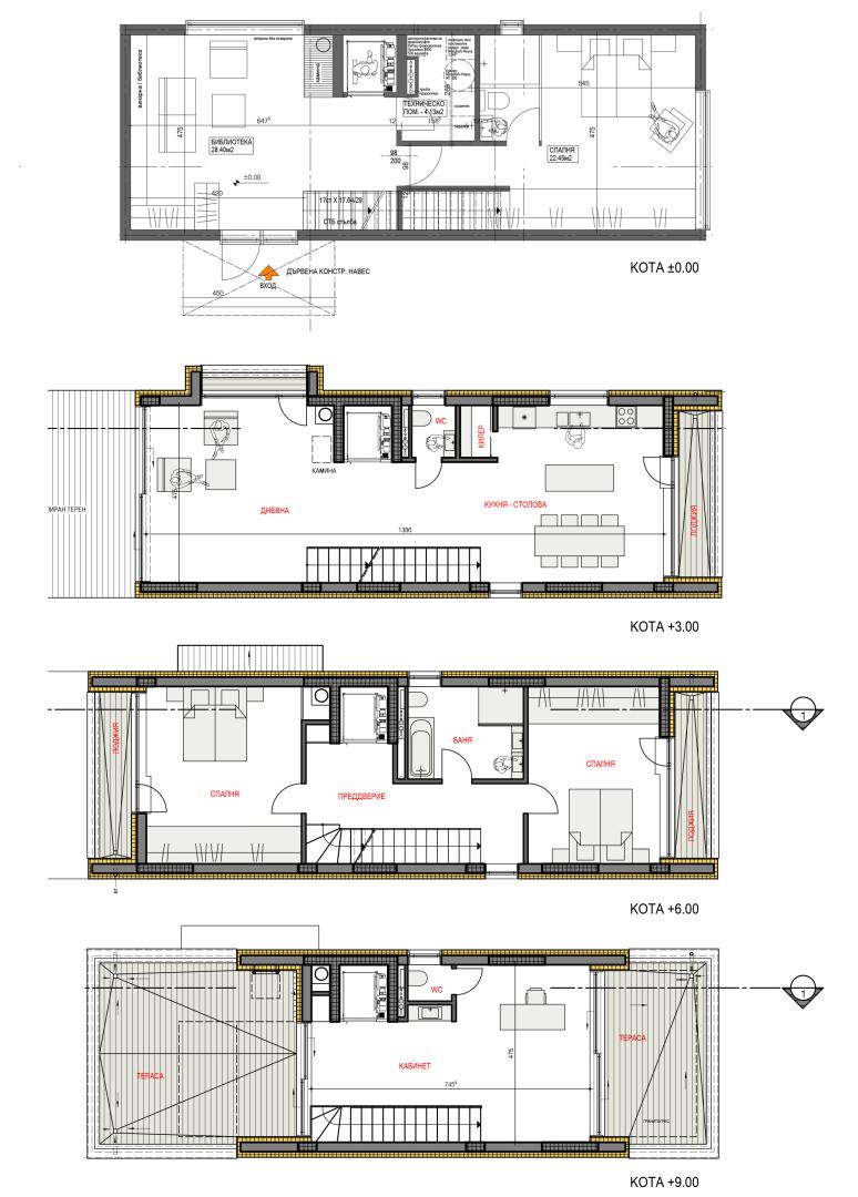
The house is in a very narrow and long property, with a built-up area of elevation ± 0.00 - only 81.00 m2. In the concrete core of the structure (reinforced concrete slabs) is envisaged to incorporate a system for heating and cooling. The principle of tempering the concrete core is based on the use of the storage mass of construction parts. Tempering of the concrete core helps the accumulation characteristic of the massive building parts by pipes that run on cooling or heating water.

Project Region

Sofia, Bulgaria

EU Programme or fund

No

Description of the project

Summary

Realized аn "endless" battery. Due to its economy the tempering of the concrete core is current trend in air conditioning technology.The system provides a number of advantages:
- Low investment and operating costs;
- "Light Cooling" without a draft;
- Reduced air change when combined with technical in-room air installations;
- Use of alternative systems for cold and production of hot water;
- Low and energy-friendly inlet temperature.
The living room, along with the ladder and space next to the fireplace, and kitchen-dining room are solved as one-dimensional space with exposure and the East-West view, which contributes to the rich and modern sensation of these premises and at the same time abstracted from the largest multi-family residential building built in the neighboring property from South. The eastern and western parts of this space are fully glazed with large showcases from floor to ceiling to be gives a sense of infinity to the volume, a connection with nature outside and to provide maximum amount of natural light. Ladder is also provided in minimalist style - from visible concrete and with railing only of reinforced glass. The doors of the premises WC and closet are foreseen from floor to ceiling, which is also visible concrete and fitted decorative wooden slats. From the living room in the West, through sliding showcases go out into the yard on a molded terrain covered with decay. From the terrace on the top floor there is a wonderful view during the day to Vitosha and in the evening - to Sofia.

Key objectives for sustainability

The main advantage of our project is that the heating bills are extremely low - about 100 euro per month for a heated area of about 400 m2.

Key objectives for aesthetics and quality

Although the building is only 5 meters wide - it gathered all the necessary facilities without feeling like the space is limited.

Key objectives for inclusion

The project meets several of the criteria:

- innovative materials are used that mitigate the negative impact on the climate;

- creates a pleasant atmosphere of living, helping not only the owners but also the appearance of the neighborhood and the environmental education of the neighbors;

- shows how the necessary living environment can be created on a small area;

- Last but not least, it shows how to solve one of the big problems of the capital - redevelopment. The project shows that the construction of houses is more valuable and should be stimulated, instead of redeveloping the neighborhoods with large multifamily buildings.

Results in relation to category

In Bulgaria using modern construction techniques is still difficult. Sofia is one of the cities with dirtiest air in the world. There are still many families who heat with solid fuel (coals), so it was important for us to design a house with almost zero emissions.

How Citizens benefit

In recent years, the interest of citizens is increasing in what is being built in their neighboring property, whether it is a single-family house or a large multifamily building, whether it is built with sustainable materials and with the possibility of ecological heating. In this point, the construction of the building contributed to the overall look of the neighborhood.

Innovative character

Realized аn "endless" battery. Due to its economy the tempering of the concrete core is current trend in air conditioning technology.The system provides a number of advantages:
- Low investment and operating costs;
- "Light Cooling" without a draft;
- Reduced air change when combined with technical in-room air installations;
- Use of alternative systems for cold and production of hot water;
- Low and energy-friendly inlet temperature.

Gallery