Skip to main content
European Union logo
New European Bauhaus Prizes

Holiday village

Basic information

Project Title

Holiday village

Full project title

Contemporary environment mixed with local culture, traditions, and folklore

Category

Solutions for the co-evolution of built environment and nature

Project Description

Culture,traditions,and folklore of more than 7000 years give birth to the dialogue between anthropo-presence and uniqueness of nature in the city of salvation,deliverance,and healing-Sozopol.The great respect to the heritage synthesizes the concept for contemporary environment mixed with local building craftsmanship traditions.This holyday village reflects a "close to the traditional bulgarian rural mindset" idea for individual and collective self-awareness for better life within nature.

Project Region

Sofia, Bulgaria

EU Programme or fund

No

Description of the project

Summary

Culture, traditions, and folklore of more than 7000 years give birth to the dialogue between anthropo-presence and uniqueness of nature in the city of salvation, deliverance, and healing - Sozopol. The great respect to the heritage synthesizes the concept for contemporary environment mixed with local building craftsmanship traditions. This holyday village reflects a "close to the traditional bulgarian rural mindset" idea for individual and collective self-awareness for better life within nature.

The main goal of the project is to provide a solution to a global challenge by intervention in the local context conditions through tourism. Sozopol attracts thousands of visitors every year. This is an opportunity to popularize the local and national folk customs and also it is an opportunity to promote the sustainability principles and co-existense between built environment and nature.

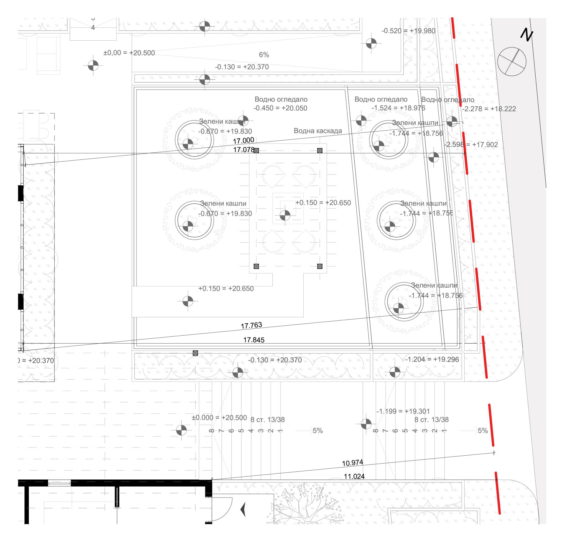
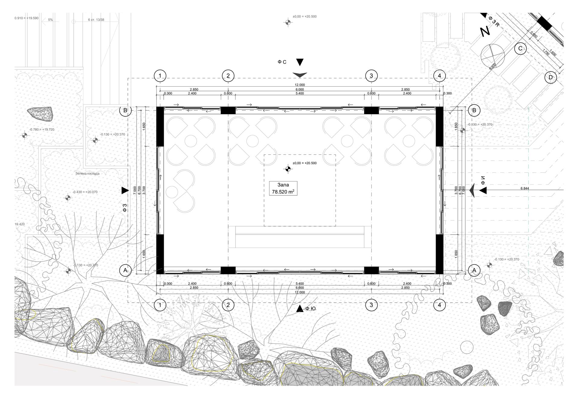
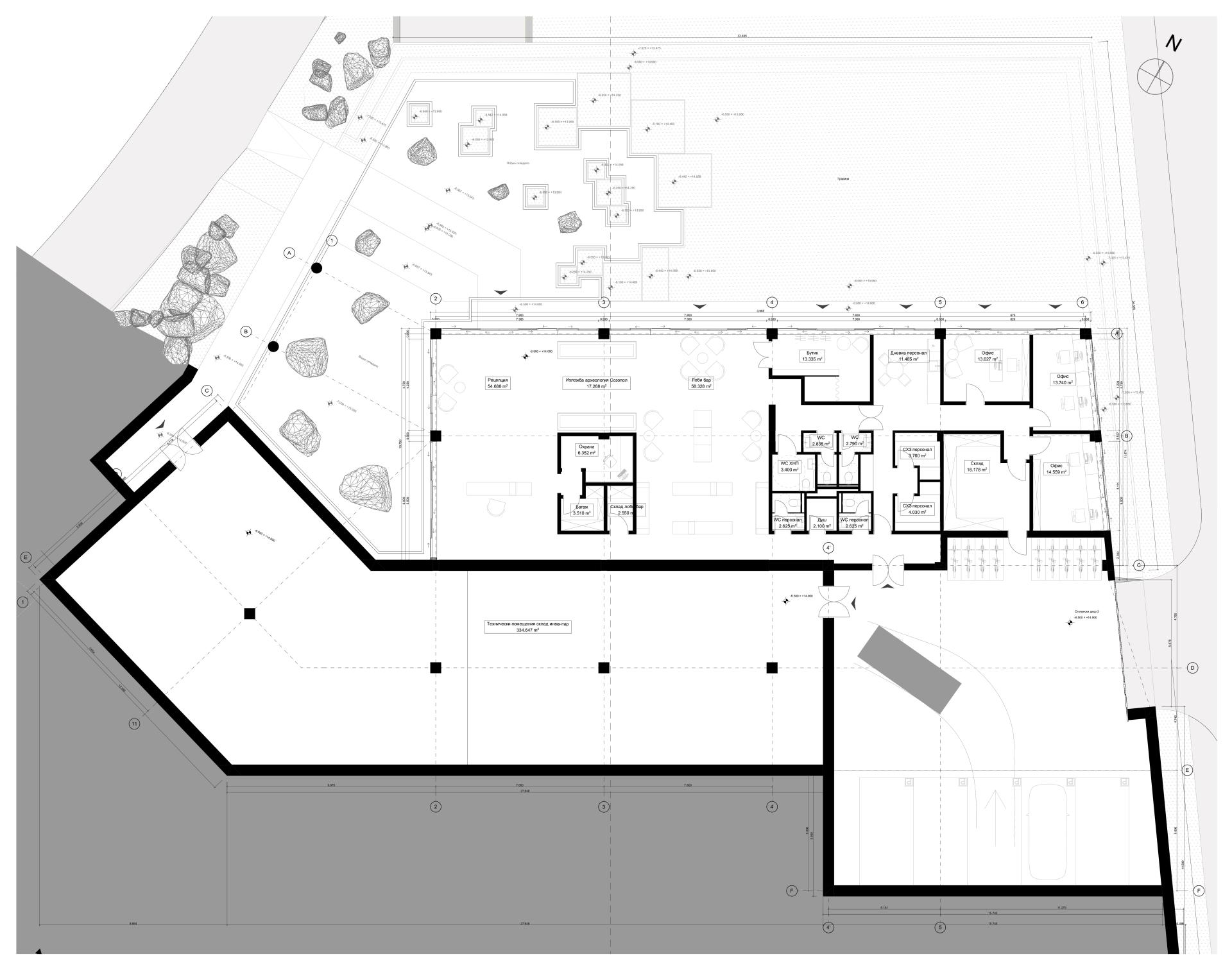
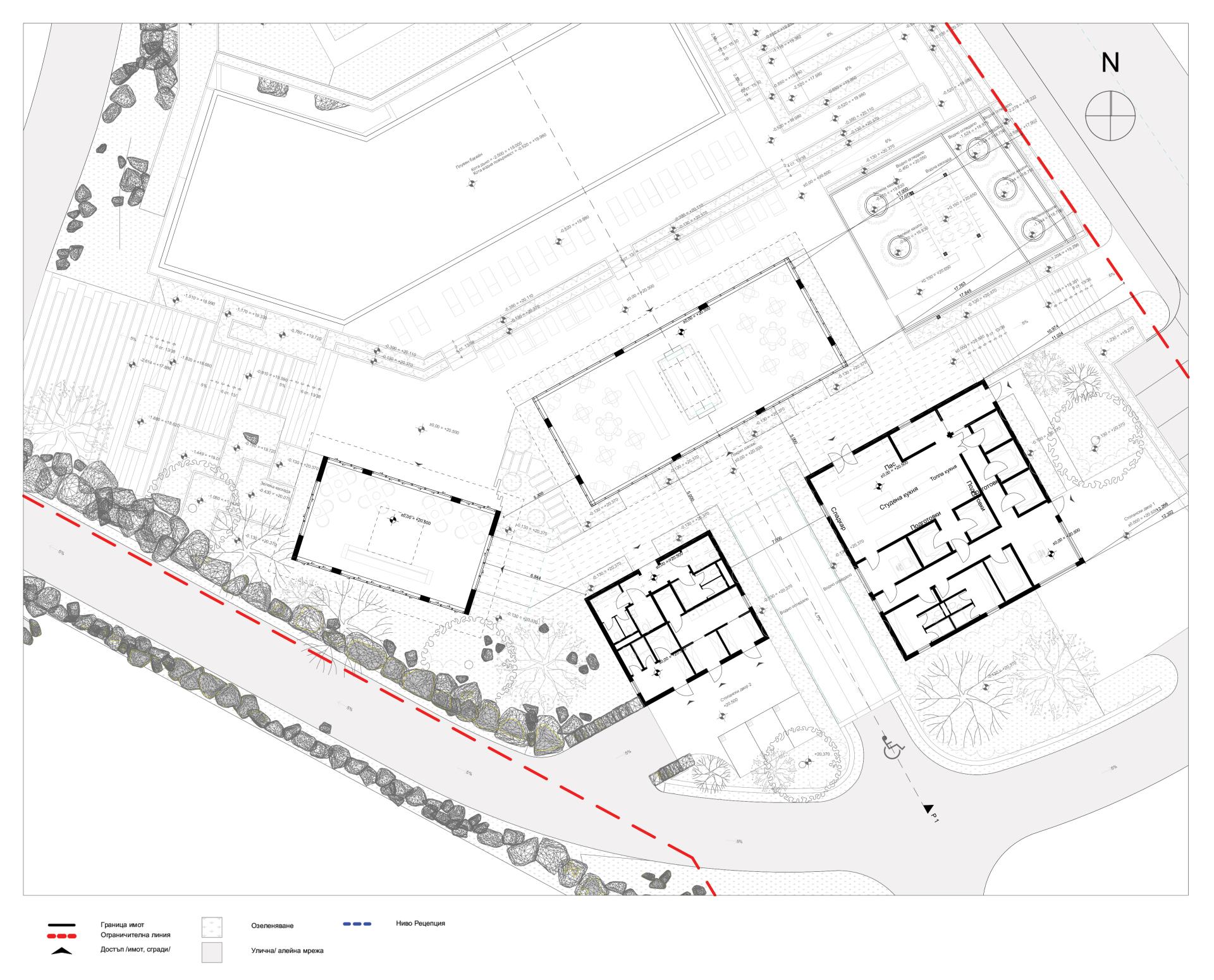
The masterplan is inspired from the Old Town of Sozopol. It interprets the picturesque architectural ensembles of the old Renaissance houses from the period XVIII - XIX c. (Black Sea school of architecture), the narrow cobbled streets and their intersections, and the so-called “rimni” (narrow spaces between houses).

40 villas are grouped in clusters of threes. Each villa is built around an existing tree which becomes a strong part of the interior space. Villas are rotated in different angles from each other so that each one has direct view to the sea.

Key objectives for sustainability

In terms of achieving this goals several sustainable strategies were chosen:

Off-site manufacturing strategies: manufacturing building elements like columns, beams, slabs, etc. in a controlled environment increases the building quality, decreases waste and dust, reduces time and costs, saves the adjacent territories.

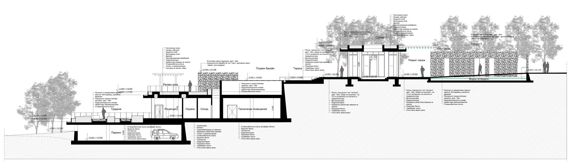
Renewable energy sources: Solar energy harvesting system, Geothermal heating and cooling system, Rain water harvesting system.

Design strategies: Natural ventilation (Stack effect), Automated smart systems for controlling the quality of the indoor microclimate, Maximised green spaces for controlling the quality of the outdoor microclimate, Module construction; More dry construction processes; Less wet construction processes; Shading devices (interpreting authentic houses' wooden fasade cladding).

Floorplan principles: The terrain has a slope to the north. In the same direction is the view to the Black Sea. In order to achieve the two objectives "view (to the north) + natural sun light (from the south)" open plan strategy was choosen. The external walls are the glazing. This allows view to every direction and contributes with the health benefits of sunlight.

Soil conservation: minimised building footprint so that less ground area is utilised by construction. The whole structure sits on a natural stone "podium", which strengthens the soil and protects it from landslides.

Biodiversity: Each villa is built around an existing tree which becomes a strong part of the interior space. Each saved tree benefits the flora as well as the fauna. For example, birds can nest there and people are closer to them which is a natural promotion of biodiversity.

Materials strategies: Implementing natural materials -  stone, wood, mineral wool; Highly effective glazing; Natural insulation (green roof system).

Key objectives for aesthetics and quality

This project is an example of a direct dialog with heritage. It is shaped by the local contextual conditions in the spirit of sustainability of the environment as well as society. Inspired from the Old Town of Sozopol the design provides contemporary living environment reflecting the local craftsmanship customs. The holiday village actively engages its visitors introdusing them into traditional bulgarian rural lifestyle as it was 100 years ago.

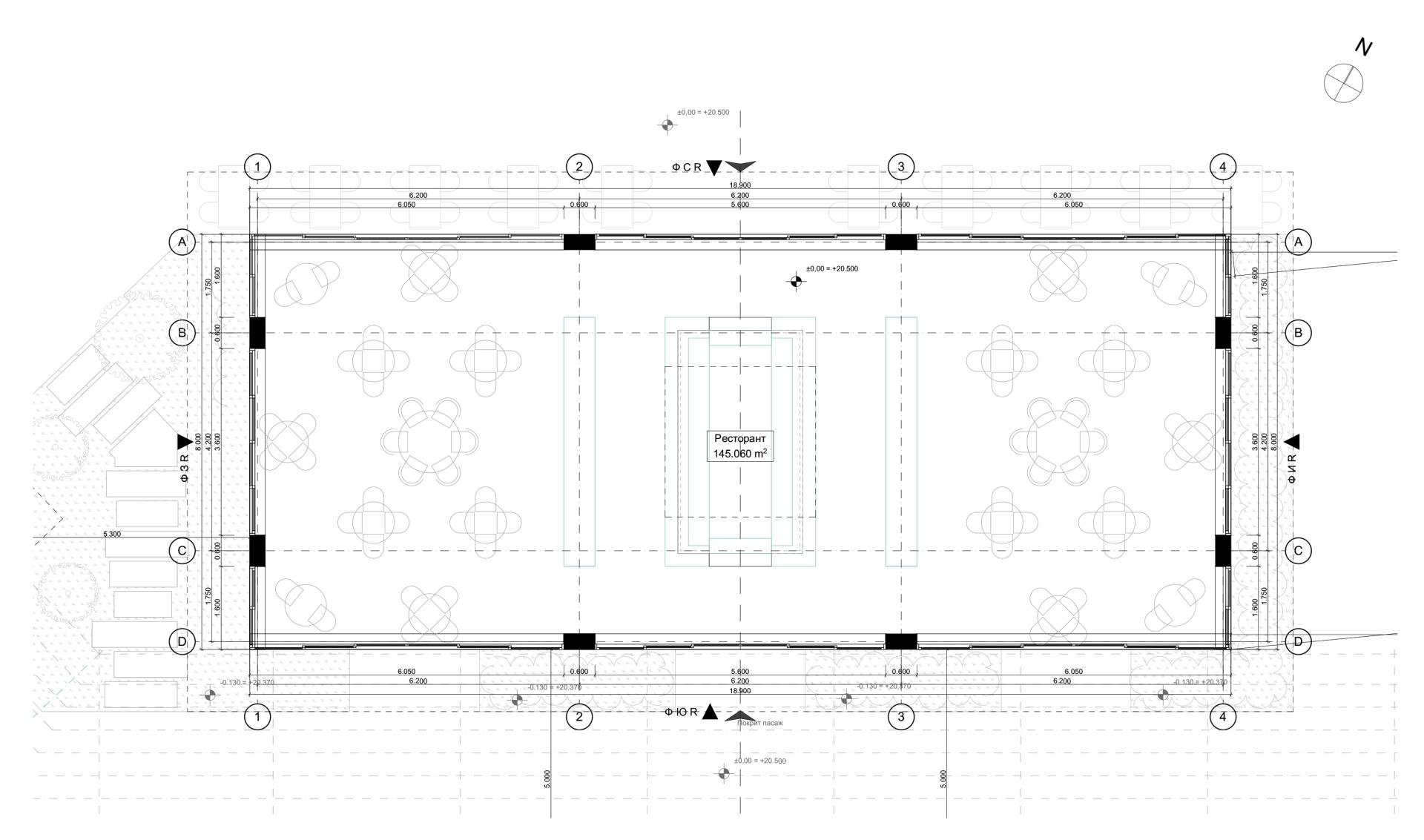
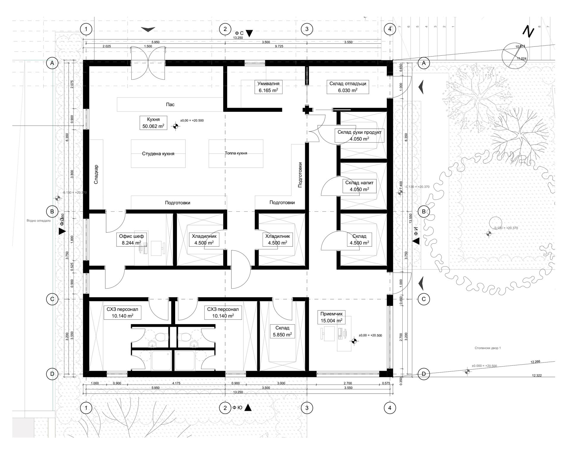
People can take care of vegetable and fruit gardens learning how to grow food themselves. Villas of each cluster form a mini-square where people can interact and connect with their temporary neighbours. They can have a breakfast, lunch or dinner together or can have a night around the fire. They can take care of the gardens - planting some flowers and watering them. They can learn how to prepare some winter supplies. At the restaurant visitors can try some local cuisine and after that can try prepare it themselves. They can do some exercises in the outdoor fitness next to the children playground. At the end of the day everybody gather together /as our predecessors did/ for a cultural event and learn dancing traditional bulgarian folk dances like "horo" or "rachenitsa".

The introduction of Bulgarian traditions, way of life and culture creates new places with a unique impact on perception and behavior. The direct participation of the people in the settlement's life through joint care for it is an inspiring example of creating a resilient community in a sustainable natural environment.

Key objectives for inclusion

The environment is accessible to visitors of different age groups and for disabled people so that it meets all local regulation.

Financial inclusion follows the strategy of encouraging the local buisness. All materials and resources are considered to be delivered by local manufacturers. This will encourage them as well as the local industry to adopt new sustainable standarts and methods for manufacturing. It also will reflect as a reduction of the transportation and fuel costs. All construction elements (columns, beams, etc.) are unitized which means faster, more quality, and cheaper manufacturing procces. Renewable energy sources and the quality materials will reduce the bills several times. This will reduce the total cost which will reduse rental prices so that ​this service is affordable to more people including people with lower incomes.

Innovative character

This project proposes a model/vision for a solution of a global challenge by intervention in the local context conditions with multi-effect results:
1) promote ​the golden triangle of sustainability - aesthetics - inclusion
2) popularise local culture, traditions, and folklore
3) engage and connect more people of different generations from all around the world
4) positive impact on perception and behavior creates a resilient community with individual and collective self-awareness for a sustainable natural environment
5) contemporary evolution of heritage ​encourages contunuity of past-present-future and creates ​places with character and strong presence

This model could be adopted successfully in every region having in mind the local social, cultural, natural, and architectural ​characteristics of the environment.

Gallery