Skip to main content
European Union logo
New European Bauhaus Prizes

Cuidados en Entornos Escolares

Basic information

Project Title

Cuidados en Entornos Escolares

Full project title

Cuidados en Entornos Escolares. Changing schools to change our cities.

Category

Regenerated urban and rural spaces

Project Description

The goal of the Cuidados en Entornos Escolares, Taking Care in School Environments, project is use participatory processes to create a new model of school space that promotes health, wellbeing and development, responsive to the new paradigms and challenges of the 21st century. The results have exceeded all expectations, showing how physical space can generate important social changes, creating identity and commitment to nurturing and inspiring spaces.

 

Project Region

Madrid, Spain

EU Programme or fund

No

Description of the project

Summary

In 2017, the Madrid City Council launched the Taking Care in School Environments project. Its objective was to propose, through participatory processes, a new model of school space in accordance with the new paradigms and challenges of the 21st century.

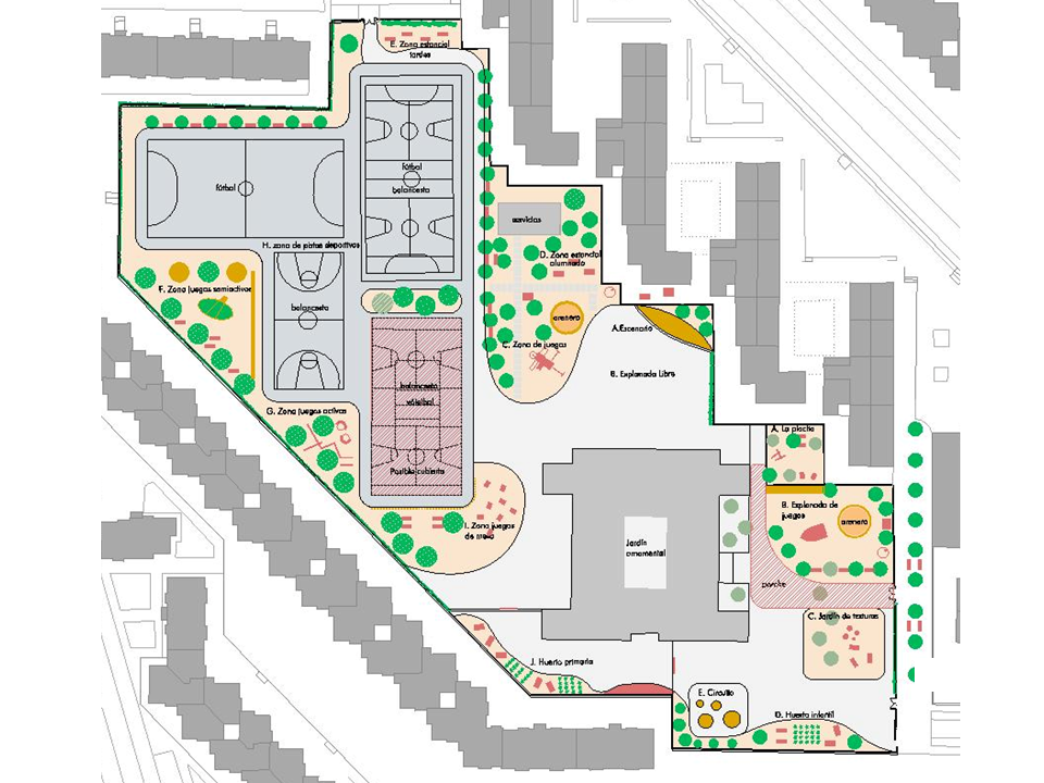
Three public centers were involved in the initial phase of the project. New master plans for schoolyards were designed through participatory processes, incorporating the educational, health and development needs of the educational community tailored for each neighborhood.

The first phase was participation, that included the city council, the school community and neighborhood entities. During the process, the needs were detected and a new schoolyard design was agreed upon.

The second phase centered on an innovative approach to search for and secure municipal funding to finance the interventions. The project managed to mobilize close to one million euros from different municipal sources, and this allowed the implementation of the new designs to take place.

The most ambitious intervention was carried out at the Ramón Maria del Valle Inclán, with a comprehensive transformation of the schoolyard. Using green infrastructure and improving structural and material heterogeneity, we respected natural cycles and mitigated climatic threats, while improving the educational potential of the center.

There have been multiple positive outcomes for the school community and the neighborhood. In addition to the impact on the students’ development, this process has managed to reverse the stigmatization of the center, stopping the flight of students to private centers and the subsequent ghettoization. There has been a greater participation from families in the school community and a recruitment of teaching talent. The schoolyard has been a source of local pride and gathering for residents.

This is the story of how together we transformed our space to improve lives and processes.

Key objectives for sustainability

Considering sustainability in in terms environmental aspects, this project incorporates respect for natural cycles, as well as the mitigation of threats due to global warming. From a pedagogical perspective, we have shown that schools, in their structure and educational content, can be coherent examples of respect for the environment and the fight against climate change.

Green infrastructure has been incorporated to reduce 100% the previous surface impermeability by reducing asphalted surfaces and incorporating porous cement and runoff channels, as well as the creation of an infiltration well. We increased the areas with sand and dirt by 600%, and the area with vegetation has increased by 340%. The vegetation has gone from 8 species to include more than 20, with the incorporation of native and ornamental trees and shrubs.

In addition to guaranteeing the continuity of the water cycle and providing educational opportunities, these elements will help mitigate heat waves and heat island effect, creating a climatic refuge for the school and the neighborhood. The vegetation, permeable surfaces and water reservoir will improve the buffer capacity of temperature peaks, in addition to providing examples of natural processes that can be used as pedagogical tools for current and future generations of the educational community.

The sustainability of the project in economic and maintenance terms is conditioned by local structures and policies. However, the educational and social functionality of the project and the empowerment of the educational community and families, make it not only sustainable, but also enable it to continue as dynamic project that will continue to live and grow.

Key objectives for aesthetics and quality

"What is beautiful is good"

                                Plato

Space can educate, condition and shape behavior. This has been the guiding hypothesis that drives this project, as we firmly believe in the transformative potential of urban design. The shape and contours of a space can produce important social changes, transforming identity, commitment and care.

Achieving a welcoming space in an environment that was classified by the participants as "hostile", a space that promotes health, wellbeing and development, where we can meet and gather and care for each other, are the objectives or rather, building blocks of this project. The space has become attractive, but above all, it now promotes of a series of positive individual and social functions for the community.

The transformation the space based has been on a consensual identification of the needs of the educational community and the neighborhood. This has produced recognizable and relevant changes in the behavior and development of our children. Positive effects on the educational process are currently being evaluated by a professional team. The preliminary conclusions of this study indicate a significant influence of space on the personal and social development of the boys and girls of our school, with regard to motor, intellectual and social development.

In addition, the space has become a valuable pedagogical resource to develop our school curriculum and has generated positive identity among the families and neighbors of the neighborhood.

 

 

Key objectives for inclusion

Our objectives in terms of social inclusion and community development revolve around the condition of social vulnerability of the families that are part of the educational community.

CEIP RM del Valle Inclan is located in the Hellin neighborhood, with one of the lowest family incomes in Madrid, and a life expectancy 3.5 years below the city average. Previously, the school suffered a high rate of absenteeism, decreasing enrollment and the flight of students to private or subsidized centers. It was a ghettoized and stigmatized school, despite the high quality of its educational instruction and the commitment of the staff. Thus, this project strives to provide a school infrastructure that promotes health, wellbeing and development, that allows and enhances the development of the students, overcoming the gap imposed by the socio-cultural conditions of the neighborhood.

During the project, the center has reversed these negative trends, recovering and increasing its student body, which guarantees the school´s survival. The social diversity of families and their involvement in the educational community has also increased. In addition, a Family Association is currently being established, and has gained representation on the School Council, the school´s highest forum for participation. Family involvement in school and volunteer activities has increased.

This project has provided infrastructure that promotes health, wellbeing and development. The transformation of the children's playground has allowed a more egalitarian, natural and diverse environment, inviting for educational and leisure activities. The schoolyard has become a classroom a reading and learning space, a space for collaborative play and motor skills development, and the observation of nature. It has become a place to meet, rest and enjoy. And more globally it facilitate the social leap that these children are required to make to overcome important socio-cultural and structural barriers in their development

Results in relation to category

This project has shown how the landscape environment can be a powerful tool for social transformation. The participatory process to create an aesthetic and functionality (placemaking) that serves the needs of the educational community has been an engine of change in a hostile context, reversing the stigmatization and ghettoization of the school and the neighborhood where it is located.

Different departments of the Madrid City Council (Health, Urban Planning and Environment; and the District Board) have been involved in the process, in addition to the school directors, teaching and auxiliary staff, parents and kids. The neighborhood has been represented by the Manantial Foundation (who works with people with developmental disabilities), and the sports clubs that carry out extracurricular activities on the school grounds. The project has been guided by professionals from school participation and design.

The institutional and municipal commitment to the project is further reflected by the financial investment of more than 320,000 euros. Professionals from the school and outside the educational community have continued to show their commitment by assisting the process beyond its financing, in the dissemination or generation of new initiatives in the school, such as impact evaluation or the search for new funds. Thus, the project continues to live on, incorporating more actors and activities. For example, the school developed a food bank during the confinement of 2020, strengthening its role as caregiver school to the neighborhood or collaboration with Authonomous University of Madrid students to develop new schoolyard areas.

 

How Citizens benefit

This project is based on the Participatory Action Research methodology, and be the belief that through co-creation, together we can achieve better solutions, greater sustainability and lasting impact. All members of the educational community, teachers, support staff, families and students, other users of the school grounds, neighbors and neighborhood associations, municipal technicians and local politicians have participated in it at different levels, from consultation to direct participation in the core team and design.

The majority of the participatory design process was developed from September to December 2017. This incorporated the educational community, the local administration and neighborhood associations, who defined and validated the design process through information, reflection, proposal and consensus.

This process included several methodological milestones such as: proposal to the educational community, collective mapping, observation and response, forming of a core group, evaluation of elements by teachers and a proposal model. This allowed the needs of the space and the objectives of the center and the needs of the neighborhood and the opportunities to strengthen to be identified, explored and agreed upon. This analysis was transferred to a plan generating a design proposal, a master plan, that was validated by the core group and in public presentation. This action-research process continues to be active, adding new participants and new goals, in a cyclical process of reflection-action.

Participation in the project has strengthened the relationship between the neighborhood and the school, especially for the families of the students, and the identification and commitment of teachers with school. A strong indicator of change is the imminent constitution of the Family Association, and the incorporation of families into the School Council. The participation of families in the educational community were non-existent before the develo

Innovative character

The innovative nature and success of this project is based on its transversality and interdisciplinarity, as well as its bottom-up approach, starting with limited financing, but with a committed, active community that has managed to mobilize the resources necessary to ensure its development.

Three municipal departments, health, urban planning and environment, have participated in the project, taking a holistic approach towards improving education and wellbeing, something unprecedented in municipal management. Likewise, different levels of stakeholders have been involved, both within the municipal and the district administration.

Initially, the project was funded only for the participatory and design process (about 20 thousand euros). The execution of the complete project, including the landscape interventions, resulted from the mobilization of existing (but not yet allocated) funds in the different municipal budgets, for total of 300,000 euros. This project has demonstrated the importance of financial investment to identify and target the available municipal resources.

The innovative character is also reflected in the master plan design, that created a new paradigm of school space in Madrid. We have developed a space for promoting health, wellbeing and development, as well as an educational resource. The transformation of the outer space, the urban intervention (placemaking) of the center has illustrated the innovative and successful nature of the teaching practices at the school, which has led to an increase in enrollment, a diversification of the student body profiles and the attraction of teaching talent who choose the school. The project outcomes have served as a wake-up call for other pedagogical and educational management processes in the city.

Finally, the incorporation of green infrastructure, native vegetation and quality play elements provide the space with an educational potential consistent with the values ​​of sustainabil

Gallery