Skip to main content
European Union logo
New European Bauhaus Prizes

E-MERGO

Basic information

Project Title

E-MERGO

Full project title

E-MERGO. Regenerating fragile areas: the case of Casso

Category

Regenerated urban and rural spaces

Project Description

The purpose of this idea is to elaborate a strategic plan, both in a theoretical and physical application, that brings to the restoration and restarts of Casso. In particular, it is achieved by detecting and analyzing the village’s characteristics – habits, customs, traditions, and land management – which are here connected creating interdependence relations. This plan will then find a practical application by the urban and architectural design, which introduces new functions and services.

Project Region

Parma, Italy

EU Programme or fund

No

Description of the project

Summary

The internal areas are complex and articulated territory, which represents almost 60% of the Italian nation. To face the challenges of these areas – such as depopulation, aging, the absence of generational change, territorial and built-up deterioration – is a national urgency due to the historical and cultural value that these areas represent in the Italian historical evolution. An integrated approach is necessary to solve the crucial reasons of the depopulation: the almost total absence of essential services like instruction, health care, mobility, and internet access.
From this consideration and in this context, has been identified a case study: the historical settlement of Casso. It represents a model, on a small scale, of strengths and threats of internal areas.
The purpose of this idea is to elaborate a strategic plan, both theoretical and architectural. It will bring to the restoration and restarts of the village analyzed. In particular, the hamlet’s characteristics detected – for example, habits, customs, traditions, and land management – are here connected to create interdependence relations that will make them stronger and more resilient.
This plan will then find a practical application by the urban and architectural design, which hosts the new functions and services proposed.
The idea behind this model can become a great opportunity, especially nowadays. In particular, the EU invested high economic effort for NEXT GENERATIONS towards more sustainable European regions. This financing can become, in the future, an opportunity to promote social and territorial cohesion, especially in the internal areas. E-MERGO project can, in this context, bring a new contribution by becoming a model adapting the objectives to the circumstances under consideration.

Key objectives for sustainability

The three pillars of sustainability - social, environmental, and economic - can be found in the concept from several prospective.

The first one is related to the character of the settlement of Casso. A tiny village highly connected with the surrounding nature. A historical relationship in which the population has always use the available resources with extreme consideration and regard. Nowadays, due to the depopulation of the area, the environment and biodiversity are abandoned and threatened.
The suggested idea is to rethink the traditional use and preservation of the ecosystem – such as the agricultural, livestock, and forestry supply chain - using new policies and practices. This strategy has countless positive effects, such as more sustainable and biological goods and the tourist and economic promotion of a new local gastronomic supply chain. But even to the reduction of environmental emergencies linked to secondary forestation and the abandonment of territories.
Extending this concept toward the internal areas will decrease intensive farming and agriculture, and environmental emergencies, while it will increase the wellness and resilience of the local populations. 
The second point of view is related to the new constructions proposed. These four buildings, containing many new functions like an auditorium, a research hub, a guest-house, and a playroom, are designed considering the whole life-cycle. The wood or steel structure allows its complete dismantling, while the off-grid plan and the high insulation bring to nearly zero-energy buildings.
In detail, the heating system consists of a geothermal heat pump combined with a radiant floor. The photovoltaic panels disposed on the roof produce the electricity used both for the building and due charging stations for electric cars. In addition, the plumbing system includes a recycling and reuse system for wastewater.
All these solutions will reduce our energy demand and the quantity of material used.

Key objectives for aesthetics and quality

Casso is a medieval settlement dating back to the second half of the XIV century. Like most of the mountain historical villages of Italy, buildings have been taking place following morphology and contour lines of the environment, and terraces have been created by modeling the land to make cultivation easier. Lastly, the limited space available led the population to build narrow and extremely tall residences, leaving a higher amount of space for farming and agricultural purposes.
All of these peculiarities have been taking into account for urban and architectural design.
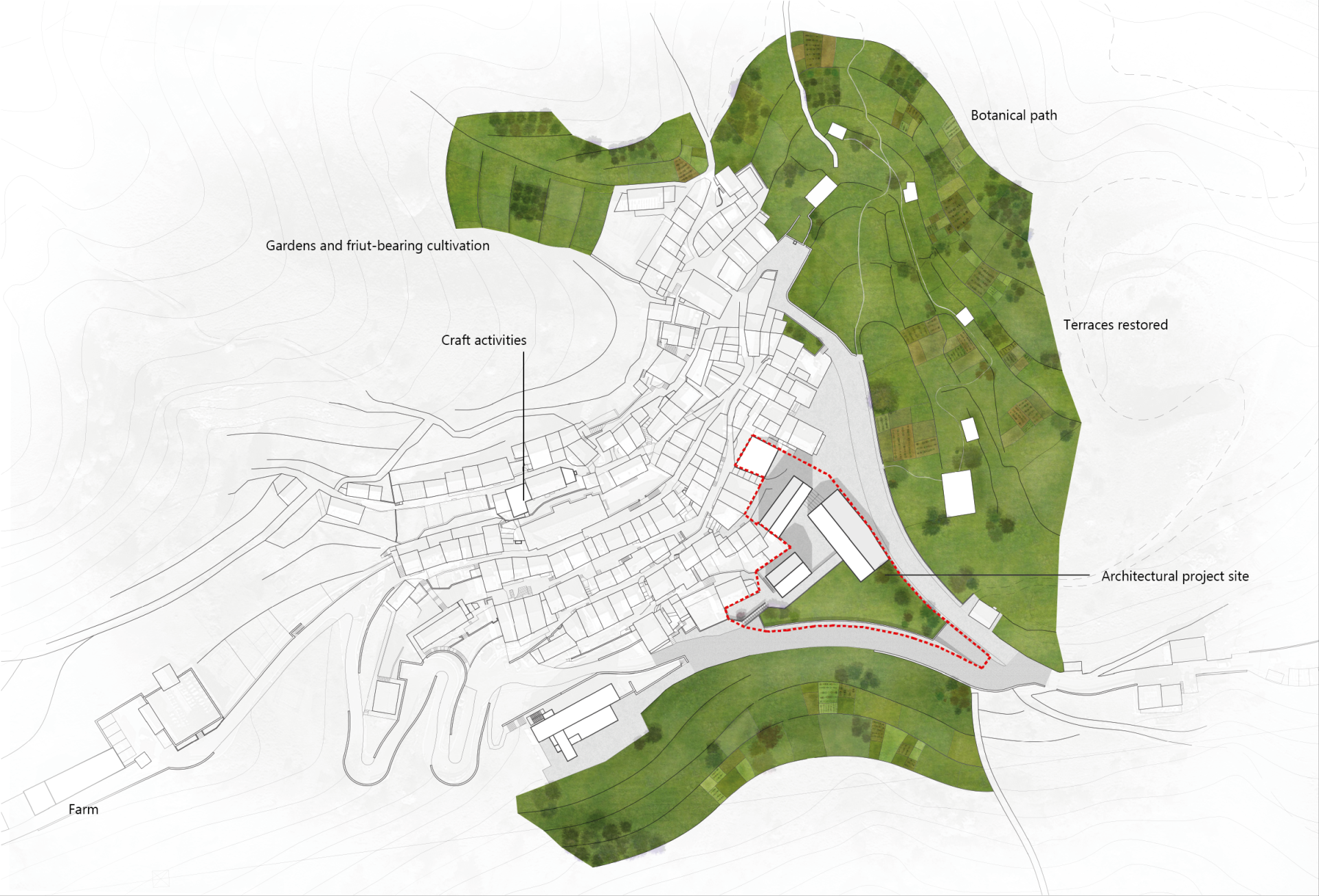
For the first one, the idea is to restore the landscape's quality by fixing the existing walls and creating new gardens and cultivations. A botanical path and some open-air pavilions will enjoy visitors and citizens by showing the immense biodiversity of the Dolomites, an experience that will continuously change with the seasons. In summer, for example, shades and colors of flowers and trees will create an astonishing contrast with the grey-pink stone of mountains and buildings, while in winter, pavilions will emerge from the snow like lonely trees.

On the other side, there are the newly designed buildings. Their position, together with new functions and public spaces, will revitalize a deteriorated area. The articulation of paths and altimetry inside the village will characterize the project by creating six distinct levels, each connected with the other and the settlement in several ways. The experience of crossing the new square and walking between the new constructions will welcome and prepare the visitors to the historical part of the hamlet.
The relation between ancient and current is appreciable also on the textures, the material, and internal distribution of the rooms. It recalls the traditional architecture without copying it, like its natural evolution.

Key objectives for inclusion

The Vajont disaster occurred in 1963, which killed almost two thousand people and destroyed an entire settlement, changed the landscape's morphology and the life of many citizens, like that of the population of Casso. Followed a demographic collapse, with many who decided to relocate, increasing seniority, absence of generational change, and a gradual abandonment of the environment. Fifty-seven years later, that disaster has brought to a growing exclusion of the few remaining citizens, fifteen, from the social and economic life of the country.
The first idea is to reverse this state of things, generating a stronger and more resilient system. The plan elaborated - E-MERGO - works on four different objectives - the tourist attraction, development of research and innovation, regeneration of short supply chains, and strengthen the community - from which descend nine strategies and twenty-five actions. Some of the functions deriving from it will develop the services considered part of the European right of citizenship, such as instruction, internet access, and mobility. Others, like productive activities and research programs, will create a new centrality of the village, which will move from a condition of marginality and dependence to one of social and economic participation. In particular, Casso will attract workers and professionals like universities, professional institutes, artists, and farmers from all around the nation and Europe.
Another level of inclusion is related to the architectural project. Together with the services, the designed public spaces will become a meeting place between the inhabitants and the new figures, generating a stronger community enriched by their diversity. In the long run, Casso will find a new equilibrium with the birth of new generations and the development of commercial, cultural, and tourist relations with the nation and the rest of Europe.

Innovative character

For decades, the Italian's perception of the internal areas was that of a marginal zone, less productive than the flat land. Cities were the core of the country's social, cultural, and economic life, while mountain villages and countryside were places in decline and abandonment.
In the current context, in which there is still a lot of work to do, the idea proposed seeks to join the debate by bringing a new contribution.
The case study individuated, Casso, is not accidental. It is a tiny mountain settlement where I grow up, struck by the Vajont disaster, and still not recover. An event, and its related management, which prevented the growth and development of the village. A place in which today there are only a few services and fifteen inhabitants.
The strategic plan elaborated aims to connect the tradition to the innovation, imagining systematic and interconnected interventions which will create a more powerful and resilient community. Unlike traditional programs, in which each actor works independently, the project E-MERGO follows a precise organization, with some action that has to start first to create a basis for the subsequent ones.
In this innovative view, the disaster moves from being a heavy reminiscence to forget to an opportunity. Casso becomes the national interpreter and disseminator of the past in a new way, based on research and culture. The first will focus on the territory, the management of emergencies, and technological development. Secondly, culture to process and transmit a traumatic event, but even a method to look and carry the tradition in a contemporary approach.
The plan elaborated will then lead to multilevel territorial networks, which will regenerate all the surrounding area and in which Casso becomes a producer of unique and quality services.
In a broader vision, eventually, the E-MERGO project can become a model to regenerate all the internal areas developing a new Italy more connected, inclusive, and sustainable.

Gallery