Skip to main content
European Union logo
New European Bauhaus Prizes

An Iconic Culture Tower

Basic information

Project Title

An Iconic Culture Tower

Full project title

From empty bridge tower to living Culture Tower

Category

Preserved and transformed cultural heritage

Project Description

Can blind people act as servants in a tiny bridge tower? Can concerts be arranged on the balcony of the same tower, from where you once directed the port traffic of the Copenhagen Canal? Yes, in the Culture Tower that is possible

A mechanical representative from the childhood of the port industry has been turned into a non-profit cultural institution. With a few and simple architectural moves the tower has been transformed and it now appears as an iconic tower that connects districts and people

Project Region

Copenhagen K, Denmark

EU Programme or fund

No

Which funds

Other

Other Funds

Realdania "Ildsjæle" 

Description of the project

Summary

The transformation of the bridge tower into a culture tower unites three visions; the first is to recycle an aesthetically convincing but ‘forgotten’ raw material in the shape of an obsolete bridge tower and let it have new functions. The second is to restore the bridge tower as discreetly as possible so that the beautifully patinated materials came into their own. Third, but not least, to invite citizens of all ages and with different talents to unfold in a non-profit cultural institution

Key objectives for sustainability

Sustainability as far as concerns cultural heritage means at least two things: That you recycle the existing structures of the building and that you make use of materials from which the buildings were made. This approach is alpha and omega as it requires the architect to see creative possibilities in the challenges that an old building often contains. Precisely such less is more approach is what characterizes the renovation of the Culture Tower. The ambition was to preserve as much as possible of the original construction and to focus on the possibilities that the very modest space offers.

The bridge tower was built in 1937 and served for decades as part of the port's daily work. For 25 years, however, the tower had been out of order until two fiery souls got the idea to use it for new purposes. The two entered with a design studio and together, over the next 6 years, they received the necessary permits, developed a plan of how the renovation could take place and be financed and, not least, developed ideas on how to exploit the potentials of the tower.

Key objectives for aesthetics and quality

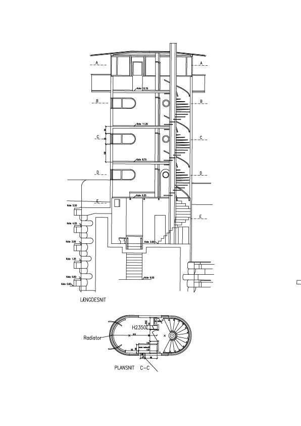
It was the goal of the architect to restore the bridge tower as discreetly as possible. The bridge tower is built in solid, durable materials, which patinate beautifully with age. On the roof and facade it is clad in copper and equipped with a balcony. Inside, it consists of five floors and an iron spiral staircase.

Everything has been recycled and one of the rooms has been restored to its original state. Here the same material has been used as before, namely lacquered 5 mm masonite cladding, and the room is now very aptly called "The Brown Room". The bridge tower has thus been transformed from an empty iconic building in the port of Copenhagen to an aesthetically convincing building that exudes functionality, originality and innovation.

Key objectives for inclusion

The vision was to create an economically sustainable cultural institution through various cultural activities and to invite both citizens and tourists of all ages inside. At the same time, the goal was to utilize the few square meters intensively; this means, for example, that guests are seated with other guest at three common tables, spread over three floors. The idea makers behind the Cultural Tower wanted to create a non-profit institution and keep a price level that allows everyone to join in.

For the architect, the goal was to establish an environment that promotes participation and creates also sensory experiences. Often new ideas and ways of acting arise in unexpected and generous spaces; exactly such spaces as the Culture Tower consists of; they are small and intimate and automatically invite dialogue and getting to know each other.

Results in relation to category

In 2017, the Culture Tower opened its doors to citizens and tourists. Since the opening, many thousands of people from all over the world have visited the new Cultural Tower in order to enjoy the view and the changing exhibitions. They listen to concerts and talks, attend gastronomic events and much more. Despite its modest size - there must be 24 guests at a time - an average of 1,000 people a month have visited the tower.

The Culture Tower is run as a non-profit association with a 10% operating subsidy from the City of Copenhagen. No one can speculate in profit - the only thing that is speculated in is special, intimate and community-creating experiences. So far, numerous tower talks, gastronomic events public concerts as well as a number of events for children; eg Christmas events, have been arranged.

The Bridge Tower has on several occasions been recognized for its contribution to making Copenhagen a beautiful and sustainable capital; this has taken the form of nominations for awards such as ”Lille Arne” (Danish Architects' Association), nominations for the “Danish Design Award”, the “City Plus Award” (Politiken) and the Building Awards Copenhagen Municipality.

How Citizens benefit

The Culture Tower has built a bridge and created value. It connects two separate districts. It is visible from a long distance and, of course, from the canal boats which pass many times a day. When you cross the bridge on foot, you are met by an open door and for a symbolic amount of money you can enter the tower, walk up the staircase to the balcony and enjoy one of the city's best views. The Culture Tower is run by two enthusiasts who are open to ideas and everyone can submit proposals for events - and many have been realized. The ongoing contact with the users is valued and important for the development of offers and events. Among the initiatives are also those that reach out to citizens who often do not have access to cultural institutions; the culture tower has thus held gastronomic evenings where the staff of servants consisted of blind citizens.

From being a forgotten relic from the industrial port, the Culture Tower has become a workplace for two full-time employees, six part-time employees, 15 volunteers and a place to visit around 12,000 Copenhageners and tourists a year.

Innovative character

The project made demands on the interior design and pushed the architect to make a fundamental decision regarding his main approach. It was crucial to preserve the bridge tower as original as possible. The economic opportunities obviously played a significant role and there is no doubt that the 'object' of the work - a bridge tower of very few square meters - in combination with a very modest budget helped to promote innovation and creativity.

Gallery