Skip to main content
European Union logo
New European Bauhaus Prizes

M.A.I.S

Basic information

Project Title

M.A.I.S

Full project title

Work-home dualism in new housing project

Category

Modular, adaptable and mobile living solutions

Project Description

In a scenario based on economic circularity and production, in the area of ​​the former slaughterhouse in Milan, the theme that emerges at first is the one of work and its relationship with the residence. A dualism that is embodied in four types of housing within the same residential complex, thus able to offer a complete and diversified offer to the public.

Project Region

Genova, Italy

EU Programme or fund

No

Description of the project

Summary

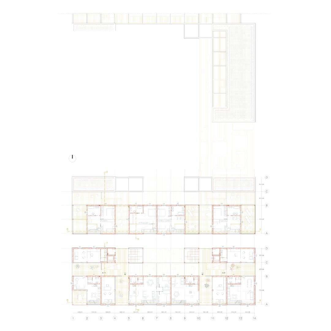
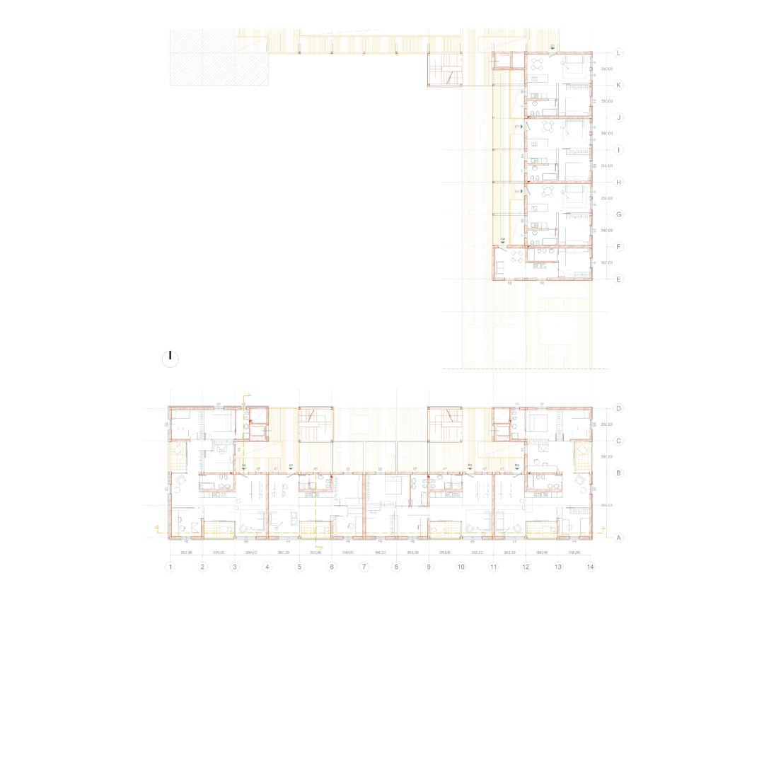
The project consists of a residential building based on the use of the square module (3.5x3.5m) both in plan and elevation. The apartments designed respond to an idea of ​​contemporary living and to an innovative lifestyle as it is increasingly based on the coexistence of living space and work space. Four types of “home-work” have been developed, each corresponding to a different professional category, thus making it possible to achieve the coexistence of a great social/professional diversity within the same building. The use of the square module made it possible to investigate the relationship between the two parts and the related space requirements, combining four very different types of housing, thus ensuring a hierarchy of working spaces for each housing unit. In particular, the types are:

- the lab house consists of two levels, one used as a workshop and the other as a real residence (they are internally connected to each other, but with an independent access each) indicated mainly for craftsmen

- the home office is on a single level and has an integrated room within the apartment for smartworkers

- the atelier house is for freelancers who need a space to receive customers that is independent from the house; this is larger and overlooks a patio shared with the entrance to the house

- the coworking apartments are smaller in size and designed as housing for short periods for workers or freelancers

The building has a C-shape and hides a courtyard inside: the two horizontal bodies follow a common strategy and are entirely dedicated to the apartments, while the vertical connecting body has a public co-working space on the ground floor and on the first floor from which you access an outdoor terrace facing both inwards and towards the street and apartments on the next two levels.

Key objectives for sustainability

Within the spaces of the former slaughterhouse in Milan, the new attractive polarity of MAIS (Memory, Agriculture, Innovation and Sustainability) proposes a scenario based on circularity and green production, through the introduction of agriculture and activities related to this in a circular km0 system: cultivation, production, processing, selling and recycling. An idea of ​​circular economy in which work and its relationship with residence emerges as a fundamental theme. The site is then used to develop new ecological services for the area, to promote a more sustainable lifestyle and consumption habits and to create green jobs.

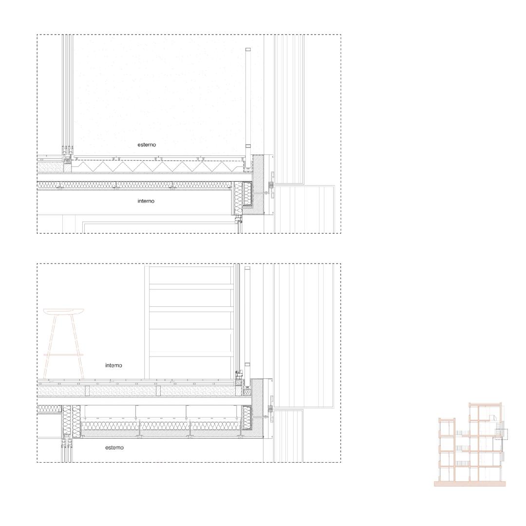
The project, in line with the proposed theme, aims to combine spaces dedicated to work and residence within the same building. Given the presence, for instance on the ground floor, of numerous spaces dedicated to coworking or laboratory activities, we developed a structural scheme to allow the maximum degree of freedom and flexibility for the planimetric articulation. During the project, some alternative construction hypotheses were developed for each subsystem with the aim of identifying the solution with the best sustainability characteristics based on different parameters. Construction materials and techniques have been identified with the aim of minimizing environmental impacts and increasing the level of sustainability of the structure. We decided to adopt dry construction solutions that would guarantee the possibility of complete reversibility and possible future reuse of the materials used. The LCA assessment made it possible to compare their environmental impact in terms of energy and CO2 incorporated, with a particular reference to the production and transport phases, reducing the impact on the ecosystem.

Another important aspect to consider in terms of sustainability is the flexibility of spaces inside units which can be modified according to residents needs and the great offer of typologies within the same building.

Key objectives for aesthetics and quality

The modularity with which the building was conceived made it possible to obtain a certain flexibility as regards the different housing units: it is possible to sell / acquire a module from the adjacent apartments as well as to make the two levels of the laboratory house independent, thus modifying the apartment until reaching a final configuration that we believe to be that of the home-office. In addition to this type of flexibility "over time", a type of flexibility "at time 0" has been studied since the only fixed parts inside the apartments are the service-kitchen blocks while the rest of the space is articulated through wall systems/wardrobes and mobile divisions.

The building was designed considering high-quality spatial characteristics: each apartment has an external space of relevance as well as the common courtyard within the complex. Furthermore, the greenhouse that completes the residential complex was designed as a space dedicated to residents with the aim of offering a common experience of cultivation and maintenance of the green, increasing the opportunities for workers to carry out a common project and to take part to the production and consumption cycle of the system in which the building stands. The use of the square module has given rise to a modular building also in elevation; to the south elevation it has been treated with a thin micro-perforated aluminum sheet coating capable of creating different effects with what is behind it: a window, a loggia or a terrace. Furthermore, in correspondence with the basement, this cladding changes pace, generating an aesthetic effect that allows you to identify the most public part of the building, where the craft shops are.

Key objectives for inclusion

From the point of view of inclusion, the project represents a rather successful example: the fact of proposing different solutions for most professional categories means that a heterogeneous community of people is created and live in the same place, promoting a life based on different experiences, including the commitment in the maintenance and cultivation of the common greenhouse/orchards or getting engaged in the sustainable lifestyle of the M.A.I.S. project. Furthermore, the position within the attractive pole of the M.A.I.S. it allows you to interact with all the active parts of the system, the workers of the agricultural fields, but also the young people and children involved in the educational workshops and in the museum. In this way, people and residents could meet in a human-scaled place where everyone does their part, building a common sense of identity and strengthening the comunity's role in this urban regeneration project.

Innovative character

The innovative character of the project lies in the fact that in the design of residences, we are no longer considering only relating to “inhabiting”, but more generally to living and to one of man's primary needs: working. Thanks to the historical era in which we find ourselves, it would have been unrealistic not to think of an important factor like this, so that the working space becomes an integral part of the residence which is then declined into several typologies in order to satisfy a wider request, thus creating a variety of apartments within the same building. Another interesting aspect is the flexibility of the spaces, which, conceived as modules, can be given or acquired, increasing or decreasing the capacities of the units.

Gallery