Skip to main content
European Union logo
New European Bauhaus Prizes

Modulovita, mobile healtcare

Basic information

Project Title

Modulovita, mobile healtcare

Full project title

Transportable modular unit, quick to install and reclosable, for the construction of safe buildings

Category

Modular, adaptable and mobile living solutions

Project Description

Modulovita is a response to exceptional events and was developed to deal with emergency situations. It is an adaptable and anti-seismic system, suitable for multiple applications, such as health care facilities, temporary schools, post-earthquake housing modules, peacekeeping. It allows customizable configurations on specific needs. It can be installed promptly and is also suitable in difficult contexts or with an unfavorable climate.

Project Region

Vibo Valentia, Italy

EU Programme or fund

No

Description of the project

Summary

Modulovita is a response to exceptional events and is developed for interventation in emergency situations. It is an adaptable and anti-seismic system, suitable for multiple applications, such as health care facilities, temporary schools, post-earthquake housing modules, peacekeeping. It allows customizable configurations on specific needs. It can be installed promptly and is also suitable in difficult contexts or with an unfavorable climate.

Installation is quick and easy. Assembly requires only a small crane and a ground operator. The operations are completed in a few minutes without using tools. The union of the units takes place with lever clamps positioned internally in several points. The support feet allow adjustment to achieve perfect leveling.

 

Key objectives for sustainability

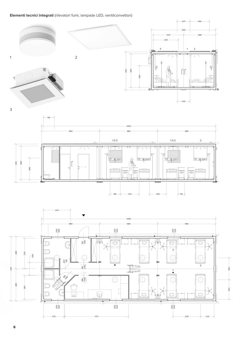
This is an eco-box solution. The technological equipment includes a series of integrated solutions designed to ensure energy self-sufficiency, contain polluting emissions and improve environmental performance, through: LED lighting, innovative air conditioning systems, photovoltaic modules, thermal insulation, recovery and reuse systems. rainwater, integrated systems for aeration and hospital ventilation.

The practicality of the system is the key point of the design development. The focus is on killing transport costs, which are reduced by 2/3. It is possible to fully compact the volume, eliminating the air gaps. This reduces emissions from truck transport. To create the volume in the images with conventional boxes, 3 truck transports are required (2 boxes per trailer), while with Modulovita only one is needed. The articulated parts facilitate assembly.

The materials are recyclable. The structure is in steel, while the casing can be made with wood-type technologies

Key objectives for aesthetics and quality

The aesthetic quality is particularly accurate and conveys essentiality and modernity. All spaces are fully accessible for wheelchair users. Furthermore, with the interposition of other central modules, it is possible to create spaces of greater length. With this system it is possible to build houses, pavilions, exhibitors, reception centers, medical units, living solutions, schools and much more.

 

In the images, Modulovita is used as a support hospital with 7 beds, double toilets with showers and a medical room.

 

Key objectives for inclusion

ModuloVita is a housing system designed to be at the service of people. It can be essential for their safety in emergency situations. The adaptability makes it particularly suitable for the purposes of sociability and inclusion.

Innovative character

The solution is an adaptable and closable system that has several benefits: it allows significant economic savings, timeliness in installation, benefits for the environment, well-being and climatic comfort of the occupants. It is extremely easy to assemble and is extremely rigid. The modularity allows to couple many elements to create spaces of different sizes.

 

Gallery