Skip to main content
European Union logo
New European Bauhaus Prizes

Villa Rohan

Basic information

Project Title

Villa Rohan

Full project title

Conversion of a former office building into a residential building

Category

Buildings renovated in a spirit of circularity

Project Description

Located in Bordeaux, the Villa Rohan is an exemplary transformation of a former office building into a residential building. Refurbishing this building from the 80s appeared to be more appropriate than demolishing it, in view of its undeniable volumetric, spatial, and structural qualities. This strategy also enabled to keep the business operating on the ground floor. The Villa Rohan demonstrates how relevant and replicable the refurbishment and the change of use of a building can be.

Project Region

Bordeaux, France

EU Programme or fund

No

Description of the project

Summary

Whereas the old Bordeaux, known as the « stone city » is characterized by a unique construction material, continuous facades, and an overall perception of consistency, the Meriadeck neighborhood is an exemplary testimony of the urban planning of the modern era: separated flows of pedestrians and cars, stand-alone buildings on slabs, etc. Built in 1981 on the cours d’Albret, the Rohan building is located precisely at the interface of these two urban fabrics, and underlines the contrast between the urban and architectural forms. The original building was composed of a plinth aligned on the street, with a small stand-alone concrete volume built on top.

Refurbishing this building from the 80s was a technical tour de force but keeping the original structure was more relevant and profitable than demolishing it, in view of its undeniable volumetric, spatial, and structural qualities. Generally speaking, we are convinced that what exists should be enhanced and developed according to needs rather than systematically being demolished and replaced, in an ever faster cycle. In addition, the structures built in the 70s and 80s includes frameworks that are flexible and with a great potential.

The aims in terms of uses were simple: preserving the plinth and its businesses operating on the ground floor, incl. during the construction works, converting the office floors into flats which are larger than current standards, due to the exceptional location of the site, a stone’s throw from the historic city centre.

The future tenants were known at an early stage, which enabled to finely adapt each flat (fittings, finishes) to the needs of each household. For example, a lift was installed in a penthouse to facilitate the daily life of a person with reduced mobility.

Key objectives for sustainability

objectives

  • reuse and upgrade
  • limitate waste
  • improve the building energy performance
  • low tech approach
  • locally sourced construction material

Means

  • Central heating with cooling slab (gain of 2-3°C)
  • Double-sided flats to promote natural ventilation and cooling
  • Ventilated double skin facade
  • High performance external insulation (thickness: 28cm)
  • Limitation of thermal bridges
  • Solar protection thanks to the slabs of the loggias
  • locally sourced marble

Key objectives for aesthetics and quality

objectives

  • Large appartements fitting different household structures
  • Adapt scale and atmosphere
  • Flexibility for the apartments
  • Contextual approach

Means and achievements

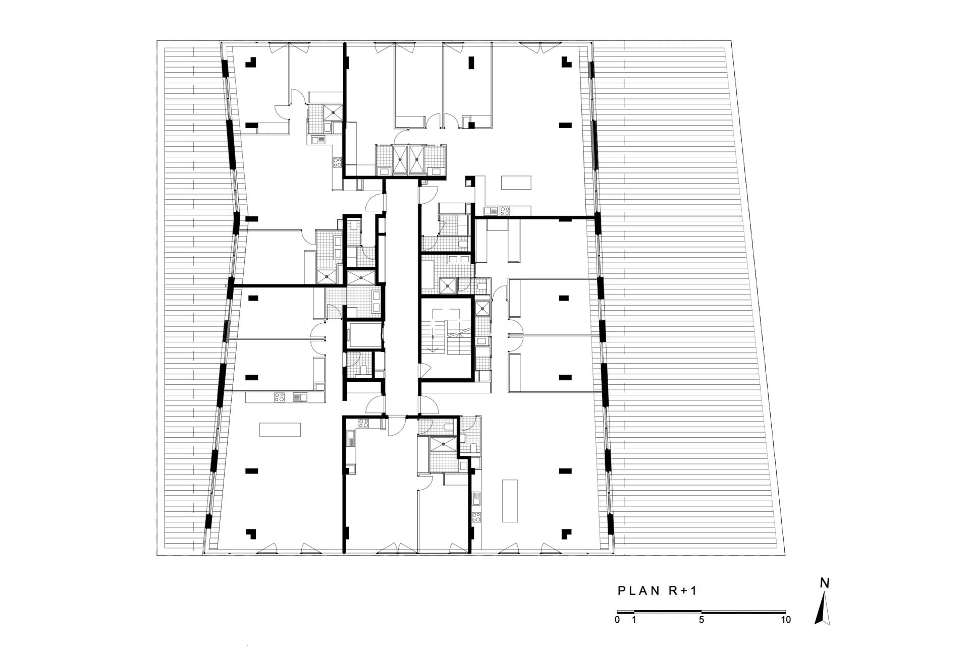
In view of the exceptional location of the building, a stone’s throw from the historic city centre, the client wanted to develop luxury apartments which sizes exceeded the current standards (3-bedroom apartment is 70-80m2, 5-bedroom is 190m2, 6-bedroom is 220m2).

The main challenge was to adapt the scale and the aesthetics of the former office building to the new uses, and confer a domestic atmosphere.

The original framework guided the extension and contributes to the image of the building, thanks to the exo skeleton which structures the facades.

The original building was very deep which was not suitable for residential schemes. The constraint was overcome by placing the servicing areas in the center and the main rooms nearby the facades to bring more light and a direct contact with outside. The generous loggias naturally extend the living spaces to the outside. The transparent railings create see-throughs.

The regular bearing structure gives flexibility, enabling the layout to evolve according to the needs (partitioning or de-partitioning).

The composition (plinth and upper volume) is underlined by the material. The shades of the metal and marble claddings were chosen accordingly. The marble echoes to the traditional mineral facades in Bordeaux, whereas the metal cladding adds a more contemporary touch.

Key objectives for inclusion

objectives

  • Large appartements fitting different household structures
  • Kids friendly apartments
  • Apartment for impaired person
  • Flexibility for the apartments

Means and achievements

  • The very large surfaces of the housing units and the variety of types enable to accommodate different households.
  • The loggias offer to kids open-air playgrounds, which are protected from the sun.
  • The future tenants were known at an early stage, which enables to finely adapt each flat (fittings, finishes) to the needs of each household. For example, a lift was installed in a penthouse to facilitate the daily life of a person with reduced mobility.

Results in relation to category

objectives

  • Creative reuse and tailored-made approach
  • Enhancement of the existing
  • Accessibility (families, impaired people)
  • business-friendly approach

Means and achievements

  • Preservation of existing ressources and enhancement of the aesthetic, technical, spatial... qualities
  • Clever use of the original framework to create additional surfaces and assign a new image to the building
  • The facades reveal the original framework and its aesthetic qualities
  • The businesses located in the plinth were kept and could operate during the construction works

How Citizens benefit

  • The future tenants were known at an early stage, which enabled to finely adapt each flat (fittings, finishes) to the needs of each household.
  • The flats are very generous in terms of size and exterior spaces, accommodating a large variety of households.
  • the businesses located in the plinth were kept and could operate during the construction works

Innovative character

  • Preservation and enhancement of existing resources
  • Enhancement of the identity and intrinsic qualities
  • change of use: conversion of an office building into a residential scheme
  • Profitable operation

Gallery