Skip to main content
European Union logo
New European Bauhaus Prizes

Porto di Mare Eco-District (Milan)

Basic information

Project Title

Porto di Mare Eco-District (Milan)

Full project title

Porto di Mare Eco-District: multi-layered modelling and Food District&Transportation Hub design

Category

Regenerated urban and rural spaces

Project Description

Is it possible to combine economic, social and environmental aspects in a sustainable urban regeneration process? How can algorithms and modelling strategies match and satisfy community needs? Porto di Mare Eco-District project combines a multi-scale design, focused on a bottom-up holistic approach, acting on people and transforming users into more sensible agents. The outcome is a replicable approach for similar urban rural contexts, to be used at 360-degrees.

Project Region

Seregno, Italy

EU Programme or fund

No

Description of the project

Summary

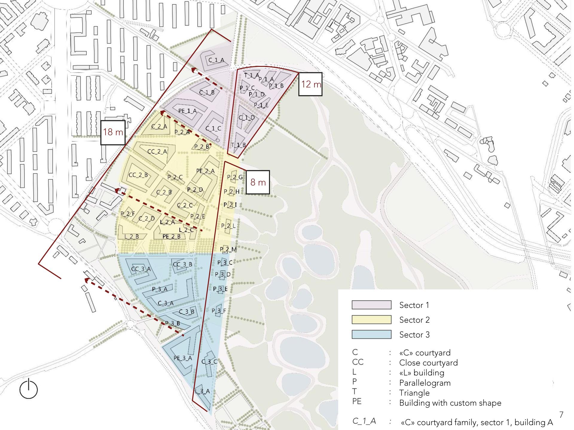
The study case area of Porto di Mare is located on the south-eastern border of Milan, bounded by important infrastructures, between the city center and the rural belt surrounding the city. The key objective of the project is to reconnect the metropolitan area with the adjoining countryside, through the creation of a district planned at a human scale. Here the community can live in a “15 minutes” format, which means having almost all the possible services (public transports, jobs, food, recreation, green spaces, etc.) at a 15-minute walking distance. 

The proposal of an Eco-District is an opportunity to demonstrate the potential implications of a sustainable regeneration process on territorial low-carbon energy planning strategies, with a significant impact on a larger part of the city. On the one hand, there is the need to limit soil consumption and urbanization rates, whereas on the other hand, the presence of slums and brownfields within formal urban contexts compromises the living conditions in the neighboring areas.  

Given the complexity of the topic, a holistic, multi-scale and multi-disciplinary approach is required. Through Integrated Modification Methodology (IMM) and parametric BIM tools analysis of the area, different strategies have been identified for both the district as a whole and the singular building that composes it. Once the main common strategies were identified, the project focuses on the Food District and Transportation Hub, the modern piazza where people from both inside and outside of the neighborhood can meet and exchange food, knowledge and cultures. 

Key objectives for sustainability

Porto di Mare aims to become a self-sufficient Eco-District where residents can easily find all the commodities, from groceries, to schools, to sport facilities, to the metro station which connects directly to the city center, without having to use a car.

The masterplan has been developed through a parametrical application of IMM methodology. Conceived at Politecnico di Milano, IMM considers cities as Complex Adaptive Systems (CAS) consisting of different interacting subsystems: environmental, economic, social and cultural ones.In order to meet strict environmental requirements, the masterplan was submitted to a local optimization to assess the impact of smaller-scale design decisions to the overall design layout. The main performance indicators considered are Energy Use Intensity (EUI), solar radiation on south-oriented surfaces, potential production of renewable energy from roof-mounted photovoltaic panels and solar radiation on the ground.

Through an iterative multi-stage and multi-layer process, based on the dynamic synergies between a proprietary BIM software and its visual programming plug-in, managed via an algorithm developed by the authors, energy analysis was performed since the early stage of design, using a combination of key factors such as building height, orientation and footprint, surface and volume ratio, shadings and PV panels, road dimensions, roof slope, average U value of the building envelope and window-to-wall ratio (WWR). As a result, 3 plausible low carbon Gross Floor Area (GFA) options have been identified in order to better match the Eco-District purposes and the institutional planning outlook. 

Finally, a micro-optimization via the multi-layered modelling process has been applied at a smaller scale during the study of the Food District and Transportation Hub.The final goal was to identify a replicable approach for similar problems and contexts.

Key objectives for aesthetics and quality

Along with functionality and energy efficiency, it was essential to consider the necessity of a pleasingly aesthetic and comfortable environment for a district where many different cultures would establish and coexist. It was important for them to feel at home.

The masterplan was developed to give architectural consistency to all the hints and advice coming from the diagnostic activity. Porto di Mare is located on the south-eastern border of the city of Milan, bounded by important infrastructures, between the city center and the rural belt surrounding the Milanese metropolitan area. It was important therefore to maintain the sense of progression from countryside to metropolitan area, through a gradual increase of the buildings’ geometric characteristics: building heights would progressively increase from the countryside to the city; roads shouldn’t be neither too narrow nor too large and progressively increase in dimensions from the countryside to the city center; vegetation should be present in a good quantity. 

Furthermore, design principles were based on energy related aspects: roads should be sunny during winter and shaded during summer; south facades should be exposed to sun in winter and mid-seasons and shaded in summer; building heights, roof slopes and window-to-wall ratios should be taken into consideration. Finally, the Food District and Transportation Hub was thought as a place of encounter and exchange, where citizens are invited to enter and encounter different people. The green building slope seems as if the countryside has lifted to create a shelter, and the glass façade creates permeability between inside spaces and outside areas. The building’s orientation and height make it recognizable but not overwhelming, and from the green roof it is possible to see the countryside on one side and the urbanized city on the other.

Key objectives for inclusion

Inclusion was one of the strongest objectives of the project because of the current situation of the case study area. 

Porto di Mare district is nowadays classified as an Urban Transformation Area (ATU 15, PGT Milan 2030) and it is included into the Europan 12 competition. Although the entire area was subject to important guidelines concerning the urban arrangement of Milan since the end of the 19th century, today it is characterized by physical and sociological degradation, abusive settlements and abandonment. However, this area presents a multi-ethnic society with the coexistence of different cultures and traditions potentially ready for a bottom-up approach acting on people and transforming users into more sensible agents.  

To achieve these goals, an integrated proposal for an Eco-District has been elaborated in accordance with both public and private partners (such as Milano Depur S.p.a. – Depuratore Milano Nosedo; REsilienceLAB; Gruppo Ecologisti Est Milano – GREEM; Wageningen University and Research – WUR and many others). The outcome is a masterplan that dialogues with the existing Mazzini neighborhood and promotes social and urban inclusion. The existing metro stop has been integrated into an interchange hub, encouraging soft mobility solutions for a car-free district. A natural green corridor traversing the public park Cassini connects the city to the countryside, permitting a new outdoor experience. 

Moreover, the Food District and Transportation Hub are designed to gravitate toward the idea of the Market, historically a symbol of trades and exchanges. Furthermore, due to its strong connection with the rural system of the Southern Agricultural Park, the complex hopes to serve as an incubator, as well as a place where citizens may gather, serving as the joining link between old and new. 

Innovative character

The innovative character is the multi-layered modelling approach used. Based on a dynamic control of design parameters through specific tools, it provides precious insights for the designers even while working on building masses at an intermediate design stage, showing a possible replicable approach for similar contexts. 

The case study area is characterized by an unexpressed potential. A full integration of the infrastructural systems (mobility, building, green-blue infrastructure, physical flows of energy, water and waste) was investigated for a sustainable urban regeneration to design an eco-district, an intermediate scale capable of influencing actively the overall urban system. 

Diagnostic activity of the area was carried out by Integrated Modification Methodology (IMM) application. It analyses the correlation between urban structure and environmental performance through a set of indicators aligned with the 17 UN Sustainable Development Goals (SDGs) for 2030. The results led to the eco-district masterplan developed engaging local stakeholders and defined through two international workshops in collaboration with the University of Cincinnati and the Wageningen University and Research.  

The modelling strategy was applied to assess the impact of smaller-scale design decisions, regarding typological aspects, such as the roof shape, but also micro-modifications to the overall design layout and even technological choices. The definition of optimal Gross Floor Area (GFA) scenarios according with Milan Territorial Government Plan (PGT), the evaluation of environmental performances of the district and the comparison of alternative building layouts for a city-to-countryside urban transition were deeply investigated trough BIM parametric design tools.  

Finally, outcomes are summarized in an integrated design of a Food district and Transportation Hub located in between the existing neighborhood and the new eco-district. 

Gallery