Skip to main content
European Union logo
New European Bauhaus Prizes

Advanced technologies and nature

Basic information

Project Title

Advanced technologies and nature

Full project title

Quality Education within Natuaral Environment and Advanced Technologies

Category

Reconnecting with nature

Project Description

Sustainable development witin the context of technological skills is the foundation of beauty and aesthetic connection acquired during the learning process by considering social inclusion, equal opportunities with emphasis on the amphitheater classroom surrounded by flora will quickly adapt students and teachers to the technological environment, which will give a new perspective on the natural and exact sciences.

Geographical Scope

Local

Project Region

Sofia, Bankya, Bulgaria

Urban or rural issues

Mainly urban

Physical or other transformations

It refers to a physical transformation of the built environment (hard investment)

EU Programme or fund

No

Which funds

ERDF : European Regional Development Fund

Description of the project

Summary

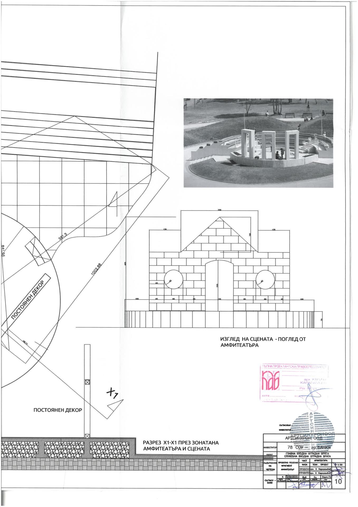
This project incorporates and follows the concepts of the 21st century, especially regarding sustainability, aesthetics and inclusion. We have developed a project aimed at creating a modern amphitheater stage (hereinafter referred to as an outdoor classroom). The focus of the project is on synchronizing the learning process, within these three values ​​- sustainability, aesthetics, and inclusion. The key idea of ​​the project is to teach students in such an open space.

Most recently, at our school was successfully implemented a modern STEM center project. The idea is to combine modern digital technologies used in STEM training environment as closely as possible to nature.

In this way we will give students the opportunity to develop their knowledge in a sustainable environment based on modern digital technologies, in an aesthetically elegant and natural environment. The environment allows equal opportunities for students and teachers to interact. Teamwork helps students to overcome their barriers to learning, encourages their active participation and stimulates their sensory-creative activity. The outsourced is characterized by a stable physical structure, combining the organization of external and internal space and their relationship. Innovative technologies invariably accompany the daily lives of adolescents. The contact they make in the natural and ecological environment is made with the help of technology.

The modern technologies used in the education of the students will be held in the newly established STEM center, performed outdoors. The focus will be at the connection between technology and nature in its diverse richness within the flora and the fauna that shape the outdoor classroom. The amphitheater vision of the green classroom will also contribute to the creation of a different learning reality. A reality in which students will enrich their perceptions and ideas, will make comparisons and conclusions.

Key objectives for sustainability

Sustainable development in the long run refers to the context of technological skills teachers and students possess, which happened to be the foundation of beauty and aesthetic connection acquired during the learning process. As a result, it is considered to be the final product, within the emphasis on social inclusion, which is the main goal of this project.The use of technological products in learning activities will help students successfully overcome inclusion barriers, increase their motivation regardless of the learning environment. Within a physical or digital environment, what matters is students to participate actively. The amphitheater reality surrounded by flora will quickly adapt students and teachers to the technological environment, which will give a new perspective on the natural and exact sciences. In the long run, students will acquire the necessary knowledge and skills to help them be successful in their future jobs.

Learning outdoors in a natural environment will encourage learning through creativity and the creation of innovative solutions to existing problems in our environment. As a result, the amphitheater reality will provide an opportunity to exchange good practices with educational institutions in the region and the whole community. These activities are planned to be performed all year-round.Appropriately, in accordance with the quality criteria, we envisage the following steps, to be implemented after the start of the project, within 5 months.

-Construction - planned modernization, installation and construction activities, including electrical and plumbing installations.

- Provided cconnection with the STEM center

- Installation and opening of the amphitheater stage

- Promoting innovation among the local school community

- Schedule planning and gradual inclusion of all classes from primary, junior high school and high school stages of education

- Promoting the school network to share innovation and provide opportunities in use

Key objectives for aesthetics and quality

AESTHETICS AND QUALITY OF EXPERIENCE OUTSIDE FUNCTIONALITY is seen as aesthetics in communication, highlighted as one of the key goals. The construction of the outdoor classroom in a natural conditions provides an ecosystem, in the context of the city, the flora around the amphitheater, clean air and sunshine are conditions for creative activities that will allow each student to feel part of a team. The training courses and implemented professions are with regard to science, technology and ecology. It is important for teachers to create favorable conditions for identifying students' abilities and help them develop successfully.

The outdoor classroom can host virtual tours, initiate conversations, dispute resolution, theater performances, musical evenings, discos, meetings with cultural celebrities. These activities correspond to the goals of aesthetic education, which is not limited to introduction of art. Students should be able to notice the beauty in everyday life, as well as in nature, community service or specific project work. The aesthetics of communication is formed daily and actively, including through the culture of expression of feelings, respect for the society members and expressiveness.

In the perfect case, teachers and parents should be able to develop a cultural personality out of each student, and make him capable of deeper feelings of beauty which is necessary in order to grasp the art of living. The described person above shall be characterized by high spirituality, that lead to creative attitude. Solving the problems of aesthetic education, special attention should be paid to free thinking in respect to student and their desires to create beauty around themselves. Only then they will be able to successfully fit into modern society and benefit from it.

Key objectives for inclusion

Accessibility, inclusion and equal opportunities are the main goals of our innovative project. Our mission is to ensure equal access and inclusion of students according to their abilities and needs. There are good practices in this direction at school, but there is inevitably more to be desired. Our goal is to create conditions and open the space for further development. Each student is a unique individual who desires something different. The teaching stuff should be able to find the appropriate and effective approach to each student. The diversity in the classroom poses a great challenge in front of the teaching staff and makes their task to cope with students and give them that bit of information which they really need sometimes difficult. Our innovative classroom will support and enable students and teachers to achieve their common goals, transmit-receive learning materials and information in an accessible way, accomplish effective interaction and strive for better education system. The opportunity to conduct classes on the stage will ensure equality of all students, who will be able to realize and upgrade their knowledge and competencies, immersed in a different environment and rationally using their guts and senses.

Physical or other transformations

It refers to a physical transformation of the built environment (hard investment)

Innovative character

Our main mission is to combine the three goals successfully in order to achieve maximum results. Our experience shows that the creation of a more informal learning environment makes it possible to remove barriers among individual students and at teacher-student level as well. This contributes to greater freedom of the individual and greater receptivity of the processes that take place around us.

The aesthetic atmosphere, as well as the prerequisites for its frequent engagement with different arts in the learning process will contribute to the creation of a worldview that is not focused solely on the practical solution of a particular problem, but rather focused on emotional aspects of the solutions, namely the care of the world around us and the preservation of its beauty. Better absorption of knowledge in such atmosphere in the future will lead to the "creation" of better professionals in specific fields, which will take into account the purely emotional aspects of their work. In this way, they will contribute to the achievement of sustainable development in every aspect and field areas.

Gallery