Skip to main content
European Union logo
New European Bauhaus Prizes

Ilse Wallentin Haus BOKU Vienna

Basic information

Project Title

Ilse Wallentin Haus BOKU Vienna

Full project title

Digitized timber construction - library and seminar centre BOKU Vienna

Category

Shaping a circular industrial ecosystem and supporting life-cycle thinking

Project Description

The campus of the University of Natural Resources and Life Sciences (BOKU) in Vienna was extended by a timber construction with 3000m² of usable floor area. The open entrance level and the public terrace create a communicative interface for students and faculty members from surrounding buildings. In addition to the atmospheric qualities of the wood surfaces, the high proportion of daylight contributes to a pleasant learning and working environment. The support structure becomes a design element.

Geographical Scope

National

Project Region

Vienna, Austria

Urban or rural issues

Mainly urban

Physical or other transformations

It refers to a physical transformation of the built environment (hard investment)

EU Programme or fund

No

Which funds

ERDF : European Regional Development Fund

Description of the project

Summary

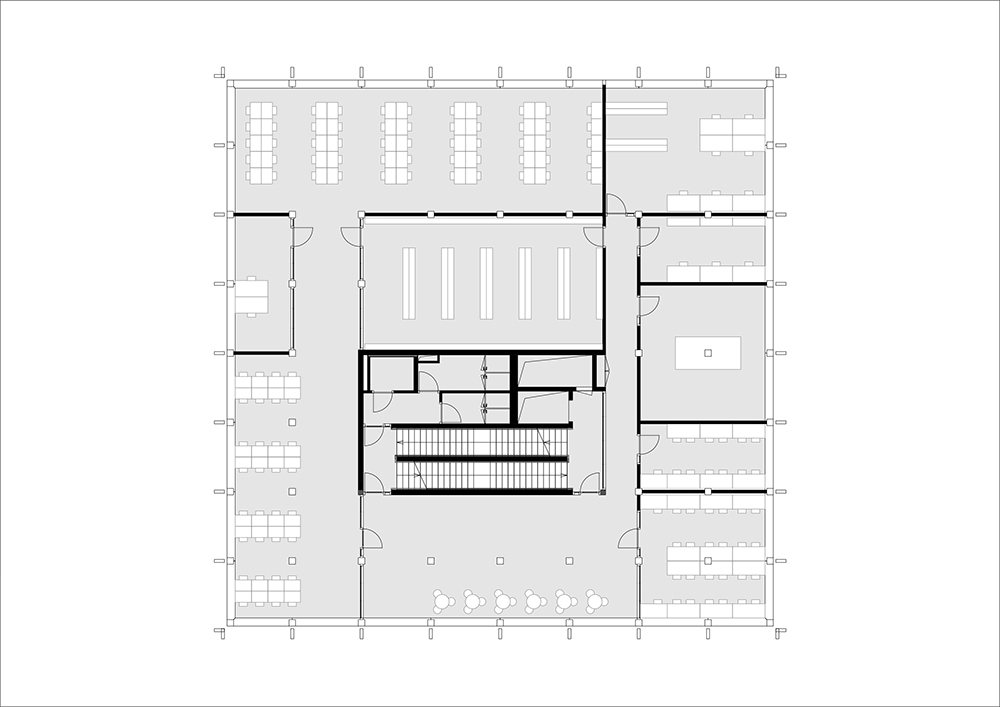
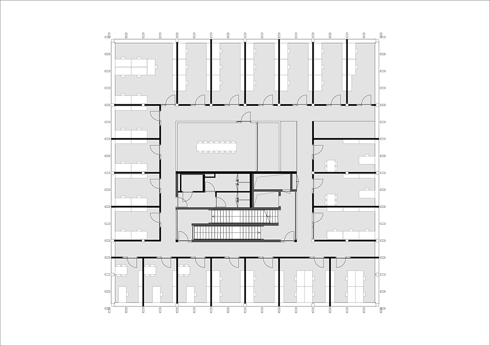
The campus of the University of Natural Resources and Life Sciences (BOKU) in Vienna was extended by a timber construction with 3,000 m² of usable floor area. The open entrance level and the public terrace create a communicative interface for students and faculty members from surrounding buildings. In addition to the atmospheric qualities of the wood surfaces, the high proportion of daylight contributes to a pleasant learning and working environment. The appearance of the building is characterized by its timber skeleton construction. The façade grid of untreated larch is continued in the interior of the entrance level and the library as structural grid of the ceiling. The support structure becomes a design element. Full-height glazing creates a dialogue between the interior and the surroundings. During the warm season individual glass elements can be opened to the terrace, thereby creating a meeting place for students. The four-story wooden structure was constructed from prefabricated cross-laminated timber elements. The base, which is partially underground, and the stairwell are made of reinforced concrete. Public and highly frequented rooms are situated on the lower levels. The two large seminar rooms on the entrance level can be joined and opened towards the foyer to provide a large space for events. The learning spaces in the library, as well as the seminar rooms below, are orientated to the park with its dense vegetation. The departments are on the top two levels. Modern digital technologies were used for planning and construction. The building has been recognized for its sustainable design. It scored 965 out of 1000 possible points of the Austrian klimaaktiv building standard and was thus award the gold certificate. In addition to the climate-neutral construction materials, the compactness of the building and its positive effect on energy efficiency was applauded.

Key objectives for sustainability

The BOKU is a university with extraordinary growth rates in student enrollment, which meant that the previous space available was no longer sufficient and alternative locations had to be found. The extension of the university campus with the new timber building eliminates inner-city routes and reduces the volume of traffic.

The short construction time of 14 months was positive for the immediate neighbours. The timber structure was erected in just 6 weeks, partially due to the digital tools used and to the high degree of prefabrication. Due to the advantages of the timber construction method (no formwork, no drying times), it was possible to work on the façade and on interior fittings on the ground floor, while still completing the timber construction on the upper floors.

On the four floors above ground, 78 percent of the material used is wood. Approximately 1000 m³ of wood was used for construction in the form of glued laminated timber for supports and beams, and cross laminated timber panels for the ceilings. Thus, the new wooden building binds approx. 1000 tonnes of CO2 in the long term, while at the same time new trees can grow in the Austrian forests, which in turn actively remove CO2 from the air. Thus, taking into account CO2-intensive materials such as concrete and construction activities. Overall, the construction of the project is CO2 neutral. With the accompanying product testing and approval, only products and materials in accordance with the Austrian klimaaktiv building standard were used. The heating requirement is 21.5 kWh/m²a, the energy requirements correspond to that of a low-energy house. The building is heated with district heating and a heating-cooling floor screed provides a comfortable heat output. The seminar centre and the library are equipped with mechanical ventilation, which can also control humidity. External shading is a passive measure to prevent overheating in summer, while the cooling of the floor screed is an active measure.

Key objectives for aesthetics and quality

One of the main motives of the design was to embed the building in and open the building to the surrounding green space and to make the clear timber construction legible.

The plinth creates a raised square on which the wooden building with its four storeys high is placed. The square and entrance level connect the new construction to an existing building. The immediate surroundings are characterised by the green park of a senior citizens' residence in the north, and by the tree population of the Döblinger cemetery. The location and neighbourhood offer the best conditions for a natural, quiet learning environment. Floor-to-ceiling glazing creates a dialogue between the interior and the surroundings, and the lively university life can be seen from the outside. The building with its untreated larch façade forms a clear address on the campus and reflects the university's subject "for sustainability and life" with its climate-friendly construction. Depending on the season, the raised space can be used as a terrace or meeting place.

The construction grid is legible both in the façade division and especially with the grid ceilings in the interior, giving the building its distinctive character. Well-being and closeness to nature are enhanced by the use of wood, while the quiet location and views of nature increase the quality of the student learning environment. The design concept is designed to make the construction and technology visible, so ventilation ducts and cable trays are installed visibly, and concrete walls in the staircase core and base storey are exposed. Functionally, the building offers students and teachers a high degree of flexibility in use. The range of seminar rooms of various sizes, user rooms and quiet study areas is complemented by informal zones such as the library lounge, the meeting zones or the furnished terrace. Circumferential seating parapets offers additional space, electricity and network connections included.

Key objectives for inclusion

The Ilse Wallentin Haus aimed to become a university building for all. The campus was expanded and the new building is connected to an existing building. It was designed according to Universal Design specifications and complies with ÖNORM B 1600. Access is via a ramp and is barrier-free. The integration into the neighbouring green space allows for a quiet location and views of nature, and the quality of the student learning environment is enhanced. A dialogue between inside and outside is created. The department levels should have a feel-good character for all staff while working. The appropriation of the rooms by the users is given above all in the individual design of the seating parapets. The new wooden building offers differentiated, quality-designed recreational areas inside and outside. A small canteen kiosk and a student-organised marketplace for sustainable food provide the necessary infrastructure. The large terrace is used in summer as a lounge area by students and teachers at the same time. The furniture for the outdoor area was designed and co-developed in a separate student competition. The aesthetics and openness of the building with its clear wooden construction emanates a universal and timeless design. Well-being and closeness to nature are enhanced by the use of wood. All participants were involved on an ongoing basis as early as the planning stage. Everyone was in close contact and there was continuous coordination based on the 3D model, partly also through the use of VR glasses. Through this lively, intensive exchange, suggestions, wishes and concerns could be discussed and implemented immediately. For everyone involved, there was a high level of acceptance and identification with the new building right from the start. The short construction time of 14 months was also positive for the immediate neighbours. The wooden structure was built in only 6 weeks, not least because of the digital tools used and the high degree of prefabrication.

Results in relation to category

The approach of SWAP Architecture is to pursue a climate-friendly construction method. In the construction industry in particular, many raw materials are used, and the idea of sustainability often plays no role. SWAP wants to change this and pursues the goal of selecting and using raw materials in projects with the best knowledge and conscience. In recent years, the focus has therefore increasingly been on timber construction projects. Wood is a natural raw material that also binds CO2, and at the same time new trees grow in the managed forests, which in turn actively remove CO2 from the air. The wood content of the Ilse Wallentin House is 78 percent. Taking into account CO2-intensive materials such as concrete and construction activities, the construction of the project is CO2 neutral in the end. With the accompanying product testing and approval, only products and materials in accordance with the Austrian klimaaktiv catalogue of criteria were used.

Another advantage is that due to the high degree of prefabrication of the timber components, the construction time of timber projects is many times less than when other building materials are used. The timber shell of the Ilse Wallentin House was erected in only 6 weeks.

How Citizens benefit

There were clear specifications for its use. The Ilse Wallentin Haus is a university building and contains a library, reading room, seminar rooms, institute rooms and communal areas. All these functions had to be taken into account in the planning and construction. All participants were involved on an ongoing basis as early as the planning stage. Everyone was in close contact and exchange and there was continuous coordination based on the 3D model, partly also through the use of VR glasses. This lively, intensive exchange meant that suggestions, wishes and concerns could be discussed or implemented immediately. This ensured a high level of acceptance and identification with the new building for everyone involved right from the start.

The short construction time of 14 months was also positive for the immediate neighbours. The wooden shell could be erected in only 6 weeks, not least because of the digital tools used and the high degree of prefabrication.

Physical or other transformations

It refers to a physical transformation of the built environment (hard investment)

Innovative character

For the Ilse Wallentin House, regional wood was sourced from Austrian forests. By using regional raw materials, transport and delivery routes can be reduced, which in turn saves CO2. The local wood was then processed in cooperation with local companies. This creates and secures jobs. The time factor also plays a role. Wood is a renewable raw material that can be processed quickly and is easy to construct. CO2 could also be saved here.

Through the use of innovative technologies, all those involved can respond and react directly to each other. In the planning process, a number of digital tools were used in addition to an integral BIM model. For example, the basic concept was created with the EVA Rapid Layouting software, and user consultations were accompanied by the VR application IVAN. The 3D data was used for the production of the components and extensive monitoring guarantees the quality of the timber components from the factory to completion and rounds off the digitised timber construction.

Learning transferred to other parties

The process for the project was characterised by a preceding strategy and initiation phase. The client's clear project vision was to be optimally implemented in terms of sustainability and user satisfaction. The building's use was to be long-lasting and correspond to all functional requirements; the project phases were organic. In order to ensure a barrier-free flow of information, regular meetings were held with both the clients and the users.

SWAP Architektur stands for a living project culture. The cooperation with DELTA and the client BIG was a very open culture of mistakes and feedback. It was important to generate a joint solution finding process in the team. Openness and readiness for new ways of thinking for the common project version are also important aspects that have an impact on a good cooperation and the result of the project. Furthermore, an appreciative and fair way of dealing with all participants and especially with the executing companies was important in this partnership.

There was a transparent distribution of roles and definition of interfaces, as well as a circular, integral organisation in the consortium ARGE SWAP DELTA. A model for success in the cooperation is the division of work areas according to expertise - architectural competence with creative quality, general planning services with cost competence. For the client, cost, schedule and quality security could be ensured through structured decision management.

Keywords

Timber
Sustainability
Digital Technologies
Climate-friendly construction
Inclusion

Gallery