Skip to main content
European Union logo
New European Bauhaus Prizes

Recycle the square.

Basic information

Project Title

Recycle the square.

Full project title

Inserting a new Cultural Centre into an urban corpse.

Category

Shaping a circular industrial ecosystem and supporting life-cycle thinking

Project Description

After the 2008 Financial Crisis, many buildings in Spain were left half-built due to a lack of funds. The Music School of Paracuellos de Jarama was one of them. Fourteen years later, the Townhall needs to refurbish the two-storey abandoned structure and ground-level space left as an Urban Corpse in the centre of this municipality.

The Cultures Square is a proposal to create a new public space and multi-purpose Cultural Centre in the space underground. Reusing the existing to create a new life.

Geographical Scope

Local

Project Region

Barcelona, Spain

Urban or rural issues

Mainly urban

Physical or other transformations

It refers to a physical transformation of the built environment (hard investment)

EU Programme or fund

No

Which funds

ERDF : European Regional Development Fund

Description of the project

Summary

After the 2008 Financial Crisis, many buildings in Spain were left half-built due to a lack of funds. The Music School of Paracuellos de Jarama was among them. Fourteen years later, the Townhall wants to refurbish this two-storey abandoned structure and ground-level space left as an Urban Corpse in the centre of this municipality. 

The Cultures Square is a proposal to create a new public space and multi-purpose equipment for the Townhall. The ground floor is refurbished to create the main square space. The geometry is shaped through topographies providing green areas, water features and meeting points for the citizens. The access to the multi-purpose area is created through this shapes too. 

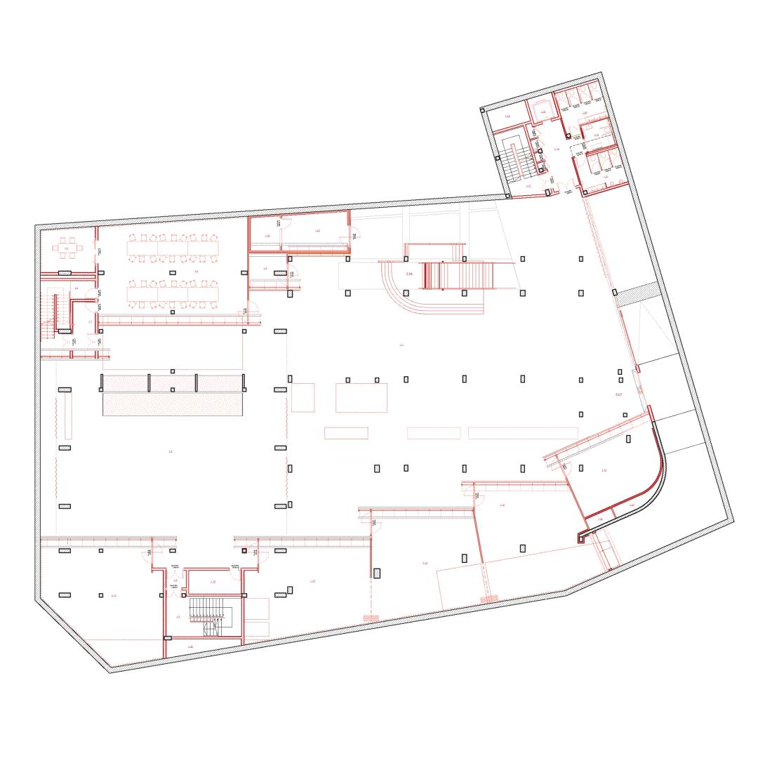
The first-storey underground consists of an open space, accessible from the square. This main open space is divided into two areas: one for climate-controlled activities and another, passive and open for larger events and informal meetings. It includes co-working areas, workshop and recording rooms, a cafeteria and other facilities. The aim is to create an intergenerational centre, where all citizens can find activities of interest and accessible to all of them. Reusing the existing to give it a new life. 

The second-storey underground is dedicated to parking. As the plot is placed in the outskirts of Paracuellos de Jarama, it’s conceived as a municipal park-and-ride facility to help reduce traffic in the city centre. It promotes sustainable mobility by implementing electric-car spots with the necessary facilities and bike-parking areas.

Key objectives for sustainability

Paracuellos de Jarama is a city in the outskirts of Madrid, surrounded by nature. As it experimented a fast growth there aren’t many permeable spaces in its urban grid. Therefore, providing it with a public square where green areas and shadows are placed, will add on the evapotranspiration and thermal regulation of the plot and its surroundings. 

Sustainability is a key aspect in the design process as the proposal is based on the idea of an intelligent re-use of the existing, minimising demolition and newly built surfaces. The project wants to prioritize the transformation of the existing spaces and adapt them to a new use.  

The existing building consists of a pillar-beam concrete structure where the design aims to restore any damaged elements. Adapting and reusing existing structures with new projects is a much more sustainable way of building rather than demolishing and building new structures, which creates a lot of waste and increases the ecological footprint of the project.  

Even though the main spaces are underground and the existing structure wasn’t designed to sustain a square over it, the project makes a considerable effort to create green roofs for both environmentally conscious and aesthetic purposes. The vegetation placed on the plaza space provides a great atmosphere for relaxation, while at the same time deals with rainwater management for the spaces below.  

The building intends to leave some space for a park and ride concept, where it will allow commuters that are heading to city centres to leave their vehicle and use public transportation. This tactic tries to reduce road congestions as well as encourage more efficient commuting practices to already highly populated areas. 

Key objectives for aesthetics and quality

The aesthetic of the space is based on the rough finishings of the existing underground structure, adding some singular new elements. The project aims to keep the existing heavy concrete industrial atmosphere with its rough concrete walls, slabs and columns, while adding a softer new materiality in different spots of the project as a contrast. All of the rooms are visually open to the central zone, flexible to create divisions if needed. Each one of them works independently, composing a ring of activities. 

The building possesses an intuitive circulation, with a main stair that is a central sculptural piece that ties the spaces together with a unique atmosphere. This adds to the concept of open space where everything is easily accessible and the differences are efficiently understood by the users.  

In the Plaza the space is designed as a whole fabric where some edges rise to create different slopes. Everything is created with the same materiality as a sort of topography. Some of these hills create green areas, others benches and water features, meeting points for the citizens. The access to the Civic Centre underground is created through the main topography of the Plaza, which elevates to host the reception area.  

In addition, the program aims to introduce visually pleasing vegetation on the plaza level and create a unique environment for its users. Using different vegetation, the plaza is split up into different visually pleasing areas. 

On a broader scale, the project tries to give a certain order and formality to the surrounding environment. The surroundings of Paracuellos de Jarama appear to have a disorganized patch-built urban fabric where the project can aid to create a focal point for a more organized relationship with the built environment.

Key objectives for inclusion

The project can be seen as a Hub fully integrated into the urban fabric of Paracuellos de Jarama. The public program, featuring co-working spaces, workshop areas, cafeterias and recording rooms, is totally open to the public and completely flexible to the needs of the city. This approach puts the residents at the center of the design where they have the ability to rearrange the program as they see fit. Architecture provides the form and citizens make its function. 

Since the project does not create a new structure, actually reuses an existing one, it is much more affordable to adapt rather than to reconstruct from scratch. The spaces inside will be coordinated by the town hall, a public entity that will be responsible for the organization of the activities. For instance, if a yoga practice would like to rent a space in the building, it would be possible to speak to the town hall and arrange for an affordable rate. This will be possible with all the multiuse spaces, creating an organized structure for the community. 

Thanks to this line of communication with the public offices of the city, the project will be at the center of social engagement for the neighborhood. The program will be accessible and affordable for anybody that wishes to use the different zones. The spaces themselves can also create a line of communication between the town hall and the citizens, where they can start a dialogue on how to improve the spaces and what are the main needs for the city. 

Physical or other transformations

It refers to a physical transformation of the built environment (hard investment)

Innovative character

The project’s main intent is to create the location for social inclusion using sustainable, aesthetically pleasing design. Occupying an existing open grid structure, the project provides a unique environment to its users that is accessible for everybody. On top of that, the building strives for a high environmental consciousness and achieves that by using sustainable materials, reusing existing structures and implementing green roofs. It is thanks to these techniques that the project is able to create comprehensive new spaces for the public and become a new centre in the heart of the city. 

It is worth mentioning that the project intends to re-design a new attractive public Plaza on its street level. This space dedicated to public use is a focal point of attractive inclusive space. The space holds no architectural barriers, meaning it can easily be accessed by everybody including by people with disabilities. The pavement of the plaza also uses a different texture to guide blind people around the space easier. Finally, the amphitheatre is a great public space where a variety of activities can be carried out by the public, making it a great meeting point for Paracuellos de Jarama.

Gallery