Skip to main content
European Union logo
New European Bauhaus Prizes

Lusk for Life

Basic information

Project Title

Lusk for Life

Full project title

‘Lusk for Life: Lusk Vision 2030’ Action Plan for a small Irish town.

Category

Prioritising the places and people that need it the most

Project Description

‘Lusk for Life’ is a community led Action Plan for the small Irish town of Lusk. It provides a model for a community-led urban renewal, making best use of existing assets and latent potential in Lusk to plan for the next decade. The focus is on climate resilient strategies, including designs and proposals for more intensive use of public and green space, active travel networks, biodiversity and densification of the historic town centre.

Geographical Scope

Local

Project Region

Dublin 4, Ireland

Urban or rural issues

Mainly urban

Physical or other transformations

It refers to other types of transformations (soft investment)

EU Programme or fund

Yes

Which funds

Other

Description of the project

Summary

‘Lusk Vision 2030: Lusk for Life’ was commissioned by Lusk Community Council in 2020 (supported by Dublin Rural LEADER) and undertaken by consultants AP+E architects in collaboration with Miriam Delaney and Tara Kennedy, and was completed in August 2021. The plan presents a vision for how the small town of Lusk could develop with the best interests of the current and future citizens to the fore. This project provides a model for community-led spatial planning, making best use of the existing assets and latent potential to structure multiple future funding and development strategies.

In early 2021 an intensive programme of public engagement was undertaken, with numerous public meetings and workshops, and an open access online survey. The level of involvement from clubs, community groups, stakeholders and individuals demonstrated the huge appetite for positive change in Lusk.

The public engagement phase involved listening to and understanding community concerns and their priorities for the future.  The team met with stakeholders including key personnel in local government, local and national political representatives and voluntary groups to understand the complex challenges faced by Lusk.

Our report contains strategies to build social cohesion, and a road map for local groups to use in the implementation of these approaches. It also identifies relevant funding streams and support mechanisms to achieve success in delivering on community priorities. We see this as an enabling tool - identifying supports and setting out spatial proposals to deliver the community’s self- identified needs.

The completed ‘Lusk Vision 2030’ report was presented to the public in August 2021, receiving a very strong level of support. While ‘Lusk Vision 2030’ is a place-specific, it addresses national targets on climate change, active transport and town centre renewal- it aligns with international priorities on small scale urban renewal as a means to address climate change.

Key objectives for sustainability

Sustainability Objectives:

  1. A primary objective for this project was sustainable living in compact town centres. Working with the citizens of Lusk we identified ways to live more sustainably, more ecologically and with a stronger social network within their town. This includes opportunities for more sustainable forms of active travel such as walking or cycling as well as living and socialising locally. Our proposals include making new connections between housing estates and public areas to allow ease of movement on foot and by bicycle to reduce car- dependency. Also by using existing underused infrastructure and making proposals to connect this back into a new sustainable network.
  2. It also identifies strategies for increasing biodiversity in the area, including a strategy for community action to plant 2,030 new trees in Lusk by 2030. We propose planting a range of native Irish tree species which will greatly enhance the visual character of Lusk, provide shelter, strengthen natural drainage and biodiversity. ‘2,030 trees for Lusk’ could become a striking collective enterprise across multiple community groups in Lusk- it is an immediately accessible idea which can be initiated in the short term and will generate a highly attractive, positive message about Lusk to local and national media., it will provide a focus for town pride, and create a festival like atmosphere bringing together diverse social groups and age demographics.
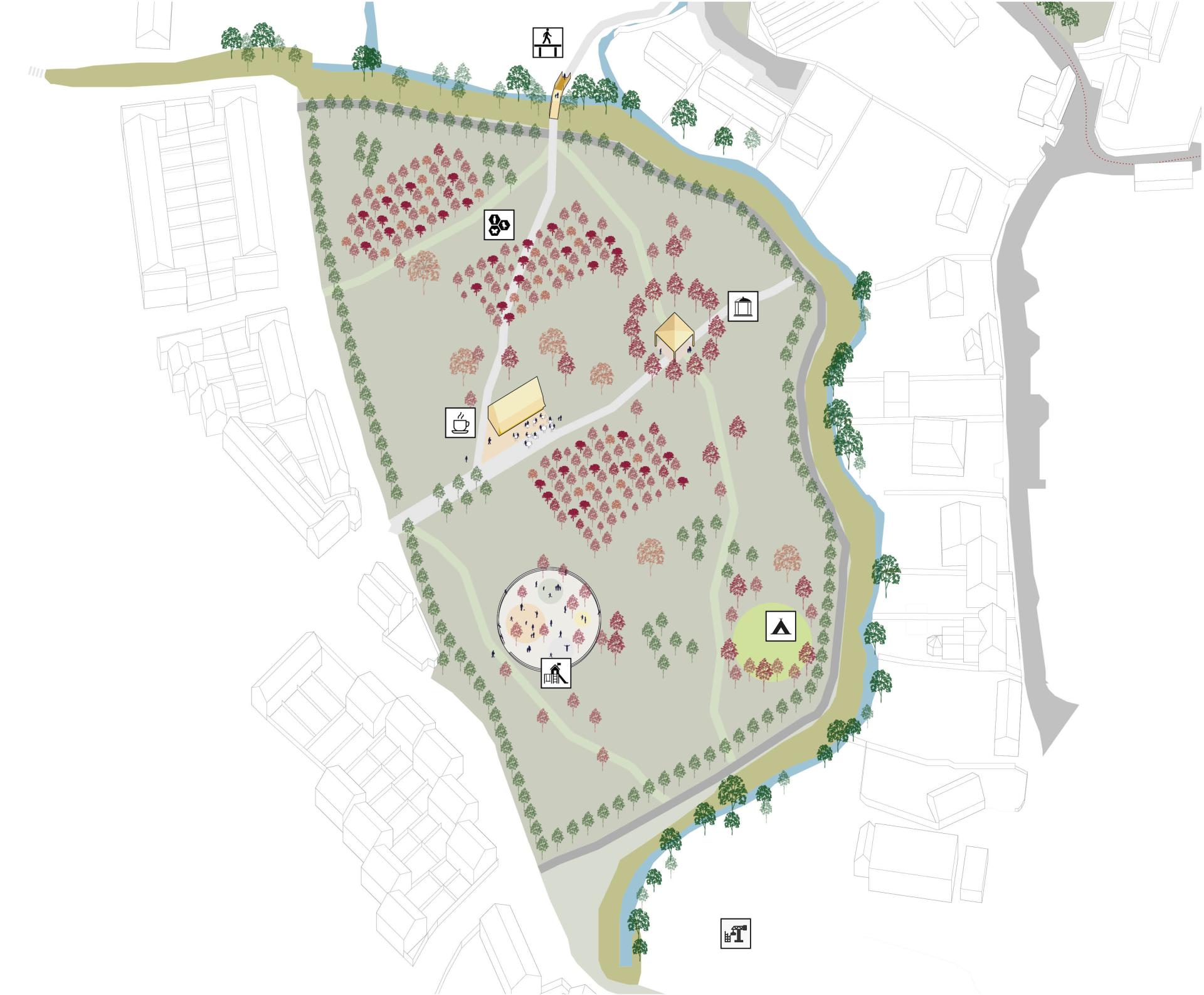
  3. Enriching public green space- with greater emphasis on biodiversity, native trees, pollinators, sustainable urban drainage, and more equal access to public space for diverse age and gender profiles. The team identified latent potential in under utilised public realm space and with precise incisions connecting these into the street network. This reduced the car dependency and prioritised newly reimagined public space for locals to gather, meet and congregate post covid.

Key objectives for aesthetics and quality

As part of the extensive engagement phase of the project, the team identified that there was a lack of pride and connection to the town of Lusk from a high percentage of the population living there. Consequentially rather than mapping potential and plans in typical abstract terms, this strategy focuses on providing strategies and design proposals which allow people to imagine beautiful new spaces within their town. These are proposals for high quality but achievable projects in the town based on the self-identified needs of inhabitants.

Key projects prioritise the improvement of the experiential quality of important public spaces by introducing facilities communal gatherings and outdoor events such as markets and festivals. The proposals also aim to improve the aesthetics of the public realm through the redesign of a medieval garden town park, a market square and introduction of a cafe, pavilion, a roofed bandstand and sports facilities – all of which are intended to bring pride back to the citizens of the town of Lusk itself.

The design proposals and projects that were developed are divided into various categories: Key spatial public realm projects that would have a transformative effect on those that live there; Underutilised existing community amenities with latent potential; and new infrastructure connections that would support, supplement and link these new design projects.

The project is exemplary in this context because:

  • It provides pragmatic and feasible action plans, with short, medium and long term timelines for how these projects can be achieved. This is critical as it enables the community to take ownership of these proposals
  • The proposals aim to enhance the experience of the medieval town centre by prioritising pedestrian use over vehicular use, and by bringing the original market square back into vibrant public use.

Key objectives for inclusion

Inclusion is at the core of the ‘Lusk for Life’ Project. The first phase of the project involved listening closely and inviting full citizen engagement before designing solutions. The fundamental aim of the public participation was to identify priorities, assets and needs but also to build momentum and capacity to deliver projects.

In order to hear from multiple sources the consultants began with a two-month period of community engagement, which consisted of meetings, an on-line survey and community workshops. In the engagement phase, the consultants listened to diverse groups including youth groups, business leaders, sporting organisations, local government personnel, politicians and community activists.

The principle aims of these workshops were to; connect with a diverse range of interested parties in Lusk; to hear from groups working on the ground in Lusk to understand their concerns and priorities; and to establish the commitment and capacity to lead projects within the various groups.

We developed an open online survey as a method to engage directly with as many Lusk residents as possible. It was very successful with over 750 participants completing the survey, nearly 10% of the entire population of the town. The survey was carefully designed to gather hard data regarding specific issues around commuting, participation in community groups, work patterns, recreational and shopping patterns. But, it also to encouraged residents to contribute creative ideas and insights on their priorities for the future of Lusk.

The proposals emerging from the community engagement aimed to address multiple targets on inclusion, focusing on the feedback received which indicated a lack of social cohesion across age profiles. Public spaces were designed to facilitate events and activities suitable for diverse cohorts. The proposals were also structured to allow for incremental delivery, building community capacity to deliver the projects.

Results in relation to category

Since completing ‘Lusk for Life’ in the Autumn 2021, a new implementation  committee has been established in Lusk, bringing in newer members of the community- those that have moved to the town in the last decade- into the conversation on the town’s future. The extensive engagement process and dissemination period opened up the shared issues and concerns of the community which has led to a new impetus to improve the town. This community-led action plan has started to prioritise the places and people that need it the most – connectivity, biodiversity, sports facilities, social amenities, community projects.

This has directly changed the narrative around the town, strengthening relationships between the existing older community and the newer residents. ‘Lusk for Life’ provided a mechanism to put community needs at the forefront, providing a much-needed alternative vision to developer-led housing model, which had led to rapid expansion of housing without the corresponding community amenities. ‘Lusk for Life’ provided a focus for community groups to work towards feasible projects, and a timeline to make explicit how incremental actions could build towards substantive change.

‘Lusk for Life’ led directly to Lusk becoming one of 26 towns selected for funding under the new Town Centre First Action Plan- the only town selected in County Dublin. Lusk will receive €100,000 under this plan which will go towards further developing the ideas in the proposal and supporting the Implementation Committee to achieve all that has been set out.

Welcoming the announcement Minister O’Brien of the Department of Rural and Community Development said: ‘Lusk is ahead of the curve on the “Town Centre First” policy. With the support of LEADER funding from my Department Lusk Community Council have already led the ‘Lusk for Life’ project which has created a vision for a vibrant town centre that people are drawn to.’

How Citizens benefit

‘Lusk for Life’ is a citizen-led spatial planning project. The design and implementation of the project have citizens and civil society at the core. The community of Lusk acted as clients, collaborators and participants driving and shaping the project.

The initial project approach, programme and outline was developed with the Lusk Community Council as citizen clients working on behalf of the local community. Once the project was established, a broader set of stakeholders and local organisations became involved in the promotion and implementation of the project, in particular the ‘Listening and Gathering’ phase. While there was engagement with political and local authority representatives, the vast majority of engagement was with citizens and civil society.

Once the report was completed citizens became involved in exhibiting the report and then adopting the plan and setting up a specific citizen Implementation Committee to take responsibility for implementing projects.  As a result of the broad engagement undertaken during the project, the Implementation Committee represents a more diverse and holistic community representation than the initial Community Council who were the citizen clients at the outset.

The benefits of the level of citizen involvement in the project were clear in identifying the most important design projects and opportunities but also in generating ground up support and momentum for these projects to happen.

Physical or other transformations

It refers to other types of transformations (soft investment)

Innovative character

‘Lusk Vision 2030’ is a unique citizen led and participatory model for sustainable urban renewal. It was initiated and led by a community group, but with strong engagement from politicians and local authority experts. The project outcomes are strongly aligned with national and regional policies while also addressing very specific local needs.

The client consultant relationship in the project is innovative, with a voluntary community group acting as clients and collaborators with the consultant team. The project was innovative in being community-led but shaped and guided by independent consultants who have a strong interest and expertise in the subject matter but without local ties.

The deep level of engagement from a broad range of stakeholders is an innovative model for spatial planning. The public engagement process which was designed to shape the project from its outset provided for a deeper level of engagement than is typical in mainstream practices in this field. 

Rather than proposing a single transformative project, this project is unique in emphasising incremental approaches and a range of small feasible projects as part of a holistic transformation.

The ‘Lusk for Life’ project provides a road map for delivery, which would not usually form part of spatial proposals. This includes providing action plans and recommendations for how people might work together to achieve plans, rather than just the spatial plans. Connecting social approach and spatial approach directly. Mainstream practices prioritise one or the other, to the detriment of imagination.

Learning transferred to other parties

The ‘Lusk for Life’ project is unique and specific to the town of Lusk, but is also designed as an empowering approach that can enable other communities to take action on the spatial planning of their localities.

The project is based on a clear phased methodology that could be transferred to other contexts. The initial ‘Listening and Gathering’ public engagement process including workshops, targeted engagement with community groups, political engagement and a broad survey could be used as a basis for planning a similar public engagement process elsewhere. The report includes a clear tangible outline of how this public engagement process works, and establishes a structure for how spatial design and community led action can overlap.

The ‘Lusk for Life’ project focused also on the creation of a series of communication tools for raising awareness and local support including online videos shared via social media, local newspapers, as well as direct support from politicians and the local authority. The project used a community engagement process to identify latent potential and priorities as well as build the necessary cohesion and momentum to progress projects.

The project is a model for how to create a proactive plan intended to manage and influence specific urban improvement and act as a starting point for future funding opportunities and works within the study area. Providing an action plan alongside project proposals gives a place to start in achieving change.

The ‘Lusk for Life’ plan can be shared as a learning tool for interested parties. This is an exemplary model for a ground up community-led approach to spatial planning and sustainable town living.

Keywords

Rural & SmallTowns
Public Realm
Community-led
Social Cohesion
Resilience

Gallery