YOUTH CENTER NIŠ
Basic information
Project Title
YOUTH CENTER NIŠ
Full project title
YOUTH CENTER NIŠ
Category
Prioritising the places and people that need it the most
Project Description
OUR CITY HAS A LONG HISTORY OF EDUCATION AND RESPECTED LOCAL TEACHER ANASTASIJE PETROVIC, BORN IN 1824., WHO IS IN CHARGE OF ESTABLISHING A TEACHER'S HOME, FOR THE NEEDS OF ACCOMMODATION OF TEACHERS,EDUCATION,CULTURAL NEEDS, DEVELOPED THE NEED TO OPEN A YOUTH CENTER AS A LINK WITH THE TEACHER'S HOME, WHICH WILL BE A PLACE FOR EMOTIONAL, PHYSICAL AND MENTAL SUPPORT, SO IT CAN HELP AND FOSTER CHILDREN AND YOUNG PEOPLE TO HAVE AND ATTEIN HIGHEST SUCCESS POSSIBLE AND GET ACTIVE IN THEIR INTERESTS.
Geographical Scope
Local
Project Region
COUNTRY SERBIA,
CITY OF NIS,
MUNICIPALITY MEDIJANA,
ADDRESS-КING STEPHEN THE FIRST CROWNED STREET,
Latitude
43.321513472939586
Longitude
21.90123254018593
POSTAL CODE
18000, Serbia
CITY OF NIS,
MUNICIPALITY MEDIJANA,
ADDRESS-КING STEPHEN THE FIRST CROWNED STREET,
Latitude
43.321513472939586
Longitude
21.90123254018593
POSTAL CODE
18000, Serbia
Urban or rural issues
Mainly urban
Physical or other transformations
It refers to a physical transformation of the built environment (hard investment)
EU Programme or fund
No
Description of the project
Summary
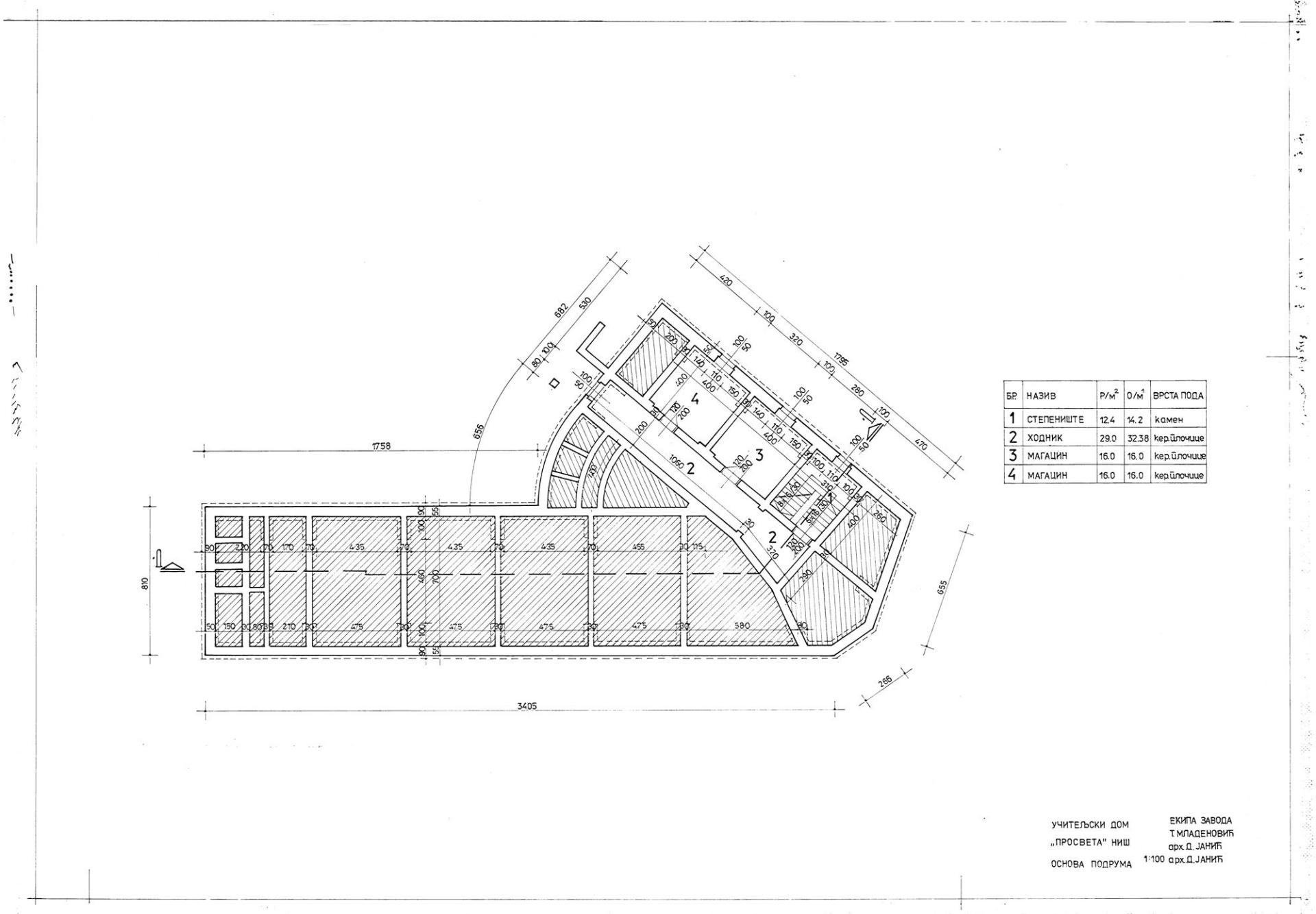
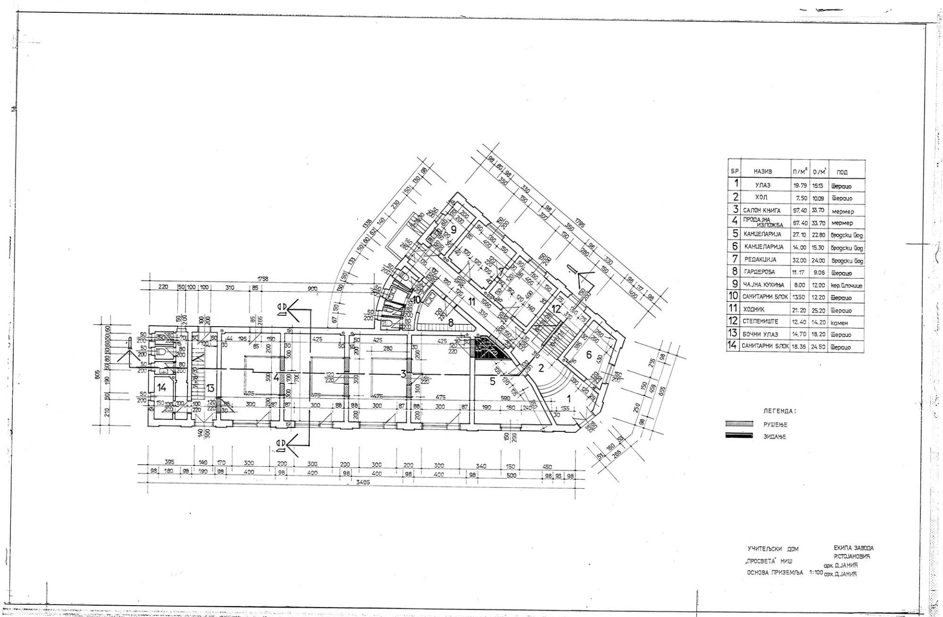
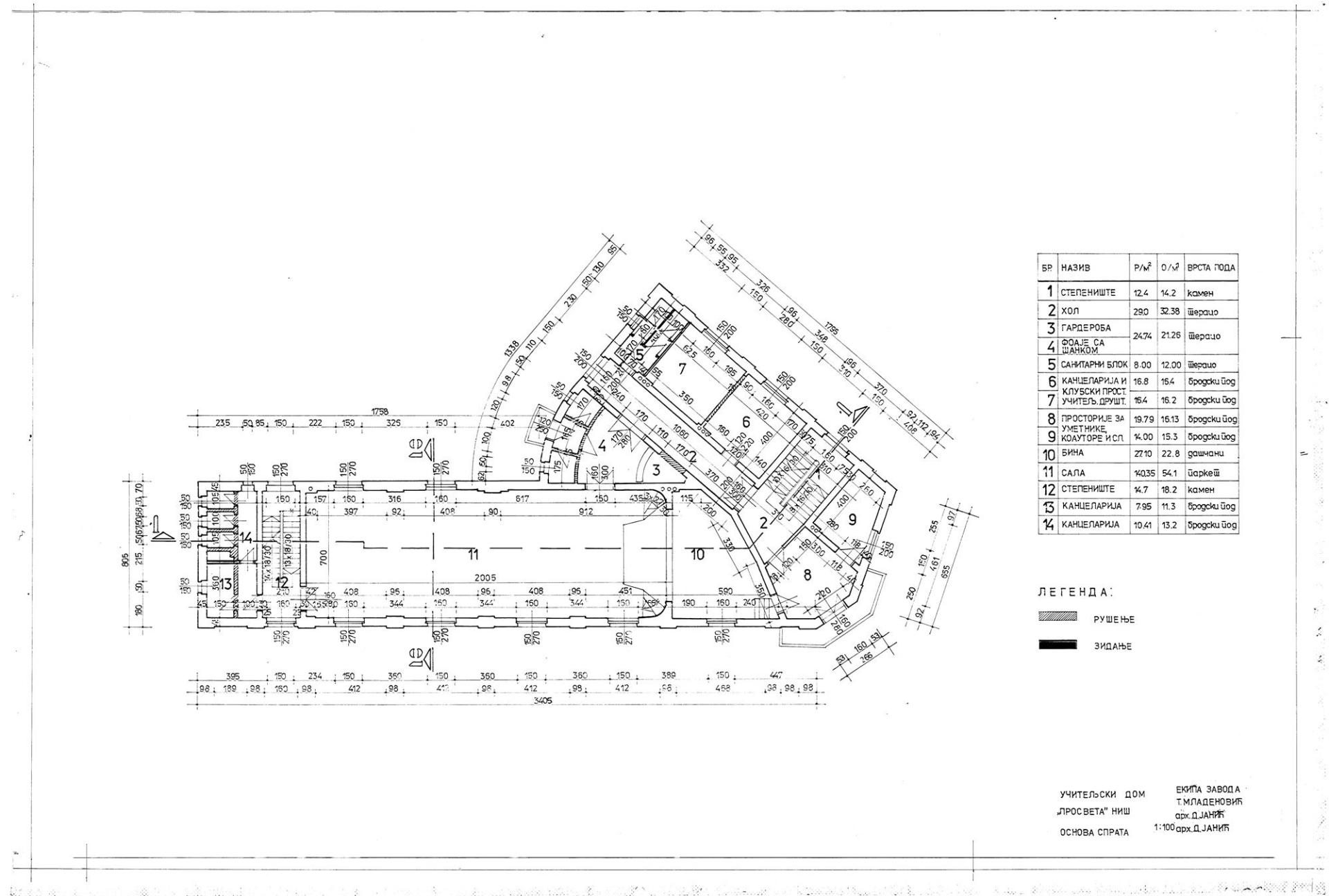
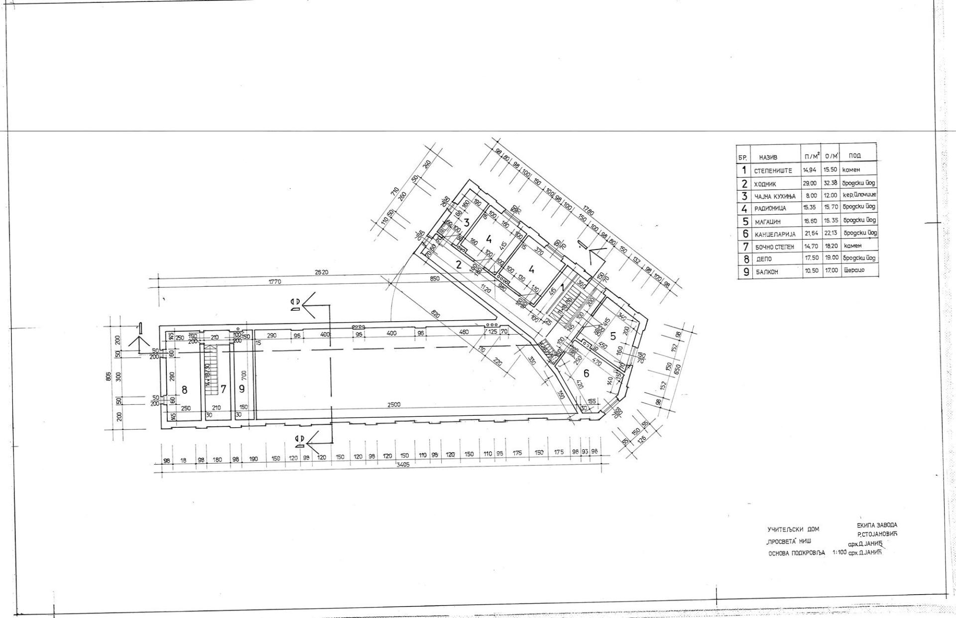
Youth center project represents a developmental, inclusive and sustainable project of adaptation, reconstruction and rehabilitation. Teacher, member of Yugoslav Association of Teachers - Anastasije Petrovic, was responsible for the establishment of the Teacher's Home, a facility built in 1933. for the accommodation of children of teachers killed in the First World War. According to the projects of eminent architects in our country, Julijan Djupon, a building was built that represents a protected immovable cultural asset as a cultural monument. The idea was born that the City of Niš, as the owner of the land and building, in cooperation with NGOs, the Office for youth, youth and student organizations, turn the building of the Teacher's Home with a tradition of learning and education for young people in accordance with their needs and aspirations and adapt it to people with disabilities and give them active participation for the first time. The project, which saves such an important building from decay, and creates a center for education, training, and providing assistance to young people, with a large number of workshops, concerts, plays, lectures, as well as outdoor cultural events in a refined and green courtyard. The project was supported by the RS goverment, from which, in addition to the City, the funds were received. The call for tenders for the development of project - technical documentation was preceded by a series of participatory processes - such as meetings with representatives of the Youth Center of Novi Sad, student practice and the inclusion of students in the analysis of the existing facility, a debate on the purpose of the facility with students and youth institutions, a meeting of the mayor with a representative of high school students who presented ideas and problems and who will actively go through the decision - making processes.
Key objectives for sustainability
The partners in this project that initiated the opening Youth center has a special role to play in supporting the personal development of young people. This is done in particular through a participatory and self-determined approach that enables young people to recognise and satisfy their own needs. We want to promote the idea of youth centre in which young people can meet informally (also called open youth work), spend leisure time, receive support through counselling and develop their own ideas. In this way, the young people will be involved in the decision-making process, which will lead to greater participation in projects. We firmly believe that this approach is useful for all young people and that it is a very integrative way of working with them. Our experience is that for young people who find it difficult to adapt to a formal framework (school, vocational training, etc.), participation in informal and non-formal activities can be a step towards a better future or even back to formal education.
In order to work on this, we have ensure sustainable financing, joint recognition and development of quality youth work in order to strengthen youth organisations and their role in integration, participation and education through the exchange of innovative methods and experiences in working with young people. We started by conducting interviews addressed to youth workers, developing a questionnaire aimed at young people and we organised a youth encounter in our city. With the results we want to encourage a discussion on what open youth work is and should be (its methods, tools, meanings and variations). We collected examples of successful open youth work activities and good practices, different models of youth centres, young people’s ideas about what open youth work should achieve and how it should be equipped, as well as scientific studies. The results should be how to improve young people’s competences, supporting them to get active in their interests, environments.
In order to work on this, we have ensure sustainable financing, joint recognition and development of quality youth work in order to strengthen youth organisations and their role in integration, participation and education through the exchange of innovative methods and experiences in working with young people. We started by conducting interviews addressed to youth workers, developing a questionnaire aimed at young people and we organised a youth encounter in our city. With the results we want to encourage a discussion on what open youth work is and should be (its methods, tools, meanings and variations). We collected examples of successful open youth work activities and good practices, different models of youth centres, young people’s ideas about what open youth work should achieve and how it should be equipped, as well as scientific studies. The results should be how to improve young people’s competences, supporting them to get active in their interests, environments.
Key objectives for aesthetics and quality
We want to give youth the opportunity to take part in recreational and cultural activities or vocational counseling, this center help them develop their physical, social, emotional, and cognitive abilities and to experience achievement, enjoyment, friendship, and recognition, sense of belonging and equality for persons with disabilities. The concept for our Youth center that we want to make is to cause emotion strives to creates products that evoke appropriate emotions in order to create positive experience for the young users and the space that they use. Motion entanglement that can cause them result dynamic relation between human. Transition of spaces are narratively designed according to the emotion potrayed. Transformation of emotion entanglement into design elements we want to use is trough colours transition, wall + floor + celling finishes, lighting selection, forms/shape, building facade, space planning, floor pattern, style design of furniture and wall treatment. In building used to be a library, that now there will be a "literary bakery" that will make money, that the courtyard that will be refined will hold exhibitions, concerts… So it will retain the traditional spirit that there used to be a meeting place for teachers-educators, and now the youth will gather there and create the future.
Key objectives for inclusion
The concept for our Youth center that we want to make is to cause emotion strives to creates products that evoke appropriate emotions in order to create positive experience for the young users and the space that they use. Motion entanglement that can cause them result dynamic relation between human. Transition of spaces are narratively designed according to the emotion potrayed. Transformation of emotion entanglement into design elements we want to use is trough colours transition, wall + floor + celling finishes, lighting selection, forms/shape, building facade, space planning, floor pattern, style design of furniture and wall treatment. Ofering this concept, we want to connect young people of all ages to reconnect itself and overcome any difficulties and connect as new person with all users of Centre. The purpose is to make our city with idea of opening Youth Centre, to make more livable, resilient, inclusive and enjoyable. And one of most objective that we want to accomplish is to enable access and support for people with disabilities - physical, mental. To have a sense of belonging and equality in every possible sense among the young population.
Results in relation to category
Funds for the tender for the preparation of project technical documentation - 20% of the investment is financed by the city - the remaining 80% of the funding is from the Government of the RS and will be used for the tender that will be announced for the contractor for the reconstruction, adaptation and rehabilitation of the building.
Dynamics: The tender for the preparation of project technical documentation was announced on January 30, 2023. until February 28, 2023. The deadline for preparing documentation and obtaining a building permit is 90 days. Tender for the contractor - announcement June 1 - end July 1. Start of works - August 1st and completion of works December 1st. After that, I will furnish the building with the deadline for the start of the Center's work in March 2024.
Dynamics: The tender for the preparation of project technical documentation was announced on January 30, 2023. until February 28, 2023. The deadline for preparing documentation and obtaining a building permit is 90 days. Tender for the contractor - announcement June 1 - end July 1. Start of works - August 1st and completion of works December 1st. After that, I will furnish the building with the deadline for the start of the Center's work in March 2024.
How Citizens benefit
By opening the youth center, we want to provide enormous support to young people and future young generations, so that they have space and opportunities to highlight their interests, talents and successfully overcome the problems they face. In addition to young people, we want to preserve a building that represents a cultural asset in our city, to preserve unique architecture - the Teacher's House was designed in the spirit of eclecticism. Within the center, in addition to many multifunctional facilities, there will also be a bakery, a cafe, where there will be opportunities for employment through the Student Youth Cooperative from Niš. In addition, we want to employ or who wants to volunteer, on psychology studies from the Faculty of Philosophy in order to improve the mental health of young people as much as possible. Centre will be the inspiring place for new young music bands, young composers - where can be spotted, students who wants to explore science…But also, Centre will be still the place for teachers from schools from our city.
Physical or other transformations
It refers to a physical transformation of the built environment (hard investment)
Innovative character
Youth center should be facilitie designed to provide a safe, informal and supervised environment for young people, to accommodate unstructured social interaction among different age groups and provide the space to offer more structured activities. By giving youth the opportunity to take part in recreational and cultural activities or vocational counseling, this center help them develop their physical, social, emotional, and cognitive abilities and to experience achievement, enjoyment, friendship, and recognition, sense of belonging and equality for persons with disabilities.
An important aspect to ensure the success of the facility is the space itself. While meeting the durability requirements for a public facility, the furnishings, colors, finishes and surfaces in Youth Center need to promote a sense of ownership and freedom of expression, and have a warm, homelike quality that encourages creative development.
An important aspect to ensure the success of the facility is the space itself. While meeting the durability requirements for a public facility, the furnishings, colors, finishes and surfaces in Youth Center need to promote a sense of ownership and freedom of expression, and have a warm, homelike quality that encourages creative development.
Disciplines/knowledge reflected
Youth centre aimed to create a suitable place and atmosphere in order to enable young people to present their achievements, realized their dreams and aspirations, develop their talents and acquaint themselves better in the world of art. Youth also a place to welcomes people with various workshops and artistic groups such as fine arts and ceramic classes, film workshop, theatre groups, dance groups and other specialist form of artistic activity and to create multipurpose gathering place, especially for youth. With our Centre we want be some kind a movement for young people, that they can have more stronger community, where they can prototype new ideas through experiments and science projects. We managed to represent partnership with local communities, government, youth organizations, we wil manage to restore heritage building and build community with young people!
Methodology used
The problems and disadvantages faced by young people in our city have been going on for decades. Just some of examples:
Youth associations do not have a place where they can meet regularly.
Young people who read books do not have the opportunity to socialize and socialize at regular literary evenings.
Youth bands and plays do not have their own place where they can perform.
The youth does not have an institution where they can get information about all the necessary resources for personal development.
In order to get psychological help, young people have to go to the Health Center and a general practitioner.
The youth does not have an institution where they can get information about all the necessary resources for personal development.
Young people who read books do not have the opportunity to socialize and socialize at regular literary evenings.
That's why we chose a building that children learn about even in elementary school, and which is at the same time a cultural asset.
Youth associations do not have a place where they can meet regularly.
Young people who read books do not have the opportunity to socialize and socialize at regular literary evenings.
Youth bands and plays do not have their own place where they can perform.
The youth does not have an institution where they can get information about all the necessary resources for personal development.
In order to get psychological help, young people have to go to the Health Center and a general practitioner.
The youth does not have an institution where they can get information about all the necessary resources for personal development.
Young people who read books do not have the opportunity to socialize and socialize at regular literary evenings.
That's why we chose a building that children learn about even in elementary school, and which is at the same time a cultural asset.
How stakeholders are engaged
Since the idea was born in NGO Jedi movement, they contacted the office of youth, and from the beginning they had a full support from the Mayor’s office. So we put a invitation in numerios youth organisations. Some of them, like Jedi movement, Elsa, IFMSA Serbia, EESTEC, BEST, AISEC, IAESTE, etc, got the familiarization with the plan for launching the Youth Center, and the way of work and the organization of the working group, we visited the site, the condition of the facility itself, we used the database that all youth organizations have, and we had round tables with the topic of a proposal for a project plan of use space in order to be fully adapted to the needs of youth organizations - it was about the local level. Soon we received an invitation from the city of Novi Sad, the second city in Serbia, to visit their Youth Center and they provided us with unlimited support of all kinds, so we have the support of the youth organization OPENS. Novi Sad proudly held the title of Youth Capital of Europe in 2019 - #OPENS2019! And above that, we have financial support from the Government of Serbia, which allocates funds to us because they recognized the need for such a center in our city.
Global challenges
According to the World Youth Report (2020), there are 1.2 billion young people aged 15 to 24 years, accounting for 16 per cent of the global population. For statistical purposes, the United Nations defines ‘youth’ as persons aged between 15 and 24. However, this definition is not universal. As the experience of being young can vary substantially across the world, between countries and regions, we consider ‘youth’ as a flexible category. One of common problems that face teenagers is anxiety, lack of self-confidence, time management, family conflict, stress, poor self-control, questionable decision-making, internalizing small failures…Children today are under more pressure than ever before. They're bombarded with images and messages from the media, social media, and their peers that can lead to feelings of inadequacy, anxiety, and depression. So that is we want to give them trough this Centre full support as well as offer a space for homework support and life counseling. This will help the youth to attain their highest success possible.
Learning transferred to other parties
The Youth center will bring together as wide a category of young people as possible - from providing support for global and local problems that young people face - to concrete events and educational workshops that will include vocational high schools, gymnasiums and faculties, because our city has a long history as a University Center. As a city where students come from the entire Nisava district, we want to be a safe zone for all young people, both who were born here and who come to high school or to study. As part of the workshops, we want to encourage students of vocational high schools to make products in order to encourage the spirit of private business and creativity at an early age.
Keywords
integration
education
sustainability
implementation
a sense of belonging