WIND TOWER
Basic information
Project Title
WIND TOWER
Full project title
Affordable, Sustainable and Passive Cooling Solutions for Buildings
Category
Prioritising the places and people that need it the most
Project Description
How an ancient and proven Middle-East method could help Europeans minimize their electricity bills' cost during summer while enjoying thermal comfort and protecting the environment by reducing global carbon dioxide emissions? The answer is found in wind catchers, a passive cooling, energy-efficient method of cooling buildings without the use of mechanical systems, by taking advantage of natural ventilation, shading, and heat-absorbing materials to maintain comfortable indoor temperatures.
Geographical Scope
National
Project Region
Greece
Urban or rural issues
Mainly urban
Physical or other transformations
It refers to a physical transformation of the built environment (hard investment)
EU Programme or fund
No
Description of the project
Summary
It is the case that the cooling of buildings worldwide requires a considerable amount of energy, up to 24 % of the world's total energy consumption which is not ideal. The environment is badly affected by it, but also the people. We may often think of low-income people and their struggles, but we rarely think of inadequate cooling as one of those struggles. However, in reality, that is a huge problem that they face especially in southern Europe. As a result, many people think of ways to reduce that consumption and so have we.
We propose a solution in the form of the "Windcatcher," which has been used effectively for centuries in the Middle East. They were used in traditional architecture to provide natural ventilation and cooling for homes and buildings. A windcatcher works by capturing air from the wind and directing it into the building, where it can be distributed to the interior spaces with near-zero operating costs. It is a system not yet widely adopted in Europe, but since academic research supports its efficacy, we could implement it.
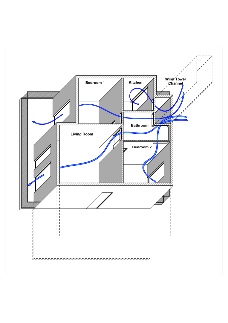
More specifically, a special funnel (proposed design in figure 1) will be manufactured, then placed on top of a building (figure 2). The funnel will be placed on top of existing light wells and air shafts, or new ones can be created, and the air will firstly be cooled by heat transfer devices and then flow inside the building (figure 3), and circulate each apartment as (figure 4), finally exiting the building from the windows. Research has concluded that many greek buildings are suitable for its use with up to 80% thermal comfort.
We aim to provide a commercially viable version of a solution that has been well-studied and documented by academia, drawing on the achievements of other cultures to better our own. Overall, windcatchers are an effective, sustainable and low-cost solution for cooling buildings in hot and arid regions, and are now being studied and integrated into modern sustainable architecture.
We propose a solution in the form of the "Windcatcher," which has been used effectively for centuries in the Middle East. They were used in traditional architecture to provide natural ventilation and cooling for homes and buildings. A windcatcher works by capturing air from the wind and directing it into the building, where it can be distributed to the interior spaces with near-zero operating costs. It is a system not yet widely adopted in Europe, but since academic research supports its efficacy, we could implement it.
More specifically, a special funnel (proposed design in figure 1) will be manufactured, then placed on top of a building (figure 2). The funnel will be placed on top of existing light wells and air shafts, or new ones can be created, and the air will firstly be cooled by heat transfer devices and then flow inside the building (figure 3), and circulate each apartment as (figure 4), finally exiting the building from the windows. Research has concluded that many greek buildings are suitable for its use with up to 80% thermal comfort.
We aim to provide a commercially viable version of a solution that has been well-studied and documented by academia, drawing on the achievements of other cultures to better our own. Overall, windcatchers are an effective, sustainable and low-cost solution for cooling buildings in hot and arid regions, and are now being studied and integrated into modern sustainable architecture.
Key objectives for sustainability
Energy Saving: The energy consumed by buildings contributes to 24% of global carbon dioxide (CO2) emissions, which accounts for 40% of total global power usage, a truly huge percentage. The windcatcher requires almost no energy for its operation, so a significant percentage of energy can be saved. The windcatcher requires a near-zero amount of energy due to its passive element. Air will enter and circulate the building due to external air speed and the buoyancy effect, without the need for mechanical support. The more advanced version of the system will boast heat transfer elements such as water pipes (figure 1) or evaporative cooling elements such as a PDECt (Passive down-draught evaporative cooling towers), so that the air can be cooled by spending an insignificant amount of energy. These claims have, of course, been studied by academia and proven.
Life expectancy: While an A/C cooling device has a limited life expectancy, generally less than 15 years due to technical failures and becoming obsolete, a windcatcher can be made of a variety of materials with great endurance and quality when it comes to longevity. Its lifetime can be easily extended with maintenance as simple as applying an anticorrosive spray. Therefore, we can expect a windcatcher to last for many decades.
Manufacturing and Materials: Mechanical cooling systems (air conditioners) require specific materials that are energy-intensive to acquire and transport. Additionally, they are often not recyclable. On the other hand, windcatchers can be constructed from a wide range of recycled materials that are readily available worldwide. The manufacturing process is simple and can be done in local machine shops, reducing transportation costs. The importance of local manufacturing is often overlooked, but the environmental cost of transportation can be significant.
Life expectancy: While an A/C cooling device has a limited life expectancy, generally less than 15 years due to technical failures and becoming obsolete, a windcatcher can be made of a variety of materials with great endurance and quality when it comes to longevity. Its lifetime can be easily extended with maintenance as simple as applying an anticorrosive spray. Therefore, we can expect a windcatcher to last for many decades.
Manufacturing and Materials: Mechanical cooling systems (air conditioners) require specific materials that are energy-intensive to acquire and transport. Additionally, they are often not recyclable. On the other hand, windcatchers can be constructed from a wide range of recycled materials that are readily available worldwide. The manufacturing process is simple and can be done in local machine shops, reducing transportation costs. The importance of local manufacturing is often overlooked, but the environmental cost of transportation can be significant.
Key objectives for aesthetics and quality
Wind catchers , also known as wind towers, are architectural elements used to cool buildings in hot climates by regulating air flow in buildings, and have both functional and aesthetic purposes.
Aesthetic objectives:
To create a visually appealing design that complements the architecture of the building and enhances its aesthetic appeal.
To preserve and highlight the historical and cultural significance of wind catchers and to reflect cultural heritage.
Is going to be around 6 meters in height at the top deck of the building, because from efficiency, economic and aesthetic points of view 6-m height has been considered the optimum height for wind catchers, based on the scientific literature.
Quality of experience objectives:
To provide a comfortable indoor environment by controlling the temperature and airflow.
To improve air quality by removing stale air and providing fresh air.
To create a visually and acoustically pleasant environment by controlling the amount of light and sound entering the building.
To draw in the pure, cool air from higher altitudes and circulate it within the building, providing a constant flow of refreshing air and optimal ventilation.
To reduce external noise levels and minimize the amount of dust and pollutants carried by warm air currents.
These objectives are met through the proper design and construction of the wind catcher, taking into consideration the surrounding climate and architecture. This includes choosing appropriate materials, shapes, and colors that complement the building design, and using appropriate building techniques to ensure durability and functionality.
Aesthetic objectives:
To create a visually appealing design that complements the architecture of the building and enhances its aesthetic appeal.
To preserve and highlight the historical and cultural significance of wind catchers and to reflect cultural heritage.
Is going to be around 6 meters in height at the top deck of the building, because from efficiency, economic and aesthetic points of view 6-m height has been considered the optimum height for wind catchers, based on the scientific literature.
Quality of experience objectives:
To provide a comfortable indoor environment by controlling the temperature and airflow.
To improve air quality by removing stale air and providing fresh air.
To create a visually and acoustically pleasant environment by controlling the amount of light and sound entering the building.
To draw in the pure, cool air from higher altitudes and circulate it within the building, providing a constant flow of refreshing air and optimal ventilation.
To reduce external noise levels and minimize the amount of dust and pollutants carried by warm air currents.
These objectives are met through the proper design and construction of the wind catcher, taking into consideration the surrounding climate and architecture. This includes choosing appropriate materials, shapes, and colors that complement the building design, and using appropriate building techniques to ensure durability and functionality.
Key objectives for inclusion
Equal opportunities & Affordability. We want to give people the ability to enjoy their summer in their cities as much as possible, and without affordable cooling that cannot be done. Income should not strip people away from having thermal comfort. Our design is suitable for that role due to its low installation cost and near to zero functioning cost.
Universal Design. It is vital that our design can be implemented on a multitude of buildings, since only 0.1 % of the building stock are new ones in Greece. So we want to use a system that can be retrofitted quite literally everywhere and most importantly on all buildings with poor insulation. It goes without saying that the installation cost will be quite insignificant.
Citizen Participation. As mentioned above, the wind catchers can easily be manufactured in local machine shops, so a number of jobs can be created in the community, for a system that will directly benefit them. Also, the material will most likely be sourced from the near vicinity, which can strengthen the local economy.
Universal Design. It is vital that our design can be implemented on a multitude of buildings, since only 0.1 % of the building stock are new ones in Greece. So we want to use a system that can be retrofitted quite literally everywhere and most importantly on all buildings with poor insulation. It goes without saying that the installation cost will be quite insignificant.
Citizen Participation. As mentioned above, the wind catchers can easily be manufactured in local machine shops, so a number of jobs can be created in the community, for a system that will directly benefit them. Also, the material will most likely be sourced from the near vicinity, which can strengthen the local economy.
How Citizens benefit
Wind catchers can provide several benefits to citizens who use them in their homes or work spaces:
-Energy Efficiency: Wind catchers can provide natural ventilation without the need for air conditioning, which can reduce energy consumption and save on energy costs.
-Improved Indoor Air Quality: Wind catchers can help improve indoor air quality by circulating fresh air and reducing the concentration of indoor pollutants.
-Enhanced Comfort: Wind catchers can help regulate indoor temperature, creating a more comfortable environment and reducing the need for artificial cooling systems.
-Cultural Preservation: Wind catchers are an important element of traditional architecture, and their use can help preserve cultural heritage and promote traditional building techniques.
-Environmental Sustainability: By reducing energy consumption, wind catchers can contribute to a more sustainable and environmentally friendly built environment
Civil society can be involved in the design, construction, and maintenance of wind catchers, thus promoting traditional building techniques and preserving cultural heritage. Involving citizens and civil society in the implementation of wind catchers can have a positive impact on the technology's overall success and acceptance. This can increase public awareness about the benefits of wind catchers, as well as lead to greater investment in their development and use.
It can also lead to the development of local expertise and the creation of job opportunities in the construction and maintenance of wind catchers.
-Energy Efficiency: Wind catchers can provide natural ventilation without the need for air conditioning, which can reduce energy consumption and save on energy costs.
-Improved Indoor Air Quality: Wind catchers can help improve indoor air quality by circulating fresh air and reducing the concentration of indoor pollutants.
-Enhanced Comfort: Wind catchers can help regulate indoor temperature, creating a more comfortable environment and reducing the need for artificial cooling systems.
-Cultural Preservation: Wind catchers are an important element of traditional architecture, and their use can help preserve cultural heritage and promote traditional building techniques.
-Environmental Sustainability: By reducing energy consumption, wind catchers can contribute to a more sustainable and environmentally friendly built environment
Civil society can be involved in the design, construction, and maintenance of wind catchers, thus promoting traditional building techniques and preserving cultural heritage. Involving citizens and civil society in the implementation of wind catchers can have a positive impact on the technology's overall success and acceptance. This can increase public awareness about the benefits of wind catchers, as well as lead to greater investment in their development and use.
It can also lead to the development of local expertise and the creation of job opportunities in the construction and maintenance of wind catchers.
Physical or other transformations
It refers to a physical transformation of the built environment (hard investment)
Innovative character
Windcatchers are innovative in the field of building design and air conditioning as they provide a passive cooling system without the use of electricity or mechanical systems. This is in contrast to traditional air conditioning methods that rely on mechanical systems, which consume a significant amount of energy and contribute to greenhouse gas emissions.But let’s compare the windcatcher to the mainstream antagonists of the air conditioning systems, that aim to reduce energy consumption in buildings.
Specifically, the approach is unique for two main reasons. Firstly, most energy reduction solutions require major refurbishments to buildings, which are often not cost-effective. However, windcatcher technology requires only superficial interventions that yield a great energy return. Secondly, the industry tends to focus on smart solutions that are heavily dependent on electricity, which is good, but alternative systems should always be considered because the diverse nature of technology makes it so awesome. The power of our proposal is the efficiency and simplicity, compared to its counterparts.
We take something that has been proven to work for hundreds of years in the Middle East and after studying scientific literature, we have seen that it is already implemented on a small scale in England for 30 years. We know that windcatchers can be an applicable and innovative solution for many cities and human settlements. Our vision is to make wind catchers an everyday reality for the inhabitants of Greece and later all of Europe, making cities and human settlements more affordable in the long run and more sustainable. This will be achieved by minimizing the use of air conditioning in buildings, saving non-renewable energy, protecting the environment and helping inhabitants reduce their overall cost of electricity bills. The innovative character of this concept comes from the solutions it provides and from our vision of making wind catchers an everyday reality for Europe.
Specifically, the approach is unique for two main reasons. Firstly, most energy reduction solutions require major refurbishments to buildings, which are often not cost-effective. However, windcatcher technology requires only superficial interventions that yield a great energy return. Secondly, the industry tends to focus on smart solutions that are heavily dependent on electricity, which is good, but alternative systems should always be considered because the diverse nature of technology makes it so awesome. The power of our proposal is the efficiency and simplicity, compared to its counterparts.
We take something that has been proven to work for hundreds of years in the Middle East and after studying scientific literature, we have seen that it is already implemented on a small scale in England for 30 years. We know that windcatchers can be an applicable and innovative solution for many cities and human settlements. Our vision is to make wind catchers an everyday reality for the inhabitants of Greece and later all of Europe, making cities and human settlements more affordable in the long run and more sustainable. This will be achieved by minimizing the use of air conditioning in buildings, saving non-renewable energy, protecting the environment and helping inhabitants reduce their overall cost of electricity bills. The innovative character of this concept comes from the solutions it provides and from our vision of making wind catchers an everyday reality for Europe.
Disciplines/knowledge reflected
The design and development of wind catchers involves interdisciplinary collaboration and expertise from various fields such as architecture, engineering, hydrology, meteorology, and materials science. Since we are at an early stage of our idea we have conducted research and used basic concepts from fields like engineering and material chemistry, since the core team consists of engineering students and a chemist. We have researched the different disciplines and knowledge fields and asked for help from professionals, an architect and a contractor to contribute further to the design and development of our idea. The added value of this process is that firstly, the core team understands most of the concepts around the idea, thanks to our scientific background, secondly we have already collaborated with some professionals to develop our idea further, and thirdly after this process we are even more passionate about wind catchers, cause we have realised through lots of research and validation, that it can be applicable and make people's lives so much easier. We have further plans on how the different scientific fields will interact in the future while developing our idea, which you can see attached below on the pdf that has the development of our plan.
How stakeholders are engaged
Even though our idea is in its early stage, we realize the importance of the engagement of different stakeholders at various levels in the design and development of wind catchers for ensuring their effectiveness, cultural significance, and sustainable impact. So, we tested our idea through conversations & forms by gaining validation from some professionals in the engineering and architecture field, from potential customers and by presenting our idea in the Smart-Y Hackathon 2022 (Erasmus+), where we got the 3rd place and traveled for a prototyping workshop in Vienna, Austria.
By gaining validation from professionals in the engineering and architecture field, the team has been able to validate the technical feasibility and practicality of the idea. Their input will help to refine the design and development process, and will result in the identification of potential challenges that can be addressed.
By engaging with potential customers, the team has gained insights into the needs and preferences of those who would use wind catchers. This feedback can be used to tailor the design and development process to better meet the needs of end-users, and to ensure that the wind catchers are both functional and appealing to customers.
Participation in the Smart-Y Hackathon 2022 (Erasmus+) has also provided the team with valuable opportunities for networking, exposure, and mentorship. Winning 3rd place and attending the prototyping workshop in Vienna, Austria, has likely helped to raise the profile of the project and may have opened up new opportunities for funding and support.
In conclusion, the engagement of different stakeholders has provided valuable insights, feedback, and opportunities, and has likely helped to refine the idea and increase its chances of success.
By gaining validation from professionals in the engineering and architecture field, the team has been able to validate the technical feasibility and practicality of the idea. Their input will help to refine the design and development process, and will result in the identification of potential challenges that can be addressed.
By engaging with potential customers, the team has gained insights into the needs and preferences of those who would use wind catchers. This feedback can be used to tailor the design and development process to better meet the needs of end-users, and to ensure that the wind catchers are both functional and appealing to customers.
Participation in the Smart-Y Hackathon 2022 (Erasmus+) has also provided the team with valuable opportunities for networking, exposure, and mentorship. Winning 3rd place and attending the prototyping workshop in Vienna, Austria, has likely helped to raise the profile of the project and may have opened up new opportunities for funding and support.
In conclusion, the engagement of different stakeholders has provided valuable insights, feedback, and opportunities, and has likely helped to refine the idea and increase its chances of success.
Global challenges
Our idea will help meet three of the UN Sustainable Development Goals.
Goal 7: Affordable and Clean Energy
Goal 11: Sustainable cities and communities
Goal 13: Climate Action
Wind Catchers aim to tackle several global challenges through its localized wind energy solutions, including:
Climate change: By generating no electricity, but using wind as a renewable source, wind energy reduces the need for fossil fuels and the associated greenhouse gas emissions.
Affordability: Only installation costs, near to zero running costs.
Energy poverty: Nearly one billion people worldwide lack access to electricity, and many more have unreliable access. Wind catchers help to alleviate energy poverty by providing clean and renewable energy to communities in need.
Energy access: In many communities, particularly in rural areas, access to reliable energy is limited. Wind catchers provide a decentralized energy solution that can help to bring solutions to these communities.
Economic development: Wind catchers can also support economic development by creating local jobs. So, promoting the development of wind catchers helps to stimulate local economies and create employment opportunities.
Sustainable development: Wind energy is a sustainable source of energy that can be harnessed for generations to come. By promoting the use of wind energy, wind catchers contribute to sustainable development and the transition to a low-carbon future.
Overall, wind catchers help to reduce dependence on fossil fuels and decrease greenhouse gas emissions, contributing to the global effort to mitigate climate change. Additionally, by providing clean and renewable energy, wind catchers help to improve energy access and energy security in communities that might otherwise lack reliable sources of power. So, wind catchers address global energy challenges by providing affordable, sustainable, and environmentally friendly solutions to meet local energy needs.
Goal 7: Affordable and Clean Energy
Goal 11: Sustainable cities and communities
Goal 13: Climate Action
Wind Catchers aim to tackle several global challenges through its localized wind energy solutions, including:
Climate change: By generating no electricity, but using wind as a renewable source, wind energy reduces the need for fossil fuels and the associated greenhouse gas emissions.
Affordability: Only installation costs, near to zero running costs.
Energy poverty: Nearly one billion people worldwide lack access to electricity, and many more have unreliable access. Wind catchers help to alleviate energy poverty by providing clean and renewable energy to communities in need.
Energy access: In many communities, particularly in rural areas, access to reliable energy is limited. Wind catchers provide a decentralized energy solution that can help to bring solutions to these communities.
Economic development: Wind catchers can also support economic development by creating local jobs. So, promoting the development of wind catchers helps to stimulate local economies and create employment opportunities.
Sustainable development: Wind energy is a sustainable source of energy that can be harnessed for generations to come. By promoting the use of wind energy, wind catchers contribute to sustainable development and the transition to a low-carbon future.
Overall, wind catchers help to reduce dependence on fossil fuels and decrease greenhouse gas emissions, contributing to the global effort to mitigate climate change. Additionally, by providing clean and renewable energy, wind catchers help to improve energy access and energy security in communities that might otherwise lack reliable sources of power. So, wind catchers address global energy challenges by providing affordable, sustainable, and environmentally friendly solutions to meet local energy needs.
Learning transferred to other parties
The following elements of our concept can be replicated or transferred to other contexts:
Methodology: The basic principle of wind catchers can be applied in other regions and climates with suitable modifications, such as changing the orientation, size and shape to adapt to local wind patterns.
Technology: The use of low-cost, sustainable and locally available materials to construct wind catchers can be replicated in other communities and contexts, promoting environmentally friendly building practices.
Processes: The traditional knowledge and skills of wind catcher construction can be transferred to local communities and organizations, promoting local economic development and cultural preservation.
Products: The design of wind catchers can be adapted to different building types, such as homes, schools, community centers and public spaces, providing passive cooling and natural ventilation in a variety of settings.
Learnings: The lessons learned from implementing wind catchers can be shared and applied to other sustainable building and energy-efficient initiatives, contributing to the overall goal of reducing energy consumption and mitigating the impacts of climate change.
Overall, the replicability and transferability of wind catchers depends on local factors, such as micro-climate, resources, and policy, but their widespread implementation can bring significant benefits to communities and the environment.
Methodology: The basic principle of wind catchers can be applied in other regions and climates with suitable modifications, such as changing the orientation, size and shape to adapt to local wind patterns.
Technology: The use of low-cost, sustainable and locally available materials to construct wind catchers can be replicated in other communities and contexts, promoting environmentally friendly building practices.
Processes: The traditional knowledge and skills of wind catcher construction can be transferred to local communities and organizations, promoting local economic development and cultural preservation.
Products: The design of wind catchers can be adapted to different building types, such as homes, schools, community centers and public spaces, providing passive cooling and natural ventilation in a variety of settings.
Learnings: The lessons learned from implementing wind catchers can be shared and applied to other sustainable building and energy-efficient initiatives, contributing to the overall goal of reducing energy consumption and mitigating the impacts of climate change.
Overall, the replicability and transferability of wind catchers depends on local factors, such as micro-climate, resources, and policy, but their widespread implementation can bring significant benefits to communities and the environment.
Keywords
Airflow
Sustainability
Architecture
Ventilation
Efficiency