We would prefer not to
Basic information
Project Title
We would prefer not to
Full project title
We would prefer not to. An approximation to an Urban Mining model for the city of Madrid.
Category
Shaping a circular industrial ecosystem and supporting life-cycle thinking
Project Description
For the longest time our built environment has evolved amid two separate states: nature, from which we extract raw materials, and architecture, into which they are transformed. However, the shift of materials to the city and a decreasing life expectancy of buildings are making this model obsolete.
But what if we were to consider buildings as temporary material storages? The city would become a mine for itself, alleviating pressure on raw materials. All we need is to learn how to mine the city.
But what if we were to consider buildings as temporary material storages? The city would become a mine for itself, alleviating pressure on raw materials. All we need is to learn how to mine the city.
Geographical Scope
Regional
Project Region
Madrid, Spain
Urban or rural issues
Mainly urban
Physical or other transformations
It refers to a physical transformation of the built environment (hard investment)
EU Programme or fund
No
Description of the project
Summary
‘We would prefer not to’ stems from Melville's story ‘Bartleby the Scrivener’, which has been used to represent one of the most fundamental principles of sustainability from the 1987 Bruntland Report: refusing to do something if it is considered unsustainable. In architecture, this means to rigorously assess whether or why the construction of a building is necessary.
Following Bartleby, the first act is to reject the modus operandi of traditional construction ecosystems. Consequently, the concept originates from considering a building not as the final stage of the chain value of the building process but as a temporary storage of building materials, transforming the city into a mine itself.
The intention is to alleviate pressure on natural raw materials and increase efficiency of the construction of the build environment by considering CDW as potential raw materials, transformed into new construction components through urban complexes (UC) and peri-urban plants for the screening, assessment, treatment, research, storage, commerce and cultural dissemination of CDW.
In this context, UCs would act as intermediaries inside the city, by-passing via truck the flow of CDW generated in demolition sites through UCZ to assess, separate and refer them to the specific treatment plants. UCs would have access to the underground railway infrastructure to construct a strong hybrid truck-rail transport network that would connect supply (demolition sites) with demand (construction sites). (see panel2)
The concept of this candidacy consists on the design and building of an UC in an optimal site, Urban Complex Zero (UCZ). In place of a prototype UCZ, together with a part of the hybrid transport network, would test the benefits of the model. Thus, the present application is the proof of concept for the full-scale transformation of the CDW ecosystem, which would make use of UCs in strategic sites to radically transition models with minimum construction, as is intended with UCZ.
Following Bartleby, the first act is to reject the modus operandi of traditional construction ecosystems. Consequently, the concept originates from considering a building not as the final stage of the chain value of the building process but as a temporary storage of building materials, transforming the city into a mine itself.
The intention is to alleviate pressure on natural raw materials and increase efficiency of the construction of the build environment by considering CDW as potential raw materials, transformed into new construction components through urban complexes (UC) and peri-urban plants for the screening, assessment, treatment, research, storage, commerce and cultural dissemination of CDW.
In this context, UCs would act as intermediaries inside the city, by-passing via truck the flow of CDW generated in demolition sites through UCZ to assess, separate and refer them to the specific treatment plants. UCs would have access to the underground railway infrastructure to construct a strong hybrid truck-rail transport network that would connect supply (demolition sites) with demand (construction sites). (see panel2)
The concept of this candidacy consists on the design and building of an UC in an optimal site, Urban Complex Zero (UCZ). In place of a prototype UCZ, together with a part of the hybrid transport network, would test the benefits of the model. Thus, the present application is the proof of concept for the full-scale transformation of the CDW ecosystem, which would make use of UCs in strategic sites to radically transition models with minimum construction, as is intended with UCZ.
Key objectives for sustainability
Key objective (Ko) 1: lower transport emissions by:
1.1 Reducing distances for truck transported CDW by rerouting the paths thorough UCZ in the city, allowing the discarded materials to be separated and evaluated properly before referring them to far away peripheral plants.
1.2 Integrating electric railway transport into the network by developing a hybrid rail-truck system. UCZ would be connected to the underground railway infrastructure. This way, the flux of CDW reverted through UCZ would be sent via train to the peripheral plants for hard industrial treatment while CDW that require soft industrial processes for quick recyclability would be treated in the UCZ. (see panel1)
1.3 Planting an “urban carbon forests” surrounding UCZ, mitigating emissions of the soft industrialized processes in UCZ, striving towards a net zero emissions. (see panel4)
Ko 2: increase CDW based building materials and MLM in the building industry by:
2.1 Optimizing the CDW management system. UCZ acts as a preliminary filter for demolition sites that do not invest resources into on-site CDW separation. This way, the existing infrastructure can transition into specialized plants with controlled transformation and value chain since screening and evaluating processes disappear at every plant.
2.2 Promoting R&D&i in CDW recycling. Facilities in UCZ would research and develop new and enhanced products and ways to recycle CDW for overall better reused and recycled building components, striving to increase mechanical capabilities for aesthetical and reliable products. This is fundamental in creating competitive, low-cost products to insert into the market.
2.3 Bridging the gap between civil society’s knowledge and real recycled materials and MLM and their processes. UCZ would also serve as a cultural hub, for exchange, exposition and entrepreneurship.
The concept can be exemplary in tackling sustainable growth form a holistic perspective, by securing means, market and cultural demand.
1.1 Reducing distances for truck transported CDW by rerouting the paths thorough UCZ in the city, allowing the discarded materials to be separated and evaluated properly before referring them to far away peripheral plants.
1.2 Integrating electric railway transport into the network by developing a hybrid rail-truck system. UCZ would be connected to the underground railway infrastructure. This way, the flux of CDW reverted through UCZ would be sent via train to the peripheral plants for hard industrial treatment while CDW that require soft industrial processes for quick recyclability would be treated in the UCZ. (see panel1)
1.3 Planting an “urban carbon forests” surrounding UCZ, mitigating emissions of the soft industrialized processes in UCZ, striving towards a net zero emissions. (see panel4)
Ko 2: increase CDW based building materials and MLM in the building industry by:
2.1 Optimizing the CDW management system. UCZ acts as a preliminary filter for demolition sites that do not invest resources into on-site CDW separation. This way, the existing infrastructure can transition into specialized plants with controlled transformation and value chain since screening and evaluating processes disappear at every plant.
2.2 Promoting R&D&i in CDW recycling. Facilities in UCZ would research and develop new and enhanced products and ways to recycle CDW for overall better reused and recycled building components, striving to increase mechanical capabilities for aesthetical and reliable products. This is fundamental in creating competitive, low-cost products to insert into the market.
2.3 Bridging the gap between civil society’s knowledge and real recycled materials and MLM and their processes. UCZ would also serve as a cultural hub, for exchange, exposition and entrepreneurship.
The concept can be exemplary in tackling sustainable growth form a holistic perspective, by securing means, market and cultural demand.
Key objectives for aesthetics and quality
Ko 1: explore the aesthetics of sustainability by:
1.1 Fostering a collective search for aesthetics of sustainability. Most of the time, sustainability has been treated as and from a scientific perspective. However, to make a profound impact and stay in societies collective imagination, sustainability must also develop and expand its aesthetical faculties. This would normalize and integrate sustainability into social, cultural, political and economic environments. (see panel9)
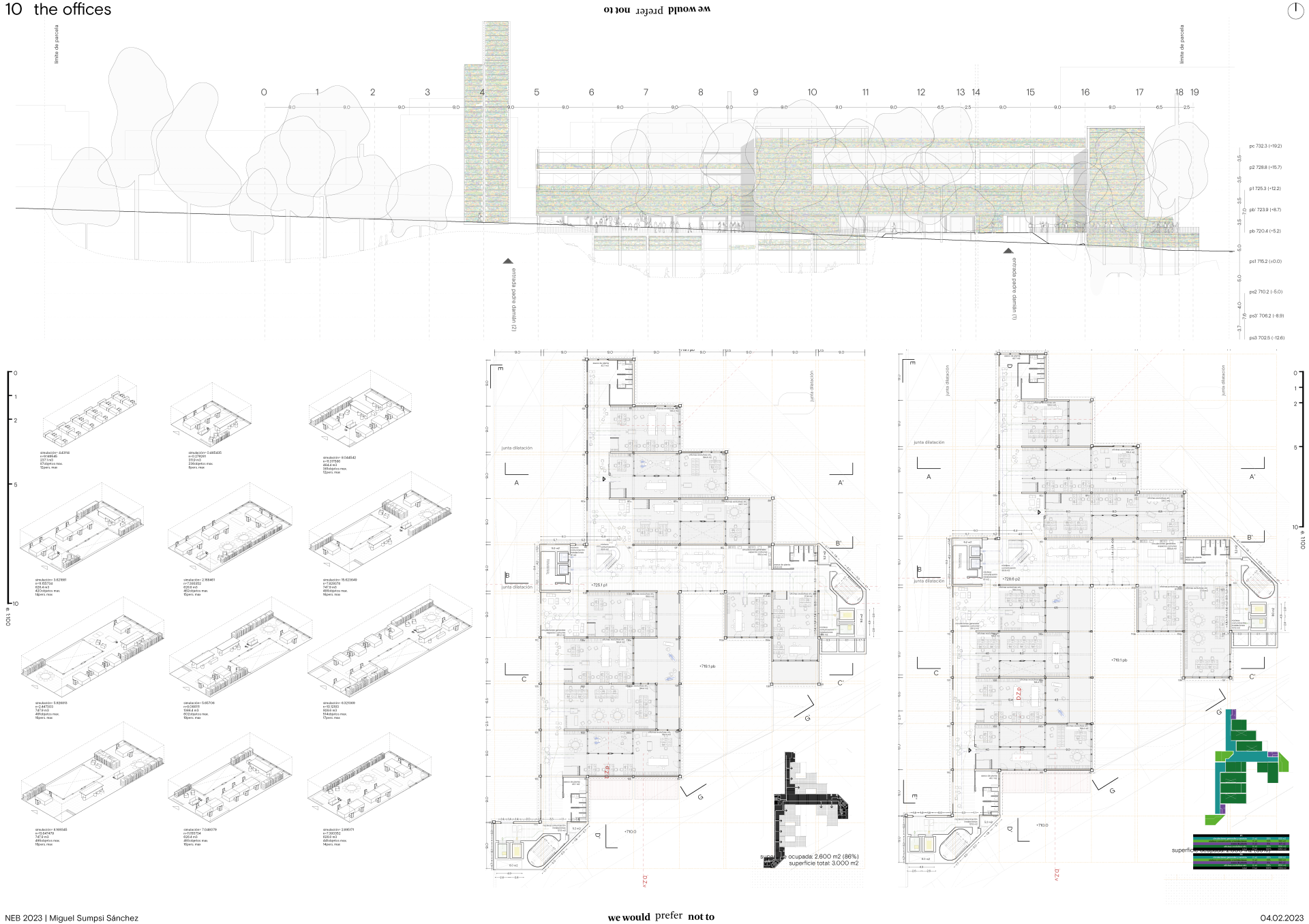
1.2 Providing space for collective experimentation and cultural exchange. In this sense, UCZ (once more) adapts a role of practice field, where designers can experiment with the aesthetics of reused and recycled materials, in the exposition areas as well as in the upper floor offices which change to fit the need of the moment. Both areas are supplied by the latest materials generated by the building itself. This is a result of UCZ’s embodiment of a proto-sustainability aesthetic, which drives the design into adaptive systems to minimize wastefulness.
Ko 2: apply the aesthetics of sustainability by:
2.1 Creating demand for recycled building components and experimenting with them in UCZ themselves. UCZ is designed for maximizing the use of MLM, CDW based building solutions and reused materials.
2.2 Bringing aesthetics of reused materials to civil society. The normalization of MLM is key, together with scientific development, for the extended use of MLM. In this sense, the entire façade consists of a collage of diverse reclaimed and discarded materials and repurposed demolition debris. This not only sets the tone for what’s inside, but also allows the users to get up close and experiment firsthand the different materialities, tones and textures of reused materials and MLM. Because the origin of materials is the local demolition sites, the materials would be mostly ceramic and rock. In conclusion, personal discovery of the hidden beauty materials could have catalyst effects. (see panel0)
1.1 Fostering a collective search for aesthetics of sustainability. Most of the time, sustainability has been treated as and from a scientific perspective. However, to make a profound impact and stay in societies collective imagination, sustainability must also develop and expand its aesthetical faculties. This would normalize and integrate sustainability into social, cultural, political and economic environments. (see panel9)
1.2 Providing space for collective experimentation and cultural exchange. In this sense, UCZ (once more) adapts a role of practice field, where designers can experiment with the aesthetics of reused and recycled materials, in the exposition areas as well as in the upper floor offices which change to fit the need of the moment. Both areas are supplied by the latest materials generated by the building itself. This is a result of UCZ’s embodiment of a proto-sustainability aesthetic, which drives the design into adaptive systems to minimize wastefulness.
Ko 2: apply the aesthetics of sustainability by:
2.1 Creating demand for recycled building components and experimenting with them in UCZ themselves. UCZ is designed for maximizing the use of MLM, CDW based building solutions and reused materials.
2.2 Bringing aesthetics of reused materials to civil society. The normalization of MLM is key, together with scientific development, for the extended use of MLM. In this sense, the entire façade consists of a collage of diverse reclaimed and discarded materials and repurposed demolition debris. This not only sets the tone for what’s inside, but also allows the users to get up close and experiment firsthand the different materialities, tones and textures of reused materials and MLM. Because the origin of materials is the local demolition sites, the materials would be mostly ceramic and rock. In conclusion, personal discovery of the hidden beauty materials could have catalyst effects. (see panel0)
Key objectives for inclusion
Ko 1: to design a building without bias towards any group of individuals by:
1.1 Designing a stairless primary circulation scheme. This is also driven by constant movement of heavy reused and recycled building materials and CDW, which forces the design of the building to reconsider traditional methods of vertical and diagonal communication. (see FIG04)
1.2 Planning the building to reflect the aesthetics and materiality of repurposed materials, driving away from the personal partiality of the designer. The design principles followed must reconsider traditional principles to enhance the experience of space and materials, to discover the inherent beauty and uniqueness of each of discarded building components, the beauty of the irregularity of each piece.
Ko 2: to attract a diverse user and audience by:
2.1 Planning UCs carefully to ensure that they are equally distributed throughout the city to guarantee affordable and comfortable access from all neighborhoods and rent-based strata, following the example set by UCZ.
2.2 Creating main attractive accesses that pull directly from the street in the form of small sloping ramps through the peripheral urban forest. The forest with its civil spaces pseudo-planned inside, would act as a social condenser, attracting citizens outside of the neighborhood. (see FIG2 & FIG3)
2.3 Fitting the cultural and leisure supply for all. The cultural program is limited by the raw material that fuels it, this is, MLM generated in the building. However, the main universal attractor would be climatically fitted exterior spaces and diverse leisure agenda.
The concept can be exemplary in understanding precursory preexisting bias in the system and focusing on by-passing them to construct an equal plane. In the case of Madrid this was done by a careful analysis of the sites for UCZ, ensuring not only the basic necessity like accesses to underground rail tunnels and main roads, but also public transport and population distribution by rent.
1.1 Designing a stairless primary circulation scheme. This is also driven by constant movement of heavy reused and recycled building materials and CDW, which forces the design of the building to reconsider traditional methods of vertical and diagonal communication. (see FIG04)
1.2 Planning the building to reflect the aesthetics and materiality of repurposed materials, driving away from the personal partiality of the designer. The design principles followed must reconsider traditional principles to enhance the experience of space and materials, to discover the inherent beauty and uniqueness of each of discarded building components, the beauty of the irregularity of each piece.
Ko 2: to attract a diverse user and audience by:
2.1 Planning UCs carefully to ensure that they are equally distributed throughout the city to guarantee affordable and comfortable access from all neighborhoods and rent-based strata, following the example set by UCZ.
2.2 Creating main attractive accesses that pull directly from the street in the form of small sloping ramps through the peripheral urban forest. The forest with its civil spaces pseudo-planned inside, would act as a social condenser, attracting citizens outside of the neighborhood. (see FIG2 & FIG3)
2.3 Fitting the cultural and leisure supply for all. The cultural program is limited by the raw material that fuels it, this is, MLM generated in the building. However, the main universal attractor would be climatically fitted exterior spaces and diverse leisure agenda.
The concept can be exemplary in understanding precursory preexisting bias in the system and focusing on by-passing them to construct an equal plane. In the case of Madrid this was done by a careful analysis of the sites for UCZ, ensuring not only the basic necessity like accesses to underground rail tunnels and main roads, but also public transport and population distribution by rent.
How Citizens benefit
1 Citizens would be benefited by:
1.1 Having a CDW management system that can be sustained throughout the years and gives access to new materials for a better and sustainable built environment, ensuring that health risks due to incorrect waste management and disposal and hazardous airborne particles and gases emissions are reduced to zero.
1.2 Living in cities that offer equal and inspiring places, with climatic comfort spaces for social interaction and cultural exchange to enhance the knowledge of the build environment and the city itself for a more purposed experience.
2 Civil society would be involved in:
2.1 Shaping the comings aesthetics themselves, by forming critical opinion of the materials exposed in UCZ, and learning of reused and recycled material for conscious decision making.
2.2 Dictating the coming needs of new materials and shaping the sustainable future. They are part of the process of the CDW management system and of the creation of specific and awareness-driven demand of products.
3 The impact of civil society together with the citizens would be:
3.1 Tailoring future developments of MLM and CDW based products and construction materials, as they would be integrated into the processes of dictating aesthetic trends because they are exposed to the developing of products.
3.2 Driving the system towards full circularity and sustainable development in the construction industry and market. Once they are self-aware of the role, they, as a collective, play in the complex dynamics and effects of the building industry in their lives, their wellbeing and environmental stability they would take affirmative action.
1.1 Having a CDW management system that can be sustained throughout the years and gives access to new materials for a better and sustainable built environment, ensuring that health risks due to incorrect waste management and disposal and hazardous airborne particles and gases emissions are reduced to zero.
1.2 Living in cities that offer equal and inspiring places, with climatic comfort spaces for social interaction and cultural exchange to enhance the knowledge of the build environment and the city itself for a more purposed experience.
2 Civil society would be involved in:
2.1 Shaping the comings aesthetics themselves, by forming critical opinion of the materials exposed in UCZ, and learning of reused and recycled material for conscious decision making.
2.2 Dictating the coming needs of new materials and shaping the sustainable future. They are part of the process of the CDW management system and of the creation of specific and awareness-driven demand of products.
3 The impact of civil society together with the citizens would be:
3.1 Tailoring future developments of MLM and CDW based products and construction materials, as they would be integrated into the processes of dictating aesthetic trends because they are exposed to the developing of products.
3.2 Driving the system towards full circularity and sustainable development in the construction industry and market. Once they are self-aware of the role, they, as a collective, play in the complex dynamics and effects of the building industry in their lives, their wellbeing and environmental stability they would take affirmative action.
Physical or other transformations
It refers to a physical transformation of the built environment (hard investment)
Innovative character
The concept proposes a paradigm change and is innovative by reconverting a traditional infrastructure into a more adapted and actualized system. However, the paradigm change can only be achieved when multiple milieus of society are affected. The concept forces change in scientific, politic, economic and social contexts.
Furthermore, the connecting infrastructure of recycling plants and railways systems in never considered in CDW management field, and urban CDW infrastructure inside the city is only slowly beginning to appear in some European cities. Lastly, traditions and mainstream actions rely on an atomized system of ill-connected plants. Mainstreaming and centralizing the system through UCZ allows the system is as a whole to increase efficiency. So, in this context, at least in Spain, this approach is innovative and future-thinking.
This concept accepts the fact that, until on-site separation and in general social and political awareness about CDW and waste in general catch up, an alternative solution must be provided: this is, a centralized urban logistic, screening and preliminary evaluation system for all demolition sites. This principle was rarely found in CDW management systems and waste management in general when studying European systems as part of a set of preliminary steps taken.
The innovative nature of the concept resides in the holistic tackling of issues. A paradigm change like the one UCZ is representing is not possible unless every aspect of it is transitioning. This is why all objectives are intertwined. (see Development plan)
Furthermore, the connecting infrastructure of recycling plants and railways systems in never considered in CDW management field, and urban CDW infrastructure inside the city is only slowly beginning to appear in some European cities. Lastly, traditions and mainstream actions rely on an atomized system of ill-connected plants. Mainstreaming and centralizing the system through UCZ allows the system is as a whole to increase efficiency. So, in this context, at least in Spain, this approach is innovative and future-thinking.
This concept accepts the fact that, until on-site separation and in general social and political awareness about CDW and waste in general catch up, an alternative solution must be provided: this is, a centralized urban logistic, screening and preliminary evaluation system for all demolition sites. This principle was rarely found in CDW management systems and waste management in general when studying European systems as part of a set of preliminary steps taken.
The innovative nature of the concept resides in the holistic tackling of issues. A paradigm change like the one UCZ is representing is not possible unless every aspect of it is transitioning. This is why all objectives are intertwined. (see Development plan)
Disciplines/knowledge reflected
Architecture
Landscape
Urbanism
Engineering
Art
Buissnes
Architects and Landscape experts interacted to form an integrated design between the peripheral urban forest and architecture of the building, maximizing the synergy between the two worlds, mediated between an outdoors walkway that goes around the building and enables users to approach both opposing virtual façades, the natural one, displaying trees and plants and the architectural one displaying concrete and reused, reclaimed and recycled building materials. (see panel5&12)
Similarly, architecture and engineering had to cooperate closely with each other to design the container of industrial processes of screening, evaluation and logistics, not only to ensure the correct operation of the machines and the system but also of sound, vibration and emission mitigations. Consulting specialized architects and engineers in the academic context was crucial to make fundamental decisions such as the structure grid, the access points and overall stratification system of the building.
The concept would not be viable if experienced urbanists had not given crucial feedback on the criteria for site selection and analysis. The same experts were responsible for the understanding of the infrastructures of the city and their inter-dependency, which helped design the system for the correct insertion of UCZ and modification of the transport network into the city of Madrid.
Artists were also consulted for the needs of the exposition areas and the opinion on the roll the cultural exchange can play in shaping civil society’s outtake on the matter. It is important not to underestimate the effects of inspiration derived from the treatment of reused, repurposed and recycled matter. This is, of second matter.
The design of use-specific spaces such as offices also respond crucial insight, primarily, of business models recurrent in startup hubs, and multi-disciplinary hubs of innovation, business, cultural and leisure affairs.
Landscape
Urbanism
Engineering
Art
Buissnes
Architects and Landscape experts interacted to form an integrated design between the peripheral urban forest and architecture of the building, maximizing the synergy between the two worlds, mediated between an outdoors walkway that goes around the building and enables users to approach both opposing virtual façades, the natural one, displaying trees and plants and the architectural one displaying concrete and reused, reclaimed and recycled building materials. (see panel5&12)
Similarly, architecture and engineering had to cooperate closely with each other to design the container of industrial processes of screening, evaluation and logistics, not only to ensure the correct operation of the machines and the system but also of sound, vibration and emission mitigations. Consulting specialized architects and engineers in the academic context was crucial to make fundamental decisions such as the structure grid, the access points and overall stratification system of the building.
The concept would not be viable if experienced urbanists had not given crucial feedback on the criteria for site selection and analysis. The same experts were responsible for the understanding of the infrastructures of the city and their inter-dependency, which helped design the system for the correct insertion of UCZ and modification of the transport network into the city of Madrid.
Artists were also consulted for the needs of the exposition areas and the opinion on the roll the cultural exchange can play in shaping civil society’s outtake on the matter. It is important not to underestimate the effects of inspiration derived from the treatment of reused, repurposed and recycled matter. This is, of second matter.
The design of use-specific spaces such as offices also respond crucial insight, primarily, of business models recurrent in startup hubs, and multi-disciplinary hubs of innovation, business, cultural and leisure affairs.
How stakeholders are engaged
1 Local stakeholders engagement and impact:
1.1 Citizens of Madrid impact the use of research and innovation facilities. They provide need-specific information that shape the use of the system adding value through effectiveness. The design of the public and cultural parts of UCZ aims to be adaptable to their requirements, proposing a base system as a template that can be adaptable to the site and neighborhood’s specific needs. This is shown in the detailed drawings of UCZ prototype-like design for a site in the north of Madrid.
1.2 Building developers and sponsors shape UCZ, by providing local reused building materials to form place-specific identity. This is a particularly successful symbiotic relationship between stakeholders, and UCZ. It is known that all these stakeholders invest time and economic resources without profitable gains (yet) to discard CDW in order to begin building. By creating demand of CDW the construction cost of UCZ can be lowered while stimulating adding value to currently unprofitable CDW.
2 Regional stakeholders engagement and impact:
2.1 The development of sites for UCZ. The planning of the transport and processing system connected through UCZ, would have to be developed in close collaboration with regional future plants to ensure viability. Regional stakeholders would add value through the realistic implementation of the model.
2.2 The local and regional developers of big urbanization projects. One of the factors in the site evaluation process for UCZ was the proximity to the New La Paz Hospital and Madrid Nuevo Norte plan. These major transformative projects for the Province of Madrid provide large flows of CDW and would benefit from outsourcing their management.
3 National stakeholders engagement and impact:
3.1 Reducing Spain’s emissions to meet the emissions cap in accordance with EU ETS is in the interest of many national stakeholders, specially focusing in Madrid.
European stakeholders are yet to be engaged.
1.1 Citizens of Madrid impact the use of research and innovation facilities. They provide need-specific information that shape the use of the system adding value through effectiveness. The design of the public and cultural parts of UCZ aims to be adaptable to their requirements, proposing a base system as a template that can be adaptable to the site and neighborhood’s specific needs. This is shown in the detailed drawings of UCZ prototype-like design for a site in the north of Madrid.
1.2 Building developers and sponsors shape UCZ, by providing local reused building materials to form place-specific identity. This is a particularly successful symbiotic relationship between stakeholders, and UCZ. It is known that all these stakeholders invest time and economic resources without profitable gains (yet) to discard CDW in order to begin building. By creating demand of CDW the construction cost of UCZ can be lowered while stimulating adding value to currently unprofitable CDW.
2 Regional stakeholders engagement and impact:
2.1 The development of sites for UCZ. The planning of the transport and processing system connected through UCZ, would have to be developed in close collaboration with regional future plants to ensure viability. Regional stakeholders would add value through the realistic implementation of the model.
2.2 The local and regional developers of big urbanization projects. One of the factors in the site evaluation process for UCZ was the proximity to the New La Paz Hospital and Madrid Nuevo Norte plan. These major transformative projects for the Province of Madrid provide large flows of CDW and would benefit from outsourcing their management.
3 National stakeholders engagement and impact:
3.1 Reducing Spain’s emissions to meet the emissions cap in accordance with EU ETS is in the interest of many national stakeholders, specially focusing in Madrid.
European stakeholders are yet to be engaged.
Global challenges
1 Sustainable growth in the construction industry.
The local solution proposed in this concept is to transform the existing supply chain of building materials and shift the CDW managing and recycling model into an adapted system that y less dependent on natural resources and exploitation-based. This is in response to the global need for a sustainable economic and developmental model, that is environmentally and ecologically realistic.
2 Circularity in the construction industry.
The urban mining proposed in this concept is promoting the change towards a potential circularity-based modus operandi, transforming the supply and demand market of building materials as a prosumer in itself. This addresses the global concern for the transition into circularity-based model in many economic and production sectors.
3 Emissions cap compliance.
The concept proposed tackles sustainability by targeting the “low hanging fruit” of the race for sustainable construction: CDW transport emissions of CO2 and greenhouse effect gases. This is due to the heavy weight of many CDW and the long-distanced, and sometimes inefficient, transport network. By addressing both causes, the concept is also addressing the country’s global goal of reducing emissions. (see Development plan)
4 Cultural integration and information dissemination.
Taking advantage of UCZ conglomeration and hub-like nature, the concept aims to increase the public knowledge and civic society’s opinion on CDW, the transformation process, its implications and the products that derive from it. The intention is both to increase the social and cultural value of CDW, MLM and CDW-based products and also to raise awareness of environmental and health risks involved with the current system in an effort to drive the transition towards a sustainable model. This aspect of the concept is aligned with global efforts to improve social participation and action through the effective dissemination of information to the mass public.
The local solution proposed in this concept is to transform the existing supply chain of building materials and shift the CDW managing and recycling model into an adapted system that y less dependent on natural resources and exploitation-based. This is in response to the global need for a sustainable economic and developmental model, that is environmentally and ecologically realistic.
2 Circularity in the construction industry.
The urban mining proposed in this concept is promoting the change towards a potential circularity-based modus operandi, transforming the supply and demand market of building materials as a prosumer in itself. This addresses the global concern for the transition into circularity-based model in many economic and production sectors.
3 Emissions cap compliance.
The concept proposed tackles sustainability by targeting the “low hanging fruit” of the race for sustainable construction: CDW transport emissions of CO2 and greenhouse effect gases. This is due to the heavy weight of many CDW and the long-distanced, and sometimes inefficient, transport network. By addressing both causes, the concept is also addressing the country’s global goal of reducing emissions. (see Development plan)
4 Cultural integration and information dissemination.
Taking advantage of UCZ conglomeration and hub-like nature, the concept aims to increase the public knowledge and civic society’s opinion on CDW, the transformation process, its implications and the products that derive from it. The intention is both to increase the social and cultural value of CDW, MLM and CDW-based products and also to raise awareness of environmental and health risks involved with the current system in an effort to drive the transition towards a sustainable model. This aspect of the concept is aligned with global efforts to improve social participation and action through the effective dissemination of information to the mass public.
Learning transferred to other parties
1 Soft replicability, meaning it can be replicable with reasonably low similarities to Madrid:
1.1 urban-periurban hybridization. Bringing small parts of the system inside the city can have big advantages such as civic awareness, logistic and strategic benefits, and better integration urban-rural integration. However, the city, because of the inhabitants, has a small margin of possibles uses it can host, and therefore the hybrid system must be carefully evaluated to avoid using sites inside the city for unsuitable uses. This method can be integrated into other urban-periurban infrastructure and systems.
1.2 cultural, logistic and scientific synergies in urban infrastructure. One of the strategic effects of building logistic, cultural and innovation hubs in specific sites is synergic relationships between the fields. Mainly, having a closer connection and influence between the cultural, technological and economic perspectives. This holistic outcome can help guide the path towards an integrated circular system of production and consumption of building materials.
1.3 the façade construction system for the cladding of reused and reproposed ceramic and mineral discarded building components is described in the UC prototype drawings. Said system can be exported seamlessly to other cities and contexts, creating demand and adding value to CDW. (see panel14)
2 Hard replicability, meaning it can be replicable with fundamental similarities to Madrid:
2. truck-rail transport system. Madrid has compatible railway and CDW infrastructures, meaning the train tracks and even some logistic railway stations are in proximity to many CDW processing plants. This is indicative of a traditional centralized and radial territorial structure and it is not uncommon in European cities. In such cities, the urban mining model proposed in this concept for the city of Madrid can be very similarly replicated. (see panel7)
1.1 urban-periurban hybridization. Bringing small parts of the system inside the city can have big advantages such as civic awareness, logistic and strategic benefits, and better integration urban-rural integration. However, the city, because of the inhabitants, has a small margin of possibles uses it can host, and therefore the hybrid system must be carefully evaluated to avoid using sites inside the city for unsuitable uses. This method can be integrated into other urban-periurban infrastructure and systems.
1.2 cultural, logistic and scientific synergies in urban infrastructure. One of the strategic effects of building logistic, cultural and innovation hubs in specific sites is synergic relationships between the fields. Mainly, having a closer connection and influence between the cultural, technological and economic perspectives. This holistic outcome can help guide the path towards an integrated circular system of production and consumption of building materials.
1.3 the façade construction system for the cladding of reused and reproposed ceramic and mineral discarded building components is described in the UC prototype drawings. Said system can be exported seamlessly to other cities and contexts, creating demand and adding value to CDW. (see panel14)
2 Hard replicability, meaning it can be replicable with fundamental similarities to Madrid:
2. truck-rail transport system. Madrid has compatible railway and CDW infrastructures, meaning the train tracks and even some logistic railway stations are in proximity to many CDW processing plants. This is indicative of a traditional centralized and radial territorial structure and it is not uncommon in European cities. In such cities, the urban mining model proposed in this concept for the city of Madrid can be very similarly replicated. (see panel7)
Keywords
Urban Mining
Construction & Demolition Waste (CDW)
Circularity
Urban Centers / Complex (UC)
Multiple life building materials (MLM)