Transforming place of learning sport
Basic information
Project Title
Transforming place of learning sport
Full project title
Transforming place of learning sport
Category
Regaining a sense of belonging
Project Description
The facility for basketball performances "Basketball Hall Virovitica" was designed based on the 3 findings of the New European Bauhaus. Beautiful in the Hall is achieved through design, form and construction of architecture and urbanism. Sustainable is defined by engineering solutions that aim for the minimum possible carbon emission. Together, it includes the narrower and wider community, which is actively integrated into sports through complementary contents.
Geographical Scope
Local
Project Region
Croatia
Urban or rural issues
Mainly urban
Physical or other transformations
It refers to a physical transformation of the built environment (hard investment)
EU Programme or fund
No
Description of the project
Summary
The sports infrastructure of the city of Virovitica, as well as the entire Virovitica-Podravine County, is actively and continuously raising the standard through renovations, construction, education, competitions and constant investments. The sports community in the area of the City and County is actively growing from year to year, not only in numbers, but also in results. The focus of this project is basketball infrastructure. Basketball infrastructure, in addition to adequate buildings with adequate equipment, also includes adequate experts. For the transformation of an informal place of learning, the existing, outdoor, buried basketball court with filled green bleachers is thus taken. The most visited is the city's basketball court, known as "Borac". It is located in the sports and recreation complex "Vegeška" on the very border of the green field of the city area of the former barracks. The memory of the space as the location and the composition of the playground itself are the starting point for the transformation of the open space of the playground into a new modern, sustainable, green, digital, smart sports facility, which is inspired by a holistic approach to sports, as a transformation of a place to learn basketball with the support of complementary activities related to sports in general. There are two main goals of the project: on the one hand, to create beautiful and sustainable architecture and urbanism, and on the other hand, to involve the community in the contents. The first objective includes green: local materials, renewable sources, recycling; smart: engineering solutions; digital: automation. Another goal includes green: exercise, healthy local food, health, testing; smart: specialist support from experts; digital: video, sensors, measurements.
Key objectives for sustainability
The key goals of the initiative in terms of sustainability are realized in the design phase (preparation of project documentation, applied green engineering solutions) and implementation (standardized building products, specialized workers, optimization of the construction process) of the "Basketball Hall Virovitica" architecture. The goal in these phases is to achieve the smallest possible carbon footprint of the building through the use of local materials, renewable sources and recycling. By optimizing the achievement of basic building requirements, sustainable architecture is realized. Cooperation with partners who have the necessary information on standards to achieve green certification through implementation of best practices is also a direction towards standardized sustainability. Experimental engineering solutions foreseen by the project (necessary testing/confirmation through protocols, standardization, norming, software,…) are also a contribution to sustainability. Respecting the universal principles of architectural composition and considering the materials used, the aim is to achieve the elementary requirements for the longevity of the building. Thinking about materials takes an important place in the creation of sustainable architecture and urbanism, because materials become elements, elements become structures, structures become buildings, buildings become neighborhoods, neighborhoods become cities, and cities become regions. The sustainable function of the building conditions the specific consumption of space, which is manifested through the interior design (carpentry, installations, furniture, equipment, and treatment of walls, floors and ceilings). Sustainability is also reflected in the striving for the maximum quality standard of the internal conditions of the space according to the various requirements of the functions. The initiative in the context of sustainability can be an example of its principles of achieving sustainability in all phases.
Key objectives for aesthetics and quality
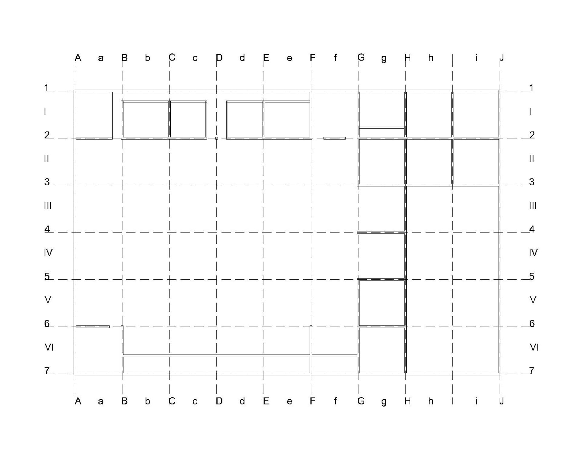
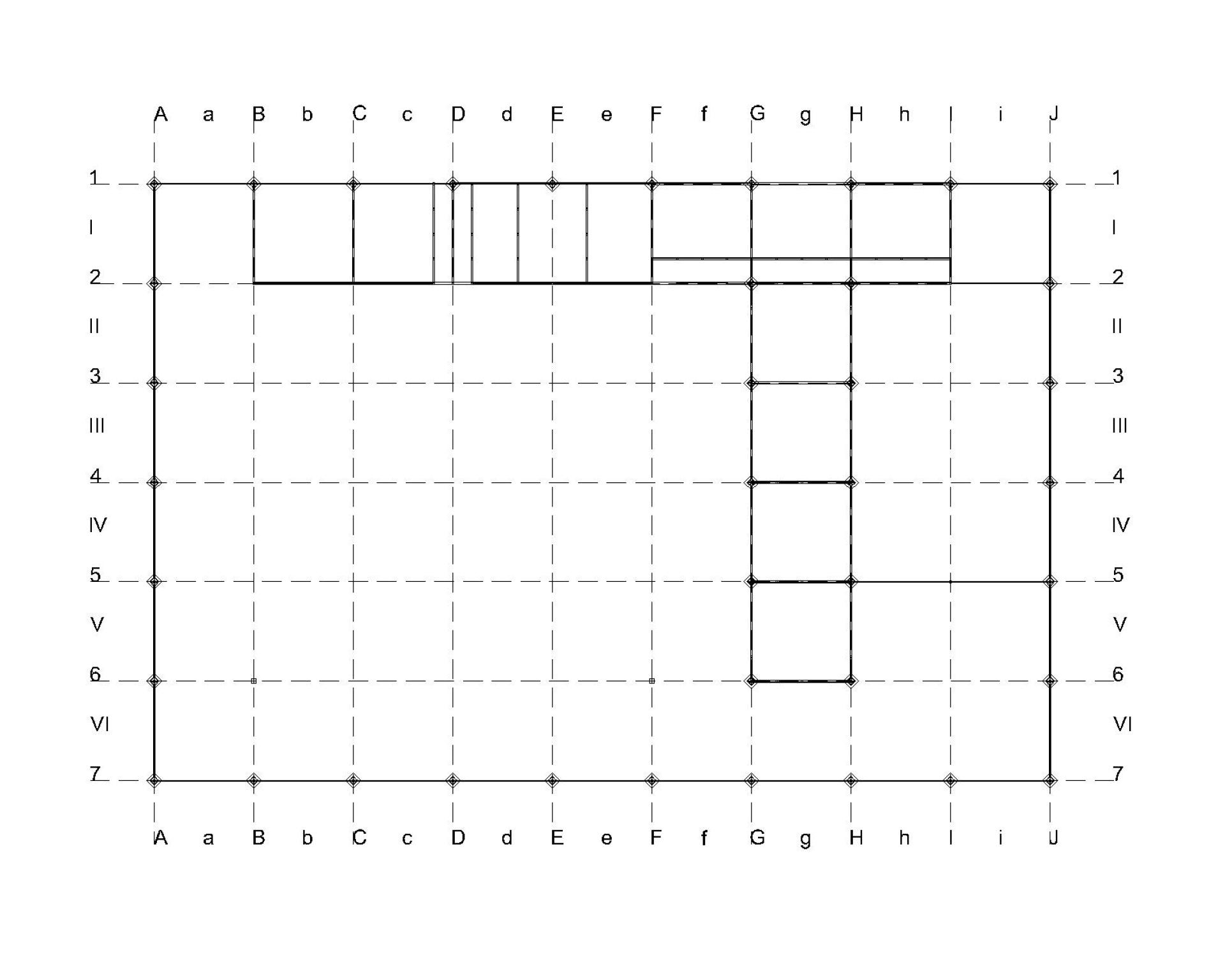
The key goals of the initiative in terms of aesthetics are achieved through the transformation of an open basketball court into a modern facility for basketball performances "Basketball Hall Virovitica". The location of the building itself is determined by the memory of the space-the existing outdoor playground. In general, structurally and functionally, the House is divided into:the southern part (6x6 fields) in which there is a basketball court covered with a prefabricated/segmental/functional domed roof, which is solved as a spatial structure; and the northern part (3x6 fields) where there is a gym with a flat/green roof. The Basketball Hall is divided into 2 levels.On floor -1 of the southern part there is a basketball court.On floor 0 of the northern part there is a gym, recovery/wellness, canteen; while floor -1 of the northern part is of service character.The ground floor around the Hall is connected by a soft walkway in the form of an athletic track.North of the building is: a basketball court with a central cantilever basket; and a basketball square with circular seating and a central statue.Interior and exterior design strives for a light, transparent, airy, accessible experience. The key goals of the initiative in terms of quality of experience for people is a transdisciplinary, structured, interactive, holistic experience of sport.The Hall also strives for the maximum quality standard of the internal conditions of the space according to the various functional requirements (temperature, humidity, lighting, acoustics, comfort, accessibility, tactility, visuality, transparency). Positive emotions should be best manifested in the match scenario (direct and interactive experience of the match, fan intensity).Cultural benefits are realized through the availability of content to all interested public.The initiative is universal in its approach to aesthetics and quality of experience for people, and in this context it can be an example in all its segments.
Key objectives for inclusion
The key goals of the initiative in terms of inclusion are realized through the accessibility of the contents of a modern sports facility, both in the creation of the contents themselves and in their consumption. The basketball hall is available to everyone. It is primarily available to basketball players (girls and boys) aged 6 to 18 through specialized training systems in micro and macro cycles. Accessibility in terms of food service is for everyone. The accessibility of the gym and recuperation, as well as public health kinesiology - nutrition services is also possible for everyone at certain times and under certain conditions. The contents of the arranged parterre (playground, square, athletic track, urban equipment and services) are of a public nature. Content related to complementary activities (culinary, informatics, sports medicine, physiotherapy, psychology, pedagogy,...) related to sports available to local, regional, national and European primary, secondary and higher schools and other professionally interested public. Inclusive governing systems will play a key role in the accessibility and affordability of the Hall's content. Inclusive and sustainable management is possible with clearly defined rights and obligations of all stakeholders. The governing system is finally defined by a transparent financial construction of inputs and outputs. The principle of design for all is manifested through a holistic approach to sports, and through the very principles of accessibility and affordability defined by the governing system. Optimizing the aforementioned principles creates the premise for new societal models through the synergy of all those involved in the realization and consumption of content. The initiative in the context of inclusiveness can be an example in all its segments, from adopting a holistic approach to sport to a transparent, inclusive and sustainable governing system.
Results in relation to category
The scope of progress in the implementation of the initiative at this stage is the application for the call "Transformation of places of learning". By registering for the mentioned call, the visibility of the project was achieved. The general development plan of the initiative is planned in 3 steps: 1.finishing desing; 2.promoting initiative; 3. closing economic construction (funding). In the year following the application, special attention was paid to the 1st step: finishing design. In this phase, familiarization with green standards, protocols, and software with which the architecture is tested, corrected, and optimized is foreseen. High-quality visualization and simulation of the object to the level of animation, which will later enable easier promotion of the initiative. In the design phase, it is important to work closely with engineers to find optimal, sustainable, innovative, green solutions that are applicable to the building itself, but which can also be replicated and transferred to other places. Cooperation with green manufacturers, cooperation with specialized contractors on various implementation details, cooperation with holders of digital platforms for tests/calculations/modulation of design solutions, cooperation with institutions on monitoring the achievement of set green goals is a prerequisite for achieving results and benefiting from the initiative in the year that follows applications. In the design phase, you should also get to the animation of the construction site (developing construction plans, optimizing construction site, detailed plan of building days). The use/affirmation/development of digital platforms to the possibility of assembling and disassembling the object in time with the calculation of the total carbon footprint ("digital twin" concept) is the ambition of the design phase. The assumptions of issuing the NEB construction permit will enable a transparent business model of financing and implementation of the project itself.
How Citizens benefit
Citizens benefit from the initiative in several ways. Citizens get a modern sports facility. The sports facility offers facilities that include civil society. Through kinesiological and nutritional information, citizens consume the health aspect of the initiative. The initiative promotes sustainable, healthy, green habits through individualized exercise and healthy eating programs. With the service of distributing healthy food, the initiative is linked to the developed local and regional agricultural and craft sector. The initiative is also linked to art with the statue on the basketball square. The initiative envisages a smaller library closely related to sports literature, as well as literature related to psychology and pedagogy, which will be available to both children and other interested members of the public. In addition to being preventive in terms of sports injuries, the sports program also foresees physiotherapy support in case of their occurrence. The initiative envisages programs for children both in terms of sports and complementary activities related to sports. The programs are educational in nature. The match scenario allows for an interactive experience of sports through statistics, videos, commentators, programs during breaks of the match. In this way, not only children who play and their coaches are included, but also children who realize other contents and their mentors. The building thus serves as a mechanism of initiative through its daily, weekly, monthly and annual cycles. The building also tries to become an example of green certified architecture by using the maximum possible use of local materials and the minimum possible carbon footprint, and in this way achieve a contribution to civil society in terms of sustainability.
Physical or other transformations
It refers to a physical transformation of the built environment (hard investment)
Innovative character
The innovative character of the initiative in the implementation phase of the holistic approach to basketball is a specialized hall with accompanying complementary contents related to sports.When compared to mainstream actions of sports education,the Hall should provide access to narrower and broader basketball-related specializations both to children themselves and to the wider interested public.The innovative character of the initiative is manifested through the involvement of various stakeholders in the implementation phase.Involvement of the school and health system in the implementation of complementary activities related to sports.The innovative character is manifested in the possibility of connection to the scientific-institutional community due to continuous and systematic data collection through kinesiology diagnostics.Innovative service of individualized exercise programs and healthy nutrition programs for all interested public.The involvement of various basketball stakeholders should lead to a clearly defined basketball curriculum according to the age and gender of the children.Innovative character in the design phase is manifested by testing/confirming all engineering solutions through best practices,protocols, standards,software in order to achieve the minimum possible carbon footprint and optimization of used materials to the full functionality of the green certified architecture itself.Compared to the traditional way of performing sports hall roofs,the prefabricated/segmental/functional domed roof is innovative in its construction,form and design.The design of the ground floor has an innovative character and consists of a soft athletic track around the Hall,a playground with a central basket and a basketball square with a statue and a floor fountain.The use/affirmation/development of digital platforms to the possibility of assembling and disassembling an object in time(the concept of a "digital twin")is a common innovative goal.
Disciplines/knowledge reflected
Disciplines more closely and broadly related to sports are foreseen in the design phase of the building.Each discipline is represented by its own room and equipment.Representatives of these disciplines are the key bearers of the implementation of the initiative of a holistic approach to sports through the transformation of the informal place of learning basketball.Disciplines closely related to basketball:basketball coaches,kinesiologists,nutritionists,physiotherapists.Learning the game of basketball begins with educated basketball coaches for technique and tactics who hold their training sessions on the basketball court.Kinesiologists adjust conditioning and motor exercises for each age and gender, which they perform in the gym.Nutritionists list the necessary nutritional values of food for optimal development of children by age and gender.Nutritionists prepare the nutritional booklet of the food served, and also collaborate on the preparation of the menu of the food served. The food itself is served in the canteen.Physiotherapists support the prevention and rehabilitation of sports injuries.Physiotherapy equipment and other sports medicine equipment is located in the clinic. Disciplines more broadly related to basketball:psychology,pedagogy,informatics,journalism, videographers,photographer.Psychology and pedagogy are taught by external assistants in the lecture hall/library.Computer scientists in the video editing room create videos and teach the interested public.The reporter's room accommodates journalists,commentators,photographers, videographers.Representatives of different fields of knowledge collaborate on narrower and broader topics related to sports.The common goal is to raise and monitor both the quality of the sport itself and the quality of complementary sports-related activities.The added value of this process is the availability of a holistic approach to sports to all interested public and the promotion of sustainable, healthy, green habits.
Methodology used
Various methodologies were used in the initiative. Several methodologies were used in the design phase as well as in the implementation phase of the initiative. Generally, the conception of the methodology in the design phase is divided into 8 steps: I-conceptualization, II-simulation, III-calculation, IV-visualisation, V-realisation, VI-consumption, VII-preservation, VIII- recyclation. In the location selection methodology, space memory was used. Architecture design methodology is guided by traditional principles: form, function, construction. The design methodology has 4 principles: light, transparent, airy, accessible. The methodology of meeting the required energy for the building is based on the principles of renewable energy sources. Digitization is a methodology that is applied in all phases of the implementation of the initiative. The methodology of using/affirming/developing digital platforms up to the possibility of assembling and disassembling an object in time (the concept of a "digital twin") is the future of the green transition. The methodology in the implementation phase of the initiative is a holistic approach to sport. In the implementation phase of the initiative, the methodology of affirmation of specialized experts related to sports and their mutual cooperation on raising the quality of sports was used. The methodology of standardization of narrower specializations leads to curricula that become the educational basis for the transfer of knowledge and experience to all interested public. The methodology of collaboration between kinesiologists and nutritionists leads to individualized exercise and healthy diet programs that represent a health contribution to civil society. The initiative used an approach of cooperation with the school system by providing optional/elective classes under the mentorship of teachers/professors. Principles of used methodologies: circular, bottom-up, top-down, sustainable, inclusive, green, digital.
How stakeholders are engaged
In the design phase, the participation of all sector stakeholders (planner, designer, measurer, construction, manufacturing, utility, scientific and institutional, legislative community) is essential, since their networking is the assumption of the realization of the project as green certified architecture. Networking, in addition to active cooperation and exchanging experience, also assumes digital networking and standardization. Spatial planners, urbanists, landscape architects act nationally, regionally, locally and define the garbaris of individual interventions. Different profession designers (architects, civil engineer, electrical engineers, mechanical engineer) and specialization (interior design, buildings of buildings, fire, noise, traffic, drainage, geomechanics, statics, water supply and sewer, lighting, multimedia, urban equipment, parter) with their solutions foresee the realization of an individual intervention. Measurers, surveyors with their tools give a precise framework of an individual intervention. Builders, construction contractors with their tools materialize the individual interventions. Manufacturers transform materials into elements and elements into structures. Utility companies with the infrastructure merge the individual interventions, and also maintain space and environment. The scientific - institutional community connects and standardizes the overall knowledge and experience of the sector. The legislative community defines the rights and obligations of all stakeholders of the sector. The implementation phase of the initiative is participated by users, civil society, stakeholders of content of the basketball hall, external associates, guest lecturers. The organization of the event depends on the level of inclusion: global/European (international), national (national team selection), regional (region selection), local (work with local children).
Global challenges
The local solution of a modernly equipped basketball hall with accompanying facilities affects a number of global challenges. The topics of global challenges that are affected are as follows: poverty; food; health; education; gender equality; clean water and sanitation; affordable and clean energy; decent work and economic growth; industry, innovation and infrastructure; reducing inequality; sustainable cities and communities; responsible consumption and production. Poverty is alleviated through the availability of content to children of lower financial status. Healthy food has been considered by experts and categorized as such and available to all interested members of the public. Health is promoted through a circular - holistic approach to sport and all its components, which are adopted by the Hall. Education is present in all phases of the initiative (from the education of engineers and workers to the education of children and employees). Gender equality is absolutely represented by the equal availability of content for male and female children. Clean water is available locally, but it is also saved by using rainwater for various purposes. Affordable and clean energy is achieved by high standards of green certified architecture. Decent work and economic growth are made possible by modern categorized jobs from which civil society has multiple benefits. Industry, innovation and infrastructure are directly linked to the new approach of detailed analysis of resource use using exact - digital tools. Reducing inequality by implementing high-quality projects in smaller communities. Cities and communities become inclusive, safe, resilient and sustainable through the implementation of projects that promote and adopt such characteristics. Responsible consumption and production is a prerequisite for financing green projects of the future.
Learning transferred to other parties
Most of the elements in the implementation phase of the initiative can be replicated or transferred to other places, groups of beneficiaries and contexts. The main element of the initiative is a holistic approach to sport, and the methodology of transformation from a traditional to a holistic approach can be fully replicated through sports curricula in all environments that continuously improve their experts. Replication of the education of sports and complementary activities mentors is possible in other environments, schools, clubs, associations in order to raise the quality of sports and accompanying content. Distribution of healthy food with a nutritional booklet and specific sports menus in other places as well. Individualized programs of exercise and healthy eating can be transmitted to all interested members of the public. Most of the elements in the design phase of the initiative can be replicated or transferred to other locations, groups of beneficiaries and contexts. Details of architecture, urbanism or any engineering design solution can be replicated or transferred to other places. The methodology of designing green certified architecture from the first sketch is standardized and can be replicated. Replication of the facility's drainage system, drainage and rainwater collection is also possible. It is possible to replicate the performance of the substation, boiler room, engine room, filtration room according to the principle of renewable energy sources in order to achieve the minimum possible carbon footprint and optimized and minimized total energy required for the functioning of the facility. Transparent monitoring of proof (sensors, measurements, tests) of the sustainability of green solutions is educational in nature and can be transmitted to all interested public. Animation of the construction site to optimize the performance of works is a methodology that can be transferred to other contexts.
Keywords
education
health
carbon footprint
architecture
basketball