TOVA
Basic information
Project Title
TOVA
Full project title
TOVA: Spain’s first 3D printed building using earth and Crane WASP
Category
Shaping a circular industrial ecosystem and supporting life-cycle thinking
Project Description
TOVA is one of the world’s first architectural constructions to be built with a crane WASP 3D printer. It can be completed in just weeks using 100% local materials and labour, generating zero waste and close to zero carbon emissions. This system is replicable globally and showcases a promising response to the surge in housing emergencies. The project was developed by a team of students and researchers from the 3D Printing Architecture programme of IAAC.
Geographical Scope
Cross-border/international
Project Region
CROSS-BORDER/INTERNATIONAL: Spain, Italy
Urban or rural issues
It addresses urban-rural linkages
Physical or other transformations
It refers to a physical transformation of the built environment (hard investment)
EU Programme or fund
No
Description of the project
Summary
The Institute for Advanced Architecture of Catalonia (IAAC) presents its first building made with earth and a 3D printer, a valuable addition to the recent emergence of a multitude of 3d printed building solutions around the world. The project results from the ongoing research conducted by IAAC towards 3D printing architecture with an aim to develop realistic architectural solutions that use additive manufacturing to provide sustainable, affordable and community-based processes of housing construction.
The construction has been carried out at the Valldaura Labs facilities, in the natural park of Collseolla, in the outskirts of Barcelona. The prototype, completed with locally sourced earthen materials, certifies the potentials of 3d printing with sustainable materials, in response to the current climate challenges and housing emergencies. TOVA further demonstrates the relevance of implementing past craftsmanship techniques — vernacular earthen architecture — with those of the future — large scale 3D printing technology — in the contemporary built environment.
The project has been developed by the 3dPA postgraduate research programme at IAAC. The objective of this applied research programme is to train young architects and academics with the proper knowledge and tools in accordance with the future of construction and further explore the possibilities and potential of additive manufacturing in this sector.
In a context where the current construction methods are responsible for around 40 % of CO2 emissions, ‘TOVA’ stands out for being one of the most sustainable and environmentally friendly construction forms that can be applied today. This prototype is the beginning of a larger research project in collaboration with WASP, which will result in the construction of a complete 3d printed house with earthen materials.
The construction has been carried out at the Valldaura Labs facilities, in the natural park of Collseolla, in the outskirts of Barcelona. The prototype, completed with locally sourced earthen materials, certifies the potentials of 3d printing with sustainable materials, in response to the current climate challenges and housing emergencies. TOVA further demonstrates the relevance of implementing past craftsmanship techniques — vernacular earthen architecture — with those of the future — large scale 3D printing technology — in the contemporary built environment.
The project has been developed by the 3dPA postgraduate research programme at IAAC. The objective of this applied research programme is to train young architects and academics with the proper knowledge and tools in accordance with the future of construction and further explore the possibilities and potential of additive manufacturing in this sector.
In a context where the current construction methods are responsible for around 40 % of CO2 emissions, ‘TOVA’ stands out for being one of the most sustainable and environmentally friendly construction forms that can be applied today. This prototype is the beginning of a larger research project in collaboration with WASP, which will result in the construction of a complete 3d printed house with earthen materials.
Key objectives for sustainability
The key objectives of the project in terms of sustainability are reducing carbon emissions, and implementing a circular design approach in a low-carbon building.
The construction spans over 7 weeks, uses a Crane WASP printer and km zero materials. Using local materials sourced within a 50 meters radius reduces the environmental impact from transportation and waste generation during the construction process.
A near-zero emissions project: the design is tested via digital and physical simulations in an effort to reduce carbon footprint taking into account the LCA of the building components.
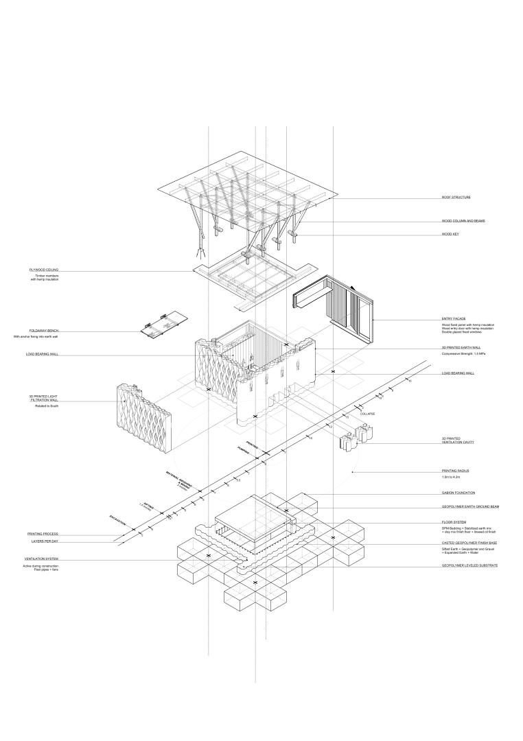
The circular design approach is aimed at designing an environmentally responsive building from reusable biomaterials: The structure is made of local earth, mixed with additives and enzymes, ensuring the structural integrity and material elasticity necessary for the optimised printing of the house. The foundation is made of geopolymer and the roof of a wooden structure. Guaranteeing the longevity of the material in resistance to weather, a waterproof coating is added using raw extracted materials such as egg whites. Moreover, the building design of TOVA is based on a precise analysis of the climate condition of the Mediterranean. The volume is compact to protect from the cold in winter, yet expandable for the other three seasons. For this purpose, the wall section, composed of 6 earth surfaces and a network of cavities containing air or insulation, was calculated to prevent heat loss in the winter while protecting from solar radiations in summer.
The project can be exemplary as it provides a proof of concept that sustainable and environmentally-friendly construction is possible using 3D printing. It demonstrates the potential to reduce waste and CO2 emissions while also supporting the local economy. Additionally, the circular design approach can serve as a model for other buildings to follow and aims to change the way we think about construction and the built environment.
The construction spans over 7 weeks, uses a Crane WASP printer and km zero materials. Using local materials sourced within a 50 meters radius reduces the environmental impact from transportation and waste generation during the construction process.
A near-zero emissions project: the design is tested via digital and physical simulations in an effort to reduce carbon footprint taking into account the LCA of the building components.
The circular design approach is aimed at designing an environmentally responsive building from reusable biomaterials: The structure is made of local earth, mixed with additives and enzymes, ensuring the structural integrity and material elasticity necessary for the optimised printing of the house. The foundation is made of geopolymer and the roof of a wooden structure. Guaranteeing the longevity of the material in resistance to weather, a waterproof coating is added using raw extracted materials such as egg whites. Moreover, the building design of TOVA is based on a precise analysis of the climate condition of the Mediterranean. The volume is compact to protect from the cold in winter, yet expandable for the other three seasons. For this purpose, the wall section, composed of 6 earth surfaces and a network of cavities containing air or insulation, was calculated to prevent heat loss in the winter while protecting from solar radiations in summer.
The project can be exemplary as it provides a proof of concept that sustainable and environmentally-friendly construction is possible using 3D printing. It demonstrates the potential to reduce waste and CO2 emissions while also supporting the local economy. Additionally, the circular design approach can serve as a model for other buildings to follow and aims to change the way we think about construction and the built environment.
Key objectives for aesthetics and quality
The key objectives of TOVA in terms of aesthetics and quality of experience for people are to change the historical stigma around earth as a building material and to create a design that is both functional, adaptable, sustainable and aesthetically pleasing, thus influencing a cultural shift in the understanding of the way we build and the needs of the built environment in terms of resources.
Previously seen as an unadapted material for the modern construction and associated with rural architecture, reworking earth with robotics and advanced technologies has endorsed it as a refreshing, new and innovative process, addressing the challenges of today’s world. This was achieved by studying and associating traditional earth construction techniques with cutting-edge 3D printing technology. The use of a biomaterial generated a performative architecture, whose aesthetics are guided by a scientific approach to work processes emerging and learning from nature, nourishing our appreciation for design and texture through visual complexity and natural functionality.
The implementation of robotic technology pushed the limitations of traditional building methods allowing for a flexibility in the achievement of non-standardised design methods adapted to the needs of individuals and cultures, inspired by traditional and vernacular architecture which has history in Europe and the world. Consequently, the implementation of 3d printing allows the reinterpretation of traditions while respecting resources, climates and social structure at an individual scale in a community, unabling a strong approach to the integration of co-design methodologies, thus rendering possible the distribution of this construction method to different climates, cultures and environments.
The final result is a building that showcases the versatility and beauty of earth as a building material while also demonstrating the capabilities of the latest technology and its accessibility to all.
Previously seen as an unadapted material for the modern construction and associated with rural architecture, reworking earth with robotics and advanced technologies has endorsed it as a refreshing, new and innovative process, addressing the challenges of today’s world. This was achieved by studying and associating traditional earth construction techniques with cutting-edge 3D printing technology. The use of a biomaterial generated a performative architecture, whose aesthetics are guided by a scientific approach to work processes emerging and learning from nature, nourishing our appreciation for design and texture through visual complexity and natural functionality.
The implementation of robotic technology pushed the limitations of traditional building methods allowing for a flexibility in the achievement of non-standardised design methods adapted to the needs of individuals and cultures, inspired by traditional and vernacular architecture which has history in Europe and the world. Consequently, the implementation of 3d printing allows the reinterpretation of traditions while respecting resources, climates and social structure at an individual scale in a community, unabling a strong approach to the integration of co-design methodologies, thus rendering possible the distribution of this construction method to different climates, cultures and environments.
The final result is a building that showcases the versatility and beauty of earth as a building material while also demonstrating the capabilities of the latest technology and its accessibility to all.
Key objectives for inclusion
With TOVA, IAAC responds to increasingly serious climate and migration emergencies, providing new solutions that contribute positively to the global housing emergency that will be faced in the future due to large migrations or natural disasters.
The project was conceived as a prototype for sustainable housing that can be adapted to various environments. At the intersection of craftsmanship and technology, it has rendered possible and riskless the application of 3d printed earth construction in an adapted environment, merging both material knowledge and craftsmanship with cutting-edge optimised design technology, efficiently solving problems of access to housing in vulnerable areas or temporary settlements, offering new solutions for the creation of more sustainable and affordable habitats.
The replication and adaptation of this type of free and fast construction can be done independently once a local construction team is provided with the 3D printing crane. The use case of this rapid construction method can be a solution for increasing habitat needs in emergency response scenarios, as the adopted design and construction methodology allows for a fully inclusive, accessible and affordable project implementation through co-design processes. The project can be exemplary in this context as it ensures technical knowledge-transfer through open source codes and scientific publications, the project itself being the result of 7 years of continuous research involving academics and students from diverse backgrounds and cultures.
The use of local materials and resources allow for a fully inclusive process, supporting and boosting local economies by involving various local stakeholders in the value chain - as materials are sourced on-site, the cost of construction is reduced to labour and on-site logistics - which in turn facilitates the financial implementation of co-design process including communities in a distributed and individually customizable designed construction.
The project was conceived as a prototype for sustainable housing that can be adapted to various environments. At the intersection of craftsmanship and technology, it has rendered possible and riskless the application of 3d printed earth construction in an adapted environment, merging both material knowledge and craftsmanship with cutting-edge optimised design technology, efficiently solving problems of access to housing in vulnerable areas or temporary settlements, offering new solutions for the creation of more sustainable and affordable habitats.
The replication and adaptation of this type of free and fast construction can be done independently once a local construction team is provided with the 3D printing crane. The use case of this rapid construction method can be a solution for increasing habitat needs in emergency response scenarios, as the adopted design and construction methodology allows for a fully inclusive, accessible and affordable project implementation through co-design processes. The project can be exemplary in this context as it ensures technical knowledge-transfer through open source codes and scientific publications, the project itself being the result of 7 years of continuous research involving academics and students from diverse backgrounds and cultures.
The use of local materials and resources allow for a fully inclusive process, supporting and boosting local economies by involving various local stakeholders in the value chain - as materials are sourced on-site, the cost of construction is reduced to labour and on-site logistics - which in turn facilitates the financial implementation of co-design process including communities in a distributed and individually customizable designed construction.
Results in relation to category
The TOVA project has demonstrated the potential for 3D printing in meeting the demand for long-term, life-cycle thinking in the construction ecosystem. It showcases a promising response to the housing crisis by providing an efficient and replicable solution: On-site continuous printing from locally sourced materials presents a great advantage in reducing the carbon footprint of buildings, by saving on material transportation and processing, as earth is extracted from the construction site and used in its raw state upon collection. By using 100% local materials and labour, the project was able to minimise waste, rely on and animate local economies, making it a more sustainable alternative to current construction methods. For direct beneficiaries, the key outcome of this construction system is providing a quick and cost-effective solution to housing emergencies while for highly customizable houses in different use cases; such as communities of homes and services that can be rapidly created using this technology in various sites and conditions. The integration of computational design tools in the project allows for an adaptable construction, optimised in terms of design and energetic efficiency in direct accordance with its environment. This performance is informed by the monitoring of the prototype’s ability in withstanding the test of time which will benefit on-going international research on the topics.
For indirect beneficiaries, the project serves as a showcase for the potential of 3D printing in architecture to promote new construction practices, inspiring the wider industry to embrace long-term, life-cycle thinking through endless applications in the built environment; from homes, to public spaces, interiors and exteriors. In combination with other construction systems, it can accommodate complex and innovative building models which would significantly reduce the environmental impact that construction currently entails.
For indirect beneficiaries, the project serves as a showcase for the potential of 3D printing in architecture to promote new construction practices, inspiring the wider industry to embrace long-term, life-cycle thinking through endless applications in the built environment; from homes, to public spaces, interiors and exteriors. In combination with other construction systems, it can accommodate complex and innovative building models which would significantly reduce the environmental impact that construction currently entails.
How Citizens benefit
The programme's mission is to have a real-world impact on the housing crisis through the use of 3D printing technology. This is achieved through involving students from diverse backgrounds and continents where the learnings will be then re-implemented globally, by participation in workshops, conferences and symposiums. The active participation of students in the design, construction and testing of the TOVA prototype makes the project replicable globally, and as such, allows the involvement of local communities in the design process to ensure that the final product is suitable for their specific needs.
The project has been showcased at conferences and symposiums, and the research further developed in collaborative settings such as the Living Prototypes research project exhibited in Berlin at The Aedes Architecture Forum, a world-renown independent institution and exhibition space for the international communication of contemporary architecture and urban design. This provided an opportunity for the public to see research in action and learn about the potential of building with Biomaterials. Furthermore, through a round table and symposium, Living Prototypes was about triggering the political pressure to innovate the way we build (in) the future. This exposure has helped to raise awareness about the potential of 3D printing technology in addressing the housing crisis and has sparked discussions among architects, builders, and policymakers about the potential of this technology and how it can be used to improve the lives of citizens.
Overall, the impact of this involvement has been positive and has helped to further the mission of the 3D Printing in Architecture postgraduate programme. Through their acquisition of knowledge during the program, and joining a network of professionals and industry partners, the students from 3DPA are fully able to replicate the work methodology and help initiate projects worldwide, being from Europe, Africa, Asia or South America.
The project has been showcased at conferences and symposiums, and the research further developed in collaborative settings such as the Living Prototypes research project exhibited in Berlin at The Aedes Architecture Forum, a world-renown independent institution and exhibition space for the international communication of contemporary architecture and urban design. This provided an opportunity for the public to see research in action and learn about the potential of building with Biomaterials. Furthermore, through a round table and symposium, Living Prototypes was about triggering the political pressure to innovate the way we build (in) the future. This exposure has helped to raise awareness about the potential of 3D printing technology in addressing the housing crisis and has sparked discussions among architects, builders, and policymakers about the potential of this technology and how it can be used to improve the lives of citizens.
Overall, the impact of this involvement has been positive and has helped to further the mission of the 3D Printing in Architecture postgraduate programme. Through their acquisition of knowledge during the program, and joining a network of professionals and industry partners, the students from 3DPA are fully able to replicate the work methodology and help initiate projects worldwide, being from Europe, Africa, Asia or South America.
Physical or other transformations
It refers to a physical transformation of the built environment (hard investment)
Innovative character
The TOVA project is innovative in many ways, setting itself apart from mainstream construction methods. Firstly, the use of 3D printing technology to build with earth materials is a new and innovative approach, as earth building has been traditionally done through manual methods and has been seen as a poor or vernacular form of architecture, limiting its application in urban setting or architectural design context. The integration of ancient earth building techniques and knowledge, together with cutting-edge technology not only brings new life to an old tradition but also showcases the potential for sustainability and affordability in construction.
Compared to other construction methods, 3D printing offers a faster and more efficient building process with less waste and a lower carbon footprint. Unlike traditional construction methods, 3D printing allows for precise and intricate designs to be realised in a fraction of the time. Additionally, the ability to print with earth materials, instead of the well spread concrete 3d printing, better aligns with the need for more sustainable and environmentally friendly construction methods and challenges the techniques of printing in non-controlled environments with at-hand resources.
Furthermore, the integration of performance optimization within the design process, including structure and climate engineering through computational simulations, ensures that the final product not only looks good but also performs well. This optimization process is unique to 3D printing technology and sets the TOVA project apart from other construction methods.
In conclusion, the TOVA project showcases the innovative potential of 3D printing technology in construction and its ability to integrate performance optimization, sustainability, and affordability in a single project.
Compared to other construction methods, 3D printing offers a faster and more efficient building process with less waste and a lower carbon footprint. Unlike traditional construction methods, 3D printing allows for precise and intricate designs to be realised in a fraction of the time. Additionally, the ability to print with earth materials, instead of the well spread concrete 3d printing, better aligns with the need for more sustainable and environmentally friendly construction methods and challenges the techniques of printing in non-controlled environments with at-hand resources.
Furthermore, the integration of performance optimization within the design process, including structure and climate engineering through computational simulations, ensures that the final product not only looks good but also performs well. This optimization process is unique to 3D printing technology and sets the TOVA project apart from other construction methods.
In conclusion, the TOVA project showcases the innovative potential of 3D printing technology in construction and its ability to integrate performance optimization, sustainability, and affordability in a single project.
Disciplines/knowledge reflected
The design and implementation of the TOVA project was done within the 3D Printing in Architecture postgraduate programme of the Institute for Advanced Architecture of Catalonia. The project reflected a wide range of disciplines and knowledge fields, including architecture, construction method, material science, robotics, computational design, structural analysis and climate engineering. In line with the schools’ architectural practice, the construction methods are based on those of earth construction in Vernacular architecture. Through material science, individuals are provided with advanced knowledge on earth as a construction material ensuring the quality of the project and its stand as a sustainable habitat. The use of robotics and computational design are crucial in the design and implementation of the project. 3D printing technology allows for a precise, waste free and efficient construction, while computational design tools help optimise the design for structural stability and energy efficiency according to precise and varying environmental data sets. This integration demonstrates the flexibility and adaptability of the project. Representatives from the fields of structural analysis and climate engineering were also involved in ensuring that the prototype met the necessary building codes and regulations and was designed to withstand the local weather conditions.
The program’s pedagogy relies on a participative design and construction approach reflected in the co-design process, through the involvement of various experienced profiles in workshops and seminars given at the institution which concludes with on-site work. Exhibitions, participation in symposiums, as well as press conferences complement the program by sharing the knowledge and experience with other professionals and students.
Bringing together different perspectives, expertise, and resources nourishes the understanding of an independent construction process through 3D printing in architecture.
The program’s pedagogy relies on a participative design and construction approach reflected in the co-design process, through the involvement of various experienced profiles in workshops and seminars given at the institution which concludes with on-site work. Exhibitions, participation in symposiums, as well as press conferences complement the program by sharing the knowledge and experience with other professionals and students.
Bringing together different perspectives, expertise, and resources nourishes the understanding of an independent construction process through 3D printing in architecture.
Methodology used
TOVA is the result of a 6-month long intensive programme in the field of additive manufacturing of sustainable architecture. The programme seeks to develop technological and architectural solutions in collaboration with the industry to answer the current needs and challenges of our habitat. Through an approach of applied research and learning by doing, the aim is to apply state of the art technology to today’s construction paradigm. It is axed around the continuity of the development of a body of research long explored in the Institute together with our industry partners.
The course runs as a collective programme with a mixed group of researchers and postgraduates.
It is structured in 3 phases: A first Learning phase, An experimental and hands-on approach to Additive Manufacturing with robots. Eco-friendly material printing resides in the control of robotic technology and the mastering of its complex materiality. This 6 weeks long phase emphasises on the development of knowledge at the intersection of craftsmanship and technology in the topics of matter, machine, structure and the built environment through detail, fragments and architecture. This phase sees the students work in small groups in short intense exercises and experiments. A second Exploration Phase, an 8 weeks exploratory studio through Research in building performance on the topics of Geometry, Rigidity, Fibre reinforcements, optimizations and supports. The third and final phase starts with a collective design competition in which the group capitalises on all the learning of phase 2 in order to develop a design proposal for a 1:1 prototype as a building fragment. The third phase concluded with the group engaging with the construction of TOVA, a large prototype at 1:1 architectural scale. In parallel, the group builds an architectural design vision, while documenting and compiling the research into a collective thesis printed document facilitating the knowledge transfer of the research findings.
The course runs as a collective programme with a mixed group of researchers and postgraduates.
It is structured in 3 phases: A first Learning phase, An experimental and hands-on approach to Additive Manufacturing with robots. Eco-friendly material printing resides in the control of robotic technology and the mastering of its complex materiality. This 6 weeks long phase emphasises on the development of knowledge at the intersection of craftsmanship and technology in the topics of matter, machine, structure and the built environment through detail, fragments and architecture. This phase sees the students work in small groups in short intense exercises and experiments. A second Exploration Phase, an 8 weeks exploratory studio through Research in building performance on the topics of Geometry, Rigidity, Fibre reinforcements, optimizations and supports. The third and final phase starts with a collective design competition in which the group capitalises on all the learning of phase 2 in order to develop a design proposal for a 1:1 prototype as a building fragment. The third phase concluded with the group engaging with the construction of TOVA, a large prototype at 1:1 architectural scale. In parallel, the group builds an architectural design vision, while documenting and compiling the research into a collective thesis printed document facilitating the knowledge transfer of the research findings.
How stakeholders are engaged
The 3DPA programme brings together academics, industry, and curators in a collaborative ecosystem. With partners such as the Italian leading company in 3d printing WASP, structural engineers BAC, the Colette scholarship and the Living Prototypes Research Innovation grant and ceramist expert Ceràmica Cumella and with the involvement of UN Habitat program, the engagement of different stakeholders builds on the development of architectural solutions for humanitarian situations and has been vital in the design and implementation of the TOVA project:
Funded by Project Colette, a private philanthropic support for inclusivity and funding education for all, the academic outreach of the programme is guaranteed and allows for the project to be developed by a team of students and researchers from different continents and cultures, further enriching its adaptability.
The involvement of industrial partner WASP brings professional expertise to the project, ensuring it is market-ready and able to tackle challenges in the sector.
The project was implemented in Valldaura Lab, in a natural setting, and this engagement helped to ensure that the final product was designed and constructed in a sustainable and environmentally friendly way. This demonstrates the potential of biomaterials in building construction a statement further concluded in the Living Prototypes Project in which 3DPA participated alongside its industry partner WASP, collaborated with CITA from the Royal Danish Academy in Copenhagen (Bioplastics) and ITKE from the University of Stuttgart (Flax Fibre) respectively with industry partners COBOD from Copenhagen and FibR from Kernen.
Overall, the engagement of different stakeholders and collaborators further expanded the research's impact and influence to a broader community while highlighting the need for a more inclusive and accessible governing of the built environment.
Funded by Project Colette, a private philanthropic support for inclusivity and funding education for all, the academic outreach of the programme is guaranteed and allows for the project to be developed by a team of students and researchers from different continents and cultures, further enriching its adaptability.
The involvement of industrial partner WASP brings professional expertise to the project, ensuring it is market-ready and able to tackle challenges in the sector.
The project was implemented in Valldaura Lab, in a natural setting, and this engagement helped to ensure that the final product was designed and constructed in a sustainable and environmentally friendly way. This demonstrates the potential of biomaterials in building construction a statement further concluded in the Living Prototypes Project in which 3DPA participated alongside its industry partner WASP, collaborated with CITA from the Royal Danish Academy in Copenhagen (Bioplastics) and ITKE from the University of Stuttgart (Flax Fibre) respectively with industry partners COBOD from Copenhagen and FibR from Kernen.
Overall, the engagement of different stakeholders and collaborators further expanded the research's impact and influence to a broader community while highlighting the need for a more inclusive and accessible governing of the built environment.
Global challenges
By 2050, 68% of the world population is projected to live in urban areas. Meanwhile, the global aim in reducing global carbon dioxide (CO2) emissions to net zero by 2050 presents a great challenge to the construction industry, today responsible for over 40% of those emissions from construction material manufacturing to building processes. While the impact of the construction industry is global, its resolution can and should be addressed locally and in accordance with the benefits and needs of local communities in leading a more sustainable and healthy life.
The TOVA project serves as a model for the construction industry demonstrating how technology can be used to meet the growing demand for affordable, sustainable housing while reducing the negative impact on the environment. It addresses several global challenges by providing local solutions.
Firstly, the increasing demand for affordable and sustainable housing in various regions across the world, especially in areas affected by natural disasters and conflict, is addressed by the use of 3D printing technology and locally sourced materials, reducing construction time and costs, and generating close to zero carbon footprint.
Secondly, the project also addresses the waste generated by traditional construction methods, as the use of 3D printing reduces the amount of waste generated, leading to a more sustainable construction process.
Lastly, the project showcases how local communities can take advantage of new technological advancements to improve their living conditions and provide them with a sustainable future: through a demonstrator for site-specific construction, the TOVA project is a testament to the potential of local solutions to address global challenges, and its replicability globally showcases the scalability of its impact.
The TOVA project serves as a model for the construction industry demonstrating how technology can be used to meet the growing demand for affordable, sustainable housing while reducing the negative impact on the environment. It addresses several global challenges by providing local solutions.
Firstly, the increasing demand for affordable and sustainable housing in various regions across the world, especially in areas affected by natural disasters and conflict, is addressed by the use of 3D printing technology and locally sourced materials, reducing construction time and costs, and generating close to zero carbon footprint.
Secondly, the project also addresses the waste generated by traditional construction methods, as the use of 3D printing reduces the amount of waste generated, leading to a more sustainable construction process.
Lastly, the project showcases how local communities can take advantage of new technological advancements to improve their living conditions and provide them with a sustainable future: through a demonstrator for site-specific construction, the TOVA project is a testament to the potential of local solutions to address global challenges, and its replicability globally showcases the scalability of its impact.
Learning transferred to other parties
TOVA is an example of a highly replicable and fully transferable solution addressing global challenges in the built environment. The involvement of a multidisciplinary team, including students and researchers from different continents and cultures, highlights the importance of collaboration and inclusivity in finding solutions to global challenges in order for them to be later transferrable to individual respective backgrounds. The project's exposure through conferences and symposiums, as well as the publication of its results, allows for sharing the learnings, best practices and knowledge, leading to the replication of its methodology and technology by other organisations and communities.
The design and conception methodology is replicable and adaptable, and the overall construction process described and debated in various publications. In terms of hardware, the WASP 3D printing crane technology can be provided on site, together with a guide of assembly as well as a troubleshooting log. The use of locally sourced material allows for an adaptation of the right mix followed in the printing process proceeding from a material science approach: by analysing the materials’s properties and adapting the material mix to needed consistency and performance in direct relation with the environmental conditions in a location.
This replicability and adaptability of the design and construction methodology is achieved by sharing finding through a distributed set of computational tools allowing the adaptation of the building prototype and optimising the design according to various environmental, societal and geographical settings through open-source platforms such as Github, publications, and finally by transferring the knowledge within collaborative projects or as consultants to organisations internationally.
TOVA is one of the results of a developing research on the future of construction in biomaterials using 3d printing technology.
The design and conception methodology is replicable and adaptable, and the overall construction process described and debated in various publications. In terms of hardware, the WASP 3D printing crane technology can be provided on site, together with a guide of assembly as well as a troubleshooting log. The use of locally sourced material allows for an adaptation of the right mix followed in the printing process proceeding from a material science approach: by analysing the materials’s properties and adapting the material mix to needed consistency and performance in direct relation with the environmental conditions in a location.
This replicability and adaptability of the design and construction methodology is achieved by sharing finding through a distributed set of computational tools allowing the adaptation of the building prototype and optimising the design according to various environmental, societal and geographical settings through open-source platforms such as Github, publications, and finally by transferring the knowledge within collaborative projects or as consultants to organisations internationally.
TOVA is one of the results of a developing research on the future of construction in biomaterials using 3d printing technology.
Keywords
LARGE SCALE 3D PRINTING
EARTH
CIRCULAR CONSTRUCTION
ADVANCED MATERIALS
LOW CARBON EMISSIONS