POST-MANDATORY EDUCATION OFFICE
Basic information
Project Title
POST-MANDATORY EDUCATION OFFICE
Full project title
Providing a reusable modular construction for the Post-Mandatory Education Office in Barcelona
Category
Shaping a circular industrial ecosystem and supporting life-cycle thinking
Project Description
One temporary construction becoming Another.
This space was created with reused materials, coming from a temporary installation at a School in Barcelona. The wood screens and light tubes are rearranged in the Post-Compulsory Education Office. Since the modules could be directly reused, construction waste has been reduced and contributes to a sustainable outcome. From start to finish, only three months were planned. This lead to co-managing the design and the construction simultaneously.
This space was created with reused materials, coming from a temporary installation at a School in Barcelona. The wood screens and light tubes are rearranged in the Post-Compulsory Education Office. Since the modules could be directly reused, construction waste has been reduced and contributes to a sustainable outcome. From start to finish, only three months were planned. This lead to co-managing the design and the construction simultaneously.
Geographical Scope
Local
Project Region
Spain
Urban or rural issues
Mainly urban
Physical or other transformations
It refers to other types of transformations (soft investment)
EU Programme or fund
No
Description of the project
Summary
POST-COMPULSORY EDUCATION OFFICE
The new office of the Barcelona Education Consortium for Post-Compulsory Education is a center that has been created with the aim of being able to manage and meet the growing demand for these types of studies.
Time management
The urgent need and short amount of time to realize the transformation led to considering the construction as an 'express work'. In January 2022 the premises were available for renovation and in April it was opened to the public. The strategy was to draft and build at the same time, in order to being able to carry it out. Design decisions were linked to their immediate execution (constructive simplicity, light construction, minimal number of trades, workshop work, recycling and reuse).
Recycling.
When we started the process, a previous work of our office was being dismantled at the same time: the temporary school in Can Rosés School, in Barcelona. We were able to manage the reuse of most of the materials from this no longer needed facility to generate a new space.
Same elements rearranged, new use.
From the work of "Can Rosés" we took advantage of the wooden partitions and the modular lights. We extended their lifecycle into a further temporary stage. The fact of operating with modular and removable elements has allowed their reconfiguration and their use in a different arrangement.
Strategic decisions.
As the place is emptied and stripped, its inner enormous height has been rediscovered.
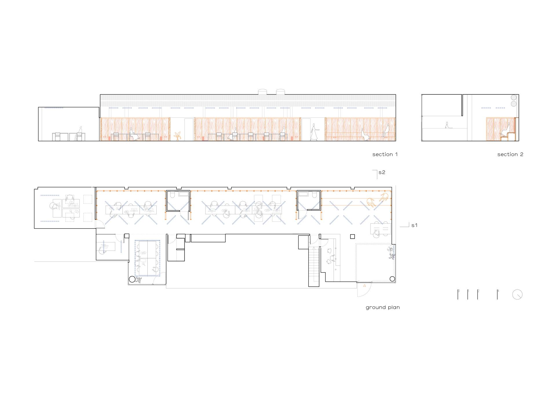
With the partitions, the elongated space is divided in three functional areas (waiting, attention and internal work). Two lavatories (public and private) are located in the interstices.
The low height of the partitions and it's warm-colored and minimalistic materiality tame the space. This diminishes the space perception scale and creates a leisurely sense of well-being to the visitors. In contrast, the lights generate a continuous, abstract pattern that defines a new virtual plane of the space.
The new office of the Barcelona Education Consortium for Post-Compulsory Education is a center that has been created with the aim of being able to manage and meet the growing demand for these types of studies.
Time management
The urgent need and short amount of time to realize the transformation led to considering the construction as an 'express work'. In January 2022 the premises were available for renovation and in April it was opened to the public. The strategy was to draft and build at the same time, in order to being able to carry it out. Design decisions were linked to their immediate execution (constructive simplicity, light construction, minimal number of trades, workshop work, recycling and reuse).
Recycling.
When we started the process, a previous work of our office was being dismantled at the same time: the temporary school in Can Rosés School, in Barcelona. We were able to manage the reuse of most of the materials from this no longer needed facility to generate a new space.
Same elements rearranged, new use.
From the work of "Can Rosés" we took advantage of the wooden partitions and the modular lights. We extended their lifecycle into a further temporary stage. The fact of operating with modular and removable elements has allowed their reconfiguration and their use in a different arrangement.
Strategic decisions.
As the place is emptied and stripped, its inner enormous height has been rediscovered.
With the partitions, the elongated space is divided in three functional areas (waiting, attention and internal work). Two lavatories (public and private) are located in the interstices.
The low height of the partitions and it's warm-colored and minimalistic materiality tame the space. This diminishes the space perception scale and creates a leisurely sense of well-being to the visitors. In contrast, the lights generate a continuous, abstract pattern that defines a new virtual plane of the space.
Key objectives for sustainability
The focus in terms of sustainability lays primary on the life span of the material within the circular economy. Not only are the materials recycled, but directly reused. This means that the project profited from minimal invasion on the modular screens made of wood. The construction can easily be transferred onto another semi-permanent installation and is highly adaptable for new environments. Since wood is considered a sustainable resource, this project contains high potential in becoming an example in structuring and planing ahead beyond the typical singular utilization. Furthermore, reparations or complementary modules can effortless be expanded.
Key objectives for aesthetics and quality
The premises of the Post-Compulsory Education Office are located within an office building-complex, ensuring that the space's proportions are more domestic and tranquil.
Within the space are created 3 different zones, separated following their function. From public to private, affiliated with the narrow corridor-like premises. Using the partitions, the areas Waiting, Attention and Internal Work evolved. The particular arranged interstices create not only a clear separation of the areas, but form functional space for two lavatories (public and private). Since the technical installations are hidden between new and existing walls, the space draws a clear and uninterrupted image.
The aesthetics result from the materiality and the arrangements of light evoke a welcoming feeling for visitors and employees, and impact the workflow.
Key objectives for inclusion
The Post-Compulsory Education Office itself is a place where young people at the age from 16-21 receive consultation about their occupational career. In a face to face session the teenagers are advised based on their interests, abilities and talents. The Post-Compulsory Education Office helps them maneuver a way through a jungle of different options, that can possibly have an overwhelming effect on them.
To meet the standards and interests of this target group, the space is designed as an open concept but with the opportunity to withdraw for privat conversation.
Results in relation to category
Aesthetic, functionality and sustainability only emerge in this concept as a whole. Neither one can stand on its own since they all depend on one another. With these three leading aspects the Post-Compulsory Education Office becomes what it is: a temporary solution, based on a sustainably sound approach with perspicacity and perspective, and extracting the most out of the material within a circular economy. The project encourages to think about the consequences of construction waste, and offers a solution to reducing it. What might have emerged from a coincidence, becomes an example for temporary installations and highlights the value of immense flexibility in short-term usage.
In Europe almost ⅓ of the entire wast is caused by construction. This becomes to a problem since the created emission on greenhouse gases caused by construction amounts 38% worldwide. Since wood binds approx. up too 1t of carbon dioxide per 1 m3 the reuse of these materials is one of the direct benefits and saves up to 11,55t CO2. In long-term, minimizing construction waste and creating new reusable solutions benefits the environment immense. Also it reduced costs, since the material was already owned by the regional administration and had only be transported from one location to another.
How Citizens benefit
The client is the regional administration. Their wish to be more transparent towards the public was the given reason to incorporate this key objective into the design. In general the layout is designed to potentiate the involvement of users on a daily basis. The waiting area was composed to provoke connecting attitudes and exchange among the users. The civil population did not have a direct say on the design and was not involved in the process itself. But the direct connection between the public and the client reflects their input to the project. Working hand in hand with the client's needs and ideas is an indirect way to represent and include civil society.
Physical or other transformations
It refers to other types of transformations (soft investment)
Innovative character
The most innovative part linked to Post-Mandatory Education Office is the modular reusable concept. In terms of temporary installations, most commonly projects will be demolished afterwards. That is due to the fact that the planning does not consider the materials lifespan beyond the primary project. The singular use of many materials can be complicated if the construction doesn't allow a simple segmentation. Therefore Post-Mandatory Education Office becomes an example by combining the state of modular construction including semi-permanent solutions.
Disciplines/knowledge reflected
This project relies on the knowledge of different trades. Above all, engineering, carpentry and architecture. Planning and construction work took place simultaneously. Thereby the design was formed in modular pieces. Also, the three sections (Waiting, Attention, Internal Work) are repetitions of the structure pattern. Once the system was final, it just had to be repeatedly executed. This advantage of combined forces concludes in a simple and efficient design.
Methodology used
As a consequence to the limited time from start to finish the management of the whole project stood always in focus and was utterly important regarding the outcome. The reuse of products and the clients vision had to be combined with managing the construction simultaneously. Hence design and aesthetics were common ground to connect both parts.
How stakeholders are engaged
The client's requirements were directly exerted onto the outcome especially by focusing on their own guideline to be an open, transparent and welcoming institution.
Another aspect addressed by the regional administration was the vacancy of establishments all over Barcelona. By using existing space instead of building a new office in form of prefabricated container-buildings, the aim for a quick renovation was supported. Nevertheless, as soon as the new space was available, it was clear that some kind of distribution is necessary. Since the client not only manages the Post-Compulsory Education Office but also the Can Rosés School, the decision to reuse the materiality of that project became obvious and solved another criteria in terms of a sustainable execution.
Another aspect addressed by the regional administration was the vacancy of establishments all over Barcelona. By using existing space instead of building a new office in form of prefabricated container-buildings, the aim for a quick renovation was supported. Nevertheless, as soon as the new space was available, it was clear that some kind of distribution is necessary. Since the client not only manages the Post-Compulsory Education Office but also the Can Rosés School, the decision to reuse the materiality of that project became obvious and solved another criteria in terms of a sustainable execution.
Global challenges
By using materials that would have been construction waste, if not reused, this project addresses one of the biggest and most important global challenges. The circular industry as well as a sustainable construction connect to the idea of a local solution. Also the amount of CO2 that is reduced by reusing instead of building something new and creating construction waste is a global challenge addressed by this project.
The Can Rosés School in Barcelona as the original source of the materials is a local project, therefor the transportation from one place to another were kept at a minimum. Furthermore, the life-cycle of these material does not end with the Post-Compulsory Education Office and can easily be extended unlimited times.
The Can Rosés School in Barcelona as the original source of the materials is a local project, therefor the transportation from one place to another were kept at a minimum. Furthermore, the life-cycle of these material does not end with the Post-Compulsory Education Office and can easily be extended unlimited times.
Learning transferred to other parties
In general, this concept has many approaches which are extendable to other projects like this. As a semi-permanent construction with high quality and a flexible way to arrange, it is able to quickly evolve and to adapt. Many projects are developed not thinking about the after life of the materials. This project proofs that modular planning provides great advantages, especially also in reducing costs and more importantly waste.
Keywords
temporary construction
circular industry
life-cycle thinking
direct reuse
public facility