nZEM
Basic information
Project Title
nZEM
Full project title
nearly Zero Energy Module
Category
Shaping a circular industrial ecosystem and supporting life-cycle thinking
Project Description
The research project aimed to create a prefabricated housing module that combines high energy performance, low environmental impact, and process innovation to offer a quality product inspired by principles of the Circular Economy. The nZEM research stimulates the companies involved to start Open Innovation processes, favouring new investment opportunities with a view to process optimization promoted by the concept of Industry 4.0 and Circular Economy.
Geographical Scope
National
Project Region
Italy
Urban or rural issues
Mainly urban
Physical or other transformations
It refers to a physical transformation of the built environment (hard investment)
EU Programme or fund
Yes
Which funds
Other
Other Funds
POR CREO FESR 2014/2020
Description of the project
Summary
The objective of nZEM is to encourage cooperation between companies and research organisations in Tuscany, promoting the development of modular and flexible construction elements, which are created to respond to functional and technical-regulatory needs (energy saving and efficiency, indoor comfort, accessibility, structural safety) respecting the environment, in order to guarantee participating companies access to new production tools and new markets in the construction sector.
The project contributes to the realisation of a sustainable, inclusive, and beautiful future in this way:
1.Sustainability - the project responds to climate change thanks to the following characteristics: reduced energy requirement to maintain indoor comfort, highly energy-efficient systems, use of renewable energy sources, materials with reduced embodied energy, disassembly, and recyclability/reusability.
2.Inclusion - the modules are designed to be easily accessible from an economic point of view by a large segment of the population. The project, involving local companies, has generated greater competitiveness and the development of a new market segment in which companies can spend their acquired know-how. Furthermore, the design respects the principles of universal design.
3.Aesthetics and quality of the experience - the quality of the product is guaranteed by the BIM design, which allows you to maintain high control in all phases. The aesthetics of the modules incorporate shapes and materials that recall traditional buildings but are revisited from a modern perspective to give a new and aesthetically pleasing image to the homes.
NZEM contributes to the transformation of industrial ecosystems through more sustainable practices inspired by the principles of the Circular Economy without underestimating the social aspects. nZEM promotes a new concept of living spaces that can also be realised in emergencies to ensure users' energy and environmental comfort under psycho-physical stress.
The project contributes to the realisation of a sustainable, inclusive, and beautiful future in this way:
1.Sustainability - the project responds to climate change thanks to the following characteristics: reduced energy requirement to maintain indoor comfort, highly energy-efficient systems, use of renewable energy sources, materials with reduced embodied energy, disassembly, and recyclability/reusability.
2.Inclusion - the modules are designed to be easily accessible from an economic point of view by a large segment of the population. The project, involving local companies, has generated greater competitiveness and the development of a new market segment in which companies can spend their acquired know-how. Furthermore, the design respects the principles of universal design.
3.Aesthetics and quality of the experience - the quality of the product is guaranteed by the BIM design, which allows you to maintain high control in all phases. The aesthetics of the modules incorporate shapes and materials that recall traditional buildings but are revisited from a modern perspective to give a new and aesthetically pleasing image to the homes.
NZEM contributes to the transformation of industrial ecosystems through more sustainable practices inspired by the principles of the Circular Economy without underestimating the social aspects. nZEM promotes a new concept of living spaces that can also be realised in emergencies to ensure users' energy and environmental comfort under psycho-physical stress.
Key objectives for sustainability
The research project aims to create a prototype of a prefabricated housing module that combines high energy performance, low environmental impact, and process innovation to offer a quality product inspired by principles of the Circular Economy.
The nZEM project aims to define new innovative envelope systems that can be assembled into a modular unit made with a wooden construction system that can adapt to different uses, functional needs, and spatial locations. For these reasons, the Nearly Zero Emission Module housing is designed to meet the requirements of prefabrication, transportability, and adaptability, as well as those necessary to ensure high energy efficiency and low environmental impact.
In detail, the innovative nZEM module guarantees the following performances:
- reduction of energy consumption and CO2 emissions;
- indoor wellbeing (wellness and health);
- integration of technologies for the production of renewable energy;
- integrated performance control by monitoring and BMS management system.
The project was developed to respond innovatively to the challenges of the energy transition in the construction sector through experimentation and synergistic collaboration between research organisations and the industrial world, with a focus on the wood supply chain and with particular attention to the issues of climate change and human health.
The project's sustainability objectives were tested using dynamic simulation software such as EnergyPlus for energy performance and Wufi for thermohygrometric behaviour. The result is a prefabricated modular wooden system with high performance from an energy and indoor comfort point of view, customizable and with low environmental impact, effectively responding to our era's environmental, social, and economic challenges.
The nZEM project aims to define new innovative envelope systems that can be assembled into a modular unit made with a wooden construction system that can adapt to different uses, functional needs, and spatial locations. For these reasons, the Nearly Zero Emission Module housing is designed to meet the requirements of prefabrication, transportability, and adaptability, as well as those necessary to ensure high energy efficiency and low environmental impact.
In detail, the innovative nZEM module guarantees the following performances:
- reduction of energy consumption and CO2 emissions;
- indoor wellbeing (wellness and health);
- integration of technologies for the production of renewable energy;
- integrated performance control by monitoring and BMS management system.
The project was developed to respond innovatively to the challenges of the energy transition in the construction sector through experimentation and synergistic collaboration between research organisations and the industrial world, with a focus on the wood supply chain and with particular attention to the issues of climate change and human health.
The project's sustainability objectives were tested using dynamic simulation software such as EnergyPlus for energy performance and Wufi for thermohygrometric behaviour. The result is a prefabricated modular wooden system with high performance from an energy and indoor comfort point of view, customizable and with low environmental impact, effectively responding to our era's environmental, social, and economic challenges.
Key objectives for aesthetics and quality
The research aims to create a virtual model developed on a BIM platform, which allows the companies involved to customise the nZEM module quickly, responding to the needs of the national and international markets to control all project phases while ensuring its high quality. The basic idea of the nZEM project is to make a module's compact and minimal space as efficient as possible, adaptable to different needs, which vary from emergency to tourism, and flexibly combine multiple functions and uses.
The aesthetics of the modules incorporate shapes and materials that recall traditional buildings but are revisited from a modern perspective to give a new and aesthetically pleasing image to the homes. The nZEM module combines the concept of prefabrication/serialism with that of architectural quality, understood as the possibility of customising the building product based on factors dictated by the environmental and cultural context in which the prefabricated building is to be inserted. nZEM evolves the traditional concept that associates the prefabricated house with a poor and uniform product through the design of a dynamic module capable of changing geometric morphology, spatial configuration, components, and materials, making it able to adapt over time to the needs of users and the community and to be able to reconfigure itself allowing prolonged use of the product which involves an extension of its life cycle.
The aesthetics of the modules incorporate shapes and materials that recall traditional buildings but are revisited from a modern perspective to give a new and aesthetically pleasing image to the homes. The nZEM module combines the concept of prefabrication/serialism with that of architectural quality, understood as the possibility of customising the building product based on factors dictated by the environmental and cultural context in which the prefabricated building is to be inserted. nZEM evolves the traditional concept that associates the prefabricated house with a poor and uniform product through the design of a dynamic module capable of changing geometric morphology, spatial configuration, components, and materials, making it able to adapt over time to the needs of users and the community and to be able to reconfigure itself allowing prolonged use of the product which involves an extension of its life cycle.
Key objectives for inclusion
The general objectives in terms of inclusion of the nZEM project can be summarised in the following points:
- offer the possibility of low-cost housing without sacrificing performance and aesthetics, thanks to mass production and prefabrication;
- increase in the competitiveness of the companies involved;
- job creation;
- create a collaboration network between companies and research organisations;
- total accessibility of the home to people with reduced or impaired mobility;
- rapid and low-cost use even in the event of emergencies;
- high customization to meet the different needs of the community, thanks to the product's modularity.
- offer the possibility of low-cost housing without sacrificing performance and aesthetics, thanks to mass production and prefabrication;
- increase in the competitiveness of the companies involved;
- job creation;
- create a collaboration network between companies and research organisations;
- total accessibility of the home to people with reduced or impaired mobility;
- rapid and low-cost use even in the event of emergencies;
- high customization to meet the different needs of the community, thanks to the product's modularity.
Results in relation to category
The results of the nZEM research are mainly two:
- the creation of the prototype, aimed at evaluating the real functional, mechanical, thermometric, and energy performances of the modules, the systems for the production of energy from renewable sources and the smart window plant module;
- the development of the 3D model of the nZEM modular system, aimed at evaluating, through dynamic energy simulations, in at least three climatic contexts, the possible configurations and customizations to guarantee a drastic reduction in energy consumption in any condition of use.
In particular, in the prototype phase, the coupling and connection systems between the envelope and plant systems and between modules developed in the previous phases were defined, and construction times and costs were evaluated and optimised. The prototype is also equipped with temperature, relative humidity, and air quality sensors, which will allow certain data to be obtained regarding temperature values, indoor comfort, thermal transmittance, etc.
The creation of the prototype and the 3D model for the simulations made it possible to validate the initial hypotheses of the project: the modules are easily transportable and assembled, the energy performances are optimal in all the locations analysed (Palermo, Florence, Bolzano, and Munich), the indoor comfort is guaranteed with low energy consumption, the prototype is completely dry assembled, therefore disassembled and recyclable or reusable.
The benefits for stakeholders concern companies, which have developed a prototype that can be patented and which has increased their competitiveness in the market, public administrations that can use the easily transportable and assembled modules for emergencies, and private individuals who can purchase homes with low environmental impact at low costs, customising them according to their needs.
- the creation of the prototype, aimed at evaluating the real functional, mechanical, thermometric, and energy performances of the modules, the systems for the production of energy from renewable sources and the smart window plant module;
- the development of the 3D model of the nZEM modular system, aimed at evaluating, through dynamic energy simulations, in at least three climatic contexts, the possible configurations and customizations to guarantee a drastic reduction in energy consumption in any condition of use.
In particular, in the prototype phase, the coupling and connection systems between the envelope and plant systems and between modules developed in the previous phases were defined, and construction times and costs were evaluated and optimised. The prototype is also equipped with temperature, relative humidity, and air quality sensors, which will allow certain data to be obtained regarding temperature values, indoor comfort, thermal transmittance, etc.
The creation of the prototype and the 3D model for the simulations made it possible to validate the initial hypotheses of the project: the modules are easily transportable and assembled, the energy performances are optimal in all the locations analysed (Palermo, Florence, Bolzano, and Munich), the indoor comfort is guaranteed with low energy consumption, the prototype is completely dry assembled, therefore disassembled and recyclable or reusable.
The benefits for stakeholders concern companies, which have developed a prototype that can be patented and which has increased their competitiveness in the market, public administrations that can use the easily transportable and assembled modules for emergencies, and private individuals who can purchase homes with low environmental impact at low costs, customising them according to their needs.
How Citizens benefit
The project involved, first of all, the professionals, such as companies and operators in the sector, who brought their experience and expertise to the best realisation of the project through work tables and workshops. Secondly, architecture students participated in workshops that allowed them to contribute to the research. Finally, citizens were involved following the dissemination of the different steps of the research and the results obtained through presentation on the dedicated website and comparison on social networks. In the coming months, the prototype will be moved to the Department of Architecture of the University of Florence courtyard to be visited by students and citizens interested in environmental sustainability issues.
Physical or other transformations
It refers to a physical transformation of the built environment (hard investment)
Innovative character
The nZEM research stimulates the companies involved to start Open Innovation processes, favouring new investment opportunities, at regional, national, and European levels, with a view to process optimization promoted by the concept of Industry 4.0 and by development policies connected to the Circular Economy.
nZEM modules renew the permanent and temporary residential construction sectors in terms of process and product. In terms of process, the project involved local companies, promoting the local economy, and the control of the various phases using BIM and dynamic energy simulation software to validate design choices. In terms of product, a low environmental impact housing solution, highly customizable, maintaining performance unchanged, low cost, achievable in a short time and easy to use even in an emergency has been developed. The innovative character lies in the modularity of the system. This product, still little used, especially in Italy, allows us to reduce costs and production times while guaranteeing high performance and customization.
Within the project, an innovative skylight system was also developed called "smart window" which combines the glass surface for the passage of light, the photovoltaic for the production of electricity and the serpentine tubes to heat the water used as domestic hot water. Furthermore, reflective insulation was tested as an alternative material for insulating walls and the roof slab. Over the last ten years, research into reflective insulation has increased dramatically, due to the excellent combination of good performance and reduced thickness. These multilayer reflective insulators, installed in the cavities of building envelopes, are relatively new products on the market although they are constantly improving in terms of their evolution in terms of properties and performance.
nZEM modules renew the permanent and temporary residential construction sectors in terms of process and product. In terms of process, the project involved local companies, promoting the local economy, and the control of the various phases using BIM and dynamic energy simulation software to validate design choices. In terms of product, a low environmental impact housing solution, highly customizable, maintaining performance unchanged, low cost, achievable in a short time and easy to use even in an emergency has been developed. The innovative character lies in the modularity of the system. This product, still little used, especially in Italy, allows us to reduce costs and production times while guaranteeing high performance and customization.
Within the project, an innovative skylight system was also developed called "smart window" which combines the glass surface for the passage of light, the photovoltaic for the production of electricity and the serpentine tubes to heat the water used as domestic hot water. Furthermore, reflective insulation was tested as an alternative material for insulating walls and the roof slab. Over the last ten years, research into reflective insulation has increased dramatically, due to the excellent combination of good performance and reduced thickness. These multilayer reflective insulators, installed in the cavities of building envelopes, are relatively new products on the market although they are constantly improving in terms of their evolution in terms of properties and performance.
Disciplines/knowledge reflected
The nZEM project required the involvement of professionals with relevant skills to different fields who worked closely together to carry out the work. In particular, the disciplines involved were the following: architectural design, design of efficient systems powered by renewable energy sources, skills in the field of window and door manufacturing, skills in the wood construction sector and skills and tools useful for creating the product. The research project brought together the know-how of the companies involved with the technical-experimental capabilities of the ABITA Research Center of the University of Florence to define a process-product innovation model whose main output is the creation of a pre-assembled wooden modular unit and the definition of a scalable smart production model oriented towards Industry 4.0 technologies. The research organisation made it possible to test and evaluate the modular building component in relation to the requirements required at a national level by the Minimum Environmental Criteria Decree, encouraging its introduction into the building market. Each team member participated in the project by deploying their know-how to create the nZEM modules.
Methodology used
The research, structured into 4 phases, is aimed at the creation of a housing module, which allows the evaluation of the performance characteristics in the operational phase, and of a virtual model developed on a BIM platform, which allows the companies involved to customise the nZEM module in short times, responding to the needs of the national and international market.
In detail, the research project was divided into the following phases:
-Phase 1, aimed at optimising the production processes of the companies involved through the management of the production processes of the various components and systems and their integration into the modular system to reduce the environmental impact of the module. In this phase, the following activities were carried out: the analysis of the state of the art on the prefabricated structures, the definition of the functional, thermo-hygrometric, and operational requirements of the housing module and the definition of the component integration strategies (energy, plant engineering, environmental, technological and architectural);
-Phase 2, aimed at the design, validation, and implementation of the transparent envelope systems. In this phase, the following activities were carried out: the development of the innovative facade concept, the drafting of a meta-design model, the needs-performance evaluation, the verification of the technological solutions tested, the creation of the BIM model and the performance analysis energy with dynamic regime simulations;
-Phase 3, aimed at the design, validation, and implementation of the plant systems to guarantee indoor comfort while reducing consumption. In this phase the activities were: the design and construction of the plant and monitoring system;
-Phase 4, aimed at the realisation and validation of the project and the creation of the prototype of the prefabricated wooden housing module in which the innovative casing and plant components developed in the previous phases are integrated.
In detail, the research project was divided into the following phases:
-Phase 1, aimed at optimising the production processes of the companies involved through the management of the production processes of the various components and systems and their integration into the modular system to reduce the environmental impact of the module. In this phase, the following activities were carried out: the analysis of the state of the art on the prefabricated structures, the definition of the functional, thermo-hygrometric, and operational requirements of the housing module and the definition of the component integration strategies (energy, plant engineering, environmental, technological and architectural);
-Phase 2, aimed at the design, validation, and implementation of the transparent envelope systems. In this phase, the following activities were carried out: the development of the innovative facade concept, the drafting of a meta-design model, the needs-performance evaluation, the verification of the technological solutions tested, the creation of the BIM model and the performance analysis energy with dynamic regime simulations;
-Phase 3, aimed at the design, validation, and implementation of the plant systems to guarantee indoor comfort while reducing consumption. In this phase the activities were: the design and construction of the plant and monitoring system;
-Phase 4, aimed at the realisation and validation of the project and the creation of the prototype of the prefabricated wooden housing module in which the innovative casing and plant components developed in the previous phases are integrated.
How stakeholders are engaged
The nZEM project is funded by the Tuscany Region through the POR CREO FESR 2014/2020 - Action 1.1.5. sub-action a1) - Notice 2 “Research and development projects for MSMEs”. The project, coordinated by LAM AMBIENTE, a Tuscan company with consolidated experience in the design and production of prefabricated wooden components and systems, also involved the following SMEs: VETRERIA VITRUM and VIGIANI INFISSI, which boast decades of experience in flat glass processing and the production of aluminium frames; VERDIANI E LINARI, a Tuscan company expert in the creation of high energy efficiency systems and thermal and electrical storage systems that can be integrated into the scale of the building. The consortium was also characterised by the presence of the ABITA Interuniversity Center of Florence, which has always been active on the national territory for the promotion of issues related to environmental sustainability and the energy efficiency of buildings, as coordinator of the scientific activities relating to the design and the validation of the environmental energy performances characterising the housing module with particular attention to the integration of transparent casing systems that can be integrated with technologies for the production of renewable energy.
Global challenges
The research project is an attempt to respond to the challenges of the current global context, which requires the achievement of objectives regarding mitigation and adaptation to climate change, established in the latest United Nations Conference (COP 27). The objectives include limiting global warming to 1.5 degrees compared to pre-industrial levels and thus establishing a global action program towards adaptation.
The energy demand for residential buildings in Italy is almost double that of tertiary sector buildings and will account for 68% of total final building consumption in 2021. Space heating is the main energy use in residential buildings and accounts for 66% of the energy used in Italian homes, compared to the IEA average of 53%.
In particular, in our country, guaranteeing efficiency and energy saving means significantly reducing the requirement required by air conditioning systems, which is increasingly higher today and corresponds to an increasingly higher demand for performance of the building envelope. An effective solution that recalls, particularly in our latitudes, the tradition of using light materials in warm places; therefore, the need to use products and finishes with a high solar reflectance index (COP26).
This work is part of the current scientific debate regarding innovation in the creation of prefabricated construction structures to investigate the quality and sustainability of the construction processes of these systems and the potential for improving efficiency in terms of performance through the use of reflective multilayer insulating materials, testing and transferring the innovation contents of basic research to the application field of residential construction, both temporary and permanent.
The energy demand for residential buildings in Italy is almost double that of tertiary sector buildings and will account for 68% of total final building consumption in 2021. Space heating is the main energy use in residential buildings and accounts for 66% of the energy used in Italian homes, compared to the IEA average of 53%.
In particular, in our country, guaranteeing efficiency and energy saving means significantly reducing the requirement required by air conditioning systems, which is increasingly higher today and corresponds to an increasingly higher demand for performance of the building envelope. An effective solution that recalls, particularly in our latitudes, the tradition of using light materials in warm places; therefore, the need to use products and finishes with a high solar reflectance index (COP26).
This work is part of the current scientific debate regarding innovation in the creation of prefabricated construction structures to investigate the quality and sustainability of the construction processes of these systems and the potential for improving efficiency in terms of performance through the use of reflective multilayer insulating materials, testing and transferring the innovation contents of basic research to the application field of residential construction, both temporary and permanent.
Learning transferred to other parties
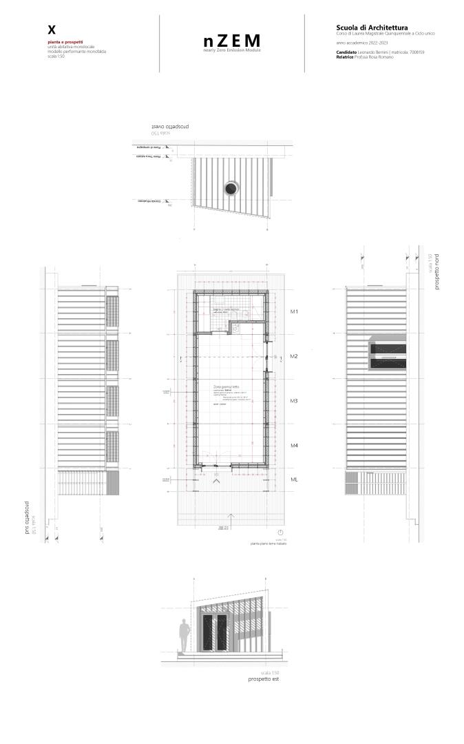
The housing unit produced is zero energy, totally prefabricated, easily transportable, assemblable, and reversible, which, thanks to the possibility of customising the external closing elements, also lends itself to being used in geographical areas with different climatic characteristics and in contexts with different needs (tourism, emergency, permanent housing, etc.).
The basic module, consisting of a studio apartment with a bathroom, was tested in different geographical locations (particularly Palermo, Florence, Bolzano, and Munich) to verify performance in different contexts. The result is that in all the contexts analysed, the module guaranteed low energy consumption and excellent indoor comfort.
Even the method used, which consists of the analysis of state of the art, the definition of the system requirements, the collaboration between companies specialised in different fields and research organisations for the optimization of the project, the validation of the project using advanced software and prototyping for the testing of initial hypotheses, can be replicated for further research.
The basic module, consisting of a studio apartment with a bathroom, was tested in different geographical locations (particularly Palermo, Florence, Bolzano, and Munich) to verify performance in different contexts. The result is that in all the contexts analysed, the module guaranteed low energy consumption and excellent indoor comfort.
Even the method used, which consists of the analysis of state of the art, the definition of the system requirements, the collaboration between companies specialised in different fields and research organisations for the optimization of the project, the validation of the project using advanced software and prototyping for the testing of initial hypotheses, can be replicated for further research.
Keywords
Smart Building
nZEB
Energy Efficiency
Innovative Materials
Circular Design