Mass customised architecture system
Basic information
Project Title
Mass customised architecture system
Full project title
Mass customised architecture system using prefabricated wood components and user configuration.
Category
Shaping a circular industrial ecosystem and supporting life-cycle thinking
Project Description
The subject of the project is mass customisation in architecture, based on the example of an architectural design of a single-family estate in Warsaw. The project proposes a wooden prefabricated system, designed in a way that offers maximum variability of configurations, with a minimum number of used elements. The system comes with a design of a circular process that allows a customer to configure the architecture of the house in an accesible way, adjusting it to individal preferences.
Geographical Scope
National
Project Region
Poland
Urban or rural issues
It addresses urban-rural linkages
Physical or other transformations
It refers to a physical transformation of the built environment (hard investment)
EU Programme or fund
No
Description of the project
Summary
The subject of the project is mass customisation in architecture, based on the example of an architectural design of a single-family, terraced housing estate. The estate was designed with the use of timber prefabrication system that is implementing the principles of mass customisation.
The project is located in Warsaw. The context combines both the qualities of a large city and a small town. The concept of the project focuses on the relationship between architecture and technology in relation to the individual, dynamically changing customers needs. It is an attempt to find a solution to shaping and implementing affordable, customised architecture on a large scale in the times of economic and environmental crisis. The point is that the privilege of customised design should be economically available to the widest possible group of recipients, while meeting both contemporary and future environmental requirements.
As part of the implementation of these premises , the project proposes a wooden prefabricated system, which has been designed in a way that offers the maximum variability of the architecture configurations, with a minimum number of used elements. That way the solution allows the architecture to be individually customised and configured, while retaining the potential of an efficient mass production. The system comes with a design of a process that allows a customer to configure the architecture of the house in an accesible way, by adjusting it to individual preferences. Both the system and the process embrace circular economy and sustainable development principles, thanks to the advantages of timber prefabrication.
The architectural concept of the project is based on the system as a tool for creating architecture by the user, offering freedom of choice, changeability of architecture over time, diversity and urban dynamics. It is based on achieving the coherence and the sense of both individuality and community.
The project is located in Warsaw. The context combines both the qualities of a large city and a small town. The concept of the project focuses on the relationship between architecture and technology in relation to the individual, dynamically changing customers needs. It is an attempt to find a solution to shaping and implementing affordable, customised architecture on a large scale in the times of economic and environmental crisis. The point is that the privilege of customised design should be economically available to the widest possible group of recipients, while meeting both contemporary and future environmental requirements.
As part of the implementation of these premises , the project proposes a wooden prefabricated system, which has been designed in a way that offers the maximum variability of the architecture configurations, with a minimum number of used elements. That way the solution allows the architecture to be individually customised and configured, while retaining the potential of an efficient mass production. The system comes with a design of a process that allows a customer to configure the architecture of the house in an accesible way, by adjusting it to individual preferences. Both the system and the process embrace circular economy and sustainable development principles, thanks to the advantages of timber prefabrication.
The architectural concept of the project is based on the system as a tool for creating architecture by the user, offering freedom of choice, changeability of architecture over time, diversity and urban dynamics. It is based on achieving the coherence and the sense of both individuality and community.
Key objectives for sustainability
The main focus of the project regarding sustainable solutions is reducing construction waste and circular use of building materials. Construction industry is responsible for a significant proportion of total carbon emissions and material waste. It is estimated that even up to 40% of total building materials delivered on site end up as a waste. Considering that the population is still growing, the rate of construction will only increase producing more waste if developed with current technology.
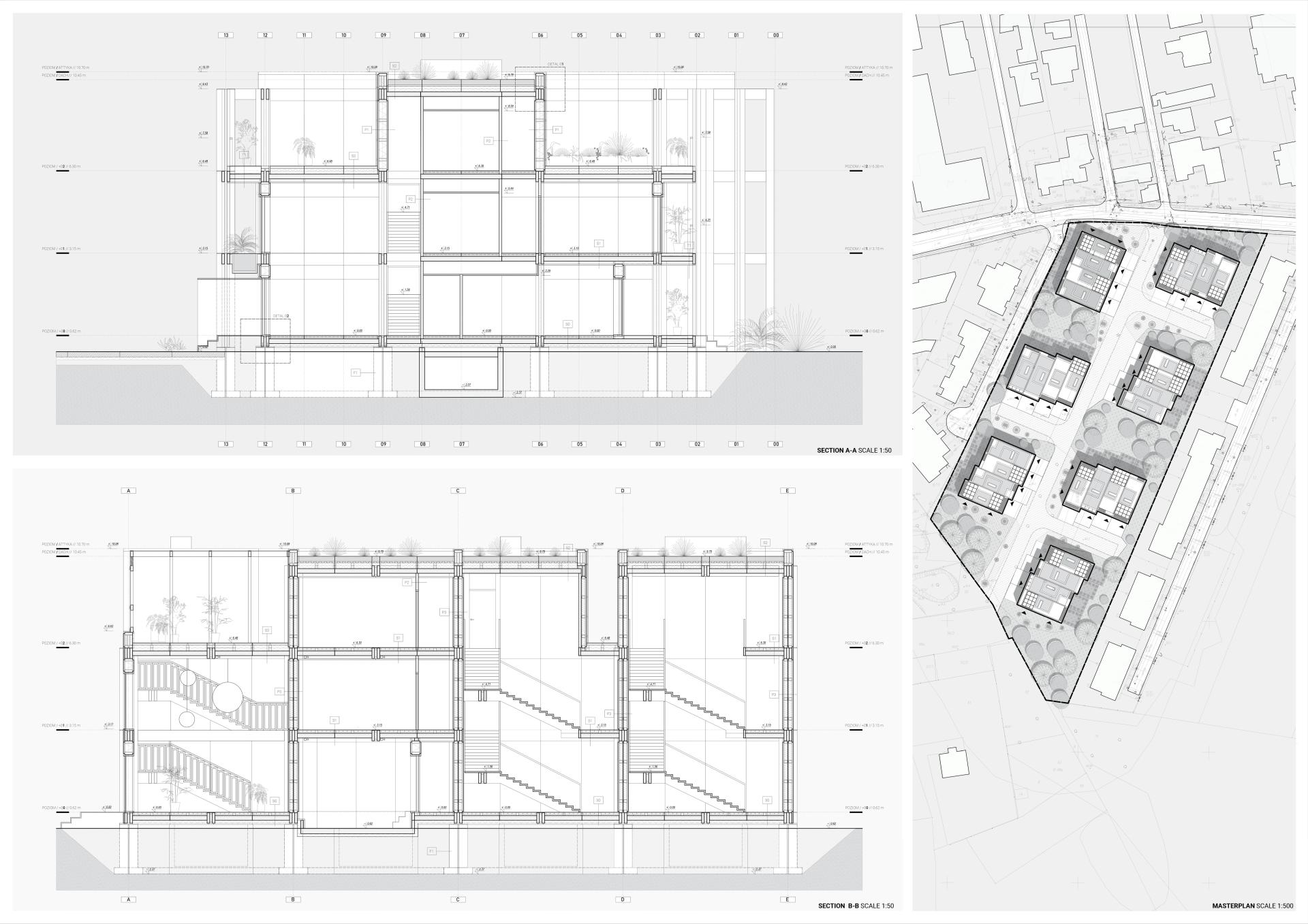
Proposed concept is based on the idea of meeting individual needs on a mass scale through prefabrication. Prefabricated building components are made in a factory, which substantially reduces waste production, thanks to industrial technologies and robotics. Proposed profabricated components are fully integrated and build with only recyclable materials – wood, glass, aluminium, steel and insulated with wood wool. The entire structure of the house is designed for dissasembly using mechanical joints. That allows the houses to be quickly dismantled and reconfigured if the house owner or their needs change, without producing demolition waste. Dissasembled elements can also be sent back to factory for repair or recycling. The use of concrete was reduced only for foundations. Units are placed on conrete foundation columns placing buildings slighlty above the ground to reduce the impact on the soil.
Project also encourages the use of renewable resources. Every unit is powered with bisolar roofs and has an underground rainwater tank for water reuse.
Proposed set of solutions is organised as an example of creating worth for the user using circular economy strategy. This process is designed to both help the environment and to develop affordable, customised design for many.
Proposed concept is based on the idea of meeting individual needs on a mass scale through prefabrication. Prefabricated building components are made in a factory, which substantially reduces waste production, thanks to industrial technologies and robotics. Proposed profabricated components are fully integrated and build with only recyclable materials – wood, glass, aluminium, steel and insulated with wood wool. The entire structure of the house is designed for dissasembly using mechanical joints. That allows the houses to be quickly dismantled and reconfigured if the house owner or their needs change, without producing demolition waste. Dissasembled elements can also be sent back to factory for repair or recycling. The use of concrete was reduced only for foundations. Units are placed on conrete foundation columns placing buildings slighlty above the ground to reduce the impact on the soil.
Project also encourages the use of renewable resources. Every unit is powered with bisolar roofs and has an underground rainwater tank for water reuse.
Proposed set of solutions is organised as an example of creating worth for the user using circular economy strategy. This process is designed to both help the environment and to develop affordable, customised design for many.
Key objectives for aesthetics and quality
Proposed solution approaches housing as a true consumer product and service. The key objective is the unique user experience of designing their personalised house for a price of a typical project. To provide such service, the concept proposes solutions for the prefabricated system, its aesthetic and a configurator as a design tool for the users.
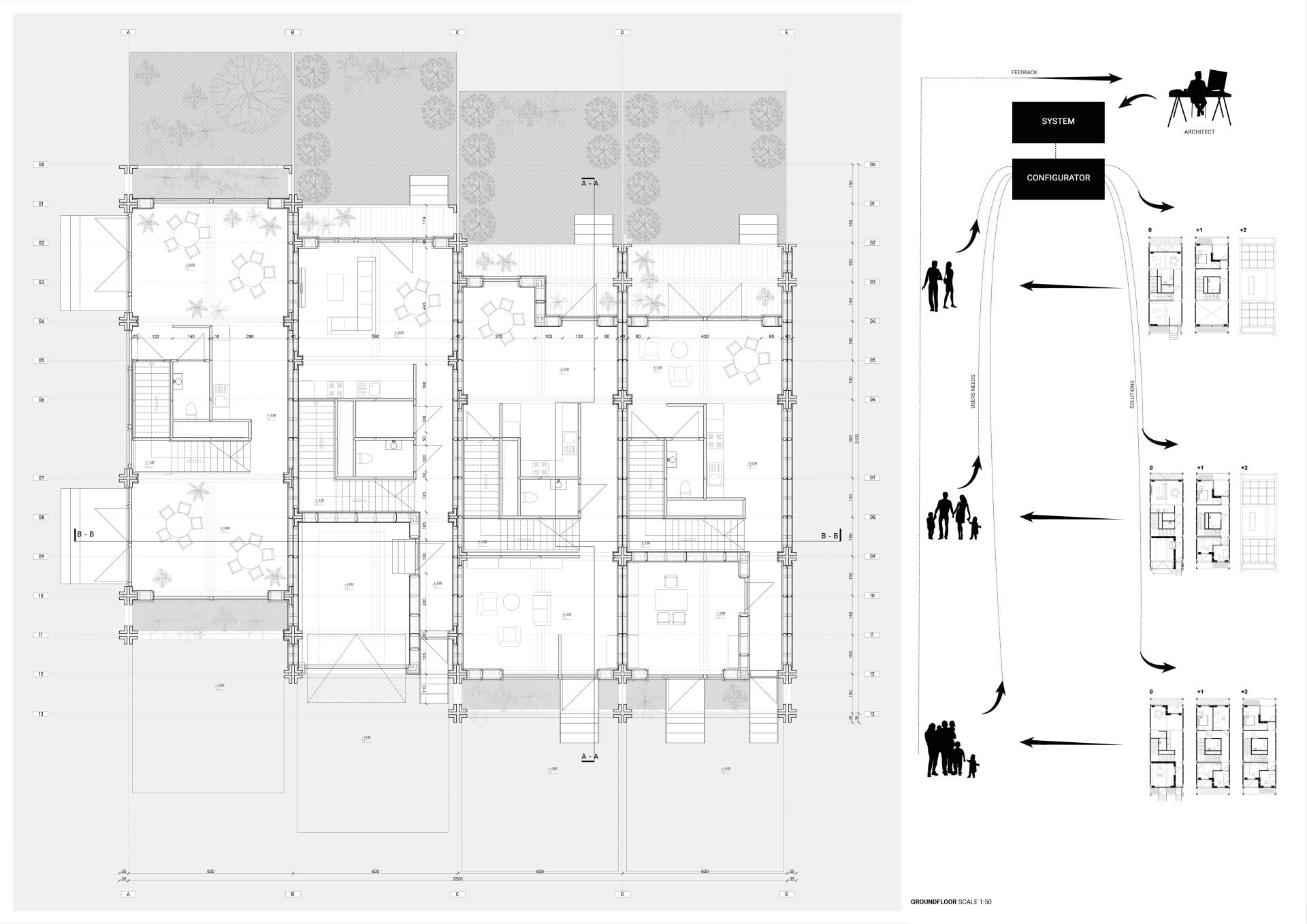
Prefabricated concept system combines qualities of different types of standard prefabricated systems. Organising communication, kitchen and toilet functions all in one core of each unit frees up the rest of the space and allows different configurations of layouts. Functionally units are divided in sections with assigned functions and its layout options. Thanks to assigning functions for sections, each one can be modified independently. That way user can choose prefered type of layouts on each floor, based entirely on their preferences without having any design knowlege – simply a user can never go wrong.
The concept includes design of a configurator with symple step-by-setp algorythm for a user. Eventually this configurator could have a form of a website or an easy to use phone application. Choice starts with picking the unit spot on the plot and proceeds to customising layouts, functions and facades, level by level with live 3D preview. The goal is to give easy and satysfiying tool for users to customise and be the co-authors of their designs.
Aesthetically the main focus was to maintain consistency in the variety of possible outcomes. The choice of options for each piece is reduced making it easier for a user to choose from and is economically more feasible. Materials are natural including wood, glass and aluminium.The mechanism of the system is exemplary and can be modified.
Prefabricated concept system combines qualities of different types of standard prefabricated systems. Organising communication, kitchen and toilet functions all in one core of each unit frees up the rest of the space and allows different configurations of layouts. Functionally units are divided in sections with assigned functions and its layout options. Thanks to assigning functions for sections, each one can be modified independently. That way user can choose prefered type of layouts on each floor, based entirely on their preferences without having any design knowlege – simply a user can never go wrong.
The concept includes design of a configurator with symple step-by-setp algorythm for a user. Eventually this configurator could have a form of a website or an easy to use phone application. Choice starts with picking the unit spot on the plot and proceeds to customising layouts, functions and facades, level by level with live 3D preview. The goal is to give easy and satysfiying tool for users to customise and be the co-authors of their designs.
Aesthetically the main focus was to maintain consistency in the variety of possible outcomes. The choice of options for each piece is reduced making it easier for a user to choose from and is economically more feasible. Materials are natural including wood, glass and aluminium.The mechanism of the system is exemplary and can be modified.
Key objectives for inclusion
Main purpose of mass customisation of any product or service is satysfying individual needs and preferances on a mass scale. The goal is to make customised architecture more affordable by using the economical adventages of mass, repetitive production. In case of this architectural concept this purpose is served by shaping the prefabricated components in a way that maximises variability of configuarations with reducing number of produced elements to the minimum. Each unit has hundreds of variations, depending on users choice of configuration, using only less than 40 types of prefabricated components. That includes units of different sizes, program and individual solutions ( ex. facilities for the disabled) to reach the widest social group possible
Prefabricated wooden components are integrated with insulation, exterior and interior finish, using mechanical joints allowing them to be disassembled and reconfigured. Thanks to that any new or current user of a house can order reconfiguration of existing unit.
Proposed concept treats housing as a service. Besides servicing and reconfiguring houses, the concept assumes providing different ownership options like full ownership or renting to make it affordable for wider group of users.
Providing the configurator will allow users not only to be involved in the design of their unit, but also giving feedback and help improving the system.
Prefabricated wooden components are integrated with insulation, exterior and interior finish, using mechanical joints allowing them to be disassembled and reconfigured. Thanks to that any new or current user of a house can order reconfiguration of existing unit.
Proposed concept treats housing as a service. Besides servicing and reconfiguring houses, the concept assumes providing different ownership options like full ownership or renting to make it affordable for wider group of users.
Providing the configurator will allow users not only to be involved in the design of their unit, but also giving feedback and help improving the system.
How Citizens benefit
Reintroducing prefabrication in its sustainable, contemporary form in times of economical and climate crisis could not only help the cause, but also help to change the negative perception of prefabrication in cities. Especially in Western Europe, where prefabrication has rather negative connotations ,because of post-war history and politics. Monotone landscape, full of identical apartment blocks, poor quality, lost sense of belonging and feeling anonymous is what prefabrication left in culture and perception of many Europeans. Reinventing prefabrication by fixing its repetitiveness and poor quality could change that. The concept offers prefabrication that is sustainable with the use of recycleble materials, flexibility and customisation and finally high quality thanks to modern, digital manufacturing technologies.
The use of prefabrication has undeniable benefits for the build environment. Components are produced in a factory and only assembled on site, which drastically reduces time of construction, freeing cities and suburbs from a growing number of ongoing construction sites that make it difficult to cummute and produces a lot of noise. Every component proposed in the concept can fit in a standard shipping container, allowing to deliver all of the pieces quickly and using regular roads. Wooden prefabricated components are also light and can be assembled with a mini-crane ( for example Maeda models), making construction less noisy, faster and with little to no waste. All of the components are fully recycleable, made with wood, glass, aluminium and steel. Because the prefabricated components are build in a factory the production of material waste also reduces.
The use of prefabrication has undeniable benefits for the build environment. Components are produced in a factory and only assembled on site, which drastically reduces time of construction, freeing cities and suburbs from a growing number of ongoing construction sites that make it difficult to cummute and produces a lot of noise. Every component proposed in the concept can fit in a standard shipping container, allowing to deliver all of the pieces quickly and using regular roads. Wooden prefabricated components are also light and can be assembled with a mini-crane ( for example Maeda models), making construction less noisy, faster and with little to no waste. All of the components are fully recycleable, made with wood, glass, aluminium and steel. Because the prefabricated components are build in a factory the production of material waste also reduces.
Physical or other transformations
It refers to a physical transformation of the built environment (hard investment)
Innovative character
Mass customisation is not a new concept and is widely used in many industries such as automotive, high technology or clothing. In architecture mass customisation is still a developing market, with promising potential, considering how fast prefabrication market is estimated to grow in the future.
What can be considered as innovative is the unique solution of the design problem. The variability of layouts is obtained by means of a three-stage system of connecting elements. Thereare 38 types of basic prefabricated components. These components are shaped in way that they can be combined into blocks, creating layouts of entire rooms and its facades. Blocks are placed in their spot in the structural grid. The grid is the skeletal structure of the building which creates 5 sections with assigned functions.
Unit variations are obtained by mixing the types blocks in sections. This provides the user with configuring sections independently. The solution offers hundreds of combinations, using few types of elements.
Additionaly, concept proposes configuration of the architecture by the user with virtual configurator that guides the user step-by-step through the customisation of the unit. The configurator has been designed in a way that each decision made by the user is compatible with previous and subsequent one. After completing the configuration, the resulting house design will be functional and consistent, regardless of choices made by a user.
The level of variability compared to amount of element types and how those components are build and connect, makes the concept more complete compared to what is currently avialable
What can be considered as innovative is the unique solution of the design problem. The variability of layouts is obtained by means of a three-stage system of connecting elements. Thereare 38 types of basic prefabricated components. These components are shaped in way that they can be combined into blocks, creating layouts of entire rooms and its facades. Blocks are placed in their spot in the structural grid. The grid is the skeletal structure of the building which creates 5 sections with assigned functions.
Unit variations are obtained by mixing the types blocks in sections. This provides the user with configuring sections independently. The solution offers hundreds of combinations, using few types of elements.
Additionaly, concept proposes configuration of the architecture by the user with virtual configurator that guides the user step-by-step through the customisation of the unit. The configurator has been designed in a way that each decision made by the user is compatible with previous and subsequent one. After completing the configuration, the resulting house design will be functional and consistent, regardless of choices made by a user.
The level of variability compared to amount of element types and how those components are build and connect, makes the concept more complete compared to what is currently avialable
Disciplines/knowledge reflected
During the design stage the project was regularly consulted with multi-disciplinary experts such as architects, civil engineers, structural engineers, prefabrication experts and installation designers. This reflected in solving the design problem in more detail and more realistic approach that exceeds concept design level. After the cicle of consulations the work was defended as a thesis project for Master of Architecture Degree on Warsaw University of Technology.
How stakeholders are engaged
The presented concept was developed on Warsaw University of Technology as a Master of Architecture thesis project. During the development, the project was was consulted and approved by architects, manufacturers and engineers working at the University. Value of their engagement and opinion was substantial for designing a process and a system that exceeds beyond architectural design.
Global challenges
In post-pandemic reality climate and economical crysises coincide. Due to progressing climate changes demand for reducing carbon dioxide emissions, reducing waste, circular use of materials and investing in renewable energy sources is urgent. Construction industry substantially contrubutes to total global carbon emissions and waste production.
At the same time economical crysis affects inflation, slows down investments, intensifies housing crysis and growing interest rates that make owning and renting houses unaffordable for many.
Prefabrication stood the test of time of proving itself helpful in critical situations after the World War II, when in destroyed Europe millions of people were left homeless. Mass production was cheap, fast and efficient in providing apartments for Europeans. That prefabrication was far from perfect and left substantial, often negative impact on landscape and culture in many European coutries.
Proposed, local concept aims to envision what modern prefabrication could be. Contemporary prefabrication should offer variety and flexibility, adress individual needs and use sustainable, high quality materials.
At the same time economical crysis affects inflation, slows down investments, intensifies housing crysis and growing interest rates that make owning and renting houses unaffordable for many.
Prefabrication stood the test of time of proving itself helpful in critical situations after the World War II, when in destroyed Europe millions of people were left homeless. Mass production was cheap, fast and efficient in providing apartments for Europeans. That prefabrication was far from perfect and left substantial, often negative impact on landscape and culture in many European coutries.
Proposed, local concept aims to envision what modern prefabrication could be. Contemporary prefabrication should offer variety and flexibility, adress individual needs and use sustainable, high quality materials.
Learning transferred to other parties
The concepts goal is to encourage designers to think of architecture and shaping the environment more in terms of creating systems that generate outcomes on demand, rather than approaching every project as an individual prototype. The system in terms of structure, range of options, aesthetics and urban layouts can be altered and modified for different needs and contexts, improving in quality, while maintaining the economical and environmental benefits of wooden prefabrication. The more functional systems out there, the more variety and benefits of scale.
Keywords
mass customisation
architecture
circular economy
prefabrication
user configuration