IDEAL CITY DISTRICT IN THE 21ST CENTURY
Basic information
Project Title
IDEAL CITY DISTRICT IN THE 21ST CENTURY
Full project title
MULTIFUNCTIONAL AND SUSTAINABLE MASS TIMBER RESIDENTIAL AREA WITH SPONGE CITY DESIGN SOLUTIONS
Category
Reconnecting with nature
Project Description
An ideal district concept has been on my mind since I started my degree and fell in love with urban planning. This engineers' project is the materialization of my vision in written and graphic form. This work is a synthesis of all the most important contemporary design ideas and methods currently existing in urban design, architecture and construction. Low water retention, mass timber, mixed-use 15-minute cities," car-free cities, autonomous cities, socially engaging and green public spaces.
Geographical Scope
Local
Project Region
Kuyavian-Pomeranian Voivodeship, Bydgoszcz, Poland
Urban or rural issues
Mainly urban
Physical or other transformations
It refers to a physical transformation of the built environment (hard investment)
EU Programme or fund
No
Description of the project
Summary
The overarching design consideration is the concept of an ideal city in the 21st century in the face of anthropogenic climate change. Given this, I've made extensive analyses of the trends of implementation of specific design solutions in the world that prevent them in the field of urban planning, architecture and construction. I selected the most important ones and created a synthesis of them in one project. These are:
Low water retention in urban planning - these solutions prevent the occurrence of floods and droughts, where the ground accumulates rainwater and releases it during hot weather, so it acts like a sponge.
Mass timber as a construction technology for all buildings on the estate. CLT - in contrast to masonry and reinforced concrete, allows for a negative carbon footprint of the investment, as the construction process of the building emits less CO2 than is absorbed by the trees used for construction, thus building with mass timber is better for the environment than not building at all.
The idea of a 15-minute city and mixed-use developments, where all basic services are within a 15-minute walk.
The idea of a city with priority for pedestrians and cyclists. Car traffic on the estate has been reduced to a minimum.
The idea of an autonomous housing estate with energy-efficient, zero-energy or plus-energy buildings.
Creation of socially inclusive public spaces surrounded by vast greenery with low-rise, high-intensity buildings.
The final goal was to highlight the state of Polish housing and how it is adapted to today's needs of society in times of digitization and changing lifestyles. In order to gather material for the design of apartments and single-family houses, an online survey was conducted to establish preferences for the square meters of apartments, houses and rooms, which showed a demand for more space and area per person compared to today's standards set by the developer housing market and generally accepted norms.
Low water retention in urban planning - these solutions prevent the occurrence of floods and droughts, where the ground accumulates rainwater and releases it during hot weather, so it acts like a sponge.
Mass timber as a construction technology for all buildings on the estate. CLT - in contrast to masonry and reinforced concrete, allows for a negative carbon footprint of the investment, as the construction process of the building emits less CO2 than is absorbed by the trees used for construction, thus building with mass timber is better for the environment than not building at all.
The idea of a 15-minute city and mixed-use developments, where all basic services are within a 15-minute walk.
The idea of a city with priority for pedestrians and cyclists. Car traffic on the estate has been reduced to a minimum.
The idea of an autonomous housing estate with energy-efficient, zero-energy or plus-energy buildings.
Creation of socially inclusive public spaces surrounded by vast greenery with low-rise, high-intensity buildings.
The final goal was to highlight the state of Polish housing and how it is adapted to today's needs of society in times of digitization and changing lifestyles. In order to gather material for the design of apartments and single-family houses, an online survey was conducted to establish preferences for the square meters of apartments, houses and rooms, which showed a demand for more space and area per person compared to today's standards set by the developer housing market and generally accepted norms.
Key objectives for sustainability
The concept deliberately draws attention to the most important ideas emerging today that have the potential to transform our civilization. Instead of competing with nature for land for development and isolating ourselves from it - the concept seeks to embrace nature and unite with it through ecological design methods. From the idea of a sponge city, the use of mass timber in all buildings, minimizing movement by non-ecological means of transportation, to the idea of autonomous settlements, where we use all available technology enabling us with - plus-energy (photovoltaic panels, heat pumps, recuperation), rainwater usage to reduce the consumption of water from the municipal water supply, biological sanitary sewage treatment plants as an alternative to the traditional sewage system. Throughout the project - in the appendices on the design charts and in the description, the exact solutions are detailed. The project is intended to act as a serving of solutions on a platter for use by anyone concerned about sustainability. The project aims to show how the entire urban human-built environment can be completely harmonized with nature without harming it. The project puts life at the center, and not just human beings, so it perfectly fits the European Bauhaus mission.
Key objectives for aesthetics and quality
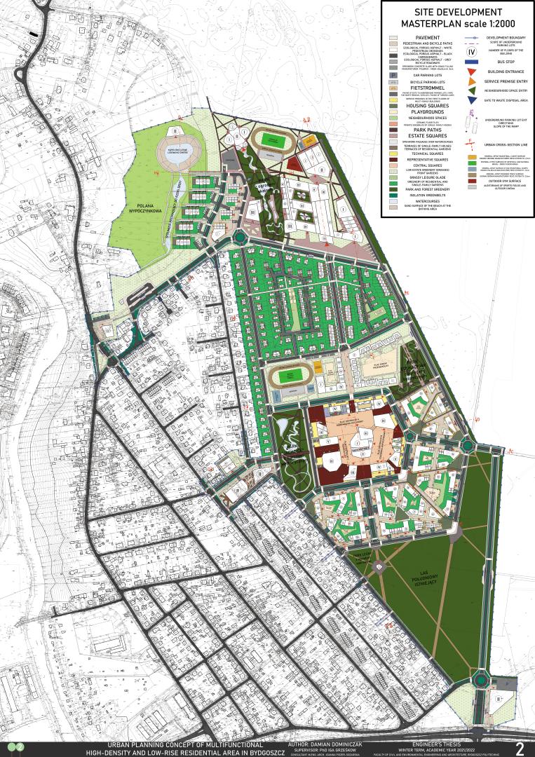
The project takes into account high-quality aesthetic material solutions - such as building facades made of titanium-zinc sheet, clinker bricks, siding made of vertical wooden planks. High-quality color art and architectural composition through the juxtaposition of buildings on a harmonizing color palette that facilitates the unambiguous identification of the space and the creation of an original identity of the place on its basis. Each type of single-family residential development and each quarter of multi-family housing has a different set of colors. Urban details in the form of plant pots, seating areas, pedestrian and bicycle promenade paving, each detail is color-coordinated to the overall perception of the outdoor space. The excellent urban design composition tips the eye and directs people to their desired places and facilitates seamless communication through the estate. In addition, the design takes into account the site context of the Jachcice estate, its former ties to horticulture - the estate has public gardens and parks - sensory, botanical, rock, sacral and a leisure glade with a bathing area. The project takes into account links to the cinema, theater, cultural events, the grange, and proximity to the Brda River. The project is appropriately adapted to the location and character of this individual and original place on the map of Bydgoszcz. The project meets the needs of the existing neighborhood in terms of all kinds of services, scarcity of arranged green areas, high quality inclusive public spaces for all ages. The project includes an entertainment and cultural city-wide space in the form of a central square with high-level public buildings, including a concert venue, a movie theater, sports and recreational facilities, restaurants and offices, which are embedded in the context of the place and inscribed with lush greenery, water, inscribed with sustainable design methods that are visible to the bare eye.
Key objectives for inclusion
The design integrates residents socially through brilliantly landscaped public spaces that integrate them through cutural events in the central square, recreation and relaxation in the leisure glade and in many other residential grounds. Also by communal contact with nature, group spaces in the form of neighborhood spaces in residential areas and semi-private spaces available in the front gardens of multi-family developments. The designed space mobilizes people to take care of the environment together through the easy accessibility of the most important methods and means of good environmental action - building technologies, architectural design methods, urban planning solutions. Methods of urban and architectural design that reduce the cost of living, living in the city and operating buildings to a minimum or eliminate them completely through intelligent systems for managing rainwater, sanitary sewage, municipal waste, renewable energy. But also sustainable building technologies - CLT construction, wood fiber insulation. Mass timber technology is currently expensive due to demand exceeding supply and underinvestment in technology development. There is inadequate knowledge dissemination about it, inadequate public awareness of its potential use. It is also undermined by the actions of those maintaining the harmful status quo by lobbying the idea of automotive city and further building with reinforced concrete and masonry technologies and using non-renewable energy sources that pollute the planet. Mass timber technology needs exposure. It also needs a commitment to the establishment of new factories around the world producing this building material in such quantities that supply begins to exceed demand and thus the price of using this technology becomes lower. The concept I prepared and the action I took in applying for the New European Bauhaus prize is my spreading the good solutions for the people.
How Citizens benefit
The final goal of the project was to highlight the state of Polish housing and how it is adapted to today's needs of society in times of digitization and changing lifestyles. In order to gather material for the design of apartments and single-family houses, an online survey was conducted establishing preferences for the square meters of apartments, houses and rooms, which showed a demand for more space and area per 1 person compared to today's standards set by the developer housing market and generally accepted norms. Based on the survey, a model multifamily building with 21 different apartments and 17 types of single-family housing with small (50 to 90m2), medium (90 to 140m2) and large (140 to 210m2) square meters was designed. Each multifamily building and single-family development type is original in its functional layout, which has been adapted to the results of the online survey. The survey was shared by me on many public Facebook groups to reach as many people as possible. I was able to collect 112 respondents of various age ranges, where the majority, however, were young people between the ages of 18 and 30. I make no secret of the fact that the number of people who took part in the survey is not very satisfactory to me, and I would certainly like to do much more extensive research in this direction in the future with the help of institutions, in order to get an in-depth understanding of the housing preferences of Polish society. A detailed description of the research results can be found in the appendices I added to this competition application.
Physical or other transformations
It refers to a physical transformation of the built environment (hard investment)
Innovative character
Poland's overall city planning condition is tragic, & the estates built today don't meet the standards for social activation of residents - such estates are most often completely fenced off from public space. Only in individual cases there are situations where the space isn't fenced. However, the quality of public space is still quite poor, and such places lack a lively, social atmosphere, green areas, space designed with the users in mind. The problems with Polish urban planning are rooted in the legislation, which doesn't work in favor of creating quality urban space, instead it works in favor of creating various pathologies, which I elaborated on in more detail in the descriptive part of the project. In addition, it's also worth mentioning aspects beyond public spaces or housing areas, which I have written about in other responses. Building with wood - is not popular, as long as we leave out timber frame technology, which is used only in small buildings like single-family houses. However, what about larger buildings? The use of reinforced concrete and masonry technologies prevails. It wasn't until 2022 that I started noticing individual cases in Poland of projects that take into account the potential of mass timber. Another aspect is small water retention solutions - the ideas used are singular usually by individual initiators. The catalog of green-blue infrastructure created by MWiK Bydgoszcz is a very good guide, but nevertheless few of such solutions are used by investors in a large-scale planned system. Awareness of renewable energy sources such as photovoltaic panels, heat pumps and recuperation is already very popular. What is still missing, however, is a holistic coherence for all the ideas mentioned. All that is happening in mainstream activities are detached instances of singular ideas. My concept is to make everything coherent and interlocked in such a way that together they form an ideal way to design entire neighborhoods according to a paradigm.
Disciplines/knowledge reflected
The concept is an urban-architectural project. However, it is firmly rooted in the context of landscape architecture, as well as the technical aspects of civil engineering. The vast majority of the concept relates to the ways of city planning, the design of public spaces and sociology in the architecture of public spaces. With regard to the technical solutions of buildings, in particular, technical-engineering issues, the specifics of various building materials are addressed, and so by extension, issues of building materials engineering, building physics, installation, environmental protection, fire protection. In the essay on mass timber, there are in-depth discussions of the properties of wood as a material, sustainable forest management, and how the development of this construction technology looks today compared to the past.
How stakeholders are engaged
The design work I submitted is an engineering diploma, which I performed individually. The only people involved in taking care of my project were my supervisor and consultant. Both of these people assisted me in the technical aspects of the correctness of the drawings, clarification of descriptions. Mrs. consultant is a specialist in the context of architecture and urban planning, while Mrs. supervisor is a specialist in the context of landscape design and urban planning. Despite their involvement in the care of the concept, the whole value of ideas, inventions, solutions was originated on my initiative, and the supervisor's and consultant's contribution was limited only to ascertaining the technical correctness of implementation. In addition, when searching for particular ideas and inspirations, or design solutions - I used extensive Internet resources, as well as thematic literature. The descriptive part of my project explains and bullet points the various inspirations and examples I used in developing the concept.
Global challenges
The use of timber construction in buildings on a large scale instead of environmentally destructive reinforced concrete structures is the most important step toward drastically reducing the carbon footprint of construction. The second step is to optimize people's lifestyles by building settlements and cities so that their daily needs are met without using polluting means of transportation. Creating multifunctional, energy-efficient and autonomous settlements will ensure that we do not waste the planet's non-renewable resources. Having all services designed nearby, moving by non-environmental means of transportation is not necessary. By using water in its natural cycle, we are not wasting it. By treating sanitary wastewater in local domestic treatment plants, we do not pollute the environment. By living in sustainably sourced wood buildings we lead to a negative carbon footprint. By using solar energy, we reduce the need for energy supplied by less environmentally friendly sources. By designing permeable surfaces and green-filled estates, we allow rainwater to soak in and cool the climate of the estate in summer. The project is a bold concept of an ideal city. After searching for innovative design ideas and gathering the best solutions, the project succeeded in addressing the most key challenges of our urban existence to date.
Learning transferred to other parties
The project I made, from start to finish, according to the intention, was to be a paradigm of an ideal estate, and for this reason, all the design solutions used can be drawn from it. The building structure of mass timber should be used on a large scale in all buildings. The idea of developing an estate conveyed in the applications and guidelines, analyses of the estate's existing condition and diagrams of the designed condition can be repeated for other estate projects. Solutions from the catalog of green-blue infrastructure to obtain small water retention in settlements. The whole concept is a paradigm, but with the caveat to always take into account the individual context of the place.
Keywords
sponge city
mass timber construction
mixed-use residential
social activisation
autonomous cities