House of Courage Civic Education Center
Basic information
Project Title
House of Courage Civic Education Center
Full project title
House of Courage Civic Education Center
Category
Prioritising the places and people that need it the most
Project Description
Riga Dock worker Žanis Lipke under impossible circumstances saved people who were not considered people by the authorities and neighbors under German occupation. Civic courage is something to be learned, to be taught, to be trained like a muscle, like a racehorse. The Žanis Lipke Memorial civic education center House of Courage will be a training ground for young people to build resistance to stereotyping and common casually repeated hateful myths. Let’s help lion-hearts grow their courage!
Geographical Scope
National
Project Region
Riga municipality, Latvia
Urban or rural issues
Mainly urban
Physical or other transformations
It refers to a physical transformation of the built environment (hard investment)
EU Programme or fund
No
Description of the project
Summary
Dock worker Žanis Lipke under impossible circumstances saved people who were not considered people by the authorities and neighbors under German occupation. That required courage and friends. Being brave isn’t easy, being the minority isn’t easy. Hating and suspecting any otherness is easier, it takes no effort. But we want to live in a country where your fellow men and women are considered people. We would like our society to be brave, reliable, and considerate. Capable of cooperation and self-regulation, not expecting orders “from above”. And we want to work to make it happen. We want to create a place in Riga for young people to gather and build resistance to automatic stereotyping and common casually repeated hateful myths. Civic courage is something to be learned, to be taught, to be trained like a muscle, like a racehorse. That is why House of Courage will be a training ground for kids and youngsters of Latvia. Let’s help lion-hearts grow their courage and learn to deal with its consequences and side effects too. House of Courage will be located right next to Žanis Lipke Memorial on the island of Ķīpsala, an integral part of the “Knowledge Mile” that already incorporates several universities, business centers, museums and the National Library of Latvia. We are aiming high, but the target is well within reach – we want to be the springboard for a new civil society as it researches its history and brings courageous ideas to life, changing the world for the better. The House of Courage will transform the urban build landscape of the Ķīpsala island through thoughtful blending into historic texture of Riga fishermen's village wooden architecture. It will make one united ensemble together with the listed modernist wooden architecture of the Lipke Memorial by renowned architect Zaiga Gaile. The new volume by the MADE architects will add quality public outdoors and indoors space for commemoration, learning, meditation and socializing, and overall celebration of life.
Key objectives for sustainability
The new civic education center has two key objectives in view to sustainability. They correspond to form and content, accordingly. Regarding the form, the new edifice will respect the historic wooden build environment of the former Riga fishermen village on the island of Ķīpsala using locally produced ecological construction materials: laminated wood frame, plywood furniture, fire treated pitch black surface planks for exterior cladding and polished bright planks for indoors etc. The furniture will be 100% locally manufactured. The heat pump and the solar panels will make the building practically CO2 neutral. There will be charging stations for e-vehicles and scooters along with a parking lot for bicycles. The small café / info point in an open space lounge / co-working area will serve locally grown fresh food and fair trade coffee. The e-operation systems aim at making the House carbon neutral.
As regards the content of the new educational center, the philosophy of politics that informs our thinking is based on the concept of Constitutional patriotism developed by German philosopher Jürgen Habermas. Considering the geopolitical instability in the region in a small country bordering Russia with almost a half of population of Russian descent, a civic education center working in the interests of society at large has to find a common denominator beyond the nationalism of a nation state. The House of Courage will be based on the liberal democratic values of European Union as a peace project for the continent. It will welcome everyone who respects the rule of law and treat each other with respect. Tolerance will be fundamental to the House of Courage. It will serve as a unifying platform even for conflicting views, provided the opinion is argument based and positive solution oriented.
The first of its kind museum civic education center in Latvia, the House of Courage is aimed at strengthening democracy through lessons of history that speak to reality of today.
As regards the content of the new educational center, the philosophy of politics that informs our thinking is based on the concept of Constitutional patriotism developed by German philosopher Jürgen Habermas. Considering the geopolitical instability in the region in a small country bordering Russia with almost a half of population of Russian descent, a civic education center working in the interests of society at large has to find a common denominator beyond the nationalism of a nation state. The House of Courage will be based on the liberal democratic values of European Union as a peace project for the continent. It will welcome everyone who respects the rule of law and treat each other with respect. Tolerance will be fundamental to the House of Courage. It will serve as a unifying platform even for conflicting views, provided the opinion is argument based and positive solution oriented.
The first of its kind museum civic education center in Latvia, the House of Courage is aimed at strengthening democracy through lessons of history that speak to reality of today.
Key objectives for aesthetics and quality
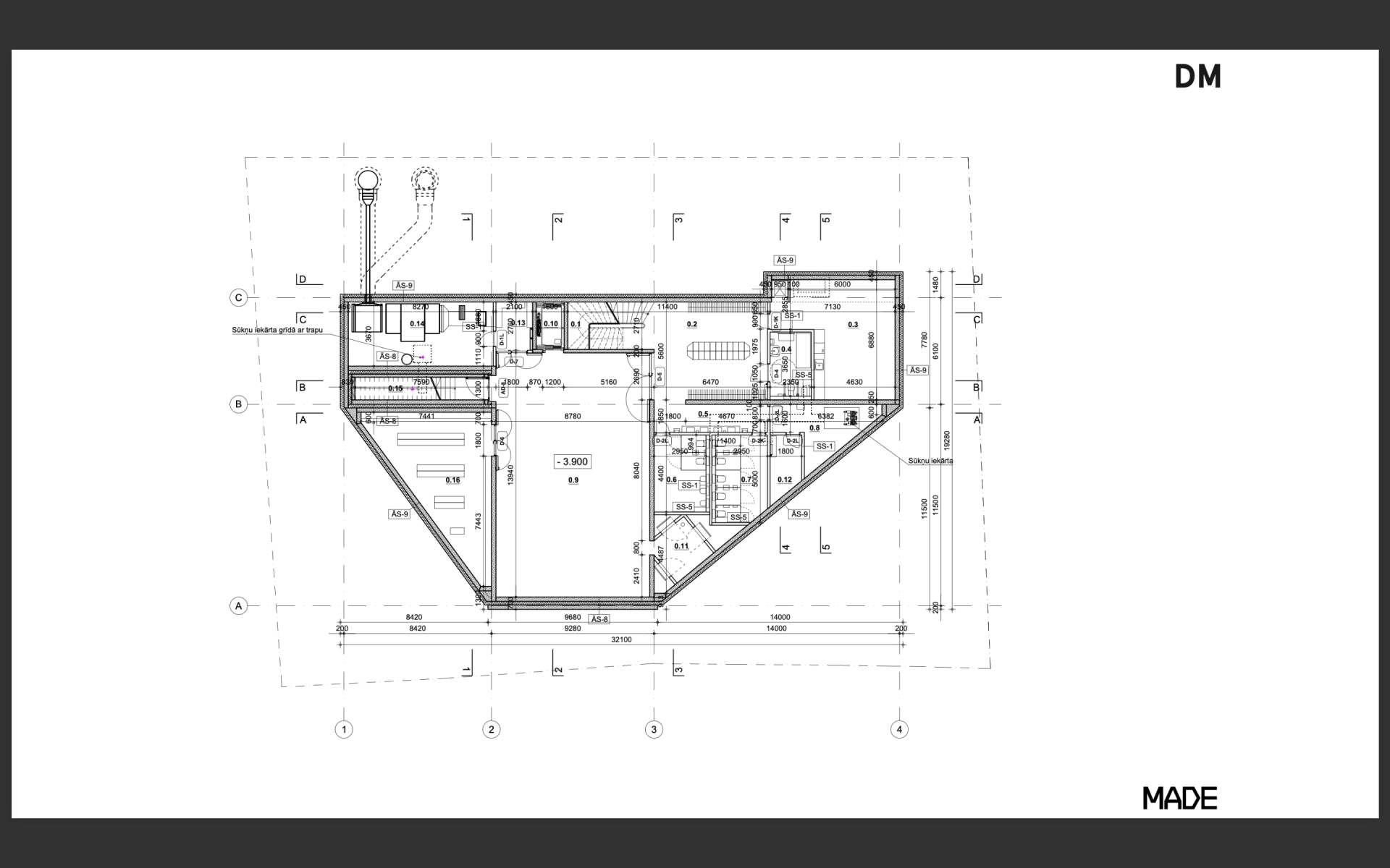
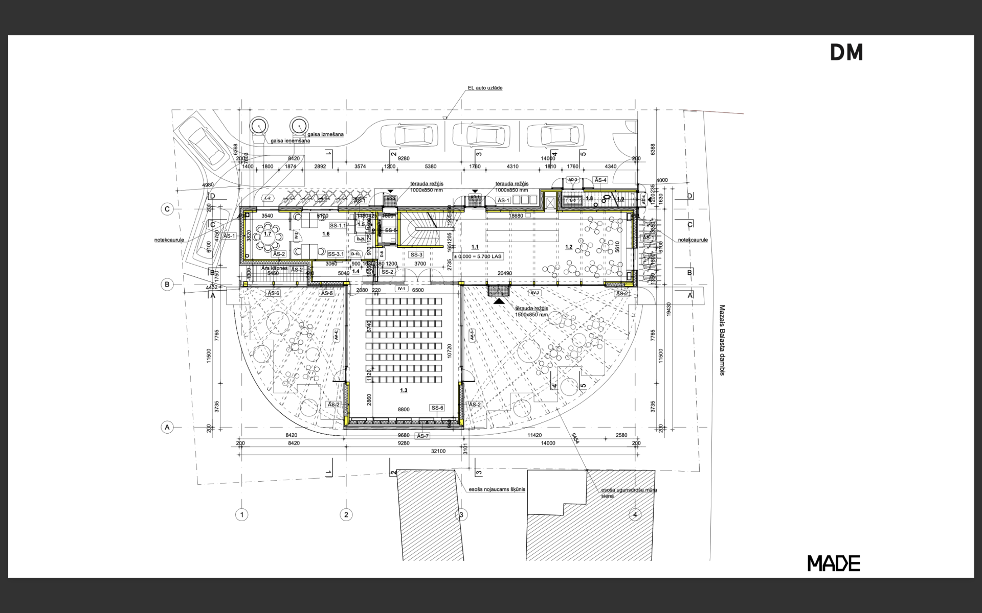
The House of Courage is designed as a multi functional space with variety of facilities for informal education and cultural events. Storage, archival and library rooms are foreseen too for conservation and access to our growing collections of the rescuers of people under the Nazi regime in Latvia. Among other, it will house the normative archive of the close to 500 rescue cases put together and thoroughly researched over many decades.
The House will have such premises:
- lecture hall
- classrooms
- multimedia exhibition space
- meditation room
- makerspace for hands on activities and prototyping
- open planning café / lounge / co-working area
- archive and storage room for museum objects and archival material
Based on the story of civic disobedience and self-regulation under the Nazi occupation, the new amenities of the memorial will provide the necessary means for educational work that at the minute is inhibited due to lack of space and accessibility limitations in the listed Memorial building at the historical site. The new building will be fully accessible for wheelchair users and cater both for groups and individuals in a barer free environment.
Educational programming at the House of Courage will follow the best practice in the field of memorial museums - the 'fast-expanding cluster of institutions that commemorate and interpret modern mass atrocities' (Williams, 2011: 220) - who effectively combine the historical education with advocating for human
rights, democracy, and justice. The future House of Courage as a civic education center in a small European country will necessarily profile in developing programs for strengthening civic defense capabilities through media literacy, and European values based civic competences.
Williams, P. (2011) Memorial museums and the objectification of suffering. In J. Marstine (ed) The Routledge Companion to Museum Ethics: Redefining Ethics for the Twenty-First-Century Museum (pp. 220-235). London: Routledge.
The House will have such premises:
- lecture hall
- classrooms
- multimedia exhibition space
- meditation room
- makerspace for hands on activities and prototyping
- open planning café / lounge / co-working area
- archive and storage room for museum objects and archival material
Based on the story of civic disobedience and self-regulation under the Nazi occupation, the new amenities of the memorial will provide the necessary means for educational work that at the minute is inhibited due to lack of space and accessibility limitations in the listed Memorial building at the historical site. The new building will be fully accessible for wheelchair users and cater both for groups and individuals in a barer free environment.
Educational programming at the House of Courage will follow the best practice in the field of memorial museums - the 'fast-expanding cluster of institutions that commemorate and interpret modern mass atrocities' (Williams, 2011: 220) - who effectively combine the historical education with advocating for human
rights, democracy, and justice. The future House of Courage as a civic education center in a small European country will necessarily profile in developing programs for strengthening civic defense capabilities through media literacy, and European values based civic competences.
Williams, P. (2011) Memorial museums and the objectification of suffering. In J. Marstine (ed) The Routledge Companion to Museum Ethics: Redefining Ethics for the Twenty-First-Century Museum (pp. 220-235). London: Routledge.
Key objectives for inclusion
Located in the fast growing 'Mile of Knowledge' on the left bank of the river Daugava in Riga, the House of Courage will seamlessly blend into the ecosystem of neighborhood dominated by university campuses, innovation and business quarters, residential areas, and the Latvian National Library. The primary target group of the House of Courage thus will be young adults in a formative age. According to an estimate*, the number of students of the three neighboring universities combined will reach 30k by 2025. Considering the growth potential of the business and residential areas in the 'Mile of Knowledge' too, the House of Courage in a years to come is aiming at catching up with the formation of a new social strata so as to become an anchor of informal education for students, kids, and families alike. As an open, safe, controlled and aesthetic community space space, the House of Courage has good prospects of becoming a hub for social connections and initiatives bringing about positive change for the whole neighborhood of Ķīpsala island and the left bank of the river Daugava in Riga as such.
The makerspace at the museum is a novelty in the heritage sector. We plan to dedicate one specialized room for hands-on activities for which the architectural plans are in place (see attachments). In turn, the overall visitor services in the House such as booking any event (free of charge or priced) is planned to be based on digital solutions provided by local digital startups. The same goes for museum collections which are to an extent digitized by now and will be operationally improved even further by specially equipped new open access storage facilities.
* Prior starting the project, Žanis Lipke Memorial commissioned an urban development study of the 'Mile of Knowledge' so as to make an informed decision. The business plan of the House of Courage is based on research presented and discussed in June 2020 https://www.facebook.com/ZanaLipkesMemorials/videos/341615540182070
The makerspace at the museum is a novelty in the heritage sector. We plan to dedicate one specialized room for hands-on activities for which the architectural plans are in place (see attachments). In turn, the overall visitor services in the House such as booking any event (free of charge or priced) is planned to be based on digital solutions provided by local digital startups. The same goes for museum collections which are to an extent digitized by now and will be operationally improved even further by specially equipped new open access storage facilities.
* Prior starting the project, Žanis Lipke Memorial commissioned an urban development study of the 'Mile of Knowledge' so as to make an informed decision. The business plan of the House of Courage is based on research presented and discussed in June 2020 https://www.facebook.com/ZanaLipkesMemorials/videos/341615540182070
Results in relation to category
Short chronology of the House of Courage project development:
1. Project was launched in spring 2020 on the occasion of the 120th anniversary of Žanis Lipke through a crowdfunding campaign https://lipke.lv/en/house-of-courage/
2. In fall 2020 the architectural competition was organized and the best pitch selected out of 15 submitted proposals https://lipke.lv/drosmes-maja/#content-item-4
3. In early 2021 plot of land was purchased next to the Memorial https://lipke.lv/en/house-of-courage/#content-item-1
4. In summer 2021 works on clearing the plot started https://lipke.lv/drosmes-maja/#content-item-6
5. Throughout 2021 and 2022 work on the educational methodology, programming and overall content of the new education center took place through various pilot projects results of which were presented to public in fall 2022 via printed https://lipke.lv/drosmes-maja/#content-item-7 and digital version of the House of Courage booklet https://issuu.com/35095/docs/_
6. On 20 October 2022 for the first time the completed architectural design was presented by the contracted MADE architects to the public http://www.made.lv/?section=selected-work&tag=house-of-courage on site at the Žanis Lipke Memorial and live streamed on Facebook https://lipke.lv/drosmes-maja/#content-item-8 along with one of the pilots of the future educational programming - the virtual reality makerspace https://www.youtube.com/watch?v=pIk5eAevH6o
7. In early 2023 the building permit has been issued by the City of Riga. Construction works expected to start in summer this year.
1. Project was launched in spring 2020 on the occasion of the 120th anniversary of Žanis Lipke through a crowdfunding campaign https://lipke.lv/en/house-of-courage/
2. In fall 2020 the architectural competition was organized and the best pitch selected out of 15 submitted proposals https://lipke.lv/drosmes-maja/#content-item-4
3. In early 2021 plot of land was purchased next to the Memorial https://lipke.lv/en/house-of-courage/#content-item-1
4. In summer 2021 works on clearing the plot started https://lipke.lv/drosmes-maja/#content-item-6
5. Throughout 2021 and 2022 work on the educational methodology, programming and overall content of the new education center took place through various pilot projects results of which were presented to public in fall 2022 via printed https://lipke.lv/drosmes-maja/#content-item-7 and digital version of the House of Courage booklet https://issuu.com/35095/docs/_
6. On 20 October 2022 for the first time the completed architectural design was presented by the contracted MADE architects to the public http://www.made.lv/?section=selected-work&tag=house-of-courage on site at the Žanis Lipke Memorial and live streamed on Facebook https://lipke.lv/drosmes-maja/#content-item-8 along with one of the pilots of the future educational programming - the virtual reality makerspace https://www.youtube.com/watch?v=pIk5eAevH6o
7. In early 2023 the building permit has been issued by the City of Riga. Construction works expected to start in summer this year.
How Citizens benefit
The Žanis Lipke Memorial was opened in 2012 to commemorate the heroic act of civic disobedience of a Riga Dock worker under Nazi occupation who risking everything rescued more than 50 people. This endeavor was possible only thanks to civic engagement of its founders, the surviving Lipke family members, and numerous supporters. No state money was invested in building the Memorial.
10 years later, the Memorial has overgrown its initial function and has become a visible player in the field of informal learning and civic education in Latvia, too. Annual grant in aid from the Ministry of Culture of Latvia partially secures the operation budget. The rest of operational costs and practically every new initiative depends on the public interest, support and cooperation with various stakeholders and communities. It is no different with the House of Courage project which was started in 2020 as a crowdfunding project. Thanks to dozens of large and small patrons https://lipke.lv/campaigns/ziedo/, it was able to purchase the plot of land and pay the architects for a design which is now approved by the municipality of Riga.
If by plan, in 2023 construction works of the House of Courage will start accompanied by further developing of methodology and pilot testing of civic education methods on select groups of target audience. At each step of the project, respective non governmental organisations (civic society NGOs, minority NGOs etc.) and community representatives (e.g. families of survivors, new media artists, young people as messengers) were and continue to be involved in conceptualizing the new educational center for all generations and audiences. For instance, the methodological booklet was developed together with experienced actor in the field of civic education in Germany, the federally funded Federation of Russian speaking parents who implements integration work of Russian and Ukrainian refugees and expats in the German society.
10 years later, the Memorial has overgrown its initial function and has become a visible player in the field of informal learning and civic education in Latvia, too. Annual grant in aid from the Ministry of Culture of Latvia partially secures the operation budget. The rest of operational costs and practically every new initiative depends on the public interest, support and cooperation with various stakeholders and communities. It is no different with the House of Courage project which was started in 2020 as a crowdfunding project. Thanks to dozens of large and small patrons https://lipke.lv/campaigns/ziedo/, it was able to purchase the plot of land and pay the architects for a design which is now approved by the municipality of Riga.
If by plan, in 2023 construction works of the House of Courage will start accompanied by further developing of methodology and pilot testing of civic education methods on select groups of target audience. At each step of the project, respective non governmental organisations (civic society NGOs, minority NGOs etc.) and community representatives (e.g. families of survivors, new media artists, young people as messengers) were and continue to be involved in conceptualizing the new educational center for all generations and audiences. For instance, the methodological booklet was developed together with experienced actor in the field of civic education in Germany, the federally funded Federation of Russian speaking parents who implements integration work of Russian and Ukrainian refugees and expats in the German society.
Physical or other transformations
It refers to a physical transformation of the built environment (hard investment)
Innovative character
The award-winning* Memorial is a product of cultural and creative industries altogether. When conceptualizing both the form and the content of the future civic educational center, and prior making a calculated risk of announcing a fundraising campaign, the Memorial considered to fill a vacant niche of an informal education and a public community center in the emerging 'Mile of Knowledge'. Ironically, but on the whole RTU campus which is dominant the island of Ķīpsala and densely populated by local and international students, there is not a single community space, nor an informal learning or cultural venue except of the tiny Žanis Lipke Memorial. Alas, the narrow premises of the Memorial and its rather meditation and tranquility architecture, is not fit for welcoming larger numbers of visitors over a longer period of time for socializing and exchange. Such facilities as wardrobes with lockers, open space cafe and co-working area with free WIFI access is but an absolute prerequisite for a functional community and educational center. All these needs and more will be matched by the House of Courage - a civic education and creativity center. If our closed neighbors, the RTU, are excelling in higher technical education and feature laboratories for advanced applied studies, experimentation and prototyping, we at the House of Courage are about to fill the gap of informal civic and technical education for kids and high school students as the main target audience. The latter will be achieved by the makerspace on the premises of the new education center thus closing the circle of the formal curricula and informal education over spectrum of generations we want to attract. This is because each generation will find something interesting and relevant to oneself in the new complex of Memorial and the education center either it is commemoration, meditation, socialization, learning, making or research.
*European Museum of the Year Awards' Kenneth Hudson Prize for Museum Innovation
*European Museum of the Year Awards' Kenneth Hudson Prize for Museum Innovation
Disciplines/knowledge reflected
Since the launch of the project in spring 2020, the small but resourceful 5 strong team of the Žanis Lipke Memorial who is behind the idea of the House of Courage civic education center, has worked with a creative team of advertising experts. Together we drafted a Manifest https://lipke.lv/en/house-of-courage/#content-item-2 and created a clip for raising funds https://lipke.lv/en/house-of-courage/ in Latvian, English, and Russian.
In a subsequent open call for interest to aspiring and established architecture bureaus we were assisted by the expert of the Latvian Architect's Union. Professionally organised and communicated call attracted 15 submissions https://lipke.lv/drosmes-maja/#content-item-4 which allowed the Committee of independent experts, including the Head of the National Heritage Authority of Latvia with participation of the Client representative, to select the optimal pitch.
Following up on competition, over next 2 years the Memorial educationists and curators worked closely with MADE architects, a young but experienced bureau specializing in planning schools and other public spaces, on the plans for the House of Courage. In result a detailed floor plan of the House of Courage is matched with the educational programming devised, in turn, in cooperation with the experts in civic education, the Federation of the Russian Speaking Parents in Germany.
In parallel to content and form development, a number of pilot educational projects of the future center already were carried out in 2020-2022. For instance, in order to conceptualize and consult the architects on a proper makerspace in the House of Courage, a pilot in digital storytelling in cooperation with young Latvian new media artists took place through assistance of leading industry professionals. Results of this pilot is the first in Latvia virtual reality experience in a memorial museum and a specially designed VR Room for educational programs featuring 3D reconstruction of the Lipke Bunker.
In a subsequent open call for interest to aspiring and established architecture bureaus we were assisted by the expert of the Latvian Architect's Union. Professionally organised and communicated call attracted 15 submissions https://lipke.lv/drosmes-maja/#content-item-4 which allowed the Committee of independent experts, including the Head of the National Heritage Authority of Latvia with participation of the Client representative, to select the optimal pitch.
Following up on competition, over next 2 years the Memorial educationists and curators worked closely with MADE architects, a young but experienced bureau specializing in planning schools and other public spaces, on the plans for the House of Courage. In result a detailed floor plan of the House of Courage is matched with the educational programming devised, in turn, in cooperation with the experts in civic education, the Federation of the Russian Speaking Parents in Germany.
In parallel to content and form development, a number of pilot educational projects of the future center already were carried out in 2020-2022. For instance, in order to conceptualize and consult the architects on a proper makerspace in the House of Courage, a pilot in digital storytelling in cooperation with young Latvian new media artists took place through assistance of leading industry professionals. Results of this pilot is the first in Latvia virtual reality experience in a memorial museum and a specially designed VR Room for educational programs featuring 3D reconstruction of the Lipke Bunker.
Methodology used
As outlined above, the methodological approach in conceptualizing and developing the House of Courage is through bridging cultural and creative industries in an open and accountable capital project in several major phases. In other words, content and form goes hand in hand in a constant mutually correcting mode. Starting from the Manifesto and the crowdfunding campaign together with an advertising company, corrections to the eventual profile of the House, its positioning both in the physical - urban - and the symbolic - recent history and civic education landscape - of the country has been made. For instance, when we realized that there is potential to develop the House of Courage not only as a civic education but also a creative space where socially relevant problems can be hacked and solutions prototyped by the likeness of the RTU technical labs just across the street, we piloted the digital makerspace with young new media artists. The very encouraging feedback from the target audience and community of makers that we build this way convinced us and the Board of the necessity to design one of the classrooms as a proper makerspace with all the necessary gear and operational capacities.
Having completed the architectural planning along the methodological guidelines for educational programming, in the next project phase conceptualizing of the permanent multimedia exhibition dedicated to Riga and all Latvian rescuers will follow. Again, this will be managed through an open call followed by critical examining of the museum's content brief against technical viability in the light of visitor experience and service design expert advise.
Having completed the architectural planning along the methodological guidelines for educational programming, in the next project phase conceptualizing of the permanent multimedia exhibition dedicated to Riga and all Latvian rescuers will follow. Again, this will be managed through an open call followed by critical examining of the museum's content brief against technical viability in the light of visitor experience and service design expert advise.
How stakeholders are engaged
It is specially for the project of the House of History, that the Žanis Lipke Memorial as a charity has amended its governance model opening it up for a Board of Trustees consisting of major figures involved in conceptualizing, lobbying, and funding the project. The Board consists of renown academics in the field of 20th Century history, local and international business people, and the experts in the field of integration of society and civic education such as the Federation of Russian speaking parents in Germany. Thus the stakeholder spectrum of the future House of Courage is international but with a perfect understanding of the politics of the day of Latvia. In turn, at the very local level, the neighbors on the island of Ķīpsala, starting with the surviving Lipke family members next door and up to administration of the Riga Technical University (RTU) as our largest institutional neighbor, are kept updated and follow us.
Apart from our longstanding working relations as a professional museum with such professional organisations as the Network of European Museum Organisations NEMO) and the International Council of Museums (ICOM), as well as with a number of memorial museums in Europe (Polin in Warsaw, Anne Frank House in Amsterdam, The Shoah Memoral in Paris etc.) and further afield (notably Yad Vashem Memorial Museum in Jerusalem) as part of completed or ongoing EU funded educational projects in Holocaust education, as of lately we have joined the New European Bauhaus community in search of like minded and spirited partners across Europe in civic education work.
On a practical level of a capital project, we will work with such proved partners as the Riga Chair Factory, Riga Plywood Factory, Groglass manufacturer Riga and others who we know from previous projects. Eventually, as the project grows, the number of stakeholders will grow accordingly and involve both local communities, municipal and national administrations, as well as European and global partners.
Apart from our longstanding working relations as a professional museum with such professional organisations as the Network of European Museum Organisations NEMO) and the International Council of Museums (ICOM), as well as with a number of memorial museums in Europe (Polin in Warsaw, Anne Frank House in Amsterdam, The Shoah Memoral in Paris etc.) and further afield (notably Yad Vashem Memorial Museum in Jerusalem) as part of completed or ongoing EU funded educational projects in Holocaust education, as of lately we have joined the New European Bauhaus community in search of like minded and spirited partners across Europe in civic education work.
On a practical level of a capital project, we will work with such proved partners as the Riga Chair Factory, Riga Plywood Factory, Groglass manufacturer Riga and others who we know from previous projects. Eventually, as the project grows, the number of stakeholders will grow accordingly and involve both local communities, municipal and national administrations, as well as European and global partners.
Global challenges
The House of Courage as part of the upgraded visitor service of the Žanis Lipke Memorial primarily will become a training ground for Latvian youth in order to strengthen national civic education capacities through historical education based informal learning and creative making. Eventually, though, the educational programming of the House can speak to international audiences especially in the neighboring countries currently going through, or for the time being only hoping for, a democratic transition. Perhaps it would not be too far fetched to say that the Žainis Lipke Memorial, as a civic initiative who tells the story of civic resistance and disobedience in the years of Nazi occupation, has responded to some of the strategic goals of the Commission of the Historians of Latvia by the President's office who aimed at confronting Russia's attempts to use history to tarnish Latvia's image in the West as Moscow sought to slow Latvia’s accession to NATO and the EU by trying to portray Latvians as active participants in the Holocaust, and even as seeking to rehabilitate Nazism.
Now with the outlined above new vision of a civic education center at the Memorial, we wish to go one step further. Not only that we wish to keep defending our positions as a free and open society with a record of self organization and civic disobedience under dictatorships, but we also seek to actively influence especially younger generation of compatriots and international audiences as regards taking active and critical stand when it comes to participation in social life. Such critical stand requires historical knowledge in the first place accompanied by social skills and technical tools to bring about positive change. The House of Courage thus aims at serving as a trusted support base for Europe's civic society at large.
Now with the outlined above new vision of a civic education center at the Memorial, we wish to go one step further. Not only that we wish to keep defending our positions as a free and open society with a record of self organization and civic disobedience under dictatorships, but we also seek to actively influence especially younger generation of compatriots and international audiences as regards taking active and critical stand when it comes to participation in social life. Such critical stand requires historical knowledge in the first place accompanied by social skills and technical tools to bring about positive change. The House of Courage thus aims at serving as a trusted support base for Europe's civic society at large.
Learning transferred to other parties
At each step of conceptualizing the House of Courage, notably when carrying out educational and creative pilot projects, the process is meticulously documented and analyzed so as to develop a unique methodology than can be replicated elsewhere. For instance, the growing VR work at the Memorial originated in the hackathon we co-organized with the Riga International Film Festival in 2019. Over the years, and specially during the COVID-19 pandemic, we developed a concept and methodology of a digital co-working for digital storytelling which we tested and and implemented at the Memorial. Consequently, the shape and design for specifically digital storytelling makerspace was born and laid down in the architectural plans for the classrooms.
Similarly, our interest in the civic education which was solidified especially in the past year in view to growing destabilization of the region and prompted us to start making plans for an informal educational programming which would respond to the challenges of the day. In this process we partnered with an experienced organization in the field of integration of Russian speaking society in Germany, and are now replicating and adjusting their informal educational modules to our needs. The first process-documenting booklet of the House of Courage with draft methodological material and original illustrated rescue stories that is our core business, is out now in Latvian https://lipke.lv/drosmes-maja/#content-item-7 https://issuu.com/35095/docs/_
Depending on European partners this educational innovation project will attract, we plan to continue developing viable guidelines in other EU languages on the civic education through historical learning. For instance, as part of Erasmus+ funded Creative Making for Lifelong Learning (CREMA), the Memorial partnered with the NGO Creative Museum as a fieldwork space for project implementation. Recommendations Nr. 3 Innovation and Entrepreneurship are out now https://www.cremaproject.eu/
Similarly, our interest in the civic education which was solidified especially in the past year in view to growing destabilization of the region and prompted us to start making plans for an informal educational programming which would respond to the challenges of the day. In this process we partnered with an experienced organization in the field of integration of Russian speaking society in Germany, and are now replicating and adjusting their informal educational modules to our needs. The first process-documenting booklet of the House of Courage with draft methodological material and original illustrated rescue stories that is our core business, is out now in Latvian https://lipke.lv/drosmes-maja/#content-item-7 https://issuu.com/35095/docs/_
Depending on European partners this educational innovation project will attract, we plan to continue developing viable guidelines in other EU languages on the civic education through historical learning. For instance, as part of Erasmus+ funded Creative Making for Lifelong Learning (CREMA), the Memorial partnered with the NGO Creative Museum as a fieldwork space for project implementation. Recommendations Nr. 3 Innovation and Entrepreneurship are out now https://www.cremaproject.eu/
Keywords
civic education
civil courage
learning
making
aesthetics