The "Green L"
Basic information
Project Title
The "Green L"
Full project title
The "Green L"
Category
Reconnecting with nature
Project Description
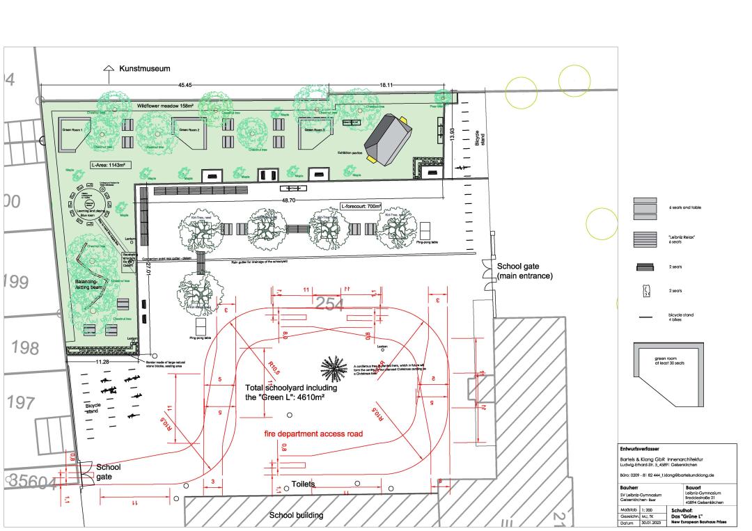
The "Green L" will be the largest place of learning at the Leibniz-Gymnasium with approx. 1800m².It has the best climatic conditions and is suitable for pandemics! Our schoolyard is like a concrete desert, but offers great potential: The "Green L" will be a lively, natural space for playing, learning, living, relaxing, celebrating, gathering and for working together outdoors, which enriches school life in many ways. The entire school community and its surroundings benefit from the "Green L"!
Geographical Scope
Local
Project Region
Nordrhein Westfalen, Ruhrgebiet, Germany
Urban or rural issues
Mainly urban
Physical or other transformations
It refers to a physical transformation of the built environment (hard investment)
EU Programme or fund
No
Description of the project
Summary
“Our goal is to modify a schoolyard into a place that the entire school community can benefit from. It is important for the school community that the schoolyard enriches and enhances school life!”
To achieve this, an internal school survey for all students to participate in concerning the hopes and wishes for the new schoolyard was introduced and later on evaluated by the student council in 2021. Based on these results, we are now focusing on the following aspects for the schoolyard design:
In the near future, the word sustainability will be prioritised! Even though our schoolyard resembles a huge concrete desert at the moment it has great potential to be transformed into something exciting:
To give nature its place and to make it tangible, the paved ground will be broken up by planted trees. This will help to unseal the area, to zone it and to provide natural shade. Rainwater is collected.
The seating arrangements or as we call them “green and blue classrooms” shall be utilized on a daily basis and incorporated in the day-to-day school life.
Moreover, snack garden with local plants, a bee-friendly flower meadow with insect hotels are part of the environmentally friendly concept.
Thus, the focus of our project has not only landed on sustainability but also on the importance of new experiences, the different ways of learning, the encounter and togetherness of students.
Our school with 1040 students and almost 80 teachers and its location right in the city centre “in the middle of Buer” is a place in which people of diverse cultures clash together and encounter with each other, which signifies our humble community.
The finished “Green L” will be the largest learning and event area at the Leibniz-Gymnasium with approx. 1800 m².
The “Green L” shall result in a lively, cultural and natural space for playing, learning, living, relaxing, celebrating, gathering and working outdoors together, which will definitely enrich the school life in many divers’ ways.
To achieve this, an internal school survey for all students to participate in concerning the hopes and wishes for the new schoolyard was introduced and later on evaluated by the student council in 2021. Based on these results, we are now focusing on the following aspects for the schoolyard design:
In the near future, the word sustainability will be prioritised! Even though our schoolyard resembles a huge concrete desert at the moment it has great potential to be transformed into something exciting:
To give nature its place and to make it tangible, the paved ground will be broken up by planted trees. This will help to unseal the area, to zone it and to provide natural shade. Rainwater is collected.
The seating arrangements or as we call them “green and blue classrooms” shall be utilized on a daily basis and incorporated in the day-to-day school life.
Moreover, snack garden with local plants, a bee-friendly flower meadow with insect hotels are part of the environmentally friendly concept.
Thus, the focus of our project has not only landed on sustainability but also on the importance of new experiences, the different ways of learning, the encounter and togetherness of students.
Our school with 1040 students and almost 80 teachers and its location right in the city centre “in the middle of Buer” is a place in which people of diverse cultures clash together and encounter with each other, which signifies our humble community.
The finished “Green L” will be the largest learning and event area at the Leibniz-Gymnasium with approx. 1800 m².
The “Green L” shall result in a lively, cultural and natural space for playing, learning, living, relaxing, celebrating, gathering and working outdoors together, which will definitely enrich the school life in many divers’ ways.
Key objectives for sustainability
- To in future live sustainably in every aspect of our school community; emphasis on topics with a sustainable background, return to nature.
- Raise students’ awareness for nature - you protect what you love - inspire and educate future biologists, teachers, poets, thinkers and actors.
- Create awareness among students for their own health and create a responsible approach towards people and nature, e.g. through numerous sub-projects that are subject-related but also beyond the curriculum
(For example, creating birdhouses, insect hotels, solar projects, reading theme related ...)
- Awareness should be transferred on families, neighbours, friends to consequently spread further.
- Environment/nature should be understood and experienced as usable, valuable space
- Unsealing areas by planting more trees which are especially climate-friendly (paulownia tomentosa).
- Energy conservation: We would love loads of bicycle stands in order to push more students to come to school by bike, thus, booster our sustainability.
- Valuing raw materials: Rainwater does not flush into the sewer system but will be collected in a
cistern which shall be used to irrigate the “Green L” (“Blue Classroom”).
- Protecting species: Even the smallest habitat is a contribution to the larger habitat. Every animal
is worth protecting. We cannot completely unseal due to other constraints (fire access, collection
points and accident prevention, etc.) but we can create intentional space.
- This project illustrates that it is possible to take action “here and now” - initially without a big
budget - via the involvement of the existing foundation, strong stakeholders and a little patience!
- Best practice-beloved practice inspires others! We inspire and set standards for others to follow with a schoolyard that shows inviting qualities to pass time in and its naturalistic experiences. Both can and must go hand in hand.
- Critical thinking and action and judgment is encouraged.
- Raise students’ awareness for nature - you protect what you love - inspire and educate future biologists, teachers, poets, thinkers and actors.
- Create awareness among students for their own health and create a responsible approach towards people and nature, e.g. through numerous sub-projects that are subject-related but also beyond the curriculum
(For example, creating birdhouses, insect hotels, solar projects, reading theme related ...)
- Awareness should be transferred on families, neighbours, friends to consequently spread further.
- Environment/nature should be understood and experienced as usable, valuable space
- Unsealing areas by planting more trees which are especially climate-friendly (paulownia tomentosa).
- Energy conservation: We would love loads of bicycle stands in order to push more students to come to school by bike, thus, booster our sustainability.
- Valuing raw materials: Rainwater does not flush into the sewer system but will be collected in a
cistern which shall be used to irrigate the “Green L” (“Blue Classroom”).
- Protecting species: Even the smallest habitat is a contribution to the larger habitat. Every animal
is worth protecting. We cannot completely unseal due to other constraints (fire access, collection
points and accident prevention, etc.) but we can create intentional space.
- This project illustrates that it is possible to take action “here and now” - initially without a big
budget - via the involvement of the existing foundation, strong stakeholders and a little patience!
- Best practice-beloved practice inspires others! We inspire and set standards for others to follow with a schoolyard that shows inviting qualities to pass time in and its naturalistic experiences. Both can and must go hand in hand.
- Critical thinking and action and judgment is encouraged.
Key objectives for aesthetics and quality
- Conceptual design work: The “L” as a basic shape and recurring element not only stands out in
terms of its strong design language but is also ideally suited as an architectural Element (in terms of surface area, seating and tree arrangement) for encounters and cooperative togetherness.
- Our schoolyard should be designed as an “omnipresent design for all” to be experienced with all senses. It should be constructed by closely bonding it to nature, with many opportunities for
communicative exchanges and for gathering experiences through a variety of seating and creative
occasions as a performance venue for projects. Possible projects that also address the aesthetic,
cultural, experience-oriented area.
- Biology and species conservation: creating raised beds and composts, habitats for wild bees
- The design is not just a naive plan, it has been signed off and supported by the city of Gelsenkirchen, it harmonises with its simplicity and the technical requirements, therefore, is approvable with regard to the urban building regulations because we see our schoolyard as a part of the daily city life, respectively the local community as well.
- Meeting and recreation but also exercise and play in the great outdoors are our main focus.
Since we would like to have a special bench format for the realization of our desired use, we
sought discussion with the manufacturer of the installed bench model. To our delight, our benches were able to be produced as a unique format named “Leibniz Relax” specifically for our school, it also matches the design of the equipment on the streets.
The “Green L” is not only a contribution to the greener Leibniz Lung but also a relaxing lounge.
Whether it is for students or visitors from the neighbourhood it should invite people to linger because our urban area lacks green spaces and playgrounds. The “Green L” can, thus, become an important and significant place for the local community.
terms of its strong design language but is also ideally suited as an architectural Element (in terms of surface area, seating and tree arrangement) for encounters and cooperative togetherness.
- Our schoolyard should be designed as an “omnipresent design for all” to be experienced with all senses. It should be constructed by closely bonding it to nature, with many opportunities for
communicative exchanges and for gathering experiences through a variety of seating and creative
occasions as a performance venue for projects. Possible projects that also address the aesthetic,
cultural, experience-oriented area.
- Biology and species conservation: creating raised beds and composts, habitats for wild bees
- The design is not just a naive plan, it has been signed off and supported by the city of Gelsenkirchen, it harmonises with its simplicity and the technical requirements, therefore, is approvable with regard to the urban building regulations because we see our schoolyard as a part of the daily city life, respectively the local community as well.
- Meeting and recreation but also exercise and play in the great outdoors are our main focus.
Since we would like to have a special bench format for the realization of our desired use, we
sought discussion with the manufacturer of the installed bench model. To our delight, our benches were able to be produced as a unique format named “Leibniz Relax” specifically for our school, it also matches the design of the equipment on the streets.
The “Green L” is not only a contribution to the greener Leibniz Lung but also a relaxing lounge.
Whether it is for students or visitors from the neighbourhood it should invite people to linger because our urban area lacks green spaces and playgrounds. The “Green L” can, thus, become an important and significant place for the local community.
Key objectives for inclusion
Our schoolyard (like all schoolyards in this area) is open to the public from 2 to 5p.m. every day and signifies a “freely given play area” Its central location makes it an easily accessible place for many people in the neighbourhood. Until now, however, the schoolyard lacked with supplying the citizens with a place worthwhile.Since all access points to our schoolyard are barrier-free and the schoolyard is completely car-free and has numerous toilets,we believe that with our redesign we can create a place that many people will benefit from, especially since there are few public green spaces in the neighbourhood.Young and old can linger here together: A break on the way to town, half an hour of sunbathing, as well as a brave ride on a small running bike over the remaining sealed area. The schoolyard is very connected to public transport and has easily accessible parking spaces after school hours. The usage of our schoolyard is free of charge. By supplying these offers, our schoolyard will receive the appreciation it deserves (without being trashed). Surely everyone will be attentive and respectful to
their new favourite local place to be. “What you love, you protect!”
Generally, we have the opportunity to issue public invitations (through the press) for our schoolyard, as we have no space limitations, thus everyone will find an opportunity to visit us at some point.Performances in the schoolyard should also be free of charge if possible.So far,we have asked for donations at events for and on the schoolyard.Therefore, we explain our concept at every opportunity we get and usually we find enthusiastic listeners who are happy to support us with a small donation. A place to encounter is created,culturally interesting in terms of design and projects,in order for diverse and specific basic needs to be addressed.By inviting partners beyond our holy school halls and suggesting new events for the local environment,we open the school up to an idea of togetherness in our city
their new favourite local place to be. “What you love, you protect!”
Generally, we have the opportunity to issue public invitations (through the press) for our schoolyard, as we have no space limitations, thus everyone will find an opportunity to visit us at some point.Performances in the schoolyard should also be free of charge if possible.So far,we have asked for donations at events for and on the schoolyard.Therefore, we explain our concept at every opportunity we get and usually we find enthusiastic listeners who are happy to support us with a small donation. A place to encounter is created,culturally interesting in terms of design and projects,in order for diverse and specific basic needs to be addressed.By inviting partners beyond our holy school halls and suggesting new events for the local environment,we open the school up to an idea of togetherness in our city
Results in relation to category
With the 30,000 € of the European Bauhaus Competition we would like to set up an exhibition
pavilion, which BAUKULTUR.NRW will leave in our hands, once the general conditions have all been
clarified. This is a temporary building, for which we have to bear a share of about 10,000 €
ourselves. With this building we can present our project in the best possible way and find new supporters. Eventually we would like to brand the stylish pavilion “European Bauhaus Prize” and “BAUKULTUR.NRW”.
As the next “big construction site” we would like to install the cistern to collect the rainwater for our
“Green L”. Hopefully, this will happen in the beginning because earthworks are necessary here and
we need the water for our greenery as soon as possible. However, we need some money to let us calculate this in depth, extent and feasibility (therefore we have not yet been able to render an offer) and an additional pot of cash to let them be manufactured. Probably we will not get by with 30,000 euros here. Therefore, here we need a big financial push but we definitely want to implement this part. Another wish of our would be a landscape architect, who would advise us on the planting and designing of the ground areas in the “Green L” (ground cover, native and species-appropriate planting), although we might be able to get support elsewhere. Other milestones are power supplies for more lights, power connections (which would at best happen before all of the installations), benches for the classrooms, the table/bench combinations and the supplement of the beds from natural stone.
pavilion, which BAUKULTUR.NRW will leave in our hands, once the general conditions have all been
clarified. This is a temporary building, for which we have to bear a share of about 10,000 €
ourselves. With this building we can present our project in the best possible way and find new supporters. Eventually we would like to brand the stylish pavilion “European Bauhaus Prize” and “BAUKULTUR.NRW”.
As the next “big construction site” we would like to install the cistern to collect the rainwater for our
“Green L”. Hopefully, this will happen in the beginning because earthworks are necessary here and
we need the water for our greenery as soon as possible. However, we need some money to let us calculate this in depth, extent and feasibility (therefore we have not yet been able to render an offer) and an additional pot of cash to let them be manufactured. Probably we will not get by with 30,000 euros here. Therefore, here we need a big financial push but we definitely want to implement this part. Another wish of our would be a landscape architect, who would advise us on the planting and designing of the ground areas in the “Green L” (ground cover, native and species-appropriate planting), although we might be able to get support elsewhere. Other milestones are power supplies for more lights, power connections (which would at best happen before all of the installations), benches for the classrooms, the table/bench combinations and the supplement of the beds from natural stone.
How Citizens benefit
In the future, we will contribute to the cultural education offered in our city. This will benefit our school community and the surrounding area.
But we already practicing a high level of participation of the school community and the public.
Performances in the schoolyard should also be free of charge, if that is possible. So far, we have asked for donations at events for and on the schoolyard. We explain our concept at every opportunity that we get and usually we find enthusiastic listeners who are happy to support us with a small donation of money or a contributing good idea. Considering that we are being supported by officials, even more people are involved. We keep inviting our stakeholders to report about our progress and state new ideas so that we keep them in the loop. Those, whom we put a slight smile on their faces at the beginning of our project, are now overly impressed by the commitment, perseverance and results that we have to show so far! These involved are official people, neighbours and also sceptics from our
own palette. In fact, we are planning an exhibition pavilion in the “Green L” to further show, explain and take suggestions concerning the process. The first nine benches have been ordered. The “Green L” will be installed in the spring and will become the focal point of our following
designs. Lastly, there shall be a dedication ceremony. We notice that there is loads of potential and interest shown towards the schoolyard design and now we recognize the chance to make a lot of things happen. All interested parties (students/parents/teachers or interested neighbours) are welcome to support us with their individual strengths. We accept any help and value even the smallest successes! Moreover, we would like to convey our values, which we also carry out daily, such as diversity, tolerance and acceptance. We are a school and community that stands up against discrimination and urges to encourage humane thinking.
But we already practicing a high level of participation of the school community and the public.
Performances in the schoolyard should also be free of charge, if that is possible. So far, we have asked for donations at events for and on the schoolyard. We explain our concept at every opportunity that we get and usually we find enthusiastic listeners who are happy to support us with a small donation of money or a contributing good idea. Considering that we are being supported by officials, even more people are involved. We keep inviting our stakeholders to report about our progress and state new ideas so that we keep them in the loop. Those, whom we put a slight smile on their faces at the beginning of our project, are now overly impressed by the commitment, perseverance and results that we have to show so far! These involved are official people, neighbours and also sceptics from our
own palette. In fact, we are planning an exhibition pavilion in the “Green L” to further show, explain and take suggestions concerning the process. The first nine benches have been ordered. The “Green L” will be installed in the spring and will become the focal point of our following
designs. Lastly, there shall be a dedication ceremony. We notice that there is loads of potential and interest shown towards the schoolyard design and now we recognize the chance to make a lot of things happen. All interested parties (students/parents/teachers or interested neighbours) are welcome to support us with their individual strengths. We accept any help and value even the smallest successes! Moreover, we would like to convey our values, which we also carry out daily, such as diversity, tolerance and acceptance. We are a school and community that stands up against discrimination and urges to encourage humane thinking.
Physical or other transformations
It refers to a physical transformation of the built environment (hard investment)
Innovative character
The students themselves are involved significantly in the planning, financing and implementation of the project - the target group initiated the project in the start. The “Green L” or the overall concept of the schoolyard and especially the benches (unique, with dry stone walling) are identity-forming.
Users are planners, planners are users, without the student’s initiative nothing would have happens. We have to practise patience and allow us to plan a lot of time. Due to our schools location “in the middle of Buer” we offer a place to lounge around for local residents apart from our local abodes, which we live and maintain (in the long term). Additionally, the “Green L” presents a chance to have lessons outside in the greenery. The Ipad transition means one no longer necessarily requires a blackboard and desks for lessons. Therefore, our schoolyard will be upgraded and revitalised, not only in means of aesthetic. The time spent in the outdoor area should also become a goal and aspiration of the students future everyday life. Nowadays the relaxation in nature for the younger generation has come way too short due to long and digitally filled school days. Even if it’s used as a means to support one’s own health or for self-care, especially for our young people it is an important aspect in life, which should not be neglected. Students who helped launch and lead this project are now alumni’s and still enrich the project and concept to this day. Teachers and parents are showing extraordinary juggling skills by handling their work, private and their honorary engagement on a daily basis. This acts as an example as to portray how hard one has to work to achieve success and change but it also shows the façade of a strong school community and that it is possible with the right people! The
nine ordered benches may seem like a small step at first, however, in reality it is the first sensational
milestone and much more significant for the students than one might think.
Users are planners, planners are users, without the student’s initiative nothing would have happens. We have to practise patience and allow us to plan a lot of time. Due to our schools location “in the middle of Buer” we offer a place to lounge around for local residents apart from our local abodes, which we live and maintain (in the long term). Additionally, the “Green L” presents a chance to have lessons outside in the greenery. The Ipad transition means one no longer necessarily requires a blackboard and desks for lessons. Therefore, our schoolyard will be upgraded and revitalised, not only in means of aesthetic. The time spent in the outdoor area should also become a goal and aspiration of the students future everyday life. Nowadays the relaxation in nature for the younger generation has come way too short due to long and digitally filled school days. Even if it’s used as a means to support one’s own health or for self-care, especially for our young people it is an important aspect in life, which should not be neglected. Students who helped launch and lead this project are now alumni’s and still enrich the project and concept to this day. Teachers and parents are showing extraordinary juggling skills by handling their work, private and their honorary engagement on a daily basis. This acts as an example as to portray how hard one has to work to achieve success and change but it also shows the façade of a strong school community and that it is possible with the right people! The
nine ordered benches may seem like a small step at first, however, in reality it is the first sensational
milestone and much more significant for the students than one might think.
Disciplines/knowledge reflected
Our school is located in the heart of the Ruhr area. Due to our size (1040 students) and our school system (Gymnasium) we offer a wide range of subjects. Additionally, our focus lies on a sense of community, diversity and sustainable thinking. As a school, it is immensely important for us to enable and encourage individuals to critical thinking and judgment. Therefore, it is our mission and duty to support them on their journey of becoming responsible and individual thinkers, subsequently to promote their self-determination and development.
Besides, this project has taught the participants valuable life lessons, to not only put your own needs and wants first but to democratically consider the wishes and needs of a whole school community.
It is clear that the scheme of “togetherness and diversity as well as sustainability” has shaped our events. Thus, with the help of our project we convey values that are anchored in our basic laws and which are honoured by every member in our society. In addition, the aspect of sustainability raises awareness towards the environment in order to promote and provoke change in the thinking amongst the population. Generally, schools shape the minds of young children which gives this institution great power to change and modify the minds of the adults of tomorrow.
Our project conveys the idea that you can achieve something without a huge amount of financial support if you just show courage and commitment. Enthusiasm creates movement - and so do extracurricular institutions/partners: Chamber of architects, interior design, urban planning, landscape architecture, specialized services of authorities, fire department, surveyors, gardening and landscaping, school board and the building culture. In order for us to stay up to date and well educated on topic related things we read the daily newspaper. Moreover, on our schools website we share and inform our readers via posts about our current news and information on the climate/schoolyard.
Besides, this project has taught the participants valuable life lessons, to not only put your own needs and wants first but to democratically consider the wishes and needs of a whole school community.
It is clear that the scheme of “togetherness and diversity as well as sustainability” has shaped our events. Thus, with the help of our project we convey values that are anchored in our basic laws and which are honoured by every member in our society. In addition, the aspect of sustainability raises awareness towards the environment in order to promote and provoke change in the thinking amongst the population. Generally, schools shape the minds of young children which gives this institution great power to change and modify the minds of the adults of tomorrow.
Our project conveys the idea that you can achieve something without a huge amount of financial support if you just show courage and commitment. Enthusiasm creates movement - and so do extracurricular institutions/partners: Chamber of architects, interior design, urban planning, landscape architecture, specialized services of authorities, fire department, surveyors, gardening and landscaping, school board and the building culture. In order for us to stay up to date and well educated on topic related things we read the daily newspaper. Moreover, on our schools website we share and inform our readers via posts about our current news and information on the climate/schoolyard.
Methodology used
After asking and evaluating the hopes and wishes of the entire school community concerning the open place, we created a concept of our “dream schoolyard”. Afterwards we started to participate in competitions and planned events to raise money. Followed by reaching out time after time to parents and teachers, we were able to score a broad support within the school community. After numerous meetings and exchanges with various departments within the city, such as the school
administration and the fire department, we were capable to create a feasible, approved and fool proof plan, which we continuing to pursue according to the principle of the “salami tactics”. Slice by slice, we are moving forward. The “Green L” is the central area of our schoolyard and will be realized in the spring. At the same time, that space will be crowned the pivot of our project and will draw further attention to people in order to intrigue and interest them to support us - in whatever way! Our concept thrives on each other’s aid and cannot be implemented otherwise - without each other it does not work!
administration and the fire department, we were capable to create a feasible, approved and fool proof plan, which we continuing to pursue according to the principle of the “salami tactics”. Slice by slice, we are moving forward. The “Green L” is the central area of our schoolyard and will be realized in the spring. At the same time, that space will be crowned the pivot of our project and will draw further attention to people in order to intrigue and interest them to support us - in whatever way! Our concept thrives on each other’s aid and cannot be implemented otherwise - without each other it does not work!
How stakeholders are engaged
Our first request for funding was a failure since the city of Gelsenkirchen could not meet our expectations! After extensive and long-lasting renovation and refurbishment of our listed main building “there is no more money in sight for the schoolyard renovation”But help would be given to us for further planning:
The Chamber of Architects had already helped plan the opening ceremony of our main building:An
interior designer offered a course in the form of an extracurricular educational offering (AG). This formed group planned the celebration and sponsored the schoolyard design with the collected proceeds. This interior designer had once herself been a student at the Leibniz, has a son at our school and is a parent representative as well. Afterwards we showed her that we had already participated in a competition before. Subsequently, she applied to the Chamber of Architects for another “Architecture defines school” project and they granted it. She issues phone calls to officials and invites guests whenever we need the input and feel stuck. In addition, she
consults and plans with us. The interior design student working at her office continues to draw the plan for us as we build a model design together. That is how we go to meet a landscape architecture engineer from GELSENDIENSTEN and were able to contact the school board. We presented our results and due to the immense effort we showed, we were promised further help in the realization of small playground equipment and professional expertise. Moreover, we were promised the
possibility to present the finalized concept officially in order to possibly receive a (yearly) budget! We have contacted Baukultur.NRW. They gave us enthusiastic feedback concerning our initiative and assured us their support. Thus, parallel parallel to the project we got to know various professions, offices and people. At the same time, the student council continues to organize events and participations to raise money (see “Poster History”).
The Chamber of Architects had already helped plan the opening ceremony of our main building:An
interior designer offered a course in the form of an extracurricular educational offering (AG). This formed group planned the celebration and sponsored the schoolyard design with the collected proceeds. This interior designer had once herself been a student at the Leibniz, has a son at our school and is a parent representative as well. Afterwards we showed her that we had already participated in a competition before. Subsequently, she applied to the Chamber of Architects for another “Architecture defines school” project and they granted it. She issues phone calls to officials and invites guests whenever we need the input and feel stuck. In addition, she
consults and plans with us. The interior design student working at her office continues to draw the plan for us as we build a model design together. That is how we go to meet a landscape architecture engineer from GELSENDIENSTEN and were able to contact the school board. We presented our results and due to the immense effort we showed, we were promised further help in the realization of small playground equipment and professional expertise. Moreover, we were promised the
possibility to present the finalized concept officially in order to possibly receive a (yearly) budget! We have contacted Baukultur.NRW. They gave us enthusiastic feedback concerning our initiative and assured us their support. Thus, parallel parallel to the project we got to know various professions, offices and people. At the same time, the student council continues to organize events and participations to raise money (see “Poster History”).
Global challenges
Climate change is an important aspect that we take into account and into consideration in our planning: through green/blue classrooms, by unsealing and planting cherry trees and consequently breaking up created urban heat, by planting bee-friendly flower meadows with insect hotels/ dry stone walls under the benches and bird houses, etc. and last but not least, awareness is raised by working on this project together.
Subsequently, resulting of these measures we allow nature to take its space back and promote biodiversity and strive for species conservation – even if it’s on a manageable scale.
In addition, we want to make it possible for everyone in the area to be able to sit in greenery and
enjoy the nature. Since we are located right in the city centre, many people there do not have a balcony or an accessible garden. Events should be utilized by everyone free of charge. Poverty, age,
loneliness and nationality do not exclude anyone here and instead of discrimination we offer
inclusion. Our initiative makes a small, exemplary contribution to a major urban challenge that can be grasped and diminished through many small contributions. Even in this case, the salami tactic can be effective as well.
Subsequently, resulting of these measures we allow nature to take its space back and promote biodiversity and strive for species conservation – even if it’s on a manageable scale.
In addition, we want to make it possible for everyone in the area to be able to sit in greenery and
enjoy the nature. Since we are located right in the city centre, many people there do not have a balcony or an accessible garden. Events should be utilized by everyone free of charge. Poverty, age,
loneliness and nationality do not exclude anyone here and instead of discrimination we offer
inclusion. Our initiative makes a small, exemplary contribution to a major urban challenge that can be grasped and diminished through many small contributions. Even in this case, the salami tactic can be effective as well.
Learning transferred to other parties
Every other school can achieve it EXACTLY the same way! With over 32,000 schools in Germany, there is a huge market gap to fill as the foundation has already been layed.
On the final stretch of planning things, coordinated in unison with the city and the school board, a ”salami tactic” has been coined. It signifies our path to accomplish our concept, which means “slice by slice closer to the goal”. On paper, this means that whenever money is available for our disposal, the next “slice” is implemented but when the planning takes place, the scheming to realize the next “slices” continue. The “slices” are arranged according to the priorities of the school community. It is tactically smart to always save some money and work towards the next ever so small or big milestone. In this case, the time span is irrelevant.
The idea of the overall project with our “salami tactics” and the implementation as well as the produce can be adopted and tackled by any school, as we have achieved everything by ourselves so far without any financial help (low budget version). Actions for revenue were/are fundraising runs,
contests, bake sales, art auctions, etc....
More importantly, it taught and teaches students a conscious and responsible use of incomes.
In addition, the basic principle of our plan could also be layed out for spaces beyond schoolyards, such as large areas that are open to the public.
This is a pilot project. It can easily be demonstrated and explained!
On the final stretch of planning things, coordinated in unison with the city and the school board, a ”salami tactic” has been coined. It signifies our path to accomplish our concept, which means “slice by slice closer to the goal”. On paper, this means that whenever money is available for our disposal, the next “slice” is implemented but when the planning takes place, the scheming to realize the next “slices” continue. The “slices” are arranged according to the priorities of the school community. It is tactically smart to always save some money and work towards the next ever so small or big milestone. In this case, the time span is irrelevant.
The idea of the overall project with our “salami tactics” and the implementation as well as the produce can be adopted and tackled by any school, as we have achieved everything by ourselves so far without any financial help (low budget version). Actions for revenue were/are fundraising runs,
contests, bake sales, art auctions, etc....
More importantly, it taught and teaches students a conscious and responsible use of incomes.
In addition, the basic principle of our plan could also be layed out for spaces beyond schoolyards, such as large areas that are open to the public.
This is a pilot project. It can easily be demonstrated and explained!
Keywords
Encounter/(Building-) culture
Community/ diversity
Sustainability/ environmental awareness
Demographic development/process
Development/ education