Skip to main content
European Union logo
New European Bauhaus Prizes

ENERGRID Bovisa

Basic information

Project Title

ENERGRID Bovisa

Full project title

ENERGRID Bovisa. A new urban model for the energy transition.

Category

Regaining a sense of belonging

Project Description

ENERGRID represents a replicable model and aims to be an example for managing and optimizing energy production and consumption at a local level, not only regarding the single building, but on a community scale. Precisely because Bovisa is a very active community, it is the perfect place to implement ENERGRID as an exemplary case of use of the microgrid. ENERGRID promotes and supports sustainable living practices through a series of services in the field of mobility, environment and community.

Geographical Scope

National

Project Region

Italy

Urban or rural issues

Mainly urban

Physical or other transformations

It refers to other types of transformations (soft investment)

EU Programme or fund

No

Description of the project

Summary

The focus of the project is an underused and degraded area within the urban context of Bovisa: a specific district in Milan. Bovisa had an industrial development, thanks to its great accessibility. The first plants appeared at the end of the 19th century, while in the 1980s the Politecnico of Milan took a gamble and therefore a regeneration phenomenon began despite of the ever present separation between the east and west fabric of the area. Over the years, the Bovisa area has seen various masterplan proposals, without however drawing any conclusions, above all due to the problem of reclamation costs. Following the preliminary analyses, a masterplan was developed which includes courtyard volumes, including two student residences and a social housing, the latter being the focus of the project. As we will see, the project is very much about the energy aspect and some definitions need to be given. The core idea is the microgrid, which is nothing more than an energy community, in which the minimum requirements are: the presence of at least two subjects who exchange energy and who have different functions and needs, an energy production system and a accumulation. The microgrid may or may not be connected to the National Electricity Grid. If we consider a microgrid connected to the grid, the connection is two-way, which means it is possible to both buy and resell energy. What we want to demonstrate next are the advantages of being part of a microgrid. A building is developed in detail within the masterplan and the microgrid, to demonstrate that the green and sustainable approach starts from the concept phase of the single unit. The whole process should then have a common thread and approach it in a sustainable way in all phases, from that of design, construction, use and possible disposal and reuse or recycling of components and materials.

Key objectives for sustainability

Our planet is currently facing a climate crisis. Humankind must change its uses and habits in a way to reduce its carbon footprint, which is now at an all-time high. Many economic sectors contribute to pollution: among these constructions come to be one of the major causes of it. Henceforth, it becomes natural to seek ways of reducing our environmental impact and consumptions to better comply with what the world needs. This paper is centered on the design of a new model of production and consumption on the urban scale, where many processes come to complement each other: the first of which is an efficient building casing that guarantees lower consumptions. Following the aforementioned points, we aim to define a district-based energy community, in which the different buildings act as producers for renewable energy. Said energy is then shared amongst the different participants by using an efficient power grid and batteries, thus ensuring more efficient usage of electricity. The main objective of the energy community comes to be a smart usage of energy, one with no waste. The electricity that’s produced on site gets sent to the users, for immediate consumption and, if there is more energy than needed, it can then be either be shared, stored, or sold to the national energy grid. This system aims to optimize energy consumption patterns in the function of the energy production ones, minimize unspent energy, and generate ecological and economical improvements for the users. Therefore, ENERGRID has several goals when it comes to sustainability. In fact, sustainability is not only the environmental one, but it is also the social and economic one and it is our duty to reconcile these three categories, studying the different design scales and finding a possible replicable solution that takes all of this into account.

Key objectives for aesthetics and quality

ENERGRID promotes and supports sustainable and collaborative living practices through a range of mobility, environmental and community services. The sharing of equipment and vehicles, spaces and knowledge supports the emergence of the sharing city, optimizing the use of spaces also at an urban level. Among the services in particular, in addition to a parking lot that changes over time for sharing electric mobility and electric charging stations, there are the inclusion of urban gardens on the roof. A green laboratory where sensory activities are carried out is implemented. The aim is to tell people the importance of green care and the use of Nature Based Solutions (NBS) for shading and heat island reduction. Taking care of green areas is important and raises awareness of a fundamental issue which is that of food, in fact in the last period some food resources are scarce and the creation of vegetable gardens can help to have fruit and vegetables at zero km. Through a study on the lighting aspect, the volumes are modified in order to increase the hours of natural light inside the spaces, thus increasing comfort for people. Terraces are generated, a reason for common outdoor activities, among which, the care of the greenery; you can also enjoy the view towards the City Life area of Milan. All these aspects must be considered, as they lead to an increase in the quality and experience of people, who can therefore have the opportunity to increase their experiences and confront different cultures and have a direct comparison with other people. It is a question of experiencing emotions and feeling good within a community. For example, in Bovisa there are many associations that offer activities and raise awareness on issues such as the reuse of materials, such as plastic. When starting to design within a place it is essential to study the context, the history and the people, in order to create something that increases the value of the place itself.

Key objectives for inclusion

Bovisa is one of Milan's entrances and acts as a focal point of mobility and interchange. The proposal consists of a neighborhood which’s objective is improving the quality of life of its mostly temporary inhabitants, henceforth the decision of studying social housing. The different analyses under which the project has been studied were conducted by comparing different cases with progressively improving parameters: starting from what could be defined as a traditional case and going towards more innovative options up to consideration aimed at improvements in the current laws. As the last point, it is important to keep in sight the sanitary emergency we have experienced the last years. As such specific functions and elements have been inserted in the urban project in a way so to incentivize near working and the “fifteen minutes city”. The concept of the building stems from the idea of the characteristic courtyard volume, found in many examples of social housing, which aim to create an open space, which is at the same time protected and which becomes a reason for social meeting. The volume is closed but open at the same time in order to create a permeability to the passage of people. The project covers all areas at 360 degrees, from the aesthetic and architectural aspect, to the reduction of consumption through a series of passive strategies linked to materials and technologies, maintaining adequate thermal, lighting and acoustic comfort, for all people. All public spaces are located on the ground floor, accessible by residents and outsiders, in accordance with the activities of the city in fifteen minutes (near working city). On the upper floors are the accommodations, designed for different categories (couples, families, elderly, students) and in order to make them accessible both socially and economically. The study of the single building within ENERGRID makes it clear that accessibility to clean energy is also a fundamental issue.

How Citizens benefit

The selling point of being part of the energy community is found in different benefits including that of cost savings in bills for the inhabitants and the reduction of carbon dioxide emissions. Being part of a microgrid leads to the exchange of ideas and the birth of innovative methods that respond to the needs of the community itself. The aim is therefore to develop inclusive services and interventions that meet the needs of the local population and involve the local community itself and its actors in the implementation of the project, for example, through neighborhood workshops. To this end, understanding the local context is a fundamental operation, which allows us to meet the main needs, challenges and problems of local residents and businesses. This aspect ensures that the proposed project is meaningful and suitable for all who reside in the area of interest. The context of Bovisa is clear: the neighborhood is made up of an active community that wants to make its voice heard and the involvement of residents in the design process is inevitable. Neighborhood laboratories and workshops are therefore planned throughout the project phase, to fully meet local needs. Precisely because of the community's requests, ENERGRID includes some functions such as an auditorium, a green space with a sports area, a cycle and pedestrian itinerary to improve the usability of the spaces in complete safety. Furthermore, Piazza Alfieri, until now intended for parking, has been converted into a square for gathering and public events, markets or other, by inserting a building that can be used as a sheltered public space. In addition to studying the environmental and economic sustainability of the project, it is essential, especially considering the context, to address the issue of social sustainability, involving the community of the neighborhood and close neighborhoods, extending as much as possible the idea of the urban model and all its characteristics.

Physical or other transformations

It refers to other types of transformations (soft investment)

Innovative character

The innovative aspect compared to the built-as-usual is that we are looking for an intelligent and efficient way of managing energy. This is done through an interconnected network that adapts to the consumption and production profiles of the various participating subjects, therefore we speak of prosumers. What has been done so far has been to reduce one's own consumption as much as possible; but this is not enough. We need to go further, studying consumption profiles and connecting different subjects with different consumption profiles, in order to self-consume energy and not waste it. ENERGRID is innovative because it is a replicable urban model and is locally adaptable. In fact, a system for the production of energy from renewable sources is foreseen within the microgrid. This source can be any, in the specific case of Bovisa a photovoltaic system was studied because it was well suited to the geographical context. Nothing prevents ENERGRID from working with an energy production system from wind, hydroelectric, geothermal, etc. The priority, as mentioned, is therefore that of self-consumption, i.e. using the energy produced immediately and this can also be done through programmable assets linked to the use of household appliances. By knowing when there is a peak in energy production (for example, I know the peak in the PV system), that's when I use the dishwasher. If there is no need to use the energy produced, it can be stored using a battery system, or sold to the national electricity grid and repurchased at a later time.

Disciplines/knowledge reflected

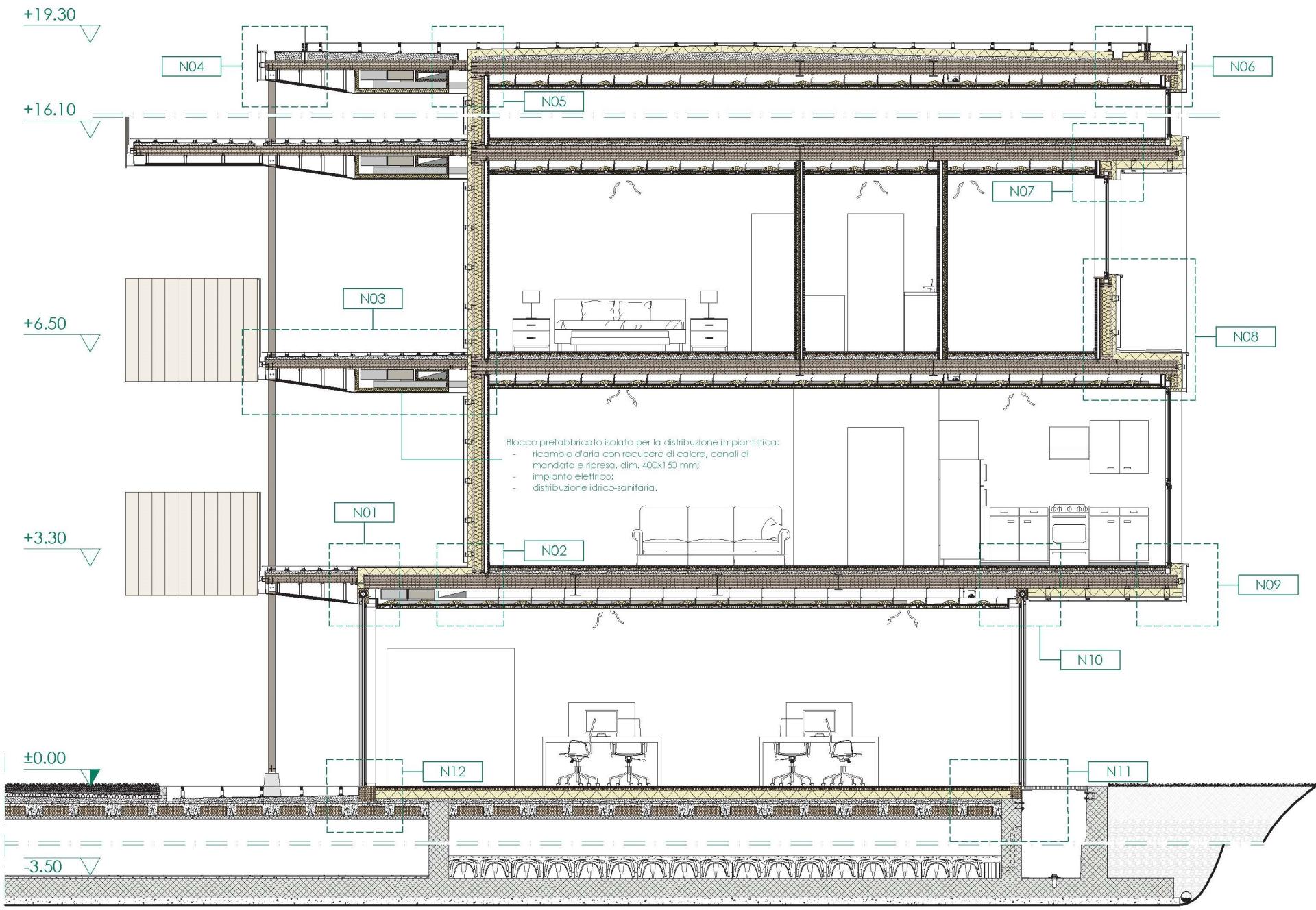
In the design phase, all the issues relating to a sustainability project were addressed, obviously focusing attention on the issue the energy community. At the level of the single element, a building with the lowest possible energy demand was conceived and designed. We therefore started from the analysis of the context to choose an ideal shape by following the solar orientation and obtaining a good form factor. The thermal and lighting comfort, construction details and so on have been studied. To describe the engineering part it is appropriate to specify that the process took place in a cyclical way, using different software to support the various design phases. By cyclicality we mean that the software has helped us to understand the influence of our choices on the final results and therefore draw conclusions, implement a change and re-analyse until the required result is obtained. An optimization reasoning was made on the technological packages, where different stratigraphies were simulated in such a way as to be able to analyze the transmittance as a function of the total thickness of the insulation and determine where the efficiency range was at an economic level. One of the most important strategies is that of the microgrid: the building is part of an energy community and there is the presence of the photovoltaic energy production system, grid storage batteries and charging stations for mobility. Everything is connected to the National Electricity Grid, so as to exchange energy in both directions. Other strategies that respond to sustainability objectives include the recovery of rainwater with reuse for irrigation, ventilation with heat recovery and radiant floor powered by a water heat pump. In mid-season, however, natural ventilation is used. Entering into the specifics of natural ventilation, it is analyzed according to how it affects the hours of comfort: activating natural ventilation increases the hours of comfort, especially in class A.

How stakeholders are engaged

ENERGRID is an innovative concept that proposes energy exchange scenarios between public and private bodies. There are some pilot projects worldwide and the legislation is being proposed based on the results obtained from the microgrid models. It is essential that guidelines are created at an European level: the directives of the European Commission, in particular on energy communities. Once the directive is published, each nation transposes the directive and issues a national law which is then developed at regional and local level. In the case of microgrids, it is important to understand how many communities to create and their size. Pilot projects in this sense are important for understanding energy flows and optimizing use and exchange, reducing losses and waste. The fact is that at the level of technology these systems are feasible and achievable; what needs to be defined is the management and economic part, linked to payments and contracts. At a regulatory level, after the EPBD (Energy Performance Building Directive) and EED (Energy Efficiency Directive) directives, the RED 2 (Renewable Energy Directive) is fundamental, which speaks of renewable energy self-consumers and renewable energy communities (in Italy the so-called CERs, and ACs which are the subject of this year, even at the condominium level). We are currently in a transitional phase, but we will have to move on to a fully operational phase, where the involvement of stakeholders starts at the European level, to go down to the neighborhood scale.

Global challenges

As reported by the latest IPCC reports, it is unequivocal how human activity has influenced the increase in temperatures globally. The building sector has a particularly strong impact on this activity in Europe, in fact, according to data reported by the European Commission, buildings consume 40% of energy and emit 36% of CO2. To this end, objectives for 2030 have been established which concern the reduction of CO2 emissions compared to 1990 levels, the improvement of energy efficiency and the increase of energy from renewable sources, since currently most of it still comes from non-renewable sources. These targets have been set to limit the increase in the global average temperature. ENERGRID responds in particular to some of the Sustainable Development Goals of the 2030 agenda, namely number 7 (clean and accessible energy), number 10 (reduce inequalities), number 11 (sustainable cities and communities), number 12 (consumption and responsible production), number 13 (fight against climate change). Aiming for clean energy, i.e. to create electricity completely from renewable sources, is important for ENERGRID, since currently the electricity we buy is still produced in large quantities from fossil sources. Energy must be accessible to everyone, since sustainability is not only environmental, but also social and economic and considers all people on planet Earth. By definition of energy community, the aspects related to sustainable cities, the consumption and production of sustainable and responsible energy are addressed. Climate change is the underlying theme of all the discussion seen so far: reading the latest reports on climate change, one can clearly read how man has influenced the rise in temperatures on a global level, and therefore, as human beings, it is our must do everything to stop all this and leave a livable future for those who come after us.

Learning transferred to other parties

Replicability is one of the key points of ENERGRID. The fact is that there are global objectives on sustainability and therefore it is necessary to carry out projects that can be copied in different contexts, in order to have comparable results and to further improve in order to achieve the set objectives. The term copying does not mean taking a building and making it the same in another place, because this would mean applying the international style without taking into account the Genius Loci. The theme is to study a system that can be replicated and at the same time adaptable to the context, culture, people and architecture of the place in which it is being designed. For example, an energy community can be created with buildings that reflect the architecture of the place and that implement passive strategies such as, for example, the use of natural ventilation. In fact, ventilation can determine the shape of the building with wind towers and can also determine the use of micro wind power for energy production. Technologies and products can change within an energy community, but the methodology, strategies and processes are applied following a common logical thread. Another theme that can be replicated once understood is that of the exchange of energy between public and private entities. In fact, many public buildings have, for example, large surfaces covered with photovoltaic panels and could send energy to private individuals when the public building is not in operation. Other aspects related to communities can be replicated if well studied following realizations.

Keywords

Community
Inclusion
Reinventing cities
Energy efficiency
Decarbonisation

Gallery