Eco-district Charmille-Schuman
Basic information
Project Title
Eco-district Charmille-Schuman
Full project title
Eco-district Charmille-Schuman
Category
Reconnecting with nature
Project Description
Transforming a low-density school site into a vibrant eco-district through the design of new, denser school buildings, freeing up land for more green space, an educational garden, a pedestrian walkway connecting the neighbourhood, and a new nursery. The schools and their surroundings create a place for gathering and sharing, reconnecting residents with nature. The project is also a beacon of soft mobility, strengthening communication amongst the inhabitants and the green network of Brussels.
Geographical Scope
Local
Project Region
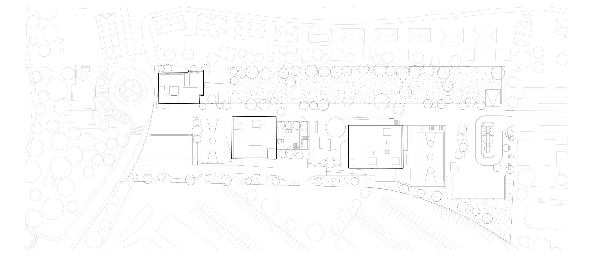
Woluwe-Saint-Lambert, Brussels, Belgium
Urban or rural issues
Mainly urban
Physical or other transformations
It refers to a physical transformation of the built environment (hard investment)
EU Programme or fund
No
Description of the project
Summary
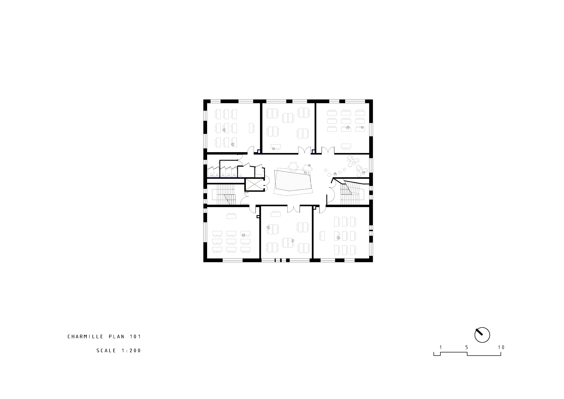
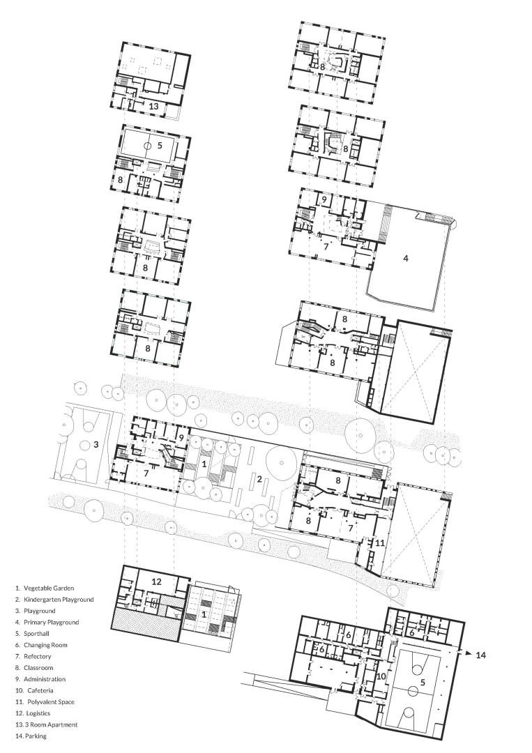
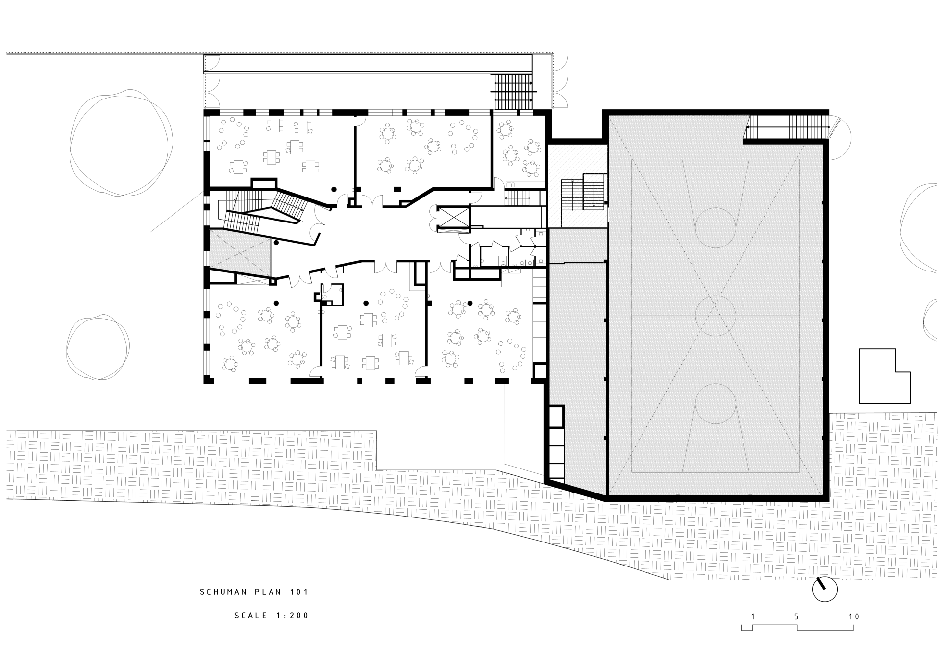
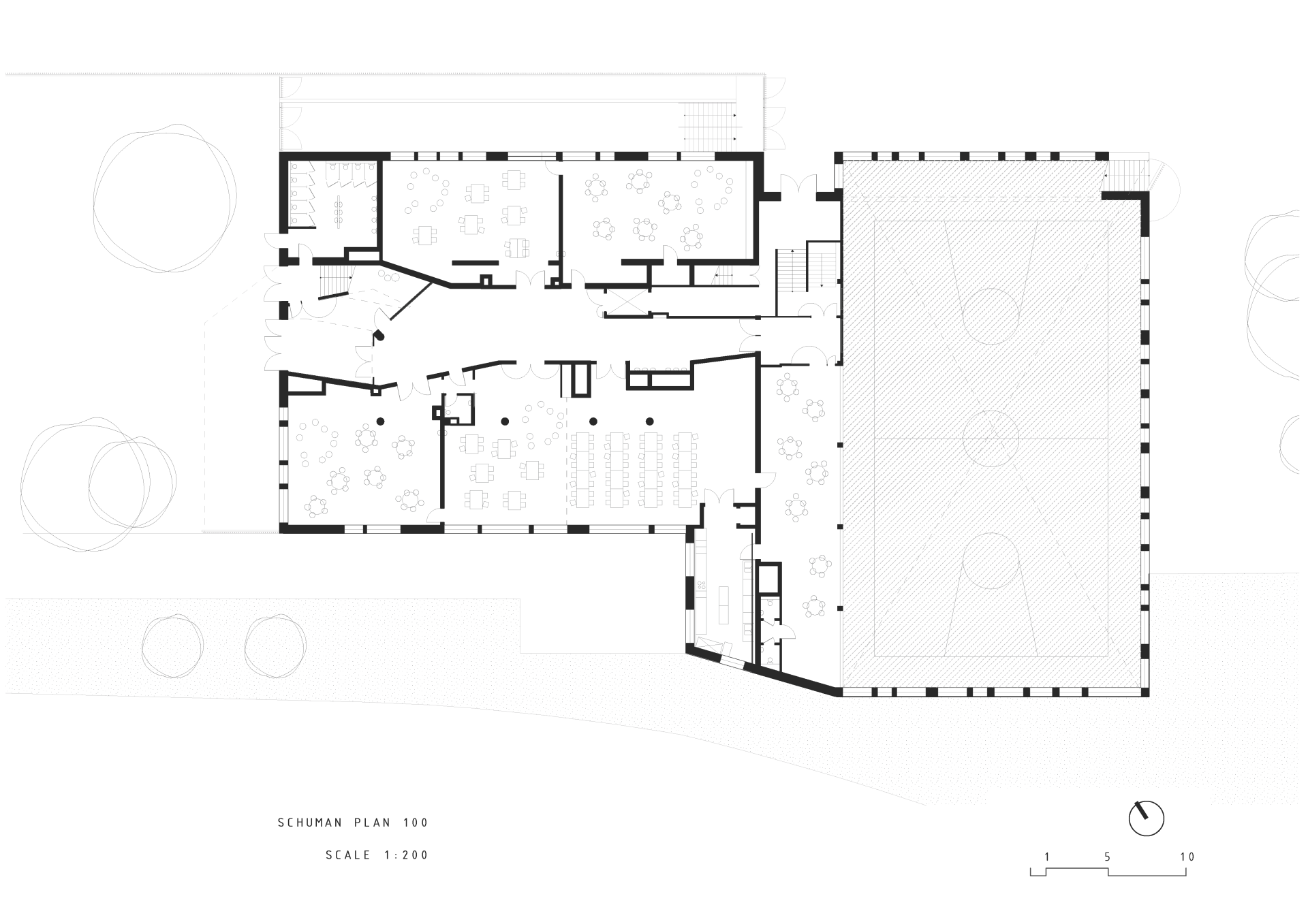
Redevelopment of 2.1 ha into an eco-district with open spaces, sports areas, playgrounds, courtyards, vegetable gardens, alleys, roads and sustainable buildings, including a sports hall, gym, nursery, primary and special schools (200, 450 & 150 pupils). It proposes the creation of an eco-district that ensures harmonious transitions and relationships between the different typologies and uses. The compact buildings, whose functions are organised around a large meeting and recreation area that forms the heart of the schools, are articulated between 2 pedestrian squares along an alleyway that connects them to the neighbourhood. Compactness optimises construction, energy and maintenance costs, while freeing up public spaces for the community. It allows for the creation of landscaped and recreational areas, communal spaces, drop-off points, roads and car parks to efficiently manage large flows of people. The landscaping of the buildings, the water management, the biodiversity and the soft mobility implemented offer users an efficient and convivial way of living together. An appropriate spatial organisation allows the linking of functions that share synergies, a better use of available areas (the semi-subterranean gymnasium benefits from natural light and allows its roof to be used as an outdoor playground, and its proximity to the multi-purpose room allows the cafeteria to be shared), as well as the reduction of flows (the gymnasium on the top floor reduces the circulation between classes, while providing it with light and views). The project is rational and at the same time offers a great variety of spatial experiences and perspectives with a playful and educational aim (choice of materials, vegetable gardens, open-air pools, local vegetation). The design brings together the complex programmes of the site, while creating an exemplary project from an environmental point of view.
Key objectives for sustainability
The main sustainability objectives of the project were (1) to design more compact buildings and free up land for community facilities; (2) to implement water and biodiversity management strategies; and (3) to redesign the site to provide green links and soft mobility.
The first objective was achieved by transforming the existing horizontal sprawl of buildings into two denser school buildings at an intermediate height between the adjacent towers and the neighbouring small houses for better urban integration. The compactness of the volumes not only optimises construction costs and makes maintenance cheaper and easier in the long term, but also freed up land for the construction of a new nursery and the creation of more open and green spaces with permeable soils to meet the second objective of water management and biodiversity.
The implementation of a gravity system of rainwater harvesting brings all the water from the roofs and courtyards to the school vegetable gardens and a wetland planted with carefully selected indigenous hydrophilic plants. These contribute to biodiversity.
The third objective is achieved through the morphological redesign of the site, which allows it to be reconnected to the neighbourhood. A pedestrian walkway linking all the facilities transforms the once enclosed site into a place for meeting and sharing, but also reconnects it to the green network of Brussels, allowing a better exchange and flow of plants, bicycles and animals, but also promoting soft mobility.
The first objective was achieved by transforming the existing horizontal sprawl of buildings into two denser school buildings at an intermediate height between the adjacent towers and the neighbouring small houses for better urban integration. The compactness of the volumes not only optimises construction costs and makes maintenance cheaper and easier in the long term, but also freed up land for the construction of a new nursery and the creation of more open and green spaces with permeable soils to meet the second objective of water management and biodiversity.
The implementation of a gravity system of rainwater harvesting brings all the water from the roofs and courtyards to the school vegetable gardens and a wetland planted with carefully selected indigenous hydrophilic plants. These contribute to biodiversity.
The third objective is achieved through the morphological redesign of the site, which allows it to be reconnected to the neighbourhood. A pedestrian walkway linking all the facilities transforms the once enclosed site into a place for meeting and sharing, but also reconnects it to the green network of Brussels, allowing a better exchange and flow of plants, bicycles and animals, but also promoting soft mobility.
Key objectives for aesthetics and quality
The project's core values in terms of aesthetics and user experience range from the building's composition, the differentiation of colours inside and out, a dynamic asymmetrical façade, to the design of a public meeting and recreation space.
Classes are distributed around a generous and flexible central vertical space, which is the heart of the school, a place of circulation, but also of meeting, enjoyment and learning. This concept of a central meeting place has been achieved through in-depth studies of the typology, layout and distribution of educational facilities. It rejects the idea of academic buildings as places of discipline and segregation and promotes school facilities as places of enjoyment and fun. This is also achieved by marking the internal corridors, external awnings and other threshold elements of the buildings with bright yellow and green colours in fading gradients.
The nursery presents an impressive sequence of spaces, all on one level, open, fluid, versatile and transparent. The entrance to the primary school provides access to the teachers' rooms and allows visual relations with the neighbourhood and the different spaces of the school. The classrooms, fixed or modular, are organised around a central multifunctional hall, naturally lit by skylights. Natural light is optimised by the principle of dynamic composition of the façade, which combines windows with a random and playful appearance. This concept creates the most functional, harmonious and intelligent arrangement of openings. At the same time, it gives the buildings a distinctive identity.
In this way, the project is an example of aesthetics and human experience, combining on the one hand an in-depth study of how architecture can transform educational spaces - changing the discipline for dynamism - and on the other hand design choices that combine functionality, technology, comfort and the promotion of a playful and pleasant environment.
Classes are distributed around a generous and flexible central vertical space, which is the heart of the school, a place of circulation, but also of meeting, enjoyment and learning. This concept of a central meeting place has been achieved through in-depth studies of the typology, layout and distribution of educational facilities. It rejects the idea of academic buildings as places of discipline and segregation and promotes school facilities as places of enjoyment and fun. This is also achieved by marking the internal corridors, external awnings and other threshold elements of the buildings with bright yellow and green colours in fading gradients.
The nursery presents an impressive sequence of spaces, all on one level, open, fluid, versatile and transparent. The entrance to the primary school provides access to the teachers' rooms and allows visual relations with the neighbourhood and the different spaces of the school. The classrooms, fixed or modular, are organised around a central multifunctional hall, naturally lit by skylights. Natural light is optimised by the principle of dynamic composition of the façade, which combines windows with a random and playful appearance. This concept creates the most functional, harmonious and intelligent arrangement of openings. At the same time, it gives the buildings a distinctive identity.
In this way, the project is an example of aesthetics and human experience, combining on the one hand an in-depth study of how architecture can transform educational spaces - changing the discipline for dynamism - and on the other hand design choices that combine functionality, technology, comfort and the promotion of a playful and pleasant environment.
Key objectives for inclusion
Inclusion is achieved through a biodiversity-driven masterplan providing the community with a park, making green and public spaces a matter of social inclusion. Three different schools are embedded in the open space, promoting cultural and intergenerational exchange. Although security requires the need for controls on patios and entrances, the schools aren’t fenced by opaque and impenetrable gates. Thi s generates a fluid environment, allowing the community to be active in the construction of a safe and inclusive space.
The project includes the Type 8 Special School for 150 children with learning difficulties – speech, writing, reading, arithmetic, concentration and attention problems. The building provides an inclusive space for different children and their demands and needs. The large classrooms are sparsely populated, promoting better concentration and control for the professionals. The distribution and the low occupancy of the building also contribute to better learning, especially in cases of attention difficulties. It is important to stress that the implantation of a special school on a site with other schools promotes the social and urban integration of children who are, in some cases, segregated. The project considers the principles of Design for All in the design of the diverse spaces that meet the specific needs of the building, which is also used by a Flemish-speaking music academy. This not only extends the range of activities of the building and the congregation, but also promotes social inclusion by offering musical education to the local population. In this respect, it brings together the Flemish-speaking and French-speaking communities in Brussels. In terms of affordability, the project achieves good energy ratings, winning the "Bâtiment Examplaire" award, and on a social level, it allows students with learning difficulties to have access to quality education. It also ensures education as a social good for inclusive governance systems.
The project includes the Type 8 Special School for 150 children with learning difficulties – speech, writing, reading, arithmetic, concentration and attention problems. The building provides an inclusive space for different children and their demands and needs. The large classrooms are sparsely populated, promoting better concentration and control for the professionals. The distribution and the low occupancy of the building also contribute to better learning, especially in cases of attention difficulties. It is important to stress that the implantation of a special school on a site with other schools promotes the social and urban integration of children who are, in some cases, segregated. The project considers the principles of Design for All in the design of the diverse spaces that meet the specific needs of the building, which is also used by a Flemish-speaking music academy. This not only extends the range of activities of the building and the congregation, but also promotes social inclusion by offering musical education to the local population. In this respect, it brings together the Flemish-speaking and French-speaking communities in Brussels. In terms of affordability, the project achieves good energy ratings, winning the "Bâtiment Examplaire" award, and on a social level, it allows students with learning difficulties to have access to quality education. It also ensures education as a social good for inclusive governance systems.
Results in relation to category
The project provides the district of Woluwe-Saint-Lambert with a new gathering and meeting place for the community, new public facilities, a new park, a pétanque area, a children's playground, an outdoor multi-sport area and a pedestrian walkway for soft mobility, thus reinforcing the city's green network. The transformation of the former schools into a community area with a shared park with educational purposes (the species planted in the park are presented with didactic panels, courses and activities for children are organized there) has improved the opportunities for residents to reconnect with nature and each other. The schools themselves have a vegetable garden to raise children's awareness of local cultivation and consumption.
On a larger scale, the complex acts as a connecting space, providing a logical continuity of green spaces in the neighbourhood, but also at the Brussels regional level. The project has a positive environmental impact through the restoration of natural greenery and the creation of vibrant social spaces, as well as buildings that will combine the daily use of the school with the use of sports grounds and music lessons in the evenings for the local sports club and the Flemish music school. In this respect, the project also creates a place of connection between the French-speaking and Flemish-speaking communities in Brussels.
The project was awarded the Prix " Bâtiment Exemplaire " (Exemplary Building) in 2013 by the Brussels Institute for Environmental Management for the quality of its design and its contribution to sustainability.
On a larger scale, the complex acts as a connecting space, providing a logical continuity of green spaces in the neighbourhood, but also at the Brussels regional level. The project has a positive environmental impact through the restoration of natural greenery and the creation of vibrant social spaces, as well as buildings that will combine the daily use of the school with the use of sports grounds and music lessons in the evenings for the local sports club and the Flemish music school. In this respect, the project also creates a place of connection between the French-speaking and Flemish-speaking communities in Brussels.
The project was awarded the Prix " Bâtiment Exemplaire " (Exemplary Building) in 2013 by the Brussels Institute for Environmental Management for the quality of its design and its contribution to sustainability.
How Citizens benefit
During the design process, civil society was involved at various levels of decision-making. The possibility of opening up the site for the consolidation of the eco-district affected residents who were concerned about changes in traffic flows, as the combined school and park programme would significantly alter the movement of people in the area. Meetings were held at an early stage with the residents of the detached and semi-detached properties affected by the project. The construction of a kiss and ride along the clos de Bouleau and of a roundabout on Av. de la Charmille with a school bus stop, as well as the provision of fencing and restrictions on private parking were some of the decisions made with the community. The consolidation of the large park areas with the creation of a playground, a multi-sports area and a petanque area has also been agreed with the community. The original project included the construction of housing in a strip across the site, but this was discarded after the participatory sessions, given its high impact on the neighbourhood and the expected benefits from the creation of green spaces. In addition to these participatory phases, the design of the school's community and sports areas was developed in close collaboration with education professionals. The permeability of the ground floors, allowing teachers to see the playground and the pupils, the sharing of the sports hall with the local sports club, the different accesses to the sports rooms and the private changing and storage areas for the community were some of the design choices made by the group.
Physical or other transformations
It refers to a physical transformation of the built environment (hard investment)
Innovative character
First, this project is innovative in its contemporary architectural expression, which seeks to offer spaces that listen to nature, open to the outside world, sensitive to variations in light and our perception of the sky. This is reflected in the façades, which seek natural light, but also in the atrium, the heart of the school, which allows the visitor to feel the different directions of the sun thanks to a very generous intake of zenithal light.
The project is also innovative from a technical point of view. It is indeed rare to see a school built to passive standards, and passive schools of the size and scale of the Charmille-Schuman schools make this project even more unique and innovative. Similarly, in terms of landscaping, the implementation of a zero-discharge water management system is state of the art, and the achievement of this result for an entire eco-district is to be commended for its pioneering and innovative character.
Finally, this project is innovative from a social point of view through its educational approach to the issue of reconnecting with nature. Both in terms of the pedagogy used in the schools (the concept of the school as a space for regeneration, environmental education and biodiversity, with outdoor classrooms, vegetable garden and playgrounds open to the environment) and the choice to contribute to the education of the general public about nature (didactic garden with explanatory panels to raise awareness of local species, outdoor workshop for young people).
The innovative aspect of the project lies in its ability to educate through the spatial arrangement, the assembly of the whole, including the relationship with the green spaces, etc., rather than simply creating a garden space or small orchards. Here, the building and the assembly play an active role in environmental education. In summary, the project conceives the building and the educational complex as living spaces and as possible agents of social change.
The project is also innovative from a technical point of view. It is indeed rare to see a school built to passive standards, and passive schools of the size and scale of the Charmille-Schuman schools make this project even more unique and innovative. Similarly, in terms of landscaping, the implementation of a zero-discharge water management system is state of the art, and the achievement of this result for an entire eco-district is to be commended for its pioneering and innovative character.
Finally, this project is innovative from a social point of view through its educational approach to the issue of reconnecting with nature. Both in terms of the pedagogy used in the schools (the concept of the school as a space for regeneration, environmental education and biodiversity, with outdoor classrooms, vegetable garden and playgrounds open to the environment) and the choice to contribute to the education of the general public about nature (didactic garden with explanatory panels to raise awareness of local species, outdoor workshop for young people).
The innovative aspect of the project lies in its ability to educate through the spatial arrangement, the assembly of the whole, including the relationship with the green spaces, etc., rather than simply creating a garden space or small orchards. Here, the building and the assembly play an active role in environmental education. In summary, the project conceives the building and the educational complex as living spaces and as possible agents of social change.
Disciplines/knowledge reflected
The project is the result of a rich collaboration between complementary disciplines. Town planners, landscape architects, specialists in water management, road and traffic engineers have combined their skills to design an exemplary master plan in terms of ecology (selection of indigenous plants to promote biodiversity, creation of wetlands, soft mobility)... 2 schools, a sports hall, a crèche and an underground car park, all within an optimized flow and zero discharge water management system. A gravity system of rainwater harvesting, in addition to the use of permeable paving, brings all the water from the roofs and courtyards to the school vegetable gardens and a wetland with indigenous plants. The new eco-district not only increases the green cover, but also has a social and environmental education function as it is a meeting place for the community.
The coherence of the project was ensured by regular meetings of the multidisciplinary team, coordinated by the architects. These interactions gave rise to the concepts that make up the richness of the project. The continuous collaboration between the architects, the energy engineers, the fluid and stability engineers, the acousticians, the interior designers and the teaching teams has made it possible to create a contemporary architectural volume that reflects the educational concept of the schools in generous, convivial and comfortable spaces equipped with the best technologies.
From an energy point of view, the schools meet the passive standard thanks to their compactness and excellent insulation. From a stability point of view, the spans of the sports hall meet the standards of national basketball competitions, while the school playground is located on its roof.
Overall, the project demonstrates how each team partner was essential in adding value to the process and the final product, highlighting the importance of multidisciplinary teams in projects focused on environmental and social factors.
The coherence of the project was ensured by regular meetings of the multidisciplinary team, coordinated by the architects. These interactions gave rise to the concepts that make up the richness of the project. The continuous collaboration between the architects, the energy engineers, the fluid and stability engineers, the acousticians, the interior designers and the teaching teams has made it possible to create a contemporary architectural volume that reflects the educational concept of the schools in generous, convivial and comfortable spaces equipped with the best technologies.
From an energy point of view, the schools meet the passive standard thanks to their compactness and excellent insulation. From a stability point of view, the spans of the sports hall meet the standards of national basketball competitions, while the school playground is located on its roof.
Overall, the project demonstrates how each team partner was essential in adding value to the process and the final product, highlighting the importance of multidisciplinary teams in projects focused on environmental and social factors.
Methodology used
As a method, a horizontal management of the different aspects and demands of the programme was sought at all stages of the project. The themes of sustainability, biodiversity, water management, social inclusion, and diversity in education were considered from the initial formal design to the final execution. As architects and authors of the project, we managed the teams involved so that each objective could be achieved in itself. The project is consolidated as a multi-scalar and multidisciplinary design, in which environmental issues are thought as a broad disciplinary base of the project and unfold as punctual decisions. Examples such as the aforementioned higher density of buildings on the site generate a compact and therefore more energy-efficient design. Or, in the same way, the negotiation with the community for the implementation of the programme and the park generates significant social value and makes it possible to think the project for the community that will benefit from it.
How stakeholders are engaged
In order to achieve the project's objectives, different levels of stakeholders were involved in the design process, from the beginning of the studies to the implantation of the eco-district. The initial proposal for the redevelopment of the site included the implantation of new buildings for schools, the masterplan for housing and the environmental management of the site. Throughout the design process, intensive back-and-forth negotiations with and involvement of stakeholders at various levels made it possible to better achieve the project's objectives and, later, to transform the eco-district. At the administrative level, the stakeholders involved were the Woluwe-Saint-Lambert Municipality, which acted as the project commissioner, guiding the programme and the negotiations. At the institutional level, the Charmille-Schumen school authorities, which include the primary school, the special school and the nursery school, were closely involved in the decision-making process in terms of access, building requirements and dynamics. In addition, the music school Academie voor Muziek en Woord Sint-Lambrechts-Woluwe, which uses the building in the evening shifts, had a significant involvement. The neighbouring landowners and residents of the Woluluwe-Saint-Lambert municipality, local politicians and civil society, in addition to public and institutional stakeholders, were actively involved in the design decision-making processes. Their involvement was crucial to ensure good implantation and low impact on the neighbourhood and surroundings in terms of flows, traffic and accessibility. At the regional level, close cooperation was established at the outset of the project to ensure the necessary subsidies and approvals, as well as coherence with regional planning.
Global challenges
The project addresses mainly matters of providing green connections that can reshape cities and be the support for educational facilities and motor for community strengthening. These local solutions provided by Charmille-Schuman Eco-district address global challenges such as the shortage of green spaces and permeable surfaces in cities; the clustering of only purpose horizontal buildings that sever communities; and low quality of educational buildings.
Currently, urban space has increasingly become mineralized by asphalt and concrete coverage, with low density buildings and hard mobility. The project tackles those subjects by making the buildings denser, connected with vast open green spaces that are the support for local soft mobility. The project addresses several points in the global contemporary architecture agenda. The high-quality finishings sustainable materiality of the building allows a durable assembly with low maintenance costs. The dynamic of it’s shape as a whole and the facade design addresses energetic solutions of thermic and low-energy consumption. Also, we highlight the reassurance of the school as a place not only for learning, but also for gathering, leisure and identity.
Local solutions of learning with nature, integration and landscape design through the creation of a new soft mobility network linked to local green spaces relates to current global challenges of green coverage and carbon-free mobility. This comprises the paths designed and the creation of new qualitative and inclusive landscaped areas of pedestrian and family squares and alleys, ramps for PMR access to the courtyard and 180 protected bicycle spaces and a drop-off area and secure bus space at the edge of the site, educational garden, outdoor amphitheatre, playground and pétanque.
Currently, urban space has increasingly become mineralized by asphalt and concrete coverage, with low density buildings and hard mobility. The project tackles those subjects by making the buildings denser, connected with vast open green spaces that are the support for local soft mobility. The project addresses several points in the global contemporary architecture agenda. The high-quality finishings sustainable materiality of the building allows a durable assembly with low maintenance costs. The dynamic of it’s shape as a whole and the facade design addresses energetic solutions of thermic and low-energy consumption. Also, we highlight the reassurance of the school as a place not only for learning, but also for gathering, leisure and identity.
Local solutions of learning with nature, integration and landscape design through the creation of a new soft mobility network linked to local green spaces relates to current global challenges of green coverage and carbon-free mobility. This comprises the paths designed and the creation of new qualitative and inclusive landscaped areas of pedestrian and family squares and alleys, ramps for PMR access to the courtyard and 180 protected bicycle spaces and a drop-off area and secure bus space at the edge of the site, educational garden, outdoor amphitheatre, playground and pétanque.
Learning transferred to other parties
Making the school a hub for the community and an environmental reference through construction quality and contemporary design of the buildings and spaces are elements that can be replicated or transferred as a design method and principles. Those were achieved by aiming at legibility, simplicity and compactness but also functionality, comfort and well-being
An adequate spatial organization allows the connection of functions sharing synergies (refectories and administration in full contact with the classes), a better use of available surfaces (the semi-buried sports hall benefits from natural light while allowing the use of its roof as an outdoor playground, its proximity to the multipurpose room allows the sharing of the cafeteria) as well as the reduction of flows (the gym on the top floor reduces the circulation between classes while giving it light and views).
The school is also conceived according to the principle of a school open to the neighbourhood, that can be used not only for teaching purposes but also for activities after school hours. This is why the buildings have different autonomous area with their own independent and separated entry to meet the needs of flexible and evolving public activities: the "sports" entrance provides access independently of the school, its locker rooms and cafeteria. Also, it leads to the multipurpose hall in a glassed-in balcony on the sports hall, opening towards the nursery school foyer giving onto a refectory and its kitchen, 3 rooms, sanitary facilities, and finally the playground and its vegetable garden. This independent unit, distributed by a connection node, allows school activities but also for non-school activities such as neighbourhood parties, sports, music, etc. The project also promotes learning with nature and outdoor spaces.
Finally, the multidisciplinary team and the participation process are methodologies that can be replicated.
An adequate spatial organization allows the connection of functions sharing synergies (refectories and administration in full contact with the classes), a better use of available surfaces (the semi-buried sports hall benefits from natural light while allowing the use of its roof as an outdoor playground, its proximity to the multipurpose room allows the sharing of the cafeteria) as well as the reduction of flows (the gym on the top floor reduces the circulation between classes while giving it light and views).
The school is also conceived according to the principle of a school open to the neighbourhood, that can be used not only for teaching purposes but also for activities after school hours. This is why the buildings have different autonomous area with their own independent and separated entry to meet the needs of flexible and evolving public activities: the "sports" entrance provides access independently of the school, its locker rooms and cafeteria. Also, it leads to the multipurpose hall in a glassed-in balcony on the sports hall, opening towards the nursery school foyer giving onto a refectory and its kitchen, 3 rooms, sanitary facilities, and finally the playground and its vegetable garden. This independent unit, distributed by a connection node, allows school activities but also for non-school activities such as neighbourhood parties, sports, music, etc. The project also promotes learning with nature and outdoor spaces.
Finally, the multidisciplinary team and the participation process are methodologies that can be replicated.
Keywords
eco-district
inclusive education
biodiversity
environment education
density