From the city to the spoon
Basic information
Project Title
From the city to the spoon
Full project title
From the city to the spoon. Designing 13 rooms for the Gallaratese
Category
Regaining a sense of belonging
Project Description
‘From the city to the spoon’ is an experiment that - starting from an idea of a heterogeneous city - proposes the synthesis of a paradigm that can turn the minimalism of a school building into the complexity of a diversified system.
A prototype project to work in the neighborhoods of cities around the world and co-design solutions to shape more accessible habitats for everyone and identify opportunities to build more inclusive, intergenerational and resilient cities.
A prototype project to work in the neighborhoods of cities around the world and co-design solutions to shape more accessible habitats for everyone and identify opportunities to build more inclusive, intergenerational and resilient cities.
Geographical Scope
Local
Project Region
Italy, city of Milan, Gallaratese district., Italy
Urban or rural issues
Mainly urban
Physical or other transformations
It refers to a physical transformation of the built environment (hard investment)
EU Programme or fund
No
Description of the project
Summary
The creative process begins by considering an idea of a city that wants to give back the centrality to a satellite, dormitory district, lacking in services and neighborhood activities.
The main objective of post-war urban plans was to implement an expansion of the neighborhood that would not deprecate it from the city of Milan, restoring a commercial road in the new residential blocks, studded with services and open-air spaces that would make the perfect place for meetings and interactions. The plan was disregarded and the Gallaratese neighborhood ended up serving as a dormitory district, lacking in services and with an exclusively residential purpose.
‘From the city to the spoon’ is an experiment that - starting from an idea of a heterogeneous city - proposes the synthesis of a paradigm that can turn the minimalism of a school building into the complexity of a diversified system.
A pilot project to work in the neighborhoods of cities around the world and to co-design solutions to shape more accessible environments for everyone and identify opportunities to build more inclusive, intergenerational and resilient cities.
The school becomes an entity that affirms the idea of the city through a simple and modular composition where - just as across the city - it is possible to perform specific functions (i.e. in the classroom), to communicate and move freely in a space of connection that presents an opportunity to meet and exchange with others (i.e. the connecting space between classrooms), always maintaining contact with the outdoors and green spaces (i.e. the inner courtyard, and winter gardens).
The city, in this context, is the place where experimentation on the urban scale begins, that is transferred to the school, to the architectural scale, providing the building with the same complexity as the entire neighborhood.
The main objective of post-war urban plans was to implement an expansion of the neighborhood that would not deprecate it from the city of Milan, restoring a commercial road in the new residential blocks, studded with services and open-air spaces that would make the perfect place for meetings and interactions. The plan was disregarded and the Gallaratese neighborhood ended up serving as a dormitory district, lacking in services and with an exclusively residential purpose.
‘From the city to the spoon’ is an experiment that - starting from an idea of a heterogeneous city - proposes the synthesis of a paradigm that can turn the minimalism of a school building into the complexity of a diversified system.
A pilot project to work in the neighborhoods of cities around the world and to co-design solutions to shape more accessible environments for everyone and identify opportunities to build more inclusive, intergenerational and resilient cities.
The school becomes an entity that affirms the idea of the city through a simple and modular composition where - just as across the city - it is possible to perform specific functions (i.e. in the classroom), to communicate and move freely in a space of connection that presents an opportunity to meet and exchange with others (i.e. the connecting space between classrooms), always maintaining contact with the outdoors and green spaces (i.e. the inner courtyard, and winter gardens).
The city, in this context, is the place where experimentation on the urban scale begins, that is transferred to the school, to the architectural scale, providing the building with the same complexity as the entire neighborhood.
Key objectives for sustainability
Land use: The school project fits into a previously built-up lot; the ground already had the layings of an old school complex in prefabricated construction with asbestos roofs. The choice was to dismantle the existing structures as they were obsolete for a school building and dangerous and carcinogenic (due to asbestos roofing) for the entire neighborhood in which it fits. Our project, therefore, by fitting into a previously built-up lot, does not invade virgin soil, thus not taking away green space from the neighborhood.
Energy Sustainability: The project is built according to the principles of sustainable and bioclimatic design, integrated into the context, properly oriented, able to make the best use of natural resources such as sun and wind, well insulated, powered by renewable energy and equipped with technologically advanced systems. All classrooms are cross-lighted and have a natural air re-circulation system. A series of louvred sunshades ensures that the building is protected from excessive overheating and decreases introspection on the school premises overlooking the new urban park in the Gallaratese neighborhood. All with the aim of reducing the building's energy requirements. Saving energy, also means reducing emissions due to energy production and resource consumption.
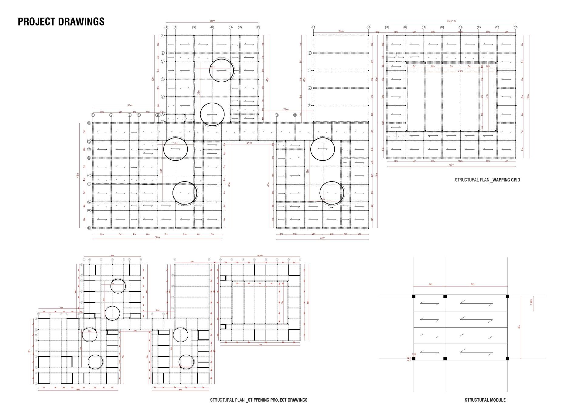
Reversibility of spaces against the aging of the building: The project is almost entirely made of wood while opting for a dry construction site reinterpreting the structural concept of a traditional reinforced concrete building, in fact the reinforced beams and pillars cast in situ will be replaced by lamellar wood elements produced and processed in the factory. Instead, block curtain walls are replaced by dry stratigraphy (highly energy efficient).
The designed spaces are fluid, versatile and defined by movable partitions, this approach allows multifunctionality of the places and also prevents aging of functions by making the spaces readaptable, changeable and easily renewable.
Energy Sustainability: The project is built according to the principles of sustainable and bioclimatic design, integrated into the context, properly oriented, able to make the best use of natural resources such as sun and wind, well insulated, powered by renewable energy and equipped with technologically advanced systems. All classrooms are cross-lighted and have a natural air re-circulation system. A series of louvred sunshades ensures that the building is protected from excessive overheating and decreases introspection on the school premises overlooking the new urban park in the Gallaratese neighborhood. All with the aim of reducing the building's energy requirements. Saving energy, also means reducing emissions due to energy production and resource consumption.
Reversibility of spaces against the aging of the building: The project is almost entirely made of wood while opting for a dry construction site reinterpreting the structural concept of a traditional reinforced concrete building, in fact the reinforced beams and pillars cast in situ will be replaced by lamellar wood elements produced and processed in the factory. Instead, block curtain walls are replaced by dry stratigraphy (highly energy efficient).
The designed spaces are fluid, versatile and defined by movable partitions, this approach allows multifunctionality of the places and also prevents aging of functions by making the spaces readaptable, changeable and easily renewable.
Key objectives for aesthetics and quality
The memory of school buildings in the collective memory of many Italians is never related to the aesthetics of the spaces, their quality and livability but rather to the quality of time shared with others. One almost never has a pleasant memory of the school because of the aesthetics of the building.
Our creative process begins with identification within the spaces, aiming to recreate a comfort given by natural light and wood, a warm and welcoming material. The composition of the layout generates courtyards that the classrooms overlook, allowing a free enjoyment of the open space that can be reappropriated. Between the different courtyard plantings alternate winter gardens with specially designed and chosen tree essences to be able to appreciate the alternation of the seasons through the different blooms in spring, the fall of leaves in autumn, etc. Beauty, then, comes from the comfort generated by natural light, the materials chosen, the freedom to enjoy the different areas, and the quality outdoor spaces.
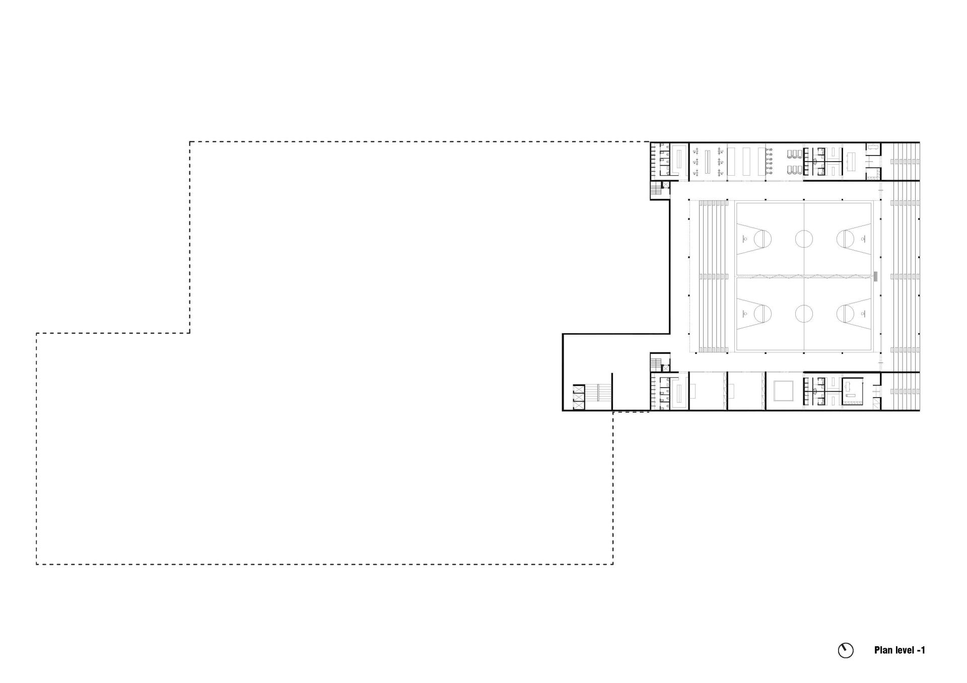
Design attention is given as much to the space of the classroom, designed with an appropriate size according to the criteria of "Inventing schools, a school as big as the world" of at least 60 square meters, in our case a module of 8m x 8m, but also to the connecting space between the different classrooms designed as a place of gathering re-appropriation, modular and transformable according to different needs. The school also offers workshop spaces, courtyards, winter gardens, public terraces and a sports center in order to grant a quality of total experience.
Our creative process begins with identification within the spaces, aiming to recreate a comfort given by natural light and wood, a warm and welcoming material. The composition of the layout generates courtyards that the classrooms overlook, allowing a free enjoyment of the open space that can be reappropriated. Between the different courtyard plantings alternate winter gardens with specially designed and chosen tree essences to be able to appreciate the alternation of the seasons through the different blooms in spring, the fall of leaves in autumn, etc. Beauty, then, comes from the comfort generated by natural light, the materials chosen, the freedom to enjoy the different areas, and the quality outdoor spaces.
Design attention is given as much to the space of the classroom, designed with an appropriate size according to the criteria of "Inventing schools, a school as big as the world" of at least 60 square meters, in our case a module of 8m x 8m, but also to the connecting space between the different classrooms designed as a place of gathering re-appropriation, modular and transformable according to different needs. The school also offers workshop spaces, courtyards, winter gardens, public terraces and a sports center in order to grant a quality of total experience.
Key objectives for inclusion
The project, in agreement with: ’’Inventing schools. A school as big as the world, design ideas for new primary and secondary schools in Milan’’, that is a platform for didactic experimentation promoted by the AUIC School and the School Building Department of the City of Milan, aims to design a public school building. Public management is hybridized by the private management of various associations that take over the workshops. This not only requires an active involvement of the neighborhood but also streamlines the public investment.
Hybridization also fulfils a heterogeneity of functions that allow spaces to be usable in any time maximizing not only their enjoyment, but also responding to different target groups of culture, age, traditions, skills, diversity, creativity and local craftsmanship. Everyday life aspects that transmit a sense of belonging on a local scale.
The genesis of the school building has as one of its premises the guarantee of accessibility to the site and the structure to all the most fragile individuals to battle social isolation. The principle of the intervention, therefore, is based on ''design for all'', from urban green rooms to school rooms, the building is aimed at all social classes and all generational groups.
Hybridization also fulfils a heterogeneity of functions that allow spaces to be usable in any time maximizing not only their enjoyment, but also responding to different target groups of culture, age, traditions, skills, diversity, creativity and local craftsmanship. Everyday life aspects that transmit a sense of belonging on a local scale.
The genesis of the school building has as one of its premises the guarantee of accessibility to the site and the structure to all the most fragile individuals to battle social isolation. The principle of the intervention, therefore, is based on ''design for all'', from urban green rooms to school rooms, the building is aimed at all social classes and all generational groups.
How Citizens benefit
The citizens in this context are actors and spectators of the project as they become directly involved in the management of the system.
The project's main objective is social inclusivity and takes into consideration not only the project spaces but also gives new life to the existing public sports facilities located within the redeveloped urban park. In this way, a system of relations springs up between citizens and facilities, between actors and attractors, which develops a sense of community, currently weak and almost non-existent, where people become part of a shared local ecosystem.
This is made possible through the activities organized within the school-civic center and several spaces intended as places of learning and open-air relationship in which types of activities are envisaged that promote the coming together of people of different ages and thus belonging to different generations, such as urban gardens, the green amphitheater, educational and sports lessons.
These are all activities that reach out to the city and offer the possibility to get in touch with the outside world, the territory, other knowledge and cultures, where the associations are involved not only in the decision-making process but also in the management process specifically in the workshops.
Multicultural initiatives are a central theme in the history of the Gallaratese neighborhood, one of Milan's districts with the highest percentage of elderly people.
The project's main objective is social inclusivity and takes into consideration not only the project spaces but also gives new life to the existing public sports facilities located within the redeveloped urban park. In this way, a system of relations springs up between citizens and facilities, between actors and attractors, which develops a sense of community, currently weak and almost non-existent, where people become part of a shared local ecosystem.
This is made possible through the activities organized within the school-civic center and several spaces intended as places of learning and open-air relationship in which types of activities are envisaged that promote the coming together of people of different ages and thus belonging to different generations, such as urban gardens, the green amphitheater, educational and sports lessons.
These are all activities that reach out to the city and offer the possibility to get in touch with the outside world, the territory, other knowledge and cultures, where the associations are involved not only in the decision-making process but also in the management process specifically in the workshops.
Multicultural initiatives are a central theme in the history of the Gallaratese neighborhood, one of Milan's districts with the highest percentage of elderly people.
Physical or other transformations
It refers to a physical transformation of the built environment (hard investment)
Innovative character
The potential of innovation of our project lies in its ability to settle itself as a structure not confined to a precise perimeter but extended to a plan for the reorganization of a slice of the city, initially conceived with specific destinations and then left unbuilt. The school building is the culmination, or the beginning, of a much larger strategy; there are no enclosures limiting one activity from another but coexisting attractive functions for the community of regional or national interest. The transcalarity that characterizes the project is support by permeability of the site in three axes, bringing the city inside the school with a strategy that speaks the same language at different scales. The city literally ‘runs’ through the school building and the cells of the classroom that always maintains contact with nature, while being immersed in a dense neighborhood of considerable relevance to the city of Milan, are an opportunity to give new hope to young minds, inspiring behavior and guiding thoughts, to give direct benefit to the entire community. Our project aims to stimulate users' creativity, imagination and interaction by providing inter-generational exchanges in contact with nature. In fact, the building remains a facility that can be used at different times and by any age group. The absence of a physical enclosure proves new opportunities for interaction in new contexts, to foster spaces and moments to re-imagine how to live better together.
Disciplines/knowledge reflected
The genesis of our project is rooted in the attention paid to the historical-urban issues that have affected this neighborhood from its foundation to the present day. In front of any type of urban and architectural intervention, the issues of identity is an ever-present and predominant concept; a concept that, for the most part, we try to preserve and conserve, but it is necessary to read change in order to calibrate and create new models of identity that maintain clear identifying features of the territorial heritage. The urban intervention applied in our project aims to increase the specific qualities of this portion of the neighborhood, accompanying the present resources towards their reactivation through a new identity and extending to the rebuilding lot of the school/civic center itself according to the same philosophy. In the designing of the building, it was essential to apply notions of pedagogy learnt from other educational method than the traditional one, such as the experience of Herzberger's school buildings inspired by Montessori pedagogy.
“Una pedagogia progressiva richiede un’architettura educata, cioè organismi funzionali, flessibili alle diverse esigenze di un metodo educativo che non si accontenta di considerare gli allievi come una massa indiscriminata ma vuole favorire lo sviluppo di ogni individuo.”(Ernesto Nathan Rogers, Architettura educatrice, in “Domus- La casa dell’uomo” n.220, 1947)
“Una pedagogia progressiva richiede un’architettura educata, cioè organismi funzionali, flessibili alle diverse esigenze di un metodo educativo che non si accontenta di considerare gli allievi come una massa indiscriminata ma vuole favorire lo sviluppo di ogni individuo.”(Ernesto Nathan Rogers, Architettura educatrice, in “Domus- La casa dell’uomo” n.220, 1947)
How stakeholders are engaged
The project is part of the trail of renovation that has involved the City of Milan, in particular the ‘Assessorato edilizia scolastica’ (School Building Department), with the project ‘Inventing schools - a school as big as the world’ in collaboration with AIUC (school of urban architecture and construction engineering of the Politecnico di Milano). The opportunity to redevelop the project area allows to pursue the goal of further improving the educational offering in this portion of the city, making the spaces dedicated to schools more appropriate to the needs of those who work, study, and grow up there.
This represents an important opportunity to create interest and participation around the issue and developing regional as well as national debate initiatives. The involvement of various figures actively interested in the school/civic and territorial project would ensure the quality of the measures, processes and actions implemented, with the objective of improving the learning and wellbeing of the users while building a concept of unconventional education.
This would also enable the timely procurement of human and financial resources, and foster active participation to the project design by involving university students, parents associations, managers, teachers and staff who are promoters of the school.
This represents an important opportunity to create interest and participation around the issue and developing regional as well as national debate initiatives. The involvement of various figures actively interested in the school/civic and territorial project would ensure the quality of the measures, processes and actions implemented, with the objective of improving the learning and wellbeing of the users while building a concept of unconventional education.
This would also enable the timely procurement of human and financial resources, and foster active participation to the project design by involving university students, parents associations, managers, teachers and staff who are promoters of the school.
Global challenges
The project includes the reactivation of neighborhood services, following the European wake of the 15-minute city, the neighborhood instead of being purely residential, will be able to meet multiple needs by taking back the neighborhood to its centrality thus limiting citizens' travel to other areas of the city, and reducing not only transportation emissions but also increasing the sense of belonging to the neighborhood. Furthermore, the redesign of open spaces involves the reclamation of cemented areas, restoring breath and oxygen to the soil, and the interventions benefit from natural elements such as tree rows, planting of tree species and cultivation of urban gardens to restore identity to the places. Work smarter, not harder!
The building design is made according to the principles of sustainable and bioclimatic design, integrated into the context, properly oriented, that can make the best use of natural resources such as sun and wind, well insulated, powered by renewable energy and equipped with technologically advanced systems. All classrooms are cross-lit and have natural air recirculation systems. A series of louvered sunshades ensures that the building is protected from excessive overheating and decreases introspection over the school premises that overlook the new urban park in the Gallaratese neighborhood. This is all to reduce the building's energy requirements. Saving energy also means reducing emissions due to energy production and resource consumption.
The building aims to respond to contemporary needs by introducing laboratory spaces in the school, designed to conduct vocational training activities in line with the future needs of the ecological transition.
The building design is made according to the principles of sustainable and bioclimatic design, integrated into the context, properly oriented, that can make the best use of natural resources such as sun and wind, well insulated, powered by renewable energy and equipped with technologically advanced systems. All classrooms are cross-lit and have natural air recirculation systems. A series of louvered sunshades ensures that the building is protected from excessive overheating and decreases introspection over the school premises that overlook the new urban park in the Gallaratese neighborhood. This is all to reduce the building's energy requirements. Saving energy also means reducing emissions due to energy production and resource consumption.
The building aims to respond to contemporary needs by introducing laboratory spaces in the school, designed to conduct vocational training activities in line with the future needs of the ecological transition.
Learning transferred to other parties
The project examines an idea of the city starting from the expansion of the district that would not isolate it from the rest of the city, which was the main objective of the post-war urban plans , A new ‘vital street’ would have connected all the new blocks, serving as main artery of meeting and exchange where the social and commercial life of the district would have taken place. The plan was disregarded and the Gallaratese neighborhood ended up serving as dormitory district. The first action of the project starts from the city, reinterpreting that same ‘vital street’ and defining its various areas of interest by involving associations of people from the neighborhood in the management of the open air spaces, all aimed at recreating a sense of belonging to one's places. From this idea of a city, a place of contamination between different generations, where well defined functions are mixed with hybrid places of meeting with others, a city that promotes the proximity of neighborhood services capable of animating it even outside residential spaces, the school cell is born. The school becomes an entity that affirms an idea of the city through a simple and modular composition where it’s possible to perform specific functions (like in the classroom), communicate and move freely in a space of connection that presents an opportunity to meet and interact with others (like in the connecting space between classrooms), always maintaining contact with the outdoors and the green spaces (i.e. the inner courtyard, and winter gardens). Each ‘room’ consists of a series of classrooms, which communicate with each other through a large and bright connecting space articulated by panels, desks, and furniture that animate it. The room opens up to a courtyard accessible from each classroom, and the rooms between them are alternated by winter gardens. These four elements are repeatable (classroom, connective, court and winter gardens) in their composition and in structural, modular systems.
Keywords
Promoting proximity
Increasing inclusivity
In ‘N out
Designing the learning spaces
Encouraging sustainability