Prioritising the places and people that need it the most
Panno school
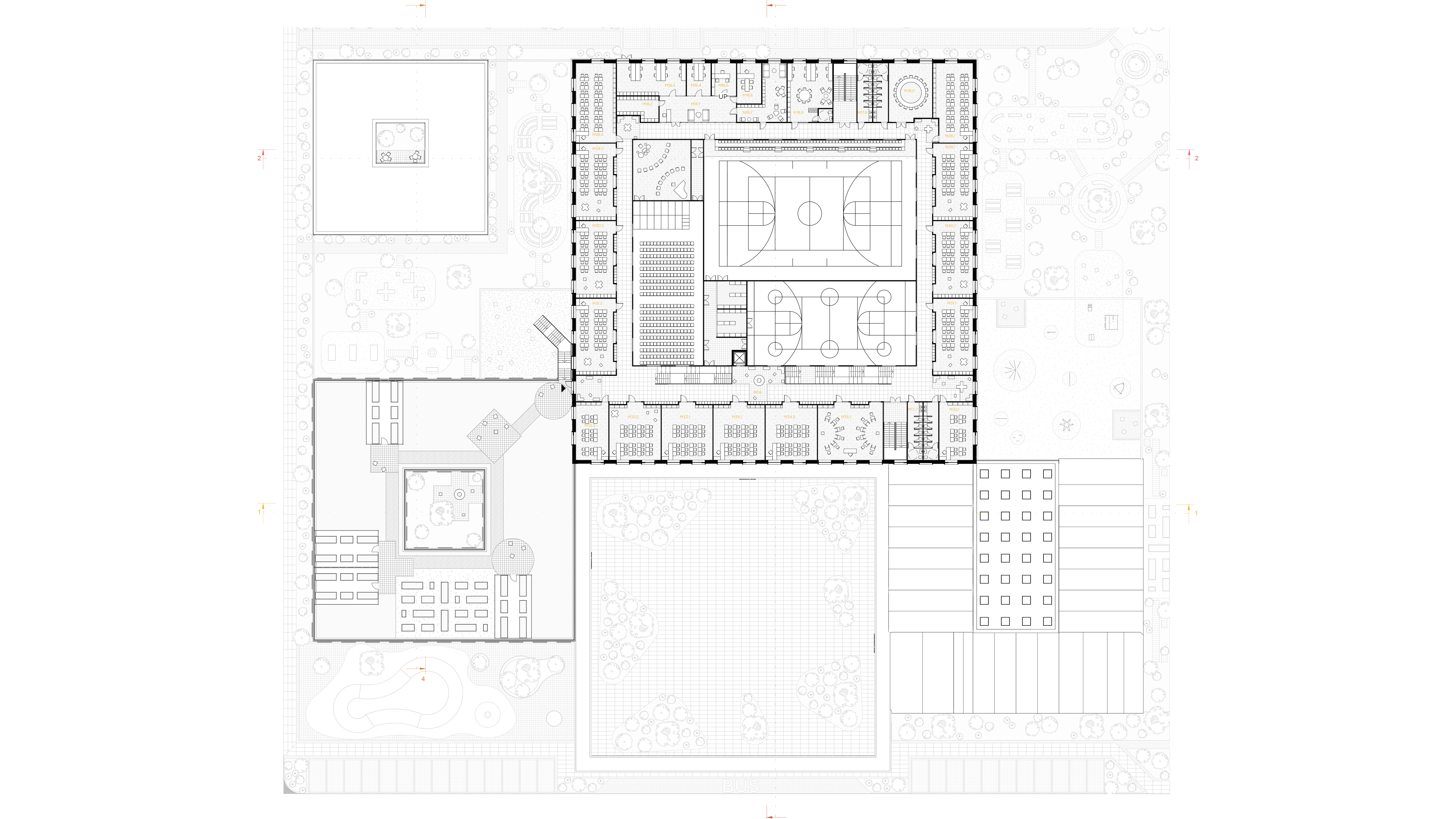
The Panno School system
Panno School is a visionary concept for Ukraine’s education and community, reinterpreting traditional architecture with modern, sustainable design. Awarded 2 place in the Future School for Ukraine competition, it features modular, eco-friendly spaces for learning and community use. Built with recycled materials and eco-friendly technologies, the school promotes inclusivity, resilience, and sustainability. Designed for urban and rural adaptability, it seeks partners to bring this vision to life.
Ukraine
National
It addresses urban-rural linkages
It refers to a physical transformation of the built environment (hard investment)
Prototype level
No
Yes
“Future School for Ukraine” Competition - 2nd place - https://futureschoolforukraine.eu/news/team-of-italian-architects-win-the-future-school-for-ukraine-competition-organized-by-lithuania/
As a representative of an organisation, in partnership with other organisations
Panno School is a transformative educational and community hub designed to address the urgent needs of Ukrainian children, educators, and displaced communities affected by war and economic hardship. By integrating modular architecture, sustainable design, and inclusive learning spaces, the project reimagines education in crisis conditions while fostering long-term community resilience and revitalization.
Target Groups:
- Children and youth lacking safe schools.
- Internally displaced families needing social support.
- Educators and communities seeking multi-functional learning spaces.
- Municipalities looking for scalable, adaptable reconstruction models.
Key Objectives:
- Ensure Accessible Education: Flexible, modular design enables rapid deployment in crisis areas.
- Promote Sustainability: Built with recycled materials and energy-efficient technology.
- Foster Social Inclusion: A community hub for education, mental health support, and integration.
- Enable Scalable Reconstruction: An affordable, replicable model for post-crisis rebuilding.
Achieved Impact:
- 2nd place in the “Future School for Ukraine” competition, proving feasibility.
- Circular construction and energy efficiency reduce environmental impact.
- Designed for phased development, allowing rapid response and future expansion.
- Strengthens community ties, doubling as a public space for workshops and support programs.
Panno School directly aligns with the New European Bauhaus vision by offering a beautiful, sustainable, and inclusive solution to Ukraine's urgent educational crisis. It serves as a beacon of hope and recovery, demonstrating how design, innovation, and social engagement can restore education, support vulnerable communities, and shape a more resilient future.
Target Groups:
- Children and youth lacking safe schools.
- Internally displaced families needing social support.
- Educators and communities seeking multi-functional learning spaces.
- Municipalities looking for scalable, adaptable reconstruction models.
Key Objectives:
- Ensure Accessible Education: Flexible, modular design enables rapid deployment in crisis areas.
- Promote Sustainability: Built with recycled materials and energy-efficient technology.
- Foster Social Inclusion: A community hub for education, mental health support, and integration.
- Enable Scalable Reconstruction: An affordable, replicable model for post-crisis rebuilding.
Achieved Impact:
- 2nd place in the “Future School for Ukraine” competition, proving feasibility.
- Circular construction and energy efficiency reduce environmental impact.
- Designed for phased development, allowing rapid response and future expansion.
- Strengthens community ties, doubling as a public space for workshops and support programs.
Panno School directly aligns with the New European Bauhaus vision by offering a beautiful, sustainable, and inclusive solution to Ukraine's urgent educational crisis. It serves as a beacon of hope and recovery, demonstrating how design, innovation, and social engagement can restore education, support vulnerable communities, and shape a more resilient future.
Sustainability
Adaptability
Inclusivity
Cultural Heritage
Community Integration
The Panno School exemplifies the New European Bauhaus values by harmonizing sustainability, aesthetics, and inclusivity in a visionary educational environment.
Sustainability & Circular Economy:
The school embraces a sustainable, low-impact design, using recycled and biomaterials, including salvaged materials from war-damaged buildings. A 50/50 balance of built and natural spaces fosters biodiversity through urban rewilding with native Ukrainian flora.
Energy Efficiency & Climate Responsibility:
Solar panels, green roofs, and advanced ventilation reduce energy consumption and CO₂ emissions. The design, following the Fresh Schools principle, maximizes natural light and airflow, ensuring a healthy, well-lit, and comfortable learning environment.
Modular & Adaptive Design:
The school’s flexible, modular system allows for regional adaptability across urban and rural areas, ensuring sustainable growth and easy expansion. This future-proof approach minimizes construction waste and enables communities to shape their own educational spaces over time.
Resilience & Community Impact:
Designed as a multifunctional cultural hub, Panno School goes beyond education, serving as a shelter, gathering place, and innovation hub. Its design supports well-being, inclusivity, and accessibility, welcoming diverse users while reinforcing cultural heritage and local identity.
By setting a new benchmark for sustainable schools, the Panno School is replicable, scalable, and community-driven. It offers an exemplary model of resilient, eco-friendly, and future-proof education in Ukraine and beyond.
Sustainability & Circular Economy:
The school embraces a sustainable, low-impact design, using recycled and biomaterials, including salvaged materials from war-damaged buildings. A 50/50 balance of built and natural spaces fosters biodiversity through urban rewilding with native Ukrainian flora.
Energy Efficiency & Climate Responsibility:
Solar panels, green roofs, and advanced ventilation reduce energy consumption and CO₂ emissions. The design, following the Fresh Schools principle, maximizes natural light and airflow, ensuring a healthy, well-lit, and comfortable learning environment.
Modular & Adaptive Design:
The school’s flexible, modular system allows for regional adaptability across urban and rural areas, ensuring sustainable growth and easy expansion. This future-proof approach minimizes construction waste and enables communities to shape their own educational spaces over time.
Resilience & Community Impact:
Designed as a multifunctional cultural hub, Panno School goes beyond education, serving as a shelter, gathering place, and innovation hub. Its design supports well-being, inclusivity, and accessibility, welcoming diverse users while reinforcing cultural heritage and local identity.
By setting a new benchmark for sustainable schools, the Panno School is replicable, scalable, and community-driven. It offers an exemplary model of resilient, eco-friendly, and future-proof education in Ukraine and beyond.
The Panno School is an architectural statement that blends tradition and modernity, creating an inspiring and culturally rooted learning environment.
Aesthetic Excellence & Cultural Identity:
The design reinterprets traditional Ukrainian architecture, incorporating regional motifs and materials to preserve and celebrate national heritage. The facade composition reflects traditional ornaments, while local and recycled materials reinforce sustainability and cultural continuity.
Quality of Experience & Spatial Harmony:
The school is designed as a village-like environment, where classrooms, libraries, and community spaces function as independent yet interconnected structures. Corridors become streets, atriums serve as public squares and transparent partitions ensure a fluid, connected experience that enhances learning and interaction.
Sensory & Emotional Well-being:
Natural materials, abundant daylight, and biophilic design create a calming and stimulating atmosphere. Green roofs, open courtyards, and landscaped areas foster a connection to nature, improving students' well-being and cognitive performance. Acoustic comfort and ergonomic design further enhance focus and relaxation.
Cultural & Community Integration:
The multifunctional design transforms the school into a cultural hub—a space for learning, social interaction, and creativity. Adaptive reuse of materials from war-damaged buildings strengthens the collective memory and resilience of local communities.
Exemplary Impact:
By integrating aesthetics, cultural heritage, and user-centered design, Panno School sets a new standard for educational architecture, proving that schools can be beautiful, inspiring, and deeply connected to their communities.
Aesthetic Excellence & Cultural Identity:
The design reinterprets traditional Ukrainian architecture, incorporating regional motifs and materials to preserve and celebrate national heritage. The facade composition reflects traditional ornaments, while local and recycled materials reinforce sustainability and cultural continuity.
Quality of Experience & Spatial Harmony:
The school is designed as a village-like environment, where classrooms, libraries, and community spaces function as independent yet interconnected structures. Corridors become streets, atriums serve as public squares and transparent partitions ensure a fluid, connected experience that enhances learning and interaction.
Sensory & Emotional Well-being:
Natural materials, abundant daylight, and biophilic design create a calming and stimulating atmosphere. Green roofs, open courtyards, and landscaped areas foster a connection to nature, improving students' well-being and cognitive performance. Acoustic comfort and ergonomic design further enhance focus and relaxation.
Cultural & Community Integration:
The multifunctional design transforms the school into a cultural hub—a space for learning, social interaction, and creativity. Adaptive reuse of materials from war-damaged buildings strengthens the collective memory and resilience of local communities.
Exemplary Impact:
By integrating aesthetics, cultural heritage, and user-centered design, Panno School sets a new standard for educational architecture, proving that schools can be beautiful, inspiring, and deeply connected to their communities.
Inclusive Design & Accessibility:
The Panno School embodies the principle of education for all, ensuring accessibility at multiple levels. Designed with universal access in mind, the school features step-free entrances, wide corridors, tactile guidance systems, and ergonomic spaces that accommodate individuals with disabilities. Flexible classroom layouts support diverse learning styles, making education more inclusive and engaging for all students.
Affordability & Sustainable Resource Use:
By incorporating modular construction and locally sourced recycled materials, Panno School remains cost-effective and scalable, ensuring that high-quality education infrastructure can be implemented across different regions, both urban and rural. Its energy-efficient systems reduce operational costs, making the school financially sustainable in the long term.
Community-Driven & Multifunctional Spaces:
Panno School is designed as a shared resource for the broader community. With public libraries, sports areas, cultural spaces, and workshops, it serves as a hub for lifelong learning and social interaction. The spaces are flexible and multifunctional, allowing use beyond school hours, and ensuring the school remains an active, vibrant part of the neighborhood.
Inclusive Governance & Participation:
The project encourages collaboration between educators, students, parents, and local stakeholders, fostering participatory decision-making. By integrating local businesses and industries into vocational training programs, Panno School strengthens community ties and career opportunities for students.
Exemplary Impact:
By combining accessibility, affordability, and community-driven governance, Panno School sets a new standard for inclusive education. It ensures that learning environments are welcoming, adaptable, and beneficial to all members of society.
The Panno School embodies the principle of education for all, ensuring accessibility at multiple levels. Designed with universal access in mind, the school features step-free entrances, wide corridors, tactile guidance systems, and ergonomic spaces that accommodate individuals with disabilities. Flexible classroom layouts support diverse learning styles, making education more inclusive and engaging for all students.
Affordability & Sustainable Resource Use:
By incorporating modular construction and locally sourced recycled materials, Panno School remains cost-effective and scalable, ensuring that high-quality education infrastructure can be implemented across different regions, both urban and rural. Its energy-efficient systems reduce operational costs, making the school financially sustainable in the long term.
Community-Driven & Multifunctional Spaces:
Panno School is designed as a shared resource for the broader community. With public libraries, sports areas, cultural spaces, and workshops, it serves as a hub for lifelong learning and social interaction. The spaces are flexible and multifunctional, allowing use beyond school hours, and ensuring the school remains an active, vibrant part of the neighborhood.
Inclusive Governance & Participation:
The project encourages collaboration between educators, students, parents, and local stakeholders, fostering participatory decision-making. By integrating local businesses and industries into vocational training programs, Panno School strengthens community ties and career opportunities for students.
Exemplary Impact:
By combining accessibility, affordability, and community-driven governance, Panno School sets a new standard for inclusive education. It ensures that learning environments are welcoming, adaptable, and beneficial to all members of society.
Citizen & Civil Society Involvement in Panno School:
The Panno School embraces the New European Bauhaus working principles by fostering participatory design, co-creation, and transdisciplinary collaboration. The project actively involves citizens, educators, students, and local communities, ensuring that the school serves as a culturally rooted, people-centered space.
Community-Driven Design Process:
From the project’s inception, local stakeholders, teachers, parents, and students participated in the design process through workshops, surveys, and public discussions. Their input shaped the spatial organization, ensuring the school meets real educational and social needs. By incorporating traditional Ukrainian motifs and materials, the design reflects local identity while embracing modern, sustainable architecture.
Collaboration with Civil Society & Experts:
Panno School benefits from partnerships with civil organizations, educational institutions, and sustainability experts, reinforcing a multidisciplinary approach. NGOs and advocacy groups focusing on inclusive education, green construction, and child development have provided valuable insights on accessibility, climate resilience, and community engagement.
Empowering Local Communities:
The school is designed as a multifunctional hub, available for local events, adult education, and cultural activities. By engaging residents in the design and programming of these spaces, the project ensures long-term community ownership and active participation beyond school hours.
Impact of Involvement:
This collaborative approach has enhanced social cohesion, increased local engagement, and ensured the project is truly reflective of its users' needs. It also fosters a sense of shared responsibility, making Panno School a model for democratic, user-centered, and sustainable educational spaces in Ukraine.
The Panno School embraces the New European Bauhaus working principles by fostering participatory design, co-creation, and transdisciplinary collaboration. The project actively involves citizens, educators, students, and local communities, ensuring that the school serves as a culturally rooted, people-centered space.
Community-Driven Design Process:
From the project’s inception, local stakeholders, teachers, parents, and students participated in the design process through workshops, surveys, and public discussions. Their input shaped the spatial organization, ensuring the school meets real educational and social needs. By incorporating traditional Ukrainian motifs and materials, the design reflects local identity while embracing modern, sustainable architecture.
Collaboration with Civil Society & Experts:
Panno School benefits from partnerships with civil organizations, educational institutions, and sustainability experts, reinforcing a multidisciplinary approach. NGOs and advocacy groups focusing on inclusive education, green construction, and child development have provided valuable insights on accessibility, climate resilience, and community engagement.
Empowering Local Communities:
The school is designed as a multifunctional hub, available for local events, adult education, and cultural activities. By engaging residents in the design and programming of these spaces, the project ensures long-term community ownership and active participation beyond school hours.
Impact of Involvement:
This collaborative approach has enhanced social cohesion, increased local engagement, and ensured the project is truly reflective of its users' needs. It also fosters a sense of shared responsibility, making Panno School a model for democratic, user-centered, and sustainable educational spaces in Ukraine.
The Panno School project brought together stakeholders at multiple levels, ensuring a collaborative and well-supported development process.
At the European level, the project was part of an international architectural competition organized by CPVA (Central Project Management Agency) with the support of NEB Lab. This engagement provided global recognition, expert evaluation, and alignment with the New European Bauhaus principles.
At the national level, the project involved Ukrainian government representatives, including the Ministry of Education, ensuring that the concept aligns with the country's educational and reconstruction priorities. Their participation added institutional credibility and increased the potential for future implementation.
At the regional and local levels, the project is designed to be adaptable to different Ukrainian contexts. The involvement of local architects, planners, and educators helped shape the school’s modular, culturally relevant, and community-focused design. By integrating recycled materials and respecting regional architectural traditions, the project directly responds to local needs.
The engagement of these diverse stakeholders strengthened the project's feasibility, visibility, and impact, ensuring that it is not only a visionary concept but also a practical solution for the sustainable reconstruction of Ukraine's educational infrastructure.
At the European level, the project was part of an international architectural competition organized by CPVA (Central Project Management Agency) with the support of NEB Lab. This engagement provided global recognition, expert evaluation, and alignment with the New European Bauhaus principles.
At the national level, the project involved Ukrainian government representatives, including the Ministry of Education, ensuring that the concept aligns with the country's educational and reconstruction priorities. Their participation added institutional credibility and increased the potential for future implementation.
At the regional and local levels, the project is designed to be adaptable to different Ukrainian contexts. The involvement of local architects, planners, and educators helped shape the school’s modular, culturally relevant, and community-focused design. By integrating recycled materials and respecting regional architectural traditions, the project directly responds to local needs.
The engagement of these diverse stakeholders strengthened the project's feasibility, visibility, and impact, ensuring that it is not only a visionary concept but also a practical solution for the sustainable reconstruction of Ukraine's educational infrastructure.
The Panno School project integrates a multidisciplinary approach, combining expertise from various fields to create a holistic, sustainable, and adaptable educational environment.
Key Disciplines Involved:
- Architecture & Urban Planning – Ukrainian and Dutch architects collaborated to design a modular, adaptable structure, reinterpreting traditional Ukrainian motifs in a modern educational setting.
- Sustainability & Environmental Science – Experts in green building, energy efficiency, and circular design contributed to the use of recycled materials, renewable energy sources, and urban rewilding.
- Education & Pedagogy – Educators and experts ensured that the school’s layout supports collaborative learning, inclusivity, and flexibility for various teaching methods.
- Engineering & Technology – Structural and mechanical engineers optimized the school's ventilation, lighting, and safety features, incorporating solar panels, green roofs, and low-energy solutions.
- Sociology & Community Engagement – Social scientists helped shape the school as a multifunctional cultural hub, ensuring accessibility, inclusivity, and integration into the community.
Interaction & Added Value:
This interdisciplinary collaboration ensured that the Panno School is not just an architectural project but a comprehensive educational ecosystem. By combining design, sustainability, and community needs, the process resulted in an innovative, culturally rooted, and future-proof model for Ukraine’s education.
Key Disciplines Involved:
- Architecture & Urban Planning – Ukrainian and Dutch architects collaborated to design a modular, adaptable structure, reinterpreting traditional Ukrainian motifs in a modern educational setting.
- Sustainability & Environmental Science – Experts in green building, energy efficiency, and circular design contributed to the use of recycled materials, renewable energy sources, and urban rewilding.
- Education & Pedagogy – Educators and experts ensured that the school’s layout supports collaborative learning, inclusivity, and flexibility for various teaching methods.
- Engineering & Technology – Structural and mechanical engineers optimized the school's ventilation, lighting, and safety features, incorporating solar panels, green roofs, and low-energy solutions.
- Sociology & Community Engagement – Social scientists helped shape the school as a multifunctional cultural hub, ensuring accessibility, inclusivity, and integration into the community.
Interaction & Added Value:
This interdisciplinary collaboration ensured that the Panno School is not just an architectural project but a comprehensive educational ecosystem. By combining design, sustainability, and community needs, the process resulted in an innovative, culturally rooted, and future-proof model for Ukraine’s education.
The Panno School challenges conventional educational architecture by introducing a modular, community-driven, and sustainable design that redefines the role of schools in Ukraine.
Key Innovations Compared to Mainstream Practices:
Adaptive Modular Design – Unlike traditional static school buildings, Panno School features flexible, modular structures that allow for phased construction, easy expansion, and adaptability to different urban and rural contexts.
Multifunctional Community Hub – Instead of serving only as an educational facility, the school functions as a cultural and social center, including spaces such as libraries, cafés, media hubs, and shelters, making it usable beyond school hours.
Sustainable & Circular Approach – The project integrates recycled materials, solar panels, green roofs, and urban rewilding, reducing CO₂ emissions and energy consumption—far beyond standard school-building sustainability measures.
Reinterpretation of Traditional Architecture – While most modern schools follow generic, globalized designs, Panno School reconnects with Ukraine’s architectural heritage by integrating local materials and traditional design motifs, creating a culturally resonant learning space.
Innovative Learning Environment – Unlike conventional classroom-based schools, the design features open, interactive spaces, where corridors become “streets”, lobbies act as public squares, and classrooms are visually connected for continuous, immersive learning.
By merging education, sustainability, culture, and community engagement, Panno School sets a new benchmark for post-war school construction, offering a resilient and forward-thinking model that can be adapted across Ukraine and beyond.
Key Innovations Compared to Mainstream Practices:
Adaptive Modular Design – Unlike traditional static school buildings, Panno School features flexible, modular structures that allow for phased construction, easy expansion, and adaptability to different urban and rural contexts.
Multifunctional Community Hub – Instead of serving only as an educational facility, the school functions as a cultural and social center, including spaces such as libraries, cafés, media hubs, and shelters, making it usable beyond school hours.
Sustainable & Circular Approach – The project integrates recycled materials, solar panels, green roofs, and urban rewilding, reducing CO₂ emissions and energy consumption—far beyond standard school-building sustainability measures.
Reinterpretation of Traditional Architecture – While most modern schools follow generic, globalized designs, Panno School reconnects with Ukraine’s architectural heritage by integrating local materials and traditional design motifs, creating a culturally resonant learning space.
Innovative Learning Environment – Unlike conventional classroom-based schools, the design features open, interactive spaces, where corridors become “streets”, lobbies act as public squares, and classrooms are visually connected for continuous, immersive learning.
By merging education, sustainability, culture, and community engagement, Panno School sets a new benchmark for post-war school construction, offering a resilient and forward-thinking model that can be adapted across Ukraine and beyond.
The Panno School follows an integrated, interdisciplinary, and participatory approach, ensuring that its design and implementation align with the needs of all actors. The methodology is structured around 4 key pillars:
1. Human-Centered Design & Participatory Planning:
- The project incorporates input from educators, students, parents, and local communities to ensure that the school meets real educational and social needs.
- Workshops, discussions, and stakeholder consultations will help shape the adaptable and inclusive design, making it a community-driven initiative.
2. Sustainable & Circular Construction:
- Local and recycled materials are used to minimize environmental impact and preserve cultural identity.
- The design prioritizes energy efficiency, integrating solar panels, green roofs, and passive ventilation to reduce operational costs and carbon footprint.
- The urban rewilding strategy ensures a 50/50 balance between built structures and natural landscapes.
3. Modular & Scalable Architecture:
- The school employs a modular, prefabricated system, allowing for phased construction based on funding availability and community growth.
- The flexible design adapts to various urban and rural settings, accommodating different student populations and community uses.
- Separate blocks with autonomous entrances ensure functionality beyond school hours, transforming the space into a cultural and social hub.
4. Educational Innovation & Spatial Learning:
- The school’s layout blurs the boundaries between classrooms and shared spaces, turning corridors into interactive streets and lobbies into community squares for social learning.
- The design encourages exploration, collaboration, and transparency, promoting an engaging and immersive educational experience.
This holistic methodology creates a inclusive, and sustainable school model that not only educates but also strengthens communities, setting a new standard for school construction in Ukraine.
1. Human-Centered Design & Participatory Planning:
- The project incorporates input from educators, students, parents, and local communities to ensure that the school meets real educational and social needs.
- Workshops, discussions, and stakeholder consultations will help shape the adaptable and inclusive design, making it a community-driven initiative.
2. Sustainable & Circular Construction:
- Local and recycled materials are used to minimize environmental impact and preserve cultural identity.
- The design prioritizes energy efficiency, integrating solar panels, green roofs, and passive ventilation to reduce operational costs and carbon footprint.
- The urban rewilding strategy ensures a 50/50 balance between built structures and natural landscapes.
3. Modular & Scalable Architecture:
- The school employs a modular, prefabricated system, allowing for phased construction based on funding availability and community growth.
- The flexible design adapts to various urban and rural settings, accommodating different student populations and community uses.
- Separate blocks with autonomous entrances ensure functionality beyond school hours, transforming the space into a cultural and social hub.
4. Educational Innovation & Spatial Learning:
- The school’s layout blurs the boundaries between classrooms and shared spaces, turning corridors into interactive streets and lobbies into community squares for social learning.
- The design encourages exploration, collaboration, and transparency, promoting an engaging and immersive educational experience.
This holistic methodology creates a inclusive, and sustainable school model that not only educates but also strengthens communities, setting a new standard for school construction in Ukraine.
The Panno School project is designed with an adaptable, scalable approach, enabling replication in diverse geographical, social, and economic contexts. Key elements ensure its high transferability:
Modular & Scalable Design:
The prefabricated system allows flexible assembly and expansion, adapting to various climates, terrains, and urban or rural settings. Schools can be built in phases, responding to available resources, student populations, and evolving needs.
Sustainable & Localized Construction:
Using recycled and locally sourced materials makes replication cost-effective and eco-friendly, supporting circular economies. The energy-efficient design—passive ventilation, green roofs, and solar panels—adapts to local climates while reducing costs.
Multi-Functional & Community-Oriented Approach:
Beyond education, the school serves as a community hub, functioning as a cultural center, co-working space, or emergency shelter. Its flexible layout accommodates vocational training, adult education, and social programs.
Inclusive & Participatory Development:
A community-driven process involving educators, parents, students, and local stakeholders ensures cultural and functional relevance. The methodology fosters bottom-up decision-making, adapting to different governance models and socio-political environments.
Educational Innovation & Spatial Learning:
Open, interactive spaces promote student-centered learning across diverse educational models. The adaptable environment supports different curricula, pedagogies, and age groups, from primary schools to vocational training centers.
By integrating sustainability, adaptability, and community engagement, the Panno School provides a replicable model for educational and social infrastructure. It offers a scalable solution for post-war reconstruction, underserved areas, and rapidly growing urban regions, setting a new benchmark for future schools worldwide.
Modular & Scalable Design:
The prefabricated system allows flexible assembly and expansion, adapting to various climates, terrains, and urban or rural settings. Schools can be built in phases, responding to available resources, student populations, and evolving needs.
Sustainable & Localized Construction:
Using recycled and locally sourced materials makes replication cost-effective and eco-friendly, supporting circular economies. The energy-efficient design—passive ventilation, green roofs, and solar panels—adapts to local climates while reducing costs.
Multi-Functional & Community-Oriented Approach:
Beyond education, the school serves as a community hub, functioning as a cultural center, co-working space, or emergency shelter. Its flexible layout accommodates vocational training, adult education, and social programs.
Inclusive & Participatory Development:
A community-driven process involving educators, parents, students, and local stakeholders ensures cultural and functional relevance. The methodology fosters bottom-up decision-making, adapting to different governance models and socio-political environments.
Educational Innovation & Spatial Learning:
Open, interactive spaces promote student-centered learning across diverse educational models. The adaptable environment supports different curricula, pedagogies, and age groups, from primary schools to vocational training centers.
By integrating sustainability, adaptability, and community engagement, the Panno School provides a replicable model for educational and social infrastructure. It offers a scalable solution for post-war reconstruction, underserved areas, and rapidly growing urban regions, setting a new benchmark for future schools worldwide.
The Panno School project responds to critical global challenges by implementing localized, scalable solutions that can be adapted to different contexts. The key issues it addresses include:
1. Climate Change & Sustainability
Challenge: Urgent need to reduce carbon footprints in construction and education.
Solution: Panno School integrates energy-efficient design, using local and recycled materials to minimize environmental impact and promote sustainable construction.
2. Education for the Future
Challenge: Many regions lack modern, flexible learning environments.
Solution: The modular, adaptable design fosters interactive, student-centered learning, supporting diverse curricula, digital integration, and lifelong learning.
3. Post-War & Crisis Reconstruction
Challenge: War, displacement, and disasters demand fast, high-quality educational infrastructure.
Solution: The prefabricated modular structure allows rapid assembly and phased construction, supporting post-conflict recovery and refugee education.
4. Social Inclusion & Community Building
Challenge: Public spaces often exclude marginalized groups and people with disabilities.
Solution: Universal accessibility principles ensure inclusivity, affordability, and community participation.
5. Urbanization & Rural Development
Challenge: Expanding cities and declining rural areas need adaptable educational spaces.
Solution: The project suits both dense urban settings and remote rural areas, bridging education gaps and supporting community resilience.
By combining sustainability, inclusivity, and adaptability, Panno School provides a local model for addressing global issues, creating resilient, forward-thinking educational spaces that empower communities and inspire change."
1. Climate Change & Sustainability
Challenge: Urgent need to reduce carbon footprints in construction and education.
Solution: Panno School integrates energy-efficient design, using local and recycled materials to minimize environmental impact and promote sustainable construction.
2. Education for the Future
Challenge: Many regions lack modern, flexible learning environments.
Solution: The modular, adaptable design fosters interactive, student-centered learning, supporting diverse curricula, digital integration, and lifelong learning.
3. Post-War & Crisis Reconstruction
Challenge: War, displacement, and disasters demand fast, high-quality educational infrastructure.
Solution: The prefabricated modular structure allows rapid assembly and phased construction, supporting post-conflict recovery and refugee education.
4. Social Inclusion & Community Building
Challenge: Public spaces often exclude marginalized groups and people with disabilities.
Solution: Universal accessibility principles ensure inclusivity, affordability, and community participation.
5. Urbanization & Rural Development
Challenge: Expanding cities and declining rural areas need adaptable educational spaces.
Solution: The project suits both dense urban settings and remote rural areas, bridging education gaps and supporting community resilience.
By combining sustainability, inclusivity, and adaptability, Panno School provides a local model for addressing global issues, creating resilient, forward-thinking educational spaces that empower communities and inspire change."
The Panno School project is committed to transitioning from concept to reality through a strategic development plan. The focus in the year following the application is on refining the design, securing partnerships, obtaining funding, and initiating pilot implementation.
1. Refinement of Architectural and Technical Solutions (Months 1-6)
Further detailed architectural and engineering development to optimize the modular system.
Integration of local building codes and sustainability standards for regulatory approval.
Collaboration with educational specialists to refine spatial design for flexible learning environments.
2. Stakeholder Engagement & Partnership Building (Ongoing)
Strengthening cooperation with government agencies, local municipalities, and NGOs.
Engaging with construction companies, material suppliers, and sustainability experts.
Conducting community discussions and workshops to gather user feedback.
3. Securing Funding & Support (Months 3-9)
Applying for grants and funding from European institutions, educational funds, and sustainable development programs.
Exploring public-private partnerships to facilitate pilot implementation.
Seeking corporate sponsorships and philanthropic contributions.
4. Pilot Implementation (Months 9-12)
Selecting a pilot location in Ukraine to construct a prototype school module.
Testing and evaluating the concept’s feasibility in real conditions.
Incorporating feedback for further refinement before full-scale rollout.
5. Promotion & Knowledge Sharing (Ongoing)
Presenting the project at conferences, exhibitions, and New European Bauhaus events.
Publishing findings and best practices to encourage replication in other regions.
Engaging media and digital platforms to increase public awareness and involvement.
Through a structured, phased approach, Panno School aims to transition from an award-winning concept to an implemented reality, setting a new standard for sustainable and inclusive education
1. Refinement of Architectural and Technical Solutions (Months 1-6)
Further detailed architectural and engineering development to optimize the modular system.
Integration of local building codes and sustainability standards for regulatory approval.
Collaboration with educational specialists to refine spatial design for flexible learning environments.
2. Stakeholder Engagement & Partnership Building (Ongoing)
Strengthening cooperation with government agencies, local municipalities, and NGOs.
Engaging with construction companies, material suppliers, and sustainability experts.
Conducting community discussions and workshops to gather user feedback.
3. Securing Funding & Support (Months 3-9)
Applying for grants and funding from European institutions, educational funds, and sustainable development programs.
Exploring public-private partnerships to facilitate pilot implementation.
Seeking corporate sponsorships and philanthropic contributions.
4. Pilot Implementation (Months 9-12)
Selecting a pilot location in Ukraine to construct a prototype school module.
Testing and evaluating the concept’s feasibility in real conditions.
Incorporating feedback for further refinement before full-scale rollout.
5. Promotion & Knowledge Sharing (Ongoing)
Presenting the project at conferences, exhibitions, and New European Bauhaus events.
Publishing findings and best practices to encourage replication in other regions.
Engaging media and digital platforms to increase public awareness and involvement.
Through a structured, phased approach, Panno School aims to transition from an award-winning concept to an implemented reality, setting a new standard for sustainable and inclusive education