Skip to main content
European Union logo
New European Bauhaus Prizes

Welcome to Gavaudun

Basic information

Project Title

Welcome to Gavaudun

Full project title

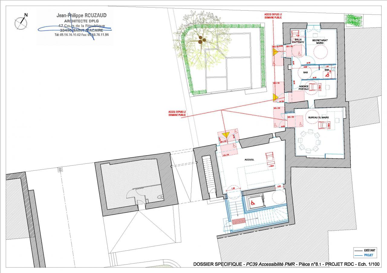
Shared space for public services and tourist reception and interpretation for the castle

Project Description

Welcome to Gavaudun is a projet which objectif puts the reception of the public, residents and tourist, back in the heart of the village, near the central square to recreat an agora.

As part of an overall renovation, respectful of the existing building, it involves bringing together all public services to make them accessible (town hall, reading point, and postal agency) and tourist reception services (castle reception and interpretation center).

Current stage development

Completed

Project Region

France

Municipality

47109: Gavaudun (FR)

EU Programme or fund

Yes

Which funds

EAFRD : European Agricultural Fund for Rural Development

Description of the project

Summary

This project emerged from a strategic reflection, a master plan, on the future of the village and its communal buildings, conducted by professionals and residents in 2022. In 2023, the building that now houses the project was put up for sale. Local officials and residents agreed to acquire this building and initiate the implementation of the master plan through this project : reinvesting in the building to create a space that centralizes public services and serves as a tourist welcome center.

In 2024, Gavaudun was awarded the "Village d’Avenir" label and began a specialized study with the National Agency for Territorial Cohesion to create a strategy to develop tourism across the Gavaudun Valley.

The project focuses on two target audiences

Residents:

The project makes all public services of the municipality accessible, including the town hall, postal agency, and reading point. This decision increases the number of users, fosters social interactions, and optimizes public resource usage.

Visitors & Excursionists:

The project relocates the castle’s visitor center to the village entrance and establishes an interpretation center that showcases the valley’s history, biodiversity, and local culture, particularly through the Occitan language. This center also highlights archaeological artifacts and intangible heritage, making the valley's rich cultural and historical elements visible and accessible to visitors. The Gavaudun Valley, classified as Faunistically and Floristically Sensitive Ecological Zone and an Outstanding Natural Area, provides a unique backdrop for the project. These two spaces complement the castle site and the valley, offering visitors a comprehensive, full-day excursion in Gavaudun.

Beyond these offerings, the project will enhance local and communal engagement while stimulating economic development in the valley. By expanding the tourism offer—both in visitor numbers and seasonal activity—it aims to preserve and share history and cultural heritage.

Key objectives for sustainability

The choice to renovate rather than construct a new building, with minimal impact on the existing structure, helps conserve resources, soil, and materials. For the layout of different spaces, the design team and the commune of Gavaudun have opted for arrangements, using natural materials that require minimal maintenance. The entire project will be equipped with low-consumption technology, and a comprehensive energy renovation is an integral part of the plan.

In the interpretation center, the surrounding natural environment will have a dedicated space. This area will raise awareness of the aquatic and terrestrial fauna and flora of the Gavaudun Valley, promoting its protection.

Bringing together public services and tourist reception in the same building helps limit space consumption and combat building vacancy. Incorporating the time variable optimizes the use of public facilities. This shared space also increases opportunities for social interaction—both among residents, through the three public services (town hall, post office, and library point), and between residents and tourists.

Welcome to Gavaudun, with its one-day tourism experience in the valley, is also a key driver of development for the entire region, building on existing assets.

This project is exemplary in several ways.
Choosing to renovate and adapt old buildings serves as a compelling example of the vast potential of heritage architecture and the various uses it can accommodate.
This project also embodies innovation, particularly in its replicable approach to shared spaces and its ability to cater to a diverse range of audiences.
Finally, the project fosters environmental awareness by integrating closely with its natural surroundings. It offers an opportunity to recognize the extraordinary within the valley’s landscape.

Key objectives for aesthetics and quality

It relies on a discreet, precise, and respectful architectural approach that revitalizes a vacant building and brings life back to spaces central to village life—the main square and the entrance archway—while adapting the existing heritage to contemporary needs. The entire village is protected by a historic monument zoning, ensuring the preservation of its architectural heritage. The building housing the project is largely composed of the original castle rampart, with many defensive features still visible, including the exterior defense wall, the fortified village entrance, medieval staircases, a well, and medieval windows.

By bringing together two target audiences within the same village space, the project fosters social interactions and exchanges, offering an experience centered on community life and encounters. The low-impact architecture, set within a protected historical context, serves as an exemplary model of how built heritage can be adapted without compromising its historical integrity and cultural value.

In parallel with the interpretation center, the opportunity to experience the entire site through exploration and visits also carries an exemplary character, adding a physical dimension to the experience and making historical and heritage sites more engaging for a new audience.

The project creates connections between different eras, bridging the past and present through a thoughtful adaptation of heritage spaces.

Key objectives for inclusion

From the outset, the project has been designed inclusively, bringing together elected officials, technical experts, residents, and users. It is also built around accessibility and incorporates affordable offerings.

One of its primary objectives is to address the current lack of accessibility—both to public services and to the discovery of Gavaudun. The site’s rugged topography makes it difficult to access today, but the project ensures that Gavaudun will be accessible to all through the contextualization of the site, including landscape interpretation and the revelation of hidden heritage treasures. The project ensures that everyone can access public services under good conditions and explore Gavaudun by any means available.

Additionally, the development of the tourism offer enables a full-day excursion that remains accessible to a local audience, including those with limited financial means.

Its exemplary nature lies in its approach : designing collaboratively with all stakeholders and ensuring accessibility for all by adapting both media and spaces.

How Citizens benefit

One of the key aspects of the overall strategic reflection that led to the creation of the master plan was its foundation in a fully participatory process 4 yours ago. Citizens—both residents and users—were actively involved in establishing the initial diagnosis, selecting key directions, and developing action plans.

The community also validated in annual public meeting, the transition from planning to implementation by approving the launch of the Welcome to Gavaudun project, along with its location and programming.

These various stages of participation have fostered recognition of local knowledge, ensured long-term community engagement, and reinforced the desire to preserve and pass on local culture—whether historical, architectural, urban, or intangible, particularly through the regional language.

The project will sustain this momentum, further encouraging citizen involvement in shaping the life, identity, and future of their village.

The decision to place culture at the heart of everyday public services aims to break down barriers often associated with traditional cultural institutions. By integrating culture into familiar public spaces, the project makes it more accessible, encouraging a broader and more diverse audience to engage with it.

Innovative character

The project stands out for its innovative approach, breaking away from traditional heritage promotion and territorial development strategies. This initiative introduces a model that fully involves residents, optimizes space usage, rethinks tourist reception, and embraces a discreet yet adaptive architectural approach.
One of the project’s key innovations is the inclusion of residents from the beginning of the master plan's development. By integrating this co-creation into its governance, the project secured stronger political support and collective buy-in, significantly increasing its long-term chances of success.
Unlike traditional developments where each function has its own dedicated space, the project innovates by incorporating the time variable into space management. Spaces are shared according to different timeframes, optimizing resources while preventing unnecessary land artificialization. This choice improving the efficiency of both public and cultural services.
Another aspect is the separation of the castle’s visitor center from the site itself. By situating the visitor reception area in the village, the project encourages tourists to explore the entire area, thus enhancing the visibility of the village’s broader historical and cultural landscape. This approach expands the tourist experience, fostering deeper engagement with local heritage.
The project stands out for its minimalist architectural approach, to reveal the existing one. The intervention remains almost invisible, carefully respecting the character of the historic buildings while adapting them to modern needs.
This project introduces an innovative and replicable model for other regions facing similar challenges in heritage preservation, revitalization, and promotion. By combining citizen participation, resource optimization, a reimagined visitor experience, and a respectful architectural approach, Welcome to Gavaudun propose a new way of thinking about rural heritage development.

Disciplines/knowledge reflected

The project stands at the crossroads of multiple disciplines related to the diversity and promotion of local heritage, including history, architecture, biodiversity, geology, archaeology, tourism, regional language, and local culture.

As part of the first phase—the development of the master plan for the future of the entire village—these disciplines and areas of expertise were brought together during the diagnostic phase. This collaboration highlighted key themes and created meaningful connections between disciplines in the context of tourism development.

Within the project, particularly in the interpretation center, a multidisciplinary scientific committee was established, bringing together all the fields involved in the diagnostic phase and the master plan.

The interpretation center, as a mediation tool, will continue this interdisciplinary approach by offering a single space to understand the territory and its many dimensions, while also allowing for hands-on exploration. This holistic perspective is one of the project's key strengths—integrating multiple disciplines to provide a comprehensive understanding of the elements that shape a place and its local identity.

Another significant asset is the long-term commitment to maintaining the multidisciplinary scientific committee. This ensures the continuity and coherence of the interpretation center, fostering an evolving and well-grounded approach to heritage interpretation. This ongoing involvement will also help preserve the relevance of the items displayed and explained within the center, ensuring that the exhibits and interpretations remain up-to-date and aligned with evolving knowledge and visitor expectations.

Methodology used

The Welcome to Gavaudun project is built upon an innovative approach that integrates multiple scales, partnerships, disciplines, and target audiences. This methodology ensures a comprehensive and inclusive vision that extends beyond the physical renovation of a building to impact the broader territory and its stakeholders.
While the physical project takes shape at the scale of a single building, its design process, location choice, and intended uses incorporate multiple scales : the village, as a revitalized social and cultural hub, the valley, ensuring a broader territorial coherence, the tourist circuits, connecting key sites within the region, and the watersheds and landscapes, recognizing the ecological and environmental dimensions. This multi-scalar perspective allows the project to function as a strategic link between different territorial levels, ensuring long-term sustainability and integration.
This initiative is the result of a broad collaborative effort, bringing together a wide range of stakeholders who participated in every stage of the project : residents, elected officials, scientists and experts, turisme profesionnals, institutions and funders, providing structural and financial support. The project ensures shared ownership and long-term viability.
The project is centered on the diverse heritage of Gavaudun and its valley, which encompasses : historical and architectural heritage, urban heritage, natural heritage, and intangible heritage, including the regional language and local traditions. This intersection of disciplines enhances the project's richness, providing a comprehensive and layered understanding of the site and its significance.
By bringing together two groups (residents and visitors) in a shared space, the project fosters social interactions, strengthens local identity, and enriches the visitor experience, ensuring that the revitalized site serves both as a living place for the community and an attractive destination for tourism.

How stakeholders are engaged

All stakeholders were involved at every stage of the project through an iterative process, without bilateral meetings, ensuring that contributions from all actors were considered equally.
Final decisions remained the responsibility of the municipal council, guided by the insights gathered from these interactions. Each stakeholder contributed to the project according to their expertise :

• Residents provided local knowledge and a deep understanding of everyday uses and needs.
• Municipal officials synthesized and communicated the various projects and resources of the commune to ensure coherence. They also facilitated access to the physical resources needed for the interpretation center.
• The scientific committee, composed of specialists from various fields, contextualized the project within a broader geographical and historical framework.
• Tourism professionals contributed their knowledge of evolving tourism practices, the needs of tourists, and identified gaps in the territory’s tourism development, ensuring the project meets current and future demand.
• Technical experts, drawn from multiple territorial levels—including the Communauté de Communes des bastides en Haut Agenais Périgord, the Syndicat Mixte d'Aménagement de la Vallée du Lot, the Lot-et-Garonne Department, the Nouvelle-Aquitaine Region, and the Direction Départementale des Territoires—as well as advisory and management organizations (Conseil d’Architecture d’Urbanisme et d’Environnement de Lot-et-Garonne, Unité Départementale de l’Architecture et du Patrimoine, Direction Régionale de l’Environnement de l’Aménagement et du Logement), helped integrate the project within broader territorial strategies while ensuring compliance with relevant regulations.
This collaborative approach fostered a shared vision, aligning local insights with regional and national planning frameworks.

Global challenges

The Welcome to Gavaudun project embodies frugal design principles, emphasizing the sustainable use of resources—both material and energy—while ensuring the built environment is adaptable to future needs. By optimizing existing infrastructure, it minimizes waste and avoids unnecessary construction, offering a model for how communities can meet their needs while preserving resources. This approach is particularly relevant in a world facing resource scarcity. The project also raises awareness about biodiversity and the importance of protecting local ecosystems, encouraging both locals and visitors to value and conserve the valley’s natural heritage.
A core objective is creating spaces that foster social connections and enhance community life. Revitalizing the village center with flexible spaces that serve multiple functions nurtures social cohesion and encourages interaction among diverse groups. In a world of increasing social isolation, especially in rural areas, this initiative fosters meaningful relationships and mutual understanding. The project ensures equal access to public services (e.g., cultural, postal) and tourism opportunities for all, addressing social inequality and promoting a more inclusive society. It also ensures that tourism benefits everyone by supporting local culture and providing economic opportunities.
The project emphasizes high aesthetic value and quality experiences, offering accessible spaces and tailored activities. Visitors can explore historical sites via a combined ticket for the castle and interpretation center, with a walk through the village and the valley. The development of the village is carefully considered, focusing on integrating historical features with modern needs.
The Welcome to Gavaudun initiative addresses pressing global challenges through locally-tailored, sustainable solutions, offering a blueprint for how local actions can contribute to broader global goals.

Learning transferred to other parties

The Welcome to Gavaudun project offers a range of innovative elements that can be replicated or adapted. These elements contribute to broader lessons in heritage preservation, community engagement, and sustainable tourism development.
A standout feature of the initiative is the active involvement of residents in developing a tourism project. By prioritizing the transmission of local culture and heritage, the project shows how communities can directly contribute to preserving and promoting their traditions. This participatory approach is a valuable model for areas where tourism is expanding, empowering residents as guardians of their heritage.
Another key element is the integration of a regional language in the mediation processes. This approach enhances the visitor experience by connecting them to the cultural identity of the region. Including intangible heritage like language can be replicated in other regions where local languages are at risk of disappearing or underrepresented.
The concept of space-sharing, incorporating time as a variable, is also replicable. By allowing spaces to serve multiple purposes at different times, the project optimizes public facilities, reduces the need for construction, and ensures efficient resource use. This methodology can be applied in other communities to maximize public space utility while minimizing costs and environmental impact.
The project also emphasizes mutualizing spaces for different groups—residents, visitors, and public service users—fostering social cohesion and strengthening local identity. This concept can be adapted to promote inclusivity and community engagement in other settings.
Lastly, the project demonstrates the value of sustainable tourism development based on existing local resources—built environment, natural features, and intangible heritage. It shows that tourism can thrive without overwhelming infrastructure or harming local quality of life, making it a replicable model for responsible tourism.

Next steps

The Welcome to Gavaudun project integrates sustainability at its core by balancing environmental responsibility, cultural preservation, and community engagement. Through the optimized use of existing buildings, it minimizes resource consumption while honoring architectural heritage. Simultaneously, awareness initiatives foster a deep appreciation for local biodiversity, encouraging responsible stewardship of the ecosystem. Finally, by promoting the Occitan language and culture through dedicated mediation tools, the project ensures the transmission of this invaluable heritage to future generations. <br />
<br />
The project places inclusion at its heart by making culture, public services, and heritage accessible to all. By embedding cultural experiences into everyday public spaces, it ensures that culture is a shared and lived experience rather than a privilege. Strengthening access to essential public services fosters equity, particularly in rural areas. Additionally, by encouraging meaningful interactions between residents, tourists, and excursionists, the project promotes a sustainable tourism model that nurtures both the local economy and community ties.<br />
<br />
The project places a strong emphasis on aesthetics and the quality of experience, ensuring that every aspect is thoughtfully designed to be both accessible and enriching. Additionally, the village’s development follows a harmonious approach, preserving and enhancing its architectural and natural beauty. Through these carefully considered elements, the project creates a refined and meaningful experience that respects the past while embracing the future.<br />
<br />
In conclusion, the project embodies a comprehensive vision for sustainable, inclusive, and aesthetically rich development, blending environmental, cultural, and social values to create a lasting, positive impact for both the community and visitors, while preserving and enhancing Gavaudun’s heritage for future generations.

Infrastructure or public space

No

Political support

Yes

Monetary value awarded

No

Gallery