Skip to main content
European Union logo
New European Bauhaus Prizes

Vetto Social Club - Italian Apennines

Basic information

Project Title

Vetto Social Club - Italian Apennines

Full project title

A mountain pub for young musicians with positive social, environmental and cultural impact

Project Description

The Vetto Social Club is a music pub, co-working hub and rehearsal studio nested on the Italian Apenninese near Reggio Emilia. Kick-started by a community engagement co-creation platform and boosted by a local community cooperative, the project due to complete on site in Summer 2025 will increase resilience against hydrogeological risk and climate change, increase local engagement through the coordination of the community cooperative and support cultural regeneration in remote mountain areas.

Current stage development

Prototype level

Project Region

Italy

Municipality

035042: Vetto (IT)

EU Programme or fund

No

Description of the project

Summary

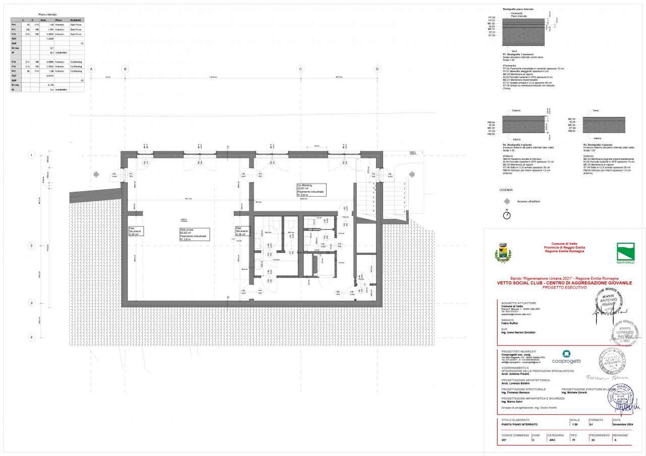
The Vetto Social Club is a community-designed, community-led and community-run mountain pub for live music, co-working and cultural events. Following on from Vetto-RE - a local stakeholder co-creative process - the Vetto Social Club has been strategically designed to remove an un-sustainable, over-scaled and structurally risky commercial building and to replace it with a new ecologically positive landscaped area with advanced design for hydrogeological risk mitigation, fruit trees, opening up a new view over the beautiful Enza river valley and gifting the local community with a multi purpose public asset, a new cross-laminated timber building which reinforces and stabilises the ground through a new reinforced concrete foundation and provides space for a co-working space, a kitchen suitable for cooking courses, a music rehearsal room, a live music performance area, a public portico, a new terrace overlooking the mountain village and a generous photovoltaic array to contribute to the building GHG neutrality. The Vetto Social Club is the latest - but not the last - community led initiative for the Municipality of Vetto able to secure political support, citizens activation and funding to regenerate the local area providing services for young families (public library), elderly citizens (Casa Protetta Maira Spaggiari Boni), fragile individuals (services by Dimora d'Abramo), tourists (cycle tourism services by Community Cooperative Il Pontaggio) and young people (Vetto Social Club). Next on site will be the new public sports hall, which will be used by students of all ages and local community for sports, yoga, dance and it will double up as open air stage for music and theatre events during the busy summer schedule.

Key objectives for sustainability

The Vetto Social Club is an examplary case of urban regeneration in rural areas due to its capacity to repurpose a derelict, overscaled, unsustainable building into a thriving hub for multiple community-focused and community-run activities. During the day the Vetto Social Club will work as a self-managed co-working hub over two storeys with open plan collective office space, meeting rooms and presentation areas. After 7pm, when local bars will be closed for the day, the Vetto Social Club will managed by the local Cooperative Community il Pontaccio (or other group to be confirmed). The co-working space will turn into a community pub with kitchen serving local produce and products enriched by a programme of live music and cultural events offering an opportunity for young talents in a remote mountain area to build confidence, audience and a career in the arts & culture. Beyond music the Vetto Social Club will host dedicated events for cooking classes - targeting meat free and climate positive cuisine, book launches, poetry, slow travel and mountain culture initiatives. In terms of material impact the Vetto Social Club is entirely fabricated in timber from the ground up also including circular economy self-assembled furniture. The Vetto Social Club introduces a circular economy paradigm to timber down-cycling by which structure can be down-cycled to interior partitions, interior partitions to furniture, furniture to lighting etc... Most of the transformation will take place in design workshops led by local social enterprises such as Girotondo Atelier. As much as the building has been designed to close the loop from a material level, the landscape design has been developed to regenerate the local area. Thousands of square meters of soils have been de-sealed and will be re-landscaped with climate resilient species contributing to habitat enhancement, ecological services and better connection between human society and the biosphere.

Key objectives for aesthetics and quality

The Vetto Social Club introduces to the local village an essential contemporary architectural language, one which will connects the local area with the wider community of European mountain areas where architects and designers have long experimented innovative paradigms to inject new life into local vernacular traditions. The design features pine timber both internally and externally: exposed cross laminated panels, walls and beams internally and blackened pine boards externally. Different types of wood, mainly poplar and birch, will be used internally for furniture and fixtures. The simplicity and clarity of proportions combined with the honesty and frugality of materials allows the building architecture to creates an iconic yet essential statement for a small yet crucial community focused public building. The local community will be united by the connection with the valley's heritage of wood economy whilst the use of natural light will result into a permeable and welcoming public space. All door-windows open towards the public portico and towards the new terrace overlooking the valley. This makes the building both accessible and easily understandable with bespoke design applied at various scales to connect the exterior landscaped area with the interior design. Natural lighting and views towards the National Park of Appennino Tosco Emiliano will provide a strong connection between human construction and natural environment. Last but not least, timber will be celebrate due to its flexibility and adaptability through the organisation of public workshops where part of the interior furniture will be community-designed and built. The Vetto Social Club delivers contemporary architecture through the activation of the local community, which has been involved in the design process since the Vetto-Re Stakeholder Engagement project in 2021 and later on during the Vetto Corner public space music activation during summer 2024.

Key objectives for inclusion

Four years on from the participatory planning project Vetto-Re, the co-created, community-led, vision still inspire public investment and urban regeneration projects. During Vetto-Re (2021) local community mapped the needs and potentials of the local area, highlighting key objectives for young people, sustainable tourism and sports & public events infrastructure. Following on from Vetto-Re Roadmap, the Vetto Social Club was defined and submitted for Regional Funding. It was awarded first price in Emilia Romagna. Still leveraging the vision of Vetto-Re, the Municipality has also submitted a funding application for a community-led and run hostel - Albergo Centrale (2025) and secured funding for the new public sports hall, which will double as open-air theatre during the summer months. Community inclusion is not simply a measure of good public policy implementation in remote mountain areas but rather it constitutes an essential part of any public project feasibility. Only when the community acts together the fragility of low density and complex logistics can be overcome. The Vetto Social Club is inclusive in its vision, it is inclusive of the requirements for fellow village businesses in its programme providing space for self-catered co-working during the working hours of other village bars and cafes only to turn into a live music pub when the other businesses are shut for the day. The live music pub will be community-run by Il Pontaccio, the local Community Cooperative body - or other similar groups. The building is inclusive and accessible both internally on its two storeys and externally through level thresholds and ample landscapes areas with multiple terraces overlooking the valley. Tthe design features natural surfaces and treatments to create a compelling experience also for touch and smell. Vetto Social Club will host cooking classes which will bring close people of various ethnic backgrounds, the new hope for mountain area demographics in Italy.

How Citizens benefit

The Vetto Social Club has been envisioned during a participatory planning process, the Vetto-re di Idee - Towards a future of Sustainability and Hospitality. Vetto-re has engaged with the local community developing a map of urban regeneration opportunities. The process has taken over 10 months managing to continue also through the C-19 pandemic engaging with over 200 people, more than 10% of local resident population from students from the local schools to business owners to citizens and organisations. Vetto-re di Idee has categorised urban regeneration opportunities according to public buildings, private buildings, public spaces, green areas, hospitality venues, space for young people and public community assets such as community cooperatives. The Vetto Social Club emerged as a potential opportunity to acquire an empty and underused private commercial building right at the entrance of the small building. The original concept was to re-use the existing building. Further inspection has ruled out such opportunity due to its poor structural quality and safety and environmental risk of keeping the building up. The Municiplaity has further developed the urban regeneration concept whilst keeping the local community informed through public events both indoor in the town hall, outdoor in the town hall gardens and digitally using the Vetto Social Club social media channel. During spring 2025, ahead of the Vetto Social Club opening, the local community responsible for running the new public assets will be following a skill development course to maximise the potential for positive impact of the new community hub. The course will comprise hospitality management best practice, culture events management as well as digital marketing and sustainable tourism principles. Beyond the mere physical value of the built asset, the Vetto Social Club has proven an opportunity for local activation and up-skilling and regional marketing and communication.

Innovative character

Generally speaking public investment in the field of young people engagement programmes tend to focus on the management of anti social behaviours, marginal groups or fragile individuals. The Vetto Social Club sets itself apart from the crowd by focusing on the beauty of arts, architecture and culture thus creating a beacon of innovation in an area too often forgotten by investment due to the weak demographic representation. The approached is inspired by European bottom up urban regeneration processes such as those emerging organically before gentrification takes place around the first peripheral ribbon around large metropolitan hubs. East London, and more specifically the cultural vivacity of the Borough have proven an excellent reference to track how music and arts may help the local young people community define their own identity. The mountain areas on the Italian Apennines certainly do not benefit from the cultural diversity of East London. They do possess however a rich mixture of local traditions and growing representation of new cultural paradigm such as those brought along by the new mountain inhabitants mainly non-europeans workers with children born in Italy. The convergence of the various ethnic backgrounds allow for an excitingly varied melting pot of cultural references and future social paradigms yet to be defined. It is indeed the notion of social diversity as the main engine of cultural evolution that sets apart Vetto Social Club from similar public investments in the Apennines and Alps regions. Where most policies see a potential problem in need of a solution, the Vetto Socia Club sees young people from different background as a certain value waiting to be celebrated, supported and amplified.

Disciplines/knowledge reflected

The Vetto Social Club drew from a vast network of specialists. The participatory planning event Vetto-re di Idee was facilitated by expert in Community Engagement and Urban Regeneration. The coordination with the overall regional development strategy SNAI / STAMI La Montagna del Latte involved local development specialists such as economists, planners, civil servants and politicians. The submission of the design, which resulted in the first place in the Bando Rigenerazione Urbana Emilia Romagna 2023, involved architects, landscape designers and cost managers. The preparation of technical design for public tender involved geological engineers, geologists, structural engineers, services engineers, timber construction specialists and architects. All along the municipality has been following the process and communicating with the local community through the work of specialist social studies professionals, psychologists and communication specialists. The pivotal coordination team has been the architects, some of whom have been involved in the process from its beginning. Architecture has proven to be the mos ideal discipline able to coordinate technical and humanistic perspective towards the management of complexity and positive impact for the overall scheme.

Methodology used

La Montagna del Latte + Montagna dei Saperi and relies on the inter-municipal coordination by the Unione Montana dei Comuni Montani dell'Appennino Reggiano made of 8 different municipalities. The methodology of STAMI follows 4 key objectives: (1) investing on young talents, (2) Building communities, (3) Regenerating a welcoming region and (4) push sustainability as development driver. The four objectives reflect onto specific projects: Apennine Lab 2.0 and the Distributed Hub for Regional Innovation. The Vetto Social Club is actually the first new building manifesting the principles of the STAMI Strategy by the Unione Montana. The methodology benefits from a dual focus in constant self regulation. At regional level, the coordination by Unione Montana increases the network effect of the investment at regional level ensuring good coordination with other pivotal institutions in the area such as the Music Conservatorium Peri-Merulo from Reggio Emilia / Castelnovo ne Monti and the Presidenza del Plesso Scolastico dell'Appennino Reggiano (school coordination office). At local level, the ongoing communication and engagement with the local community allows the municipality to keep up to date with the local sentiment making the most of bottom-up creativity and newly available resources. The bottom up complements the top down allowing for a strong sense of local community empowerment and regional developed coordination.

How stakeholders are engaged

Local stakeholders may be represented by the local village community. They have been engaged with and consulted with since the participatory planning process in 2021 and further engaged through the communication activities in summer 2024. At regional level the stakeholder may be represented by urban regeneration specialists from Regione Emilia Romagna engaged with during the preparation events ahead of the Bando Rigenerazione Urbana 2023 Regione Emilia Romagna in Bologna through a series of round table and open discussions on the urban regeneration strategy. At national level the stakeholders may be represented by the local authorities belonging to UNCEM Unione Nazionale Comunità e Comuni Montani and YOUZ! Programme. These have been engaged with multiple times during the SNAI and STAMI open events given the fact that Appennino Reggiano is one of the Pilot Areas for the Green Community Programme organised by Italian Central Government. At European level the engagement will be pursued post opening through the network of NEB.

Global challenges

The main global challenge is the advent of technology and the implosion of public space, chipped away from the saturating offer of streaming services aimed at privatising leisure time in a binge consumption of streamed content. The local is quintessentially local. Only by investing in the quality of physical space, only by creating beautiful and memorable experiences surrounded by fellow human beings communities stands a chance of re-building a healthy humus of inter-personal interaction and socially positive habits. People, public space, food, arts and culture can, when converging towards beautiful experiences, offer a more desirable alternative to the isolation of the individual and the implosion of public life. Technology in itself is not necessarily an agent for evil, it is important though that the application of technology is underpinned by healthy values. Public music performance requires an element of technological awareness both in the execution of the piece and, possibly even more so, in the practice before hand. As for the music part of the Vetto Social Club, also the co-working aspect needs technology, adequately implemented for digital nomads, sole traders and startups to be able to connect to a digital global market contributing to sustainable, innovative growth. Local activities can contribute to a regenerative evolution of modernity with a newly found balance between economic growth, social justice and environmental balance. Such evolution requires technology but cannot be driven by it. The local solution proposed by the Vetto Social Club is community planned, community designed, community developed and community run physical space for arts and culture. The global challenge is the isolation of individuals and the loss of appeal of the public space. The key is beauty and the Vetto Social Club, from the architectural design to food to cultural programme is fully committed to sustainable, inclusive beauty.

Learning transferred to other parties

The creation of physical spaces for communities to bond and grow is of paramount importance in a period of ever increasing isolation and individualism made worse by a yet to be balanced relationship with technology. The creation of space of community and culture may be underpinned by EU-wide coordination, for example by leveraging an ERASMUS-type musician travel scheme allowing young musicians to travel, learn, perform and grow visiting multiple public community led places such as the Vetto Social Club. So, not only the Vetto Social Club may be replicated elsewhere in Europe but each new place may benefit from previous ones thus creating a network of physical places created by and run by local communities all connected through an international web of touring artists carrying along with them the enrichment of local experience and pan-European values. At a shorter range, the idea of a network of local music and cultural venues may be overlapped onto the map of famous trails and hiking networks. This may contribute to a slow travel sustainable tourism model that could bolt on together sport, tourism and culture.

Next steps

The development of the Vetto Social Club is currently at building site phase. In preparation for opening due in Summer 2025, during Summer 2024 all through Autumn of the same year, the Municipality of Vetto organised a series of graphic design and music workshops with young people from Vetto and neighbouring villages and towns. The engagement programme has resulted in multiple busker-style music performances which have enriched the summer nights of Vetto, a popular tourist destination. The municipality has also created a social media channel on Instagram which is being used to share the progress on site with the growing community of supporters of the Vetto Social Club. Last but not least, in spring 2025 the skill development programme for the future managers of the Vetto Social Club - as planned in the urban regeneration scheme awarded first prize by the Regione Emilia Romagna as part of the Bando Rigenerazione Urbana 2023 - will empower the future management team of Vetto Social Club with key skills in marketing, communication, hospitality management and cultural events production. Once built, the architectural project will be presented for multiple design awards in order to maximise the visibility of the public investment. Once started, the live music programme will create partnerships and collaborations with local popular music festival both in Emilia Romagna and Tuscany. In terms of sustainability the new building will be near zero CO2 production with PV arrays, heat pumps and robust thermal efficiency with no combustion of fossil fuels In terms of beauty the project has adopted a neat and essential contemporary mountain timber architecture language which will contribute to the values of innovation and sustainability of the new public building and programme. In terms of inclusivity, the project has started from the community participatory planning process engaging both with local community as well as regional and national institutions althroughout its process.

Infrastructure or public space

Yes

Political support

Yes

Monetary value awarded

No

Gallery