Transformative reconstruction
Basic information
Project Title
Transformative reconstruction
Full project title
Crafting Falerone's earthquake-resistant future
Category
Regaining a sense of belonging
Project Description
How to live with earthquakes? The project focuses on the future of Falerone, a medieval Italian town damaged by a series of tragic seismic shakes in 2016. The strategy for resilient conservation and its gradual reinhabitation has been developed in close dialogue with the local community, authorities, architects and engineers. A new, experimental crafts school is proposed to allow local craftsmen to pass their skills to new generations and to stimulate local economy based on sustainable know-how.
Geographical Scope
Local
Project Region
Marche region / Falerone, Italy
Urban or rural issues
It addresses urban-rural linkages
Physical or other transformations
It refers to a physical transformation of the built environment (hard investment)
EU Programme or fund
No
Description of the project
Summary
Falerone, an Italian town located in the central region of Marche, suffered heavily from a series of earthquakes which hit Italy in 2016-2017. Its problems, however, started long before the recent natural disaster. From gradual depopulation, through economic decline to loss of artisanal traditions, Falerone can serve as a case study of the relationship of earthquakes to other signs of decline. There is a pressing need to help rural communities regain their self-confidence, and this research & design project explores whether external models can serve as an inspiration for Falerone. Yet one ought to remain cautious of any strategies imposed from the outside — the process of rural revival should be conducted through careful rediscovery of local heritage, with anthropologic sensitivity, in order to connect any new architecture to its age-old context. The unique local heritage forms the basis for speculations about the years ahead. Could a new crafts school be established in Falerone, allowing local craftsmen to pass their skills to new generations, stimulate local economy (starting at the micro level) and generate touristic activities grounded in local culture? If so, what skills are needed there? Readapting the damaged medieval San Francesco monastery, the new educational institution is proposed as an experimental hotbed to develop earthquake-resistant construction techniques. To facilitate this, the architect has to move beyond the boundaries of conventional practice and become not just a designer, but a civic leader — a mediator between the citizens and authorities, a catalyst for moving projects from concept to completion. In a context as complex and delicate as this one, the architect has to find ways of engaging communities in the process of reconstruction — physical reconstruction of urban fabric, but also symbolic reconstruction of place identity.
Key objectives for sustainability
Adaptive reuse forms the basis of not just architectural strategy, but also environmental design strategy behind this project. Retrofitting the historic structure will give it a new lease of life and recover the monastery for the local community. Most probably, there had been times in its history when the building was depopulated, repaired, and populated again. The most sensible and sustainable way forward is to continue this cycle — and keep mending its fabric. The design can be realized with locally available natural materials, primarily timber, bricks and straw.
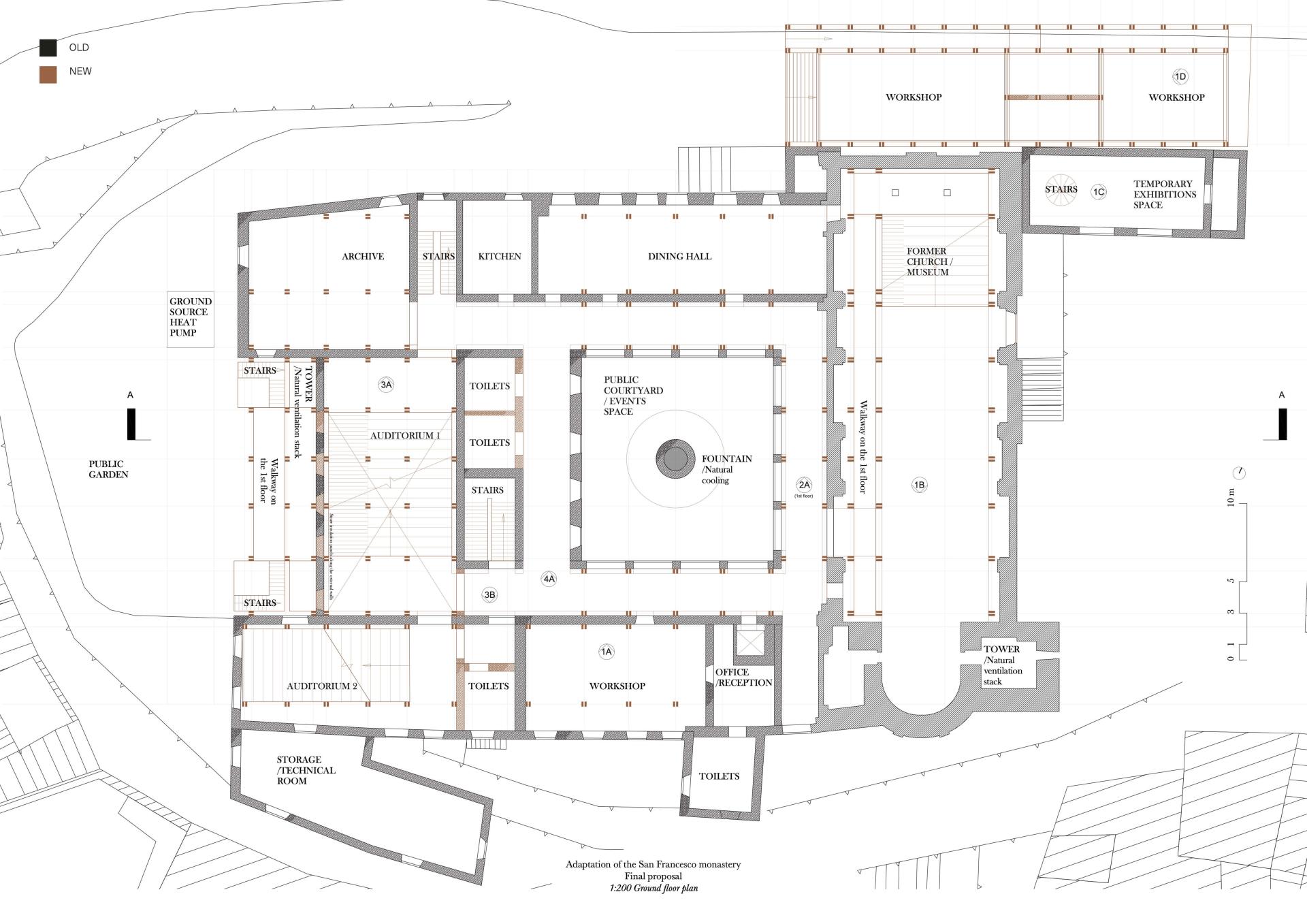
The intervention would be implemented using sustainable strategies and reusing much of the original fabric, whenever possible. New layers of straw insulation panels would be inserted between the existing walls to form a fully insulated whole and increase the standard of thermal performance. Daylight would filter into the interior through the junction between the existing and added structures, emphasizing the junction between the old fabric and new insertions. A ground source heat pump and solar panels on the south-facing pitched roof would provide energy. The building would be naturally ventilated using ventilation stack effects to the maximum. In this way, the existing and found structures on the site would be retained to their greatest extents.
Importantly, the project responds to three themes of the New European Bauhaus which supports such local initiatives, paving a way for future development and funding opportunities: Renovation of existing buildings and public spaces in a spirit of circularity and carbon neutrality / Preservation and transformation of cultural heritage / Regeneration of urban or rural spaces.
The intervention would be implemented using sustainable strategies and reusing much of the original fabric, whenever possible. New layers of straw insulation panels would be inserted between the existing walls to form a fully insulated whole and increase the standard of thermal performance. Daylight would filter into the interior through the junction between the existing and added structures, emphasizing the junction between the old fabric and new insertions. A ground source heat pump and solar panels on the south-facing pitched roof would provide energy. The building would be naturally ventilated using ventilation stack effects to the maximum. In this way, the existing and found structures on the site would be retained to their greatest extents.
Importantly, the project responds to three themes of the New European Bauhaus which supports such local initiatives, paving a way for future development and funding opportunities: Renovation of existing buildings and public spaces in a spirit of circularity and carbon neutrality / Preservation and transformation of cultural heritage / Regeneration of urban or rural spaces.
Key objectives for aesthetics and quality
How to insert new fabric into the old — respecting layers of history, of which the earthquakes are an inherent part? Perhaps some of the scars and cracks should be preserved to serve as a poignant reminder of the past, becoming a living memorial? And perhaps there is a potential to develop a new language of additive, ‘surgical’ architecture, where the contemporary timber frames serve a protective function, supporting and bracing the damaged medieval walls — but at the same time can be inhabited, framing new uses and reprogramming internal spaces. Reflecting on reconstruction of Merola tower, a highly accomplished example of 21st-century seismic architecture, Phillips noted that “it is at once a restoration and a reinvention, adding an entirely new character to this local monument” (The Architectural Review, November 2020). There is a similar ambition behind this project, which additionally aims to explore the tension between low-tech and hi-tech. It builds on a potential to create a modular timber frame system, easily modified, replicated and recycled, with various elements prefabricated and quickly assembled on site.
With the new structures woven into the ancient fabric and extending it, reconfiguring internal spaces, binding the damaged fragments but leaving the whole ‘incomplete’ and open for future adaptations, Falerone’s craft school would clearly manifest its new function and identity, becoming an ever-evolving work in progress. According to Holtorf, “cultural heritage management [should] be about managing change in an effort to protect value and significance rather than about preventing change in a struggle to preserve the existing material heritage” (International Journal of Heritage Studies, 21:4, pp. 405-421). This project therefore treats the reconstruction as a process rather than a product — hoping that architecture can initiate a deeper societal change, helping traumatised communities discover new meanings and values in their heritage.
With the new structures woven into the ancient fabric and extending it, reconfiguring internal spaces, binding the damaged fragments but leaving the whole ‘incomplete’ and open for future adaptations, Falerone’s craft school would clearly manifest its new function and identity, becoming an ever-evolving work in progress. According to Holtorf, “cultural heritage management [should] be about managing change in an effort to protect value and significance rather than about preventing change in a struggle to preserve the existing material heritage” (International Journal of Heritage Studies, 21:4, pp. 405-421). This project therefore treats the reconstruction as a process rather than a product — hoping that architecture can initiate a deeper societal change, helping traumatised communities discover new meanings and values in their heritage.
Key objectives for inclusion
While it remains clear that reconstruction of monuments and architectural symbols linked to the collective memory of the place is crucial, one first has to ensure safety of the town, taking into account all hydrogeological and territorial conditions. Equally essential for reconstruction, and in some ways complementary to the theme of security, is to ask where daily life can start to flow again, creating opportunities to reconcile communities with those territories that have been a source of suffering. Living with the trauma, transforming it into an opportunity to restart, should be the starting point of any new urban plan in this delicate context. At the Triennale di Milano, Stefano Boeri rightly emphasized the importance of “a unitary and shared vision of what is being built and an interdisciplinary approach that integrates architecture, engineering, urban planning, scientific research, university knowledge and skills related to the specificities of the territory” (Ricostruzioni. Architettura, città, paesaggio nell’epoca delle distruzioni, 2018).
An open and creative exchange of skills and knowledge between generations could form a basis of new perception of heritage as a resource — heritage which is constantly ‘in use’. In the spirit of Giancarlo De Carlo’s philosophy of participatory design, the new educational institution could become a platform for regenerative urban experiments, “encouraging the public to be urbanism’s ‘protagonists’ rather than its objects”, reframing “planning as a civic process, not the pursuit of ideal or functional forms”, and calling “for ‘self-realising plans’ that emerge like ‘chain reactions’”. (The Architectural Review, January 2014).
An open and creative exchange of skills and knowledge between generations could form a basis of new perception of heritage as a resource — heritage which is constantly ‘in use’. In the spirit of Giancarlo De Carlo’s philosophy of participatory design, the new educational institution could become a platform for regenerative urban experiments, “encouraging the public to be urbanism’s ‘protagonists’ rather than its objects”, reframing “planning as a civic process, not the pursuit of ideal or functional forms”, and calling “for ‘self-realising plans’ that emerge like ‘chain reactions’”. (The Architectural Review, January 2014).
How Citizens benefit
Designing in post-disaster contexts, architects can’t forget about public spaces increasing social cohesion — low budget is not an excuse. Through anthropological field research I discovered how much pride Italians take in their civic life, exhibited at festivals, carnivals, markets and communal dinners. Historic towns always provide space for their communities to gather. In a village of isolated temporary houses, without a piazza, they will never feel at home. The reconstruction process should be used as an opportunity to add value beyond what existed before the earthquake, as this project aims to do.
Exploring new possible functions and uses of currently empty spaces and damaged buildings in Falerone, I invited local community to participate in the act of psychogeographic mapping — and thus rediscovering and reevaluating the town on different levels. The first step was to look closely at materiality of the place and to draw together selected fragments of Falerone in 1:1 scale on A1 paper. Simultaneously, to discover what is invisible to the eye, we recorded the sounds of the town and graphically analyzed the play of shadows in between medieval walls, providing relief in the summer heat. Another interesting exercise was mapping seismic damage of buildings — the wounds of Falerone. Yet the culminating and most exhilarating experience was the creation of the ’mappa di comunità’. As the community gathered around the giant (6x4m) map laid on the floor, they were asked to mark places which have played important roles in their lives, and to write down, or draw, memories related to them. This artefact sparked discussions about the past and the future of Falerone lasting the whole day, connecting the local community in a very special way. Soon, the citizens who previously had not seen much hope for their town, started discovering the hidden potential and suggested many new ideas for reinvigorating neglected urban spaces, among them the symbol of Falerone, San Francesco.
Exploring new possible functions and uses of currently empty spaces and damaged buildings in Falerone, I invited local community to participate in the act of psychogeographic mapping — and thus rediscovering and reevaluating the town on different levels. The first step was to look closely at materiality of the place and to draw together selected fragments of Falerone in 1:1 scale on A1 paper. Simultaneously, to discover what is invisible to the eye, we recorded the sounds of the town and graphically analyzed the play of shadows in between medieval walls, providing relief in the summer heat. Another interesting exercise was mapping seismic damage of buildings — the wounds of Falerone. Yet the culminating and most exhilarating experience was the creation of the ’mappa di comunità’. As the community gathered around the giant (6x4m) map laid on the floor, they were asked to mark places which have played important roles in their lives, and to write down, or draw, memories related to them. This artefact sparked discussions about the past and the future of Falerone lasting the whole day, connecting the local community in a very special way. Soon, the citizens who previously had not seen much hope for their town, started discovering the hidden potential and suggested many new ideas for reinvigorating neglected urban spaces, among them the symbol of Falerone, San Francesco.
Physical or other transformations
It refers to a physical transformation of the built environment (hard investment)
Innovative character
What if the recent earthquakes were necessary for Falerone to be able to redefine its identity? Despite being a destructive force, they brought a creative opportunity for envisioning and crafting an alternative, more resilient future. And today Falerone is in need of a clear vision for the future — a vision alternative to what had been imagined and proposed before. This future, however, must find its roots in the past. Its medieval buildings, however fragile they might seem today, have survived hundreds of years and numerous natural disasters, framing people’s lives over centuries of turbulence.
The question that has to be addressed is how to live with the earthquakes, for there will be many more to come — and how architecture can become a source of hope, rather than a source of fear, for the local population?
The proposed project is about the (re)construction — or rather, a continuous construction — process. The school building could at once become a laboratory of heritage conservation, an arena of 1:1 experiments for masons, bricklayers, carpenters, serving as a valuable training opportunity for students. Merging local building traditions with cutting-edge technology in order to build resistance against future earthquakes, it would give a new life to architectural heritage and once more make it a live resource — becoming a promise of a sustainable future.
I believe that working from the roots, reinventing local traditions, merging modern technology with age-old skills in order to collectively develop new crafts, is a way to build a sustainable and resilient future for Falerone.
The question that has to be addressed is how to live with the earthquakes, for there will be many more to come — and how architecture can become a source of hope, rather than a source of fear, for the local population?
The proposed project is about the (re)construction — or rather, a continuous construction — process. The school building could at once become a laboratory of heritage conservation, an arena of 1:1 experiments for masons, bricklayers, carpenters, serving as a valuable training opportunity for students. Merging local building traditions with cutting-edge technology in order to build resistance against future earthquakes, it would give a new life to architectural heritage and once more make it a live resource — becoming a promise of a sustainable future.
I believe that working from the roots, reinventing local traditions, merging modern technology with age-old skills in order to collectively develop new crafts, is a way to build a sustainable and resilient future for Falerone.
Disciplines/knowledge reflected
The earthquakes must be remembered, for there will will be other ones in the future, and we must not keep making the same mistakes — these words echoed throughout my interviews with local inhabitants. So how to live with them? In 2021, a new chapter of the project was opened by the author with an international collaboration between various scientific disciplines aiming to address the issue from different perspectives. This resulted in a conference and a series of workshops involving local community and authorities, as part of the Living with Earthquakes programme. Among the advisors were philosophy students interested in ‘the consciousness of place’, experts in the field of seismic engineering and structural health of buildings or young information engineers specialised in geoinformatics and digital surveying techniques. They all offered a refreshing view on post-earthquake reconstruction in Marche — a multidisciplinary approach, combining specialist knowledge from different fields (from engineering to social sciences) is key to understanding the whole spectrum of problems affecting towns damaged by the earthquakes.
It is crucial that architects learn from past mistakes when building in earthquake-prone areas — any reconstruction project should prioritise structural safety, achieved through dialogues with engineers and conservation authorities. As Shigeru Ban often recalls, the earthquake doesn’t kill people — collapsing buildings do. Responsibility for human lives therefore lies on the side of designers. In Italy, a country frequented by natural disasters, it is necessary to keep developing an appropriate anti-seismic construction culture. Ideally, one which is rooted in local traditions.
It is crucial that architects learn from past mistakes when building in earthquake-prone areas — any reconstruction project should prioritise structural safety, achieved through dialogues with engineers and conservation authorities. As Shigeru Ban often recalls, the earthquake doesn’t kill people — collapsing buildings do. Responsibility for human lives therefore lies on the side of designers. In Italy, a country frequented by natural disasters, it is necessary to keep developing an appropriate anti-seismic construction culture. Ideally, one which is rooted in local traditions.
How stakeholders are engaged
Between July 2021 and January 2022 I conducted intensive fieldwork, which was a key phase of this project. For six months I had been living and working in Marche, doing on-site research and performing a series of experiments — in collaboration with the local community, municipal authorities and Italian universities. From interviews, debates, craft workshops with Italian artisans, through various kinds of structural, urban and social surveys and mapping studies, to material prototyping — it had been an exciting time of discovering what is often invisible to the eye. As a postgraduate student at the University of Cambridge and a Visiting Research Fellow at Università Politecnica delle Marche, I have been collaborating with professor Antonello Alici and a group of young PhD students. Together we organised a conference and workshops, as well summer schools in Falerone under the Living with Earthquakes title. As a result of these initiatives, an official Heritage Community was established in Falerone and the town prepares to join the European Faro Convention Network, which seeks creative ways of developing and managing cultural heritage with active involvement of local citizens.
Any sustainable regeneration scheme needs to begin with a participatory planning process — a community map can be a good starting point, prompting people to reevaluate their everyday environment. There is a lesson to be learnt from Giancarlo De Carlo’s experiments — methodologies developed in the 1960s were often more radical and innovative than those used today. Such processes bring communities together and can help facilitate recovery from a collective trauma — such as the trauma after the 2016 earthquake, when two minutes and a half during the night changed the life of whole towns.
Any sustainable regeneration scheme needs to begin with a participatory planning process — a community map can be a good starting point, prompting people to reevaluate their everyday environment. There is a lesson to be learnt from Giancarlo De Carlo’s experiments — methodologies developed in the 1960s were often more radical and innovative than those used today. Such processes bring communities together and can help facilitate recovery from a collective trauma — such as the trauma after the 2016 earthquake, when two minutes and a half during the night changed the life of whole towns.
Global challenges
„It’s the forefront of modernisation — something that we thought the city was. The countryside is still the place where new ideas and experimentation actually take place.” (Countryside: The Future, Guggenheim Museum, 2020)
It is clear that Italy needs to rethink its rural regeneration on a national level. Is it possible to develop a systematic approach in the aftermath of earthquakes and the pandemic? Are earthquake survivors going to return to their towns? Will city-dwellers of today become villagers of tomorrow? As the European and national funds are flowing in and people are waiting for answers, it seems that Italian politicians are in a unique, almost historic position to redefine their vision for the future of the Apennine peninsula — largely covered by marginalised inner territories. However, this process has to be driven by a deep rethinking of productive models and lifestyles. Hopefully, this project can become one of many voices in this discussion.
The Italian countryside, perhaps more diverse than in any other European country due to its tangled history, has plenty of cultural richness to offer. Yet to keep the heritage alive, local communities have to be continuously involved in its management. When heritage is not in use, it dies. This project aims to show that, once the inhabitants are offered an opportunity to voice their needs and play a role in shaping the future of their towns, the sense of place attachment grows stronger and they are willing to dedicate time and effort to develop local economy.
Could Falerone become an experimental hotbed, an example of sustainable, community-driven reconstruction of urban fabric and place identity? The new crafts school could be an opportunity to achieve just that, stimulating collaboration not just with other towns and universities, but with regional authorities and even with the EU. It can be hoped that members of the new Heritage Community will soon become protagonists designing a future they wish for.
It is clear that Italy needs to rethink its rural regeneration on a national level. Is it possible to develop a systematic approach in the aftermath of earthquakes and the pandemic? Are earthquake survivors going to return to their towns? Will city-dwellers of today become villagers of tomorrow? As the European and national funds are flowing in and people are waiting for answers, it seems that Italian politicians are in a unique, almost historic position to redefine their vision for the future of the Apennine peninsula — largely covered by marginalised inner territories. However, this process has to be driven by a deep rethinking of productive models and lifestyles. Hopefully, this project can become one of many voices in this discussion.
The Italian countryside, perhaps more diverse than in any other European country due to its tangled history, has plenty of cultural richness to offer. Yet to keep the heritage alive, local communities have to be continuously involved in its management. When heritage is not in use, it dies. This project aims to show that, once the inhabitants are offered an opportunity to voice their needs and play a role in shaping the future of their towns, the sense of place attachment grows stronger and they are willing to dedicate time and effort to develop local economy.
Could Falerone become an experimental hotbed, an example of sustainable, community-driven reconstruction of urban fabric and place identity? The new crafts school could be an opportunity to achieve just that, stimulating collaboration not just with other towns and universities, but with regional authorities and even with the EU. It can be hoped that members of the new Heritage Community will soon become protagonists designing a future they wish for.
Learning transferred to other parties
All the aforementioned issues have been analysed and tested on site by the author during six months of intensive fieldwork encompassing the wider Marche region. The resulting strategy proposed here — a set of principles, an architectural toolkit — even though highly bespoke, could be later adopted as a model in other Italian towns struggling with similar problems.
The extent of urban and psychological damage is different in each town. Falerone, while badly damaged, is repairable. Six years after the devastating natural disaster, the town of Visso, for example, still looks as if the disaster happened yesterday. Many people had been forced to move away because of bureaucratic complications, while the reconstruction process is yet to begin. There are extremes, too: Amatrice, to put it simply, doesn’t exist anymore. „Amatrice non c’è più”, as its mayor said in August 2016 about his town famous for the amatriciana sauce and its unfortunate location next to the earthquake’s epicentre.
However, the premise of this project (recovery through the process of reviving local crafts, which are unique for each place) and methodology leading to its realization are directly replicable — and scalable. This strategy could be realized through ’architectural acupuncture’, a concept developed by Chinese architect Xu Tiantian of DnA Design and Architecture. Learning from their own successes and mistakes over a series of projects in Songyang County, the architects have developed a very sensitive strategy of intervening in rural context. Always aiming to regenerate small towns and villages in the province, to reactivate local traditions and crafts, they have created new workshops, factories and cooperatives, thanks to which these previously abandoned places undergo a gradual economic and cultural rehabilitation. New programmes are introduced to previously abandoned villages through a series of tailored small-scale interventions developed in partnership with local authorities.
The extent of urban and psychological damage is different in each town. Falerone, while badly damaged, is repairable. Six years after the devastating natural disaster, the town of Visso, for example, still looks as if the disaster happened yesterday. Many people had been forced to move away because of bureaucratic complications, while the reconstruction process is yet to begin. There are extremes, too: Amatrice, to put it simply, doesn’t exist anymore. „Amatrice non c’è più”, as its mayor said in August 2016 about his town famous for the amatriciana sauce and its unfortunate location next to the earthquake’s epicentre.
However, the premise of this project (recovery through the process of reviving local crafts, which are unique for each place) and methodology leading to its realization are directly replicable — and scalable. This strategy could be realized through ’architectural acupuncture’, a concept developed by Chinese architect Xu Tiantian of DnA Design and Architecture. Learning from their own successes and mistakes over a series of projects in Songyang County, the architects have developed a very sensitive strategy of intervening in rural context. Always aiming to regenerate small towns and villages in the province, to reactivate local traditions and crafts, they have created new workshops, factories and cooperatives, thanks to which these previously abandoned places undergo a gradual economic and cultural rehabilitation. New programmes are introduced to previously abandoned villages through a series of tailored small-scale interventions developed in partnership with local authorities.
Keywords
Transformation
Resilience
Sustainability
Participation
Craft