The Book Village: Caring, Healing Homes
El Castañar: Residential and Socio- Sanitary Complex in the Book Village
The El Castañar Residential and Socio-Sanitary Complex in El Pueblo Libro meets
local needs with supervised housing and a rehabilitation clinic, following
sustainability principles like carbon neutrality, circularity, and biodiversity. It
promotes inclusion through accessibility and intergenerational living. With Alpujarra-
inspired aesthetics, it strategically connects architecture and books as healing tools,
integrating into the urban fabric with a participatory, replicable model.
local needs with supervised housing and a rehabilitation clinic, following
sustainability principles like carbon neutrality, circularity, and biodiversity. It
promotes inclusion through accessibility and intergenerational living. With Alpujarra-
inspired aesthetics, it strategically connects architecture and books as healing tools,
integrating into the urban fabric with a participatory, replicable model.
Spain
Calle de Los Castaños, nº 2,
Mecina Bombarón, 18450 -
ALPUJARRA DE LA SIERRA (Granada).
Mecina Bombarón, 18450 -
ALPUJARRA DE LA SIERRA (Granada).
Early initiative
Yes
No
Yes
No
No
18904: Alpujarra de la Sierra (ES)
“El Castañal” Residential, Social, and Sanitary Complex in the Book Village is a transformative initiative aimed at revitalizing Alpujarra de la Sierra, a municipality facing severe depopulation. Beyond its local impact, the project aspires to become a model for rural regeneration across the eastern Alpujarra region by fostering specialized employment, strengthening the local economy, and enhancing the well-being of its residents.
The initiative leverages the potential of the care economy, health promotion, and elderly and disability care services to generate sustainable, high-quality jobs. It directly addresses the growing demand for supervised housing and healthcare services in a rural environment, ensuring accessibility while maintaining a strong connection to local cultural and natural heritage.
The target groups include elderly individuals seeking assisted or independent living, people requiring rehabilitation services, healthcare professionals, and local families looking for economic stability and improved quality of life. Additionally, the project seeks to attract new residents by positioning the Book Village as a desirable place to live, work, and engage in cultural activities.
Through a participatory and inclusive approach, the initiative integrates community engagement at all stages, ensuring that residents are not merely beneficiaries but active contributors to its success. The design adheres to sustainability principles, incorporating energy-efficient buildings, circular economy practices, and green spaces that enhance environmental quality.
Expected outcomes include reversing depopulation trends, fostering intergenerational and intercultural exchange, strengthening the local economy through job creation, and positioning the Book Village as a replicable model of sustainable, inclusive, and culturally enriched rural development in Europe.
The initiative leverages the potential of the care economy, health promotion, and elderly and disability care services to generate sustainable, high-quality jobs. It directly addresses the growing demand for supervised housing and healthcare services in a rural environment, ensuring accessibility while maintaining a strong connection to local cultural and natural heritage.
The target groups include elderly individuals seeking assisted or independent living, people requiring rehabilitation services, healthcare professionals, and local families looking for economic stability and improved quality of life. Additionally, the project seeks to attract new residents by positioning the Book Village as a desirable place to live, work, and engage in cultural activities.
Through a participatory and inclusive approach, the initiative integrates community engagement at all stages, ensuring that residents are not merely beneficiaries but active contributors to its success. The design adheres to sustainability principles, incorporating energy-efficient buildings, circular economy practices, and green spaces that enhance environmental quality.
Expected outcomes include reversing depopulation trends, fostering intergenerational and intercultural exchange, strengthening the local economy through job creation, and positioning the Book Village as a replicable model of sustainable, inclusive, and culturally enriched rural development in Europe.
Depopulation (reversing depopulation)
Revitalization (generating employment, economic, and cultural activity)
Residential (care economy and social well-being)
Health (healthcare services economy and well-being promotion)
Economy (economic and environmental sustainability)
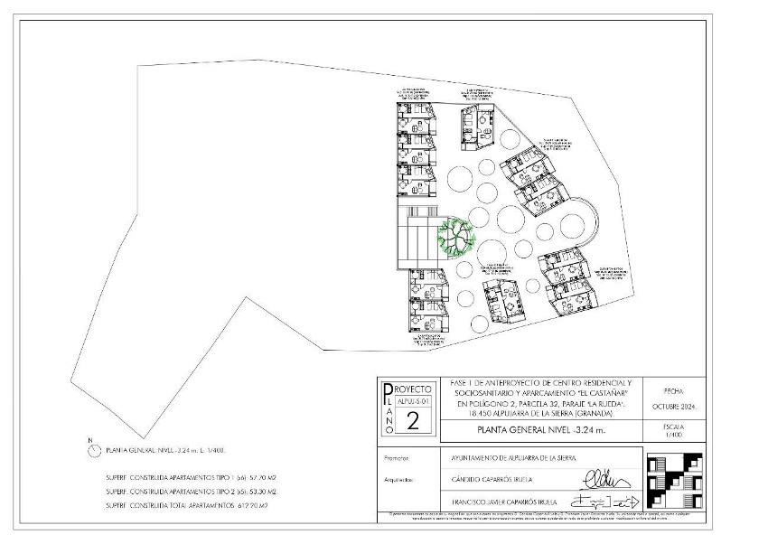
The project involves constructing a residential complex that seamlessly integrates with the traditional Alpujarra architectural model, embedding sustainability in every stage of design, construction, and operation. By preserving the natural environment, maintaining centennial chestnut trees, and creating new green spaces, it fosters biodiversity and ecological balance.
A key pillar of the project is the use of environmentally friendly materials aligned with circular economy principles, including the reuse of locally sourced materials, incorporation of recycled elements, and reduction of construction waste. It also prioritizes non-toxic, natural materials to improve indoor air quality and enhance residents’ well-being.
The construction follows eco-design principles, employing bioclimatic architecture to optimize energy efficiency through strategic orientation, thermal insulation, and natural ventilation. Passive techniques reduce reliance on artificial heating and cooling, minimizing energy consumption.
Renewable energy solutions are central to achieving carbon neutrality. The complex integrates solar panels and geothermal systems, ensuring a low-carbon footprint with cost-efficient, sustainable energy. Rainwater harvesting and recycling systems enhance water efficiency, while sustainable drainage prevents soil erosion and flooding risks.
Beyond infrastructure, the project embraces a holistic sustainability vision, promoting local food production through community gardens and encouraging sustainable mobility with pedestrian-friendly spaces and shared transport solutions.
By combining traditional knowledge with green technologies, El Castañal sets a benchmark for sustainable rural development. This initiative mitigates environmental impact while fostering resilience, creating a scalable model of eco-conscious living aligned with the New European Bauhaus principles of sustainability, inclusivity, and aesthetic harmony.
A key pillar of the project is the use of environmentally friendly materials aligned with circular economy principles, including the reuse of locally sourced materials, incorporation of recycled elements, and reduction of construction waste. It also prioritizes non-toxic, natural materials to improve indoor air quality and enhance residents’ well-being.
The construction follows eco-design principles, employing bioclimatic architecture to optimize energy efficiency through strategic orientation, thermal insulation, and natural ventilation. Passive techniques reduce reliance on artificial heating and cooling, minimizing energy consumption.
Renewable energy solutions are central to achieving carbon neutrality. The complex integrates solar panels and geothermal systems, ensuring a low-carbon footprint with cost-efficient, sustainable energy. Rainwater harvesting and recycling systems enhance water efficiency, while sustainable drainage prevents soil erosion and flooding risks.
Beyond infrastructure, the project embraces a holistic sustainability vision, promoting local food production through community gardens and encouraging sustainable mobility with pedestrian-friendly spaces and shared transport solutions.
By combining traditional knowledge with green technologies, El Castañal sets a benchmark for sustainable rural development. This initiative mitigates environmental impact while fostering resilience, creating a scalable model of eco-conscious living aligned with the New European Bauhaus principles of sustainability, inclusivity, and aesthetic harmony.
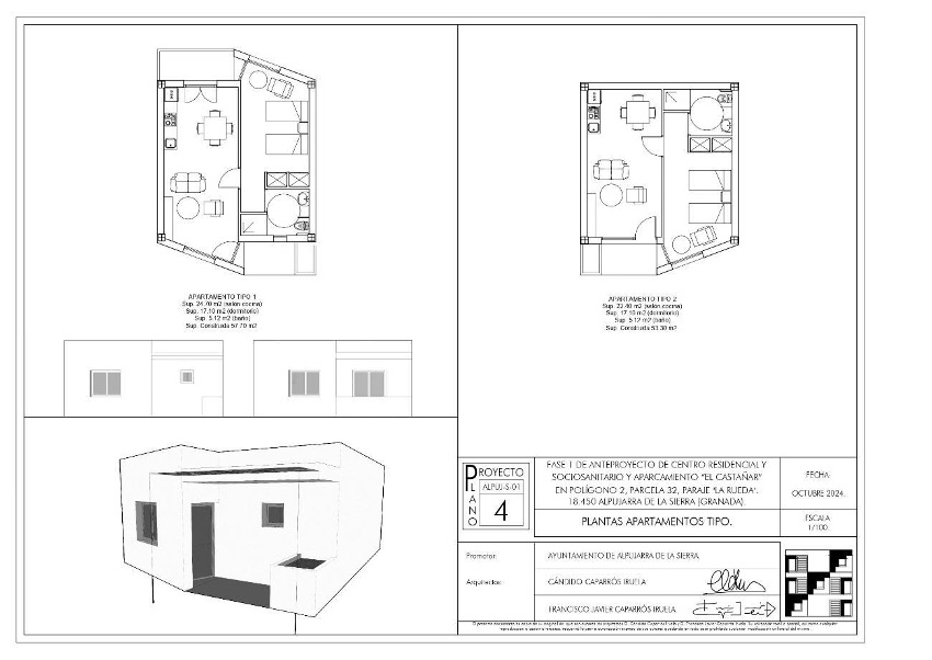
The appeal of the housing within the complex is achieved through a harmonious and thoughtful design that reflects the traditional architecture of the Alpujarra region. The design balances modern functionality with cultural heritage, featuring key elements such as an appropriate scale adapted to actual needs, refined textures, whitewashed facades, and architectural unity. The volumes are balanced, and the internal spaces flow smoothly, fostering a sense of openness and community.
The careful attention to detail, such as the contrast with the surrounding natural landscape, symmetry, alignment, and proportionality, ensures that the development integrates seamlessly with its environment. This design approach not only highlights the region’s traditional aesthetics but also strengthens the connection between residents and their surroundings. It generates a strong sense of belonging, reinforcing the cultural identity of the Book Village while creating an inviting atmosphere that resonates with both residents and visitors.
Moreover, the architecture aims to enhance emotional well-being. By creating spaces that encourage interaction and reflect the community’s heritage, the project offers a visually and experientially enriching environment. The focus on aesthetics fosters positive emotions, enabling residents to feel comfortable, safe, and connected.
The development also promotes a high-quality social experience. Through shared spaces, residents are encouraged to engage in cultural activities, creating opportunities for social cohesion and intergenerational exchange. This contributes to a sense of pride and collective well-being within the community, while also preserving the cultural and architectural heritage of the region.
This initiative exemplifies how thoughtful, culturally aware design can create a space that not only preserves local identity but enhances the overall quality of life, offering an exemplary model for sustainable, inclusive rural development.
The careful attention to detail, such as the contrast with the surrounding natural landscape, symmetry, alignment, and proportionality, ensures that the development integrates seamlessly with its environment. This design approach not only highlights the region’s traditional aesthetics but also strengthens the connection between residents and their surroundings. It generates a strong sense of belonging, reinforcing the cultural identity of the Book Village while creating an inviting atmosphere that resonates with both residents and visitors.
Moreover, the architecture aims to enhance emotional well-being. By creating spaces that encourage interaction and reflect the community’s heritage, the project offers a visually and experientially enriching environment. The focus on aesthetics fosters positive emotions, enabling residents to feel comfortable, safe, and connected.
The development also promotes a high-quality social experience. Through shared spaces, residents are encouraged to engage in cultural activities, creating opportunities for social cohesion and intergenerational exchange. This contributes to a sense of pride and collective well-being within the community, while also preserving the cultural and architectural heritage of the region.
This initiative exemplifies how thoughtful, culturally aware design can create a space that not only preserves local identity but enhances the overall quality of life, offering an exemplary model for sustainable, inclusive rural development.
This initiative follows an inclusive governance strategy, applying a gender-sensitive and power-balanced perspective throughout the project. The architectural design embraces universal accessibility, ensuring that individuals with or without disabilities—physical, visual, auditory, intellectual, mental, or multiple—can live equally, accessing and using all spaces freely, safely, and autonomously.
Key inclusive design features include:
- Barrier-free entrances and step-free access to all facilities
- Ramps, handrails, and grab bars for enhanced mobility
- Wide doors and hallways to accommodate wheelchairs
- Flat, anti-slip flooring to prevent accidents
- Fully accessible bathrooms
- Strategically placed switches, sockets, and outlets for ease of use
- Smart home automation to assist residents with varying needs
- Visual and auditory emergency alert systems
- Large-font signage
Beyond physical accessibility, the project ensures affordability, a crucial factor in fostering inclusion. Housing costs will not exceed 30% of the average monthly income of local residents, making it accessible to individuals and families of diverse economic backgrounds. Each unit is designed for individual or couple occupancy, with space to accommodate a caregiver if needed, offering flexibility for aging residents or those requiring assistance.
The initiative extends beyond the built environment, fostering an inclusive social model where all individuals, regardless of background or ability, can participate fully in community life. The governance structure actively involves residents, local stakeholders, and decision-makers, ensuring that the housing model remains adaptable to changing needs, particularly for elderly populations and those requiring continuous care.
El Castañal sets a replicable and scalable example of inclusive rural living, demonstrating how small communities can lead in creating equitable, accessible, and socially sustainable housing solutions.
Key inclusive design features include:
- Barrier-free entrances and step-free access to all facilities
- Ramps, handrails, and grab bars for enhanced mobility
- Wide doors and hallways to accommodate wheelchairs
- Flat, anti-slip flooring to prevent accidents
- Fully accessible bathrooms
- Strategically placed switches, sockets, and outlets for ease of use
- Smart home automation to assist residents with varying needs
- Visual and auditory emergency alert systems
- Large-font signage
Beyond physical accessibility, the project ensures affordability, a crucial factor in fostering inclusion. Housing costs will not exceed 30% of the average monthly income of local residents, making it accessible to individuals and families of diverse economic backgrounds. Each unit is designed for individual or couple occupancy, with space to accommodate a caregiver if needed, offering flexibility for aging residents or those requiring assistance.
The initiative extends beyond the built environment, fostering an inclusive social model where all individuals, regardless of background or ability, can participate fully in community life. The governance structure actively involves residents, local stakeholders, and decision-makers, ensuring that the housing model remains adaptable to changing needs, particularly for elderly populations and those requiring continuous care.
El Castañal sets a replicable and scalable example of inclusive rural living, demonstrating how small communities can lead in creating equitable, accessible, and socially sustainable housing solutions.
This initiative originated from a population survey conducted in the winter of 2022, identifying the need for accessible, high-quality housing and healthcare services in the community. The new municipal governing team of Alpujarra de la Sierra embraced the proposal, launching it with strong citizen support in the elections in May 2023. From its inception, the project has prioritized community involvement, ensuring that residents and stakeholders co-create, shape, and actively participate in its development.
The initiative is designed to go beyond traditional housing solutions, integrating social, healthcare, and cultural activities that encourage continuous engagement from community members. Citizens benefit not only as residents but also as contributors to the project’s governance, operations, and cultural programming. The complex provides shared spaces for cultural events, intergenerational workshops, and local initiatives, reinforcing the social fabric and fostering a sense of belonging among residents.
A key element of this participatory approach is the involvement of local organizations, healthcare professionals, and educational institutions, creating a collaborative ecosystem that aligns with the needs of diverse community groups. Through public consultations, workshops, and open forums, the municipality ensures that voices from all demographics—including elderly individuals, families, and young professionals—are integrated into decision-making processes.
This bottom-up approach strengthens the initiative’s long-term sustainability and adaptability, allowing the project to evolve alongside the changing needs of the community. By positioning citizens as active co-creators rather than passive beneficiaries, the initiative enhances social cohesion, intergenerational exchange, and local identity, setting a replicable and scalable model for community-driven rural development.
The initiative is designed to go beyond traditional housing solutions, integrating social, healthcare, and cultural activities that encourage continuous engagement from community members. Citizens benefit not only as residents but also as contributors to the project’s governance, operations, and cultural programming. The complex provides shared spaces for cultural events, intergenerational workshops, and local initiatives, reinforcing the social fabric and fostering a sense of belonging among residents.
A key element of this participatory approach is the involvement of local organizations, healthcare professionals, and educational institutions, creating a collaborative ecosystem that aligns with the needs of diverse community groups. Through public consultations, workshops, and open forums, the municipality ensures that voices from all demographics—including elderly individuals, families, and young professionals—are integrated into decision-making processes.
This bottom-up approach strengthens the initiative’s long-term sustainability and adaptability, allowing the project to evolve alongside the changing needs of the community. By positioning citizens as active co-creators rather than passive beneficiaries, the initiative enhances social cohesion, intergenerational exchange, and local identity, setting a replicable and scalable model for community-driven rural development.
This initiative has engaged multiple stakeholders across different levels, fostering a collaborative, multi-tiered governance model that ensures strong institutional backing, financial sustainability, and long-term scalability.
- Local level: The municipal governing team of Alpujarra de la Sierra initiated and endorsed the project after conducting a community-wide survey, identifying key social, healthcare, and housing needs. The municipality remains actively involved in the project’s governance, ensuring direct participation from residents and integrating their perspectives into decision-making.
- County level: The Association of Municipalities of the Alpujarra of Granada has provided unconditional support, recognizing the project’s role in regional revitalization. This entity financed the technical project development, ensuring its viability and alignment with broader rural regeneration strategies.
- Provincial level: The Provincial Council of Granada has played a crucial role in backing the project, integrating it into both the County and Provincial Urban Agendas. Additionally, it has facilitated access to regional, national, and European funding sources, helping to secure resources for implementation and long-term sustainability.
- National and European levels: The initiative aligns with Spain’s national strategies for rural revitalization and healthcare accessibility, contributing to wider policy objectives related to depopulation and social inclusion. At the European level, it embodies the principles of the New European Bauhaus (NEB), particularly in sustainability, accessibility, and community engagement. The project is positioned to benefit from EU funding frameworks, reinforcing its impact beyond the local scale.
By integrating stakeholders across multiple levels, El Castañal demonstrates how small municipalities can leverage strategic partnerships to implement community-driven projects. This model strengthens local resilience while serving
- Local level: The municipal governing team of Alpujarra de la Sierra initiated and endorsed the project after conducting a community-wide survey, identifying key social, healthcare, and housing needs. The municipality remains actively involved in the project’s governance, ensuring direct participation from residents and integrating their perspectives into decision-making.
- County level: The Association of Municipalities of the Alpujarra of Granada has provided unconditional support, recognizing the project’s role in regional revitalization. This entity financed the technical project development, ensuring its viability and alignment with broader rural regeneration strategies.
- Provincial level: The Provincial Council of Granada has played a crucial role in backing the project, integrating it into both the County and Provincial Urban Agendas. Additionally, it has facilitated access to regional, national, and European funding sources, helping to secure resources for implementation and long-term sustainability.
- National and European levels: The initiative aligns with Spain’s national strategies for rural revitalization and healthcare accessibility, contributing to wider policy objectives related to depopulation and social inclusion. At the European level, it embodies the principles of the New European Bauhaus (NEB), particularly in sustainability, accessibility, and community engagement. The project is positioned to benefit from EU funding frameworks, reinforcing its impact beyond the local scale.
By integrating stakeholders across multiple levels, El Castañal demonstrates how small municipalities can leverage strategic partnerships to implement community-driven projects. This model strengthens local resilience while serving
The initiative has engaged professionals from multiple disciplines and knowledge fields, ensuring a comprehensive, interdisciplinary approach to its design and implementation. By integrating expertise from diverse sectors, the project has successfully created a holistic, sustainable, and inclusive living environment that aligns with the principles of the New European Bauhaus.
Key disciplines involved include:
- Environmental Science: Ensuring ecological integration, sustainability, and minimal environmental impact, with a focus on biodiversity conservation and energy-efficient design.
- Urban Planning & Architecture: Designing a functional, inclusive residential complex that preserves Alpujarra’s architectural heritage while incorporating modern, sustainable building techniques.
- Information Technology & Telecommunications: Implementing home automation, assistive technologies, and digital accessibility solutions to enhance residents’ safety and autonomy.
- Social Work & Community Engagement: Structuring inclusive social programs that promote well-being, intergenerational exchange, and active community participation.
- Medicine & Healthcare: Developing an integrated healthcare model combining preventive care, rehabilitation services, and specialized medical support tailored to aging and dependent populations.
- Culture & Heritage: Strengthening local identity and traditions, embedding cultural activities within the complex to enhance the social and aesthetic experience of residents.
Key disciplines involved include:
- Environmental Science: Ensuring ecological integration, sustainability, and minimal environmental impact, with a focus on biodiversity conservation and energy-efficient design.
- Urban Planning & Architecture: Designing a functional, inclusive residential complex that preserves Alpujarra’s architectural heritage while incorporating modern, sustainable building techniques.
- Information Technology & Telecommunications: Implementing home automation, assistive technologies, and digital accessibility solutions to enhance residents’ safety and autonomy.
- Social Work & Community Engagement: Structuring inclusive social programs that promote well-being, intergenerational exchange, and active community participation.
- Medicine & Healthcare: Developing an integrated healthcare model combining preventive care, rehabilitation services, and specialized medical support tailored to aging and dependent populations.
- Culture & Heritage: Strengthening local identity and traditions, embedding cultural activities within the complex to enhance the social and aesthetic experience of residents.
“El Castañal” stands out as a pioneering model in elderly and dependent care, redefining conventional approaches by integrating sustainability, community engagement, and innovative healthcare solutions. Unlike traditional urban-based care facilities, this initiative offers a nature-centered, hybrid residential model that promotes well-being, independence, and social inclusion.
Key innovative aspects of the initiative include:
- Unique rural setting: Situated in the Sierra Nevada Natural Park, the complex fosters well-being through direct interaction with nature, leveraging its therapeutic benefits to enhance mental and physical health.
- Hybrid residential model: The facility combines a fully equipped care residence for dependent individuals with independent housing for those who require only minimal assistance, bridging the gap between assisted living and complete autonomy—an approach not commonly implemented in similar facilities.
- Comprehensive healthcare and rehabilitation services: Going beyond basic elderly care, El Castañal incorporates: a specialized physiotherapy area to promote mobility and physical well-being; an inpatient geriatric consultation providing preventive and specialized medical care tailored to aging populations; and, a physical therapy unit that integrates rehabilitation programs into daily life.
- Sustainability-driven innovation: The initiative combines traditional Alpujarra architecture with cutting-edge green technologies, including solar and geothermal energy systems, passive design techniques, and circular economy principles to create a carbon-neutral, self-sufficient residential complex.
By merging high-quality care with sustainable living and a community-driven approach, El Castañal sets a new benchmark for elderly care in rural areas. Its scalable and replicable model offers a transformative vision of aging, demonstrating how healthcare, and social inclusion can converge in an innovative housing solutions.
Key innovative aspects of the initiative include:
- Unique rural setting: Situated in the Sierra Nevada Natural Park, the complex fosters well-being through direct interaction with nature, leveraging its therapeutic benefits to enhance mental and physical health.
- Hybrid residential model: The facility combines a fully equipped care residence for dependent individuals with independent housing for those who require only minimal assistance, bridging the gap between assisted living and complete autonomy—an approach not commonly implemented in similar facilities.
- Comprehensive healthcare and rehabilitation services: Going beyond basic elderly care, El Castañal incorporates: a specialized physiotherapy area to promote mobility and physical well-being; an inpatient geriatric consultation providing preventive and specialized medical care tailored to aging populations; and, a physical therapy unit that integrates rehabilitation programs into daily life.
- Sustainability-driven innovation: The initiative combines traditional Alpujarra architecture with cutting-edge green technologies, including solar and geothermal energy systems, passive design techniques, and circular economy principles to create a carbon-neutral, self-sufficient residential complex.
By merging high-quality care with sustainable living and a community-driven approach, El Castañal sets a new benchmark for elderly care in rural areas. Its scalable and replicable model offers a transformative vision of aging, demonstrating how healthcare, and social inclusion can converge in an innovative housing solutions.
The initiative is based on a multidisciplinary, participatory, and sustainability-driven approach, ensuring that key societal challenges are addressed holistically through integrated solutions. This methodology fosters synergies between housing, healthcare, community well-being, and environmental sustainability, maximizing long-term impact.
Key methodological pillars:
- Multidisciplinary collaboration: The project brings together urban planners, healthcare professionals, environmental scientists, social workers, and cultural experts to create a cohesive, functional, and sustainable residential complex.
- Participatory design: The initiative actively engages local residents, stakeholders, and decision-makers through surveys, public consultations, and co-creation workshops, allowing the community to shape both design and governance. This fosters a sense of ownership and social cohesion, ensuring that the project aligns with the real needs of the population.
- Integrated healthcare model: The methodology incorporates preventive and specialized medical care, physiotherapy, and rehabilitation services within a residential complex, offering a holistic solution for elderly and dependent individuals that surpasses traditional care models.
- Sustainability and circular economy principles: The initiative follows bioclimatic architecture, energy-efficient solutions (solar and geothermal systems), and low-carbon construction techniques, ensuring environmental responsibility while maintaining affordability.
- Scalability and replicability: The project’s flexible design makes it adaptable to other rural communities facing similar challenges, serving as a blueprint for sustainable, community-driven housing solutions.
By integrating social, healthcare, and environmental dimensions under a multidisciplinary and participatory approach, El Castañal sets a new standard for inclusive, sustainable, and resilient rural development.
Key methodological pillars:
- Multidisciplinary collaboration: The project brings together urban planners, healthcare professionals, environmental scientists, social workers, and cultural experts to create a cohesive, functional, and sustainable residential complex.
- Participatory design: The initiative actively engages local residents, stakeholders, and decision-makers through surveys, public consultations, and co-creation workshops, allowing the community to shape both design and governance. This fosters a sense of ownership and social cohesion, ensuring that the project aligns with the real needs of the population.
- Integrated healthcare model: The methodology incorporates preventive and specialized medical care, physiotherapy, and rehabilitation services within a residential complex, offering a holistic solution for elderly and dependent individuals that surpasses traditional care models.
- Sustainability and circular economy principles: The initiative follows bioclimatic architecture, energy-efficient solutions (solar and geothermal systems), and low-carbon construction techniques, ensuring environmental responsibility while maintaining affordability.
- Scalability and replicability: The project’s flexible design makes it adaptable to other rural communities facing similar challenges, serving as a blueprint for sustainable, community-driven housing solutions.
By integrating social, healthcare, and environmental dimensions under a multidisciplinary and participatory approach, El Castañal sets a new standard for inclusive, sustainable, and resilient rural development.
This initiative is highly transferable and adaptable, as it addresses universal human needs such as supervised housing, geriatric care, and therapeutic healthcare services. These core components can be replicated in different geographic and demographic contexts, particularly in rural or underserved areas facing population decline and limited healthcare access.
However, while the model is fully transferable, successful replication may require specific contextual conditions, such as:
- A participatory governance framework to ensure community involvement in decision-making and co-creation.
- A natural and cultural environment that enhances well-being and provides social and therapeutic benefits to residents.
Despite these contextual challenges, El Castañal offers key transferable elements that can be adapted to different settings, including:
- Interdisciplinary collaboration model: The initiative integrates urban planning, healthcare, social work, and environmental sustainability, creating a holistic framework for community-centered development.
- Innovative housing solutions: The project combines independent housing for non-dependent residents with supervised residential care, offering a scalable approach for diverse populations.
- Integrated healthcare services: By embedding preventive care, geriatric support, and rehabilitation within residential communities, this model ensures accessible, high-quality healthcare tailored to the needs of aging and dependent individuals.
- Sustainable architecture and energy efficiency: The use of bioclimatic design, renewable energy (solar/geothermal), and circular economy principles makes this model environmentally and economically sustainable.
- Community-driven approach: The project’s engagement strategies can be adapted to other rural communities, ensuring that local identity, social cohesion, and participatory governance remain central to implementation.
However, while the model is fully transferable, successful replication may require specific contextual conditions, such as:
- A participatory governance framework to ensure community involvement in decision-making and co-creation.
- A natural and cultural environment that enhances well-being and provides social and therapeutic benefits to residents.
Despite these contextual challenges, El Castañal offers key transferable elements that can be adapted to different settings, including:
- Interdisciplinary collaboration model: The initiative integrates urban planning, healthcare, social work, and environmental sustainability, creating a holistic framework for community-centered development.
- Innovative housing solutions: The project combines independent housing for non-dependent residents with supervised residential care, offering a scalable approach for diverse populations.
- Integrated healthcare services: By embedding preventive care, geriatric support, and rehabilitation within residential communities, this model ensures accessible, high-quality healthcare tailored to the needs of aging and dependent individuals.
- Sustainable architecture and energy efficiency: The use of bioclimatic design, renewable energy (solar/geothermal), and circular economy principles makes this model environmentally and economically sustainable.
- Community-driven approach: The project’s engagement strategies can be adapted to other rural communities, ensuring that local identity, social cohesion, and participatory governance remain central to implementation.
One of the main global challenges addressed by this initiative is rural depopulation, a growing issue across Europe. El Castañal provides a local, replicable solution by revitalizing Alpujarra de la Sierra through a sustainable, community-driven approach, directly contributing to key UN Sustainable Development Goals (SDGs) of the 2030 Agenda.
Depopulation leads to aging populations, economic decline, and cultural loss. This initiative counters these effects by offering affordable housing, healthcare access, and job opportunities, making the area more attractive for both new and returning residents while supporting global sustainability efforts.
Key global challenges addressed through local solutions (linked to SDGs):
- Aging populations & healthcare (SDG 3: Good Health & Well-being): The project integrates geriatric and rehabilitation services into a residential complex, ensuring accessible, high-quality care in a rural setting.
- Sustainable rural housing (SDG 11: Sustainable Cities & Communities): El Castañal promotes affordable, energy-efficient housing, reducing inequalities and preserving cultural and environmental integrity.
- Economic decline & employment (SDG 8: Decent Work & Economic Growth): The initiative creates skilled jobs in healthcare, social work, and construction, fostering local economic resilience.
- Environmental sustainability (SDG 13: Climate Action & SDG 15: Life on Land): By using solar and geothermal energy, circular economy principles, and green spaces, the project ensures carbon neutrality and biodiversity protection.
- Social inclusion & education (SDG 10: Reduced Inequalities & SDG 4: Quality Education): The initiative fosters intergenerational exchange, cultural activities, and participatory governance, strengthening social cohesion.
By addressing global challenges with a locally driven, scalable model, El Castañal sets a new benchmark for sustainable rural revitalization, fully aligned with the UN 2030 Agenda.
Depopulation leads to aging populations, economic decline, and cultural loss. This initiative counters these effects by offering affordable housing, healthcare access, and job opportunities, making the area more attractive for both new and returning residents while supporting global sustainability efforts.
Key global challenges addressed through local solutions (linked to SDGs):
- Aging populations & healthcare (SDG 3: Good Health & Well-being): The project integrates geriatric and rehabilitation services into a residential complex, ensuring accessible, high-quality care in a rural setting.
- Sustainable rural housing (SDG 11: Sustainable Cities & Communities): El Castañal promotes affordable, energy-efficient housing, reducing inequalities and preserving cultural and environmental integrity.
- Economic decline & employment (SDG 8: Decent Work & Economic Growth): The initiative creates skilled jobs in healthcare, social work, and construction, fostering local economic resilience.
- Environmental sustainability (SDG 13: Climate Action & SDG 15: Life on Land): By using solar and geothermal energy, circular economy principles, and green spaces, the project ensures carbon neutrality and biodiversity protection.
- Social inclusion & education (SDG 10: Reduced Inequalities & SDG 4: Quality Education): The initiative fosters intergenerational exchange, cultural activities, and participatory governance, strengthening social cohesion.
By addressing global challenges with a locally driven, scalable model, El Castañal sets a new benchmark for sustainable rural revitalization, fully aligned with the UN 2030 Agenda.
The New European Bauhaus (NEB) values have shaped El Castañal from its inception, guiding both technical design and social impact. Now entering its implementation phase, the initiative ensures sustainability, inclusion, and aesthetic quality remain central.
Planned activities for further development:
- Finalizing architectural planning, integrating bioclimatic strategies, passive design, and renewable energy (solar/geothermal) for energy efficiency.
- Securing additional funding from regional, national, and EU sources to reinforce financial sustainability.
- Developing healthcare and rehabilitation services, ensuring on-site geriatric, medical, and physiotherapy facilities.
- Launching community engagement programs, including participatory governance, cultural activities, and intergenerational initiatives.
- Implementing education and training workshops on sustainability, healthcare, and digital inclusion, empowering residents and professionals.
NEB values in implementation:
- Sustainability: From the start, sustainability has been a priority. The project integrates eco-friendly construction, circular economy principles, and biodiversity conservation, ensuring carbon neutrality.
- Inclusion: El Castañal ensures universal accessibility, affordability, and social diversity, creating an inclusive space where people of all backgrounds and abilities thrive.
- Aesthetics and quality of experience: The project is designed for high-quality living, preserving traditional Alpujarra architecture while fostering cultural activities and artistic programs to enhance well-being.
Next Steps Aligned with NEB Principles:
- Construction begins with sustainable materials and techniques following low-carbon and circular economy principles.
- Community co-creation workshops refine governance models, ensuring active resident participation.
- Cultural and educational programs expand, reinforcing the Book Village identity and promoting lifelong learning.
Planned activities for further development:
- Finalizing architectural planning, integrating bioclimatic strategies, passive design, and renewable energy (solar/geothermal) for energy efficiency.
- Securing additional funding from regional, national, and EU sources to reinforce financial sustainability.
- Developing healthcare and rehabilitation services, ensuring on-site geriatric, medical, and physiotherapy facilities.
- Launching community engagement programs, including participatory governance, cultural activities, and intergenerational initiatives.
- Implementing education and training workshops on sustainability, healthcare, and digital inclusion, empowering residents and professionals.
NEB values in implementation:
- Sustainability: From the start, sustainability has been a priority. The project integrates eco-friendly construction, circular economy principles, and biodiversity conservation, ensuring carbon neutrality.
- Inclusion: El Castañal ensures universal accessibility, affordability, and social diversity, creating an inclusive space where people of all backgrounds and abilities thrive.
- Aesthetics and quality of experience: The project is designed for high-quality living, preserving traditional Alpujarra architecture while fostering cultural activities and artistic programs to enhance well-being.
Next Steps Aligned with NEB Principles:
- Construction begins with sustainable materials and techniques following low-carbon and circular economy principles.
- Community co-creation workshops refine governance models, ensuring active resident participation.
- Cultural and educational programs expand, reinforcing the Book Village identity and promoting lifelong learning.