The Old School
Conversion of the old municipal school into two units of communal housing
Saint Hilaire-sur-Benaize, a rural village of 315 residents, is converting its former school into two affordable, energy-efficient rental units adapted to climate change. With rural areas struggling to attract families due to the lack of such housing, this project aims to meet local demand for sustainable living. The renovation relies on residents’ inputs and will preserve the building’s historical charm while improving energy efficiency.
France
9, route de Le Blanc
36370 Saint-Hilaire-sur-Benaize
36370 Saint-Hilaire-sur-Benaize
Prototype level
Yes
Yes
Yes
No
No
36197: Saint-Hilaire-sur-Benaize (FR)
Saint Hilaire-sur-Benaize, a rural village of 315 residents in the Centre-Val de Loire Region, has embarked on a transformative project to revive its former primary school, which closed in 2005. The building, which had been underused and deteriorating, is being renovated into two sustainable, communal housing units.
In rural areas like this, attracting families is crucial for maintaining social balance, yet finding affordable, energy-efficient rentals is a challenge. With the high cost of renovations to meet energy-efficiency standards, many properties are sold rather than rented. This project directly addresses this issue by creating energy-efficient housing that will be available for rent, offering a solution to local housing needs while supporting sustainable living.
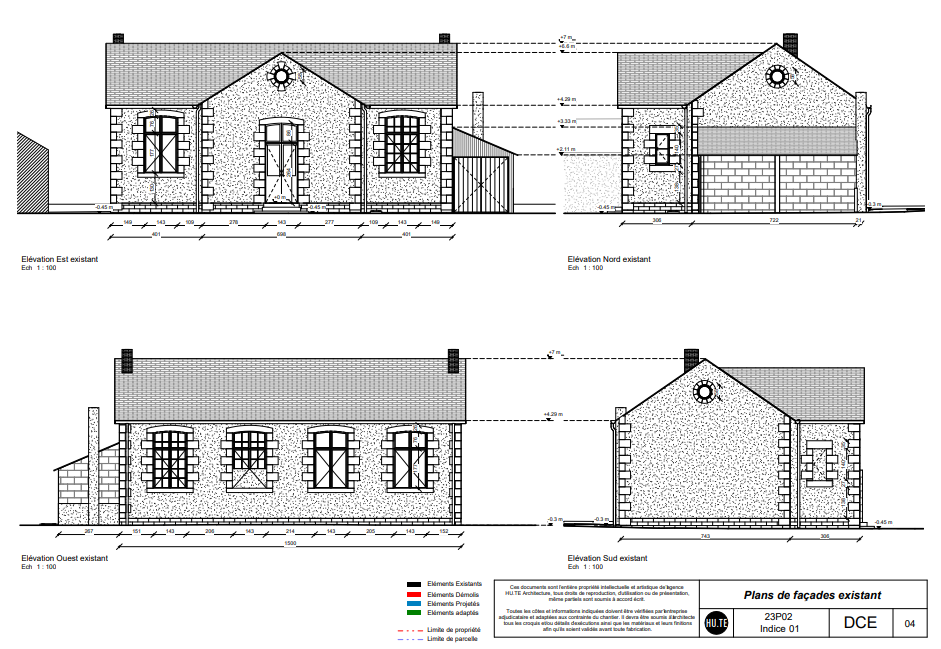
According to the citizen’s desires, renovation is preserving the schoolhouse's traditional 19th- and early 20th-century architecture, while significantly improving energy efficiency with top-tier insulation to cope with increasingly hot summers. The building’s original materials, including slates and tiles, are being recycled to preserve its historical character.
What makes this project even more striking is that both of the new rental units have already been booked, despite the work not being finished yet. This clearly demonstrates the high demand for affordable, energy-efficient rental housing in rural communities. By combining heritage conservation with modern needs, this initiative provides both a practical solution to housing shortages and a model for sustainable rural development.
In rural areas like this, attracting families is crucial for maintaining social balance, yet finding affordable, energy-efficient rentals is a challenge. With the high cost of renovations to meet energy-efficiency standards, many properties are sold rather than rented. This project directly addresses this issue by creating energy-efficient housing that will be available for rent, offering a solution to local housing needs while supporting sustainable living.
According to the citizen’s desires, renovation is preserving the schoolhouse's traditional 19th- and early 20th-century architecture, while significantly improving energy efficiency with top-tier insulation to cope with increasingly hot summers. The building’s original materials, including slates and tiles, are being recycled to preserve its historical character.
What makes this project even more striking is that both of the new rental units have already been booked, despite the work not being finished yet. This clearly demonstrates the high demand for affordable, energy-efficient rental housing in rural communities. By combining heritage conservation with modern needs, this initiative provides both a practical solution to housing shortages and a model for sustainable rural development.
Housing for villagers
Insulation and energy efficiency
Restoring a local landmark
Sustainable land management
Reuse of traditional building materials
This project is driven by a strong commitment to sustainability, with key goals focused on energy efficiency, material reuse, and climate adaptation. Although the initial plan to build a Passive House with a ground-coupled heat exchanger was not feasible due to a lack of local expertise, the project continues to prioritize energy-efficient solutions. We chose to repurpose the building's original materials, such as terracotta tiles, slate roofing, and lime plaster walls, minimizing waste and preserving its historical value.
The insulation strategy includes organic and recyclable materials like wooden door frames, wooden stairs, and wood wool for interior insulation. These choices contribute to both improved thermal performance and a lower environmental footprint. Moreover, the project’s adaptation to climate change is reflected in the installation of wooden shutters typical of the nearby Brenne nature reserve, designed to reduce solar heat gain in summer while maintaining warmth during colder months. This approach ensures the building is better equipped for increasingly hot summers, creating a comfortable living space while reducing the need for energy-intensive cooling.
By combining the reuse of local, traditional materials with modern insulation techniques, this project exemplifies how rural housing can be both energy-efficient and climate-resilient, offering a sustainable model for future developments in similar areas.
The insulation strategy includes organic and recyclable materials like wooden door frames, wooden stairs, and wood wool for interior insulation. These choices contribute to both improved thermal performance and a lower environmental footprint. Moreover, the project’s adaptation to climate change is reflected in the installation of wooden shutters typical of the nearby Brenne nature reserve, designed to reduce solar heat gain in summer while maintaining warmth during colder months. This approach ensures the building is better equipped for increasingly hot summers, creating a comfortable living space while reducing the need for energy-intensive cooling.
By combining the reuse of local, traditional materials with modern insulation techniques, this project exemplifies how rural housing can be both energy-efficient and climate-resilient, offering a sustainable model for future developments in similar areas.
The project’s design reflects a deep commitment to preserving both the aesthetic value and the emotional connection that the local community has with the school building. From the outset in 2021, the village councillors and citizens—many of whom were former pupils—expressed a strong desire to maintain the building’s appearance and architectural style. This was achieved by ensuring that key features, such as the original bell that once signaled the end of playtime, were preserved.
Although the village is not listed as a heritage site, the school building exemplifies late 19th-century French municipal architecture typical of the region, blending perfectly with the surrounding village style. This adherence to traditional design not only ensures visual harmony with the local area but also evokes a sense of pride and continuity for the residents. The architectural integrity of the school is a focal point, as it remains in alignment with the prevailing style of the village center, which is influenced by the nearby Brenne nature reserve.
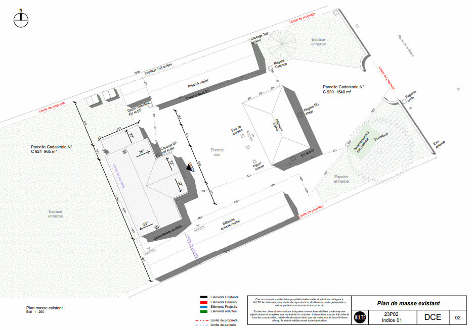
Additionally, the project has taken into consideration the historical and cultural context of the building. The school, once a central community hub, continues to serve the village, albeit in a new role as housing. In response to the needs of the community, provisions were made for the municipal worker previously using part of the building as storage, with a new building constructed nearby for their accommodation.
This initiative is exemplary in its approach to balancing modern needs with cultural and architectural preservation, providing both a functional living space and a meaningful connection to the village’s history. It enhances the citizens' quality of life by maintaining the village’s aesthetic identity while also meeting contemporary housing demands.
Although the village is not listed as a heritage site, the school building exemplifies late 19th-century French municipal architecture typical of the region, blending perfectly with the surrounding village style. This adherence to traditional design not only ensures visual harmony with the local area but also evokes a sense of pride and continuity for the residents. The architectural integrity of the school is a focal point, as it remains in alignment with the prevailing style of the village center, which is influenced by the nearby Brenne nature reserve.
Additionally, the project has taken into consideration the historical and cultural context of the building. The school, once a central community hub, continues to serve the village, albeit in a new role as housing. In response to the needs of the community, provisions were made for the municipal worker previously using part of the building as storage, with a new building constructed nearby for their accommodation.
This initiative is exemplary in its approach to balancing modern needs with cultural and architectural preservation, providing both a functional living space and a meaningful connection to the village’s history. It enhances the citizens' quality of life by maintaining the village’s aesthetic identity while also meeting contemporary housing demands.
The idea of refurbishing and repurposing the old school building has been in development since 2021. Following consultations with local residents and discussions within the council, two potential conversion options emerged: a performance space (given the building's excellent acoustics) or two units of communal housing.
The need for affordable rental housing became glaringly clear after a survey was conducted to explore the reasons behind the high vacancy rates in the municipality. Research, drawing from the Ministry of Economics and Finance, revealed that many vacant properties were due to issues such as inheritance disputes or the deterioration of homes. As a result, the project focused on providing affordable and energy-efficient rental spaces to meet the growing demand for housing in the area.
In this context, the transformation of the school into communal housing offers an inclusive model that addresses the need for affordable housing. This decision, was made with the goal of offering accessible, sustainable living options for local families, particularly as rural areas like this one face the challenge of attracting and retaining residents. the introduction of these new rental units is expected to set in motion a virtuous cycle. The new homes will attract families to the village, boosting local life and social cohesion.
This initiative is exemplary in its approach to inclusion, combining social, economic, and cultural considerations. By repurposing an underused, historically significant building and turning it into affordable, energy-efficient housing, the project provides a long-term solution to housing shortages while enhancing the local community's quality of life. It also strengthens social ties by keeping a historically valuable structure alive and functional for future generations.
The need for affordable rental housing became glaringly clear after a survey was conducted to explore the reasons behind the high vacancy rates in the municipality. Research, drawing from the Ministry of Economics and Finance, revealed that many vacant properties were due to issues such as inheritance disputes or the deterioration of homes. As a result, the project focused on providing affordable and energy-efficient rental spaces to meet the growing demand for housing in the area.
In this context, the transformation of the school into communal housing offers an inclusive model that addresses the need for affordable housing. This decision, was made with the goal of offering accessible, sustainable living options for local families, particularly as rural areas like this one face the challenge of attracting and retaining residents. the introduction of these new rental units is expected to set in motion a virtuous cycle. The new homes will attract families to the village, boosting local life and social cohesion.
This initiative is exemplary in its approach to inclusion, combining social, economic, and cultural considerations. By repurposing an underused, historically significant building and turning it into affordable, energy-efficient housing, the project provides a long-term solution to housing shortages while enhancing the local community's quality of life. It also strengthens social ties by keeping a historically valuable structure alive and functional for future generations.
The lack of rental accommodation in our village became evident after a series of consultations with local residents. In 2022, the mayor personally conducted a telephone survey to assess the situation regarding vacant properties, which highlighted the scarcity of rental housing. Based on the responses, the council organized further discussions with citizens to explore solutions, with one option being the conversion of the old school building into affordable housing. This approach ensured that the community’s needs and priorities were at the heart of the project.
Moreover, as the project moves forward, citizens will continue to play an active role in monitoring its progress. Local artisans and contractors have been engaged in the renovation work, ensuring that the project supports the local economy and strengthens community ties. The villagers’ involvement in the decision-making process not only helped shape the direction of the initiative but also fostered a sense of ownership and pride in the project, as the building was once an important part of their shared history.
The involvement of the community has also been essential in understanding the broader social implications of the project. The local council has worked closely with citizens to ensure that the housing is affordable, and in line with the community's values. This participatory approach has ensured that the project is not only a response to housing needs but also a reflection of the collective desires and aspirations of the people who will benefit from it.
Moreover, as the project moves forward, citizens will continue to play an active role in monitoring its progress. Local artisans and contractors have been engaged in the renovation work, ensuring that the project supports the local economy and strengthens community ties. The villagers’ involvement in the decision-making process not only helped shape the direction of the initiative but also fostered a sense of ownership and pride in the project, as the building was once an important part of their shared history.
The involvement of the community has also been essential in understanding the broader social implications of the project. The local council has worked closely with citizens to ensure that the housing is affordable, and in line with the community's values. This participatory approach has ensured that the project is not only a response to housing needs but also a reflection of the collective desires and aspirations of the people who will benefit from it.
This project being of utmost importance for the local economy and municipal finances, we have at every stage received support from stakeholders at various levels :
At the national scale, we benefitted from the rural municipalities’ funds for investment, with a specific monitoring from the state that is very interested in the model we are developing and would like to replicate it in other rural communities. We have drawn from the Fond Vert to ensure that the insulation is of a high quality. We have also solicited support from our députés (MPs) Nicholas Forissier and François Jolivet, as well as from the senators Nadine Bellurot and Frédérique Gerbaud.
At the regional level, we received regional funds meant to support projects using sustainable building materials.
At every level, financial support was complementary of the exchanges we had with the relevant authorities, which all praised the exemplary nature and necessity of the project. Together, these contributions have ensured the project not only meets local needs but also serves as a model for future rural development.
At the national scale, we benefitted from the rural municipalities’ funds for investment, with a specific monitoring from the state that is very interested in the model we are developing and would like to replicate it in other rural communities. We have drawn from the Fond Vert to ensure that the insulation is of a high quality. We have also solicited support from our députés (MPs) Nicholas Forissier and François Jolivet, as well as from the senators Nadine Bellurot and Frédérique Gerbaud.
At the regional level, we received regional funds meant to support projects using sustainable building materials.
At every level, financial support was complementary of the exchanges we had with the relevant authorities, which all praised the exemplary nature and necessity of the project. Together, these contributions have ensured the project not only meets local needs but also serves as a model for future rural development.
The design and implementation of the Saint Hilaire housing project involved several key areas of expertise: mainly knowledge from the local councillors, and the expertise in energy-efficiency from a engineering office, to meet all the technical constraints due to the preservation of all external facades. We did meet a few obstacles due to the absence of certain skills in our area : initially, the project aimed to achieve Passive House certification, incorporating advanced technologies such as a ground-coupled heat exchanger and a double-flow ventilation system. However, due to local contractors' lack of experience with these systems, the added cost made them unfeasible.
In response, we focused on insulation as a primary strategy to improve energy efficiency. This decision was informed by expert advice, particularly from a councillor with experience in the insulation sector, who recommended using 28cm wood wool panels for insulation. This was further supported by an engineering research firm that conducted a study to determine the best materials and approaches to meet energy performance goals. Based on their recommendations, the project will use high-quality double glazing with mixed wood-aluminium frames, ensuring that the building performs at least at an energy performance certificate level "C."
The interdisciplinary collaboration ensured that the project prioritized energy efficiency while respecting the building's heritage and the local context. This collaborative approach allowed for well-informed decisions that balanced innovation with practicality, making the initiative both environmentally and economically sound. By integrating expertise from various fields, the project not only meets modern energy standards but also preserves the building’s cultural and architectural integrity.
In response, we focused on insulation as a primary strategy to improve energy efficiency. This decision was informed by expert advice, particularly from a councillor with experience in the insulation sector, who recommended using 28cm wood wool panels for insulation. This was further supported by an engineering research firm that conducted a study to determine the best materials and approaches to meet energy performance goals. Based on their recommendations, the project will use high-quality double glazing with mixed wood-aluminium frames, ensuring that the building performs at least at an energy performance certificate level "C."
The interdisciplinary collaboration ensured that the project prioritized energy efficiency while respecting the building's heritage and the local context. This collaborative approach allowed for well-informed decisions that balanced innovation with practicality, making the initiative both environmentally and economically sound. By integrating expertise from various fields, the project not only meets modern energy standards but also preserves the building’s cultural and architectural integrity.
The Saint Hilaire project stands out as an innovative solution to housing and energy efficiency in rural areas. Unlike conventional approaches, it combines the rehabilitation of a historic building with advanced sustainable practices, focusing on reusing materials like wood wool insulation and incorporating energy-efficient solutions such as high-quality double glazing.
We have sought to attain a high standard that closely approximates that of the industry’s ‘gold standard’ (the Passive House) while operating within a modest budget. When we asked locals who had recently built a home for themselves the EPC of their new home and discovered that developers today propose at best an EPC of D, which further highlights the innovative and exemplary approach of our project, given that we do not even aim at making high profits from this project.
We have sought to attain a high standard that closely approximates that of the industry’s ‘gold standard’ (the Passive House) while operating within a modest budget. When we asked locals who had recently built a home for themselves the EPC of their new home and discovered that developers today propose at best an EPC of D, which further highlights the innovative and exemplary approach of our project, given that we do not even aim at making high profits from this project.
The methodology for the Saint Hilaire housing project has followed a participatory and sustainable approach. The process began with a consultation phase in 2021, where local residents and stakeholders were involved in identifying the need for rental housing and in selecting the most viable use for the old school building. Following this, the design phase incorporated expert advice on energy efficiency and building conservation. Key sustainable choices, such as reusing original materials, insulating with wood wool, and selecting high-performance glazing, were made based on consultations with energy experts and technical studies. Throughout the process, the local community’s involvement was central, ensuring the project met both practical needs and the preservation of the village's heritage.
This project is part of a broader strategy aimed at enhancing the village's attractiveness to families, which includes various initiatives beyond the housing project. One example is the creation of a child-friendly play area that is easily accessible by foot, fostering community interaction and encouraging families to visit or settle in the village. Additionally, an automated food dispenser was introduced, offering locally sourced products, which supports the local economy and promotes sustainability.
These efforts have already had a positive impact on the current residents, strengthening the village's sense of community and improving quality of life. As a result, the housing project is viewed as a natural extension of these initiatives, designed to provide energy-efficient homes, and attract new families, contributing further to the village’s revitalization. The approach is focused on creating a sustainable, inclusive environment that addresses both the immediate needs of residents and the long-term goals of fostering a thriving, family-friendly community.
This project is part of a broader strategy aimed at enhancing the village's attractiveness to families, which includes various initiatives beyond the housing project. One example is the creation of a child-friendly play area that is easily accessible by foot, fostering community interaction and encouraging families to visit or settle in the village. Additionally, an automated food dispenser was introduced, offering locally sourced products, which supports the local economy and promotes sustainability.
These efforts have already had a positive impact on the current residents, strengthening the village's sense of community and improving quality of life. As a result, the housing project is viewed as a natural extension of these initiatives, designed to provide energy-efficient homes, and attract new families, contributing further to the village’s revitalization. The approach is focused on creating a sustainable, inclusive environment that addresses both the immediate needs of residents and the long-term goals of fostering a thriving, family-friendly community.
The main element of the Saint Hilaire housing project that can be replicated in other contexts is the economic model employed by the municipality. This model focuses on transforming underused, publicly owned buildings into affordable housing through strategic investment in energy efficiency. This approach has already been recognized by the French state for its high potential for replication. The model was identified during a funding application to the DETR (State Fund for Rural Development), where its capacity to address local housing shortages while integrating energy-saving measures was highlighted. The project’s success in balancing economic constraints with sustainable solutions makes it an exemplary case for other small municipalities facing similar demographic and housing challenges.
The Saint Hilaire housing project addresses three main global challenges with local solutions : adaptation to climate change in housing, the rural demographic transition and the reduction of the impact of the construction industry on its environment.
It tackles the energy renovation issue by improving insulation, reducing energy consumption, and using sustainable building materials to combat climate change. This enhances the building's resilience to heatwaves while reducing its carbon footprint.
Additionally, the project supports rural demographic transition by creating affordable, energy-efficient rental housing, helping to attract families and counter depopulation in small villages.
Furthermore, it responds to the global challenge in the construction industry by locally reducing land consumption and promoting resource efficiency by reusing building materials. This approach minimizes environmental impact and aligns with the need to preserve arable land for sustainable use.
It tackles the energy renovation issue by improving insulation, reducing energy consumption, and using sustainable building materials to combat climate change. This enhances the building's resilience to heatwaves while reducing its carbon footprint.
Additionally, the project supports rural demographic transition by creating affordable, energy-efficient rental housing, helping to attract families and counter depopulation in small villages.
Furthermore, it responds to the global challenge in the construction industry by locally reducing land consumption and promoting resource efficiency by reusing building materials. This approach minimizes environmental impact and aligns with the need to preserve arable land for sustainable use.
The next steps in the Saint Hilaire housing project involve the construction phase, which is scheduled to begin in March 2025, with the work expected to be completed by 2026. This stage will focus on the physical renovation of the old school building, incorporating energy-efficient materials and sustainable building practices. The project will continue to prioritize reusing local, traditional materials and integrating modern insulation techniques to address both climate adaptation (especially for heat waves) and mitigation (reducing energy consumption).
Throughout the process, the principles of the New European Bauhaus (NEB) remain central. These principles—sustainability, inclusivity, and aesthetics—are already embedded in the project’s approach. The emphasis on reusing building materials, such as terracotta tiles, slate, and wood wool insulation, aligns with the NEB's sustainability goals. Moreover, the project's design respects the building’s historical and architectural value, ensuring that its aesthetic qualities contribute positively to the community’s experience. Additionally, the inclusive nature of the project, providing affordable quand quality housing, taking into account the emotions and visions of the village’s development of the residents further reflects the NEB’s values.
As the construction progresses, the principles of collaboration and innovation will guide the work, ensuring that the project remains adaptable to future challenges, such as the need for more family-friendly housing in rural areas. The municipality is committed to completing the project in line with NEB values, providing a model that can be replicated in similar rural contexts.
Throughout the process, the principles of the New European Bauhaus (NEB) remain central. These principles—sustainability, inclusivity, and aesthetics—are already embedded in the project’s approach. The emphasis on reusing building materials, such as terracotta tiles, slate, and wood wool insulation, aligns with the NEB's sustainability goals. Moreover, the project's design respects the building’s historical and architectural value, ensuring that its aesthetic qualities contribute positively to the community’s experience. Additionally, the inclusive nature of the project, providing affordable quand quality housing, taking into account the emotions and visions of the village’s development of the residents further reflects the NEB’s values.
As the construction progresses, the principles of collaboration and innovation will guide the work, ensuring that the project remains adaptable to future challenges, such as the need for more family-friendly housing in rural areas. The municipality is committed to completing the project in line with NEB values, providing a model that can be replicated in similar rural contexts.