KUC IVANČNA GORICA
PUBLIC CULTURAL AND ADMINISTRATIVE CENTER OF THE MUNICIPALITY IVANČNA GORICA
KUC is a new built environment that transform and revitalise centre of Ivančna Gorica into a high-quality and representative public space and creative centre of the municipality that meets the needs and expectations of citizens. KUC includes a cultural centre, a municipal library and an administration centre with an open public and an exhibition space. The building is self-sustainable and the unique cultural heritage of choral singing is subtly integrated into all programmes and services.
Slovenia
Sokolska ulica 4, 1295 Ivančna Gorica
Prototype level
Yes
Yes
Yes
No
No
039: Ivančna Gorica (SI)
KUC fulfils the need for a new cultural, social, creative and administrative centre of the municipality, that meets the expectations of the inhabitants of the municipality Ivančna Gorica. It represents a new built environment that will transform and revitalise functionally degraded area of 3.445 m2 in the centre of Ivančna Gorica into a new modern, high-quality and representative public space and creative centre of Ivančna Gorica. The concept design and programmes are based on the unique cultural heritage of the local environment and ambitious sustainable and technical solutions. KUC connects and intertwine three main programmes: the cultural centre with a 300-seat multipurpose hall, the municipal library and the municipal administration centre, which are connected by a foyer, an open public and an exhibition space. The essence of the new building is a new impetus for cultural activities in the municipality with higher quality programmes and their diversity, increase participation of citizens in culture, reaching and developing target groups, especially young people, promoting intergenerational cooperation, developing new educational programmes, attract artist, experts and audiences from the wider region, promoting tourism development of the municipality based on cultural heritage. The new library will enable the »Ivančna Gorica Library« to become institutionally independent, as it is operating within the Grosuplje Library, and begin a new era in the development of reading culture in the municipality. The new administrative centre will unite the administrative departments in one place and make it possible to offer citizens public services as one-stop shop. The building is designed as a nearly zero energy building with an innovative system of cooling, heating and air conditioning system using solar and geothermal energy. The project has obtained a building permit and is ready for implementation.
Multi-functional public cultural and administrative centre
Unique cultural experience
Sustainable, beautiful, nearly zero efficient built environment
Innovative technical solution to be transferred to other similar communities
Inclusive, participatory and transparent approach
The initiative has been designed with the vision to implement:
- smart and efficient use of functionally degraded areas
- nearly-zero energy building with a very high energy performance and significant extent of renewable energy sources produced on-site
- using materials in favour of durability, recyclability to reduce and avoid environmental impacts
The land has been transformed to functional, smart use through prudent urban planning within spatial development planning, protecting local characteristics of land, architecture and landscape and ensuring the development of modern architecture.
The concept design has been selected by the public competition managed by Chamber of Architecture and Spatial Planning of Slovenia to obtain the most suitable professional solution for the new multifunctional built environment.
High energy efficiency and a significant share of renewable resources will be achieved through the innovative Solinterra technical solution which is integrating cooling, heating and air conditioning system with the exploitation of solar and geothermal energy. The system is composed of: solar collectors that absorb the sun heat, an underground warm storage tank, the earth coolness used for cooling, a temperature barrier, an air conditioning system that uses the heat or coolness of the earth, a method for preparing hot sanitary water, hybrid solar panels that produce electric energy and warmth and the activation of the concrete core and concrete mass and energy storage system. It eliminates any CO2 emissions or fossil fuels consumption and has minimal consumption of electric energy.
The materials are selected according to their characteristics and their impact on CO2 emissions.
The project will be the first multifunctional cultural and administrative building using comprehensive energy system with minimal, nearly zero emission impact and can be exemplary to other similar developments.
- smart and efficient use of functionally degraded areas
- nearly-zero energy building with a very high energy performance and significant extent of renewable energy sources produced on-site
- using materials in favour of durability, recyclability to reduce and avoid environmental impacts
The land has been transformed to functional, smart use through prudent urban planning within spatial development planning, protecting local characteristics of land, architecture and landscape and ensuring the development of modern architecture.
The concept design has been selected by the public competition managed by Chamber of Architecture and Spatial Planning of Slovenia to obtain the most suitable professional solution for the new multifunctional built environment.
High energy efficiency and a significant share of renewable resources will be achieved through the innovative Solinterra technical solution which is integrating cooling, heating and air conditioning system with the exploitation of solar and geothermal energy. The system is composed of: solar collectors that absorb the sun heat, an underground warm storage tank, the earth coolness used for cooling, a temperature barrier, an air conditioning system that uses the heat or coolness of the earth, a method for preparing hot sanitary water, hybrid solar panels that produce electric energy and warmth and the activation of the concrete core and concrete mass and energy storage system. It eliminates any CO2 emissions or fossil fuels consumption and has minimal consumption of electric energy.
The materials are selected according to their characteristics and their impact on CO2 emissions.
The project will be the first multifunctional cultural and administrative building using comprehensive energy system with minimal, nearly zero emission impact and can be exemplary to other similar developments.
The basic premises for the initiative were:
- subtle spatial design and integration into wider urban context and local silhouette with the aim of enhancing and the city centre and a new identity element of the municipality Ivančna Gorica,
- manifestation of the cultural tradition of choral singing through the programmes to become the central identification of the multi-functional centre,
- place of positive vibrations for citizens, visitors, artist and employees.
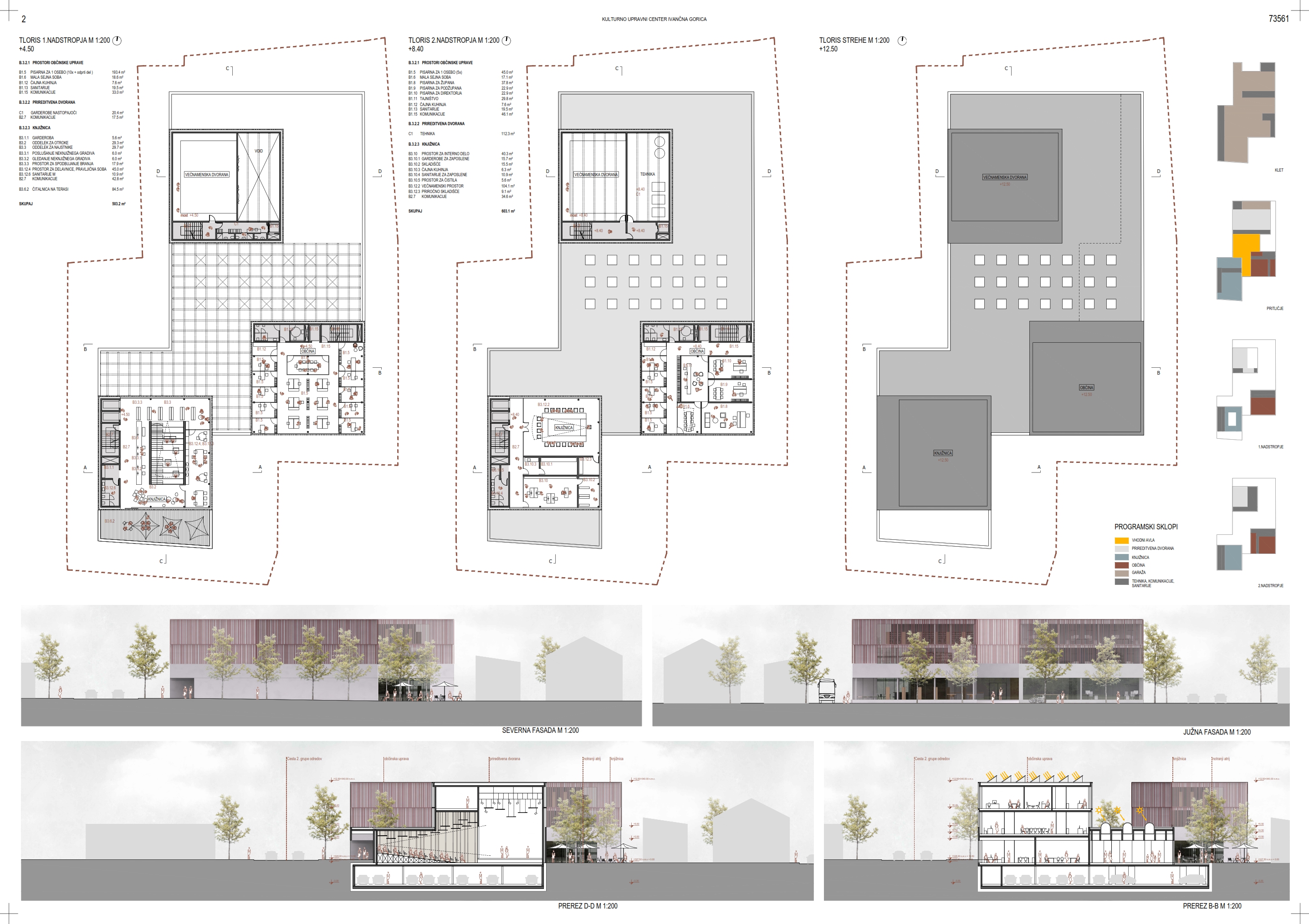
The spatial "sign" creates a legible three-dimensional image, which is defined at the micro-location level by the lower part - the "city parterre", on which 3 individual "free-standing" cubes are superimposed, which are deliberately separated from each other in the upper part. The placement of the 3 building cubes of the public administration, the library and the hall define recognizable visual accents that meaningfully upgrade the overall story of the space. The logic of the organization of the city parterre-pedestal is upgraded by the placement of the central partial-public connection (city passage) on the ground floor of the building, which connects two city directions, two city ambiences and is space of social life.
The central identity line of the KUC will be a place representing and promoting choral singing based on the international renowned event - the Meeting of choirs in Šentvid pri Stični, which has a 50-year tradition. The aim is to create a continuous programme throughout the year, providing space for choirs from Slovenia and neighbouring countries for performances and complementary services (trainings, professional recordings, educational programmes, etc.). The programme will also integrate European musical tradition and modernity.
The identity of choral singing will also permeate part of the rest of the programme and the ambience at the centre, providing beautiful, meaningful experience that integrates social and cultural values as good example how to benefit from cultural heritage.
- subtle spatial design and integration into wider urban context and local silhouette with the aim of enhancing and the city centre and a new identity element of the municipality Ivančna Gorica,
- manifestation of the cultural tradition of choral singing through the programmes to become the central identification of the multi-functional centre,
- place of positive vibrations for citizens, visitors, artist and employees.
The spatial "sign" creates a legible three-dimensional image, which is defined at the micro-location level by the lower part - the "city parterre", on which 3 individual "free-standing" cubes are superimposed, which are deliberately separated from each other in the upper part. The placement of the 3 building cubes of the public administration, the library and the hall define recognizable visual accents that meaningfully upgrade the overall story of the space. The logic of the organization of the city parterre-pedestal is upgraded by the placement of the central partial-public connection (city passage) on the ground floor of the building, which connects two city directions, two city ambiences and is space of social life.
The central identity line of the KUC will be a place representing and promoting choral singing based on the international renowned event - the Meeting of choirs in Šentvid pri Stični, which has a 50-year tradition. The aim is to create a continuous programme throughout the year, providing space for choirs from Slovenia and neighbouring countries for performances and complementary services (trainings, professional recordings, educational programmes, etc.). The programme will also integrate European musical tradition and modernity.
The identity of choral singing will also permeate part of the rest of the programme and the ambience at the centre, providing beautiful, meaningful experience that integrates social and cultural values as good example how to benefit from cultural heritage.
The key values of the Municipality and the initiative are equality, accessibility, and affordability of KUC’s public services and programmes for all.
The development focus specifically targets the inclusion of vulnerable groups, so that they have the same conditions to acquire the same information, participate in the same interactions and enjoy the same quality of services.
The premises allow access to public services (administration, library, events, educational programmes…), participating in performances and in programme implementation.
Engagement of relevant institutions, organisations and qualified persons will provide the necessary support.
The premises enables accessibility (parking spaces, maximum entrance slope of 2,5%, appropriate access dimensions). At information column is placed at the entrance where a person can be called to provide necessary assistance.
An inclusive project can become exemplary and replicable, and has the potential to break obsolete social models, create value and bring transformative benefits on a societal level, influencing worldviews, paradigms and social behaviours.
The development focus specifically targets the inclusion of vulnerable groups, so that they have the same conditions to acquire the same information, participate in the same interactions and enjoy the same quality of services.
The premises allow access to public services (administration, library, events, educational programmes…), participating in performances and in programme implementation.
Engagement of relevant institutions, organisations and qualified persons will provide the necessary support.
The premises enables accessibility (parking spaces, maximum entrance slope of 2,5%, appropriate access dimensions). At information column is placed at the entrance where a person can be called to provide necessary assistance.
An inclusive project can become exemplary and replicable, and has the potential to break obsolete social models, create value and bring transformative benefits on a societal level, influencing worldviews, paradigms and social behaviours.
The municipality Ivančna Gorica has faced intense development over the last twenty years and is characterized by a lively cultural and social life, with a growing number of new residents. At the same time, the centre of the municipality, the core of Ivančna Gorica, has lacked adequate cultural, social, and event facilities for many years.
The need for a new multi-functional centre was highlighted and defined in the spatial planning more than 10 year ago. Since than every effort has been put into the inclusive development of a new municipal centre, resulting in a blossom of programmes. Citizen initiatives have been proposed through already-established communication channels and stakeholder participation: local communities, cultural associations, organisations and public institutions on behalf of and at the suggestion of their members.
The strategic development of the project and key decisions are managed by Steering Committee: Representatives of the Municipality, the Ivančna Gorica Library – subsidiary of Library Grosuplje and the Ivančna Gorica Culture Assossiantion. The project progress on the milestones is also confirmed by the City Council – elected representatives of the citizens. Citizens and the general public are regularly informed about the progress of the project through communication channels: website, social media and municipal journal Klasje.
The feasibility and importance of the project was also confirmed during the process of creating the municipal development strategy “VIS Ivančna Gorica”, during which several workshops with structured questionnaires and field surveys with randomly selected residents were conducted, in which the need for a new cultural, social, creative and administrative centre of the municipality was highly assessed.
The project concept designs were selected through public competition managed by Chamber of Architecture and Spatial Planning of Slovenia of and presented to the citizens on the public exhibition.
The need for a new multi-functional centre was highlighted and defined in the spatial planning more than 10 year ago. Since than every effort has been put into the inclusive development of a new municipal centre, resulting in a blossom of programmes. Citizen initiatives have been proposed through already-established communication channels and stakeholder participation: local communities, cultural associations, organisations and public institutions on behalf of and at the suggestion of their members.
The strategic development of the project and key decisions are managed by Steering Committee: Representatives of the Municipality, the Ivančna Gorica Library – subsidiary of Library Grosuplje and the Ivančna Gorica Culture Assossiantion. The project progress on the milestones is also confirmed by the City Council – elected representatives of the citizens. Citizens and the general public are regularly informed about the progress of the project through communication channels: website, social media and municipal journal Klasje.
The feasibility and importance of the project was also confirmed during the process of creating the municipal development strategy “VIS Ivančna Gorica”, during which several workshops with structured questionnaires and field surveys with randomly selected residents were conducted, in which the need for a new cultural, social, creative and administrative centre of the municipality was highly assessed.
The project concept designs were selected through public competition managed by Chamber of Architecture and Spatial Planning of Slovenia of and presented to the citizens on the public exhibition.
Stakeholder at local level:
-Municipality of Ivančna Gorica and a city council; Field of action: Project management, strategic development, design, funding, implementation; Engagement: Leading stakeholder - responsible for the initiative from the idea to the implementation, operating and financing the investment and public services.
-Ivančna Gorica Library; Field of action: strategic development, operating; Engagement: Consulting in programme development and providing programme - modern library as a place of book, reading, social encounter and a center of knowledge and supplementary programmes
-Ivančna Gorica Cultural Association: Field of action: strategic development, operating; Engagement: Consulting on programme development, programme providers, end users of services/infrastructure.
-Local energy manager: Field of action: strategic development, project design operating; Engagement: advisory centre for energy efficient solutions, energy operating manager
-Citizens: Field of action: strategic development, operating, Engagement: initiators, public opinion and acceptance, end users
-Employees in the KUC: Field of action: operating, Engagement: participation, end users
Stakeholder at national level:
-The Republic of Slovenia – Ministry of Culture; Field of action: funding , Engagement: Participation in financing public culture infrastrucure, programmes and activities
-Chamber of Architecture and Spatial Planning of Slovenia: Field of action: strategic development, Engagement: Organizing public competition of the project concept design and selecting the winners.
Stakeholder at EU level:
EU funding bodies; Field of action: funding, Engagement: Participation - EU funds allocated to boost urban and small municipality development and EU funding schemes to support sustainable, cultural and inclusive initiatives.
Stakeholder at local/regional/national level: Designers, experts, construction companies, public institutions responsible for permits, the public.
-Municipality of Ivančna Gorica and a city council; Field of action: Project management, strategic development, design, funding, implementation; Engagement: Leading stakeholder - responsible for the initiative from the idea to the implementation, operating and financing the investment and public services.
-Ivančna Gorica Library; Field of action: strategic development, operating; Engagement: Consulting in programme development and providing programme - modern library as a place of book, reading, social encounter and a center of knowledge and supplementary programmes
-Ivančna Gorica Cultural Association: Field of action: strategic development, operating; Engagement: Consulting on programme development, programme providers, end users of services/infrastructure.
-Local energy manager: Field of action: strategic development, project design operating; Engagement: advisory centre for energy efficient solutions, energy operating manager
-Citizens: Field of action: strategic development, operating, Engagement: initiators, public opinion and acceptance, end users
-Employees in the KUC: Field of action: operating, Engagement: participation, end users
Stakeholder at national level:
-The Republic of Slovenia – Ministry of Culture; Field of action: funding , Engagement: Participation in financing public culture infrastrucure, programmes and activities
-Chamber of Architecture and Spatial Planning of Slovenia: Field of action: strategic development, Engagement: Organizing public competition of the project concept design and selecting the winners.
Stakeholder at EU level:
EU funding bodies; Field of action: funding, Engagement: Participation - EU funds allocated to boost urban and small municipality development and EU funding schemes to support sustainable, cultural and inclusive initiatives.
Stakeholder at local/regional/national level: Designers, experts, construction companies, public institutions responsible for permits, the public.
The initiative aims to integrate both formal and non-formal knowledge in order to achieve a common goal. It aims to bring together people from political, social, economic, design and technical fields with members of the public to explore possibilities and realise new narratives.
The projects form the first initiative trough phases of urban planning, land plot acquirement and consolidation, programme definition, concept design, comprehensive project documentation require a whole range of skills and knowledge and above all proactive and goal oriented management that brings the project to the start of its implementation.
The projects form the first initiative trough phases of urban planning, land plot acquirement and consolidation, programme definition, concept design, comprehensive project documentation require a whole range of skills and knowledge and above all proactive and goal oriented management that brings the project to the start of its implementation.
The project innovation stands out in comprehensive technical solution Solinterra designed and modified exclusively for the requirements of multi-functional public building in Ivančna Gorica. It is an integrating cooling, heating and air conditioning system with the exploitation of solar and geothermal energy. The system does not use oil, gas, wood and need heat pump. For system regulations and circulation in required electric energy provided by solar panels and energy storage. It does not require mainstream heating system or heat pumps for cooling, heating and air-conditioning. It uses only solar and geothermal energy for functioning and enables energy self-sufficiency of the building and solution which eliminates CO2 to zero/nearly zero level.
Innovative is also approach that combines public services and central identity of the initiative with the authentic and universally recognised local traditional cultural of choral singing.
Innovative is also approach that combines public services and central identity of the initiative with the authentic and universally recognised local traditional cultural of choral singing.
The project development and implementation approach comprise several phases.
The first phase or pre-development phase refers to spatial planning and the definition of urban development parameters for the defined area followed by activities of land acquisition activities to consolidate the municipality’s ownership of the area.
In the second early development phase the project and general principles were defined: Initiatives for the project, description of objectives and development potential, physical elements and activities, constitution of the steering committee and project team, responsible for project development and implementation.
The third phase relates to the development of the project: programme definition, selection of the concept design through the public competition managed by the Chamber of Architecture and Spatial Planning of Slovenia, development and preparation as-built design and documentation for obtaining a building permit and preparing a feasibility study and cost benefit analysis.
The next and final step concerns to detailed budgeting, selection of the main contractors for the construction works and equipment through the public tender and implementation of the project.
In all phases project was presented and communicated to citizens in transparent manner and citizen’s initiatives were considered and included in the strategic development.
At each stage, the achievements, project progress, funding and next steps have been presented to the City Council which had to approve them.
The project concludes with the operating permit and will be handed over to the relevant departments and services to begin with the planned activities.
The first phase or pre-development phase refers to spatial planning and the definition of urban development parameters for the defined area followed by activities of land acquisition activities to consolidate the municipality’s ownership of the area.
In the second early development phase the project and general principles were defined: Initiatives for the project, description of objectives and development potential, physical elements and activities, constitution of the steering committee and project team, responsible for project development and implementation.
The third phase relates to the development of the project: programme definition, selection of the concept design through the public competition managed by the Chamber of Architecture and Spatial Planning of Slovenia, development and preparation as-built design and documentation for obtaining a building permit and preparing a feasibility study and cost benefit analysis.
The next and final step concerns to detailed budgeting, selection of the main contractors for the construction works and equipment through the public tender and implementation of the project.
In all phases project was presented and communicated to citizens in transparent manner and citizen’s initiatives were considered and included in the strategic development.
At each stage, the achievements, project progress, funding and next steps have been presented to the City Council which had to approve them.
The project concludes with the operating permit and will be handed over to the relevant departments and services to begin with the planned activities.
The KUC project promotes and fostering innovative sustainable solutions for transforming the built environment into a resilient, carbon neutral, circular, inclusive, and innovative society in harmony with nature and our planet.
The project concept could be transferred to other small, suburban municipalities that have identified need for multi-functional public building offering public services and a quality of experience inspired by art and culture.
Dissemination to other beneficiaries could include sharing best practices of innovative technology system, approaches to eliminate risk and boost opportunities and replicate project concept to new locations.
The project concept could be transferred to other small, suburban municipalities that have identified need for multi-functional public building offering public services and a quality of experience inspired by art and culture.
Dissemination to other beneficiaries could include sharing best practices of innovative technology system, approaches to eliminate risk and boost opportunities and replicate project concept to new locations.
Smaller urban areas and smaller municipalities play a significant role in the equitable development of regions and a driver of innovation, resilience and adaptability to global change – environmentally, socially, politically and economically.
Local solutions improve the lives of the citizens who live in them, prevent massive migration to overpopulated cities and, above all, preserve cultural heritage, especially intangible heritage which is spread by word of mouth and personal experience.
Local solutions improve the lives of the citizens who live in them, prevent massive migration to overpopulated cities and, above all, preserve cultural heritage, especially intangible heritage which is spread by word of mouth and personal experience.
The next steps of the project: preparation of Investment plan with detailed cost benefit analysis and specified budgeting structure. A document will be submitted to the City Council and once it has been approved, the construction and FFE work will begin. Operating licence is expected to be granted in September 2026 and by the end of the year 2026 citizens of Ivančna Gorica will acquire infrastructure, a multi-functional centre, that will provide beautiful, meaningful experience that integrates social and cultural values as well as one-stop-shop public services.