BELORADO ASSOCIATION HOUSE
REFURBISHMENT OF THE ASSOCIATION HOUSE BUILDING IN BELORADO
This property dates back to the beginning of the century XX. Was the subject of a renovation carried out in the 80s/90s and was used as the headquarters of Neighborhood Associations. However, the building has a series of important deficiencies both in its distribution and distribution of spaces, and (most importantly) in structural and basic aspects such as accessibility, thermal insulation, ... which is why it is currently unused. It was necessary to undertake a comprehensive reform of the same
Spain
Plaza Mayor 13-14 Belorado ( Burgos)
Completed
Yes
Yes
Yes
Yes
Recovery, Transformation and Resilience Plan – Financed by the European Union – Next Generation”
Component 2. Investment C.2 I5 which corresponds to the Program to Promote the Rehabilitation of Public Buildings (PIREP).
No
09048: Belorado (ES)
This project contemplates the rehabilitation of the property to accommodate the following services:
Ground floor: Neighborhood Association Headquarters.
First Floor. - Headquarters of the Association of Relatives of Alzheimer's Patients where users affected by this disease are cared for daily. The aim has been to provide this location with the same characteristics and demands imposed today by the Social Services of the Junta de Castilla y León for a Day Center.
Second floor. - Headquarters of the Music Band and the municipal Music School. Acoustic insulation of the rooms intended for this purpose has been prioritized.
The economic magnitude of this project, in proportion to the amount of the Municipal Budget, has forced us to address the investment in two budget years.
Ground floor: Neighborhood Association Headquarters.
First Floor. - Headquarters of the Association of Relatives of Alzheimer's Patients where users affected by this disease are cared for daily. The aim has been to provide this location with the same characteristics and demands imposed today by the Social Services of the Junta de Castilla y León for a Day Center.
Second floor. - Headquarters of the Music Band and the municipal Music School. Acoustic insulation of the rooms intended for this purpose has been prioritized.
The economic magnitude of this project, in proportion to the amount of the Municipal Budget, has forced us to address the investment in two budget years.
sustainability
participation of society
comprehensive rehabilitation of a public space
integration
conservation
1. Hygiene, health and environmental protection, in such a way that conditions are achieved acceptable levels of health and tightness in the interior environment of the building and that it does not deteriorate the environment in its immediate surroundings, guaranteeing adequate management of all types of waste. The planned building has the means that prevent the presence of water or humidity inadequate water coming from atmospheric precipitation, from the ground or from condensation, and has of means to prevent its penetration or, where appropriate, allow its evacuation without production of
damage. The planned building has spaces and means to extract ordinary waste generated in
it in a manner consistent with the public collection system.It also has means so that its enclosures can be adequately ventilated, eliminating contaminants that occur regularly during normal use, so as to provide a
sufficient flow of outside air and the extraction and expulsion of stale air by the pollutants.
Contains suitable means to supply the intended hygienic equipment with water suitable for the consumption in a sustainable way, providing sufficient flows for its operation, without alteration
of the properties of fitness for consumption and preventing possible returns that could contaminate the network, incorporating means that allow water savings and control.
Adequate means are planned to extract the wastewater generated in a manner independent with atmospheric precipitation.2. Protection against noise, so that the perceived noise does not endanger the health of the people and allows them to satisfactorily carry out their activities.3. Energy savings and thermal insulation, in such a way that a rational use of the energy is achieved,energy necessary for the proper use of the building.It has an envelope suitable for limiting the energy demand necessary for achieve thermal well-being depending on the climate of the location, the intended use and the summer and winter regime.
damage. The planned building has spaces and means to extract ordinary waste generated in
it in a manner consistent with the public collection system.It also has means so that its enclosures can be adequately ventilated, eliminating contaminants that occur regularly during normal use, so as to provide a
sufficient flow of outside air and the extraction and expulsion of stale air by the pollutants.
Contains suitable means to supply the intended hygienic equipment with water suitable for the consumption in a sustainable way, providing sufficient flows for its operation, without alteration
of the properties of fitness for consumption and preventing possible returns that could contaminate the network, incorporating means that allow water savings and control.
Adequate means are planned to extract the wastewater generated in a manner independent with atmospheric precipitation.2. Protection against noise, so that the perceived noise does not endanger the health of the people and allows them to satisfactorily carry out their activities.3. Energy savings and thermal insulation, in such a way that a rational use of the energy is achieved,energy necessary for the proper use of the building.It has an envelope suitable for limiting the energy demand necessary for achieve thermal well-being depending on the climate of the location, the intended use and the summer and winter regime.
The rehabilitation project of the House of Associations, in the town of Belorado, is conceived as a comprehensive intervention. The objective is to adapt the building to the needs of the municipality, offering a space that serves its neighbors.
Located in the Plaza Mayor of Belorado, the nerve center of the town's life, the House of Associations stands as a classic construction, porticoed in its lower part, and which has undergone multiple modifications. It hosts several associations, and is the rehearsal place for the municipal band with 20 members, a music school with 40 members and other musical groups in the area. Building, as you can see, busy and used on a regular basis.
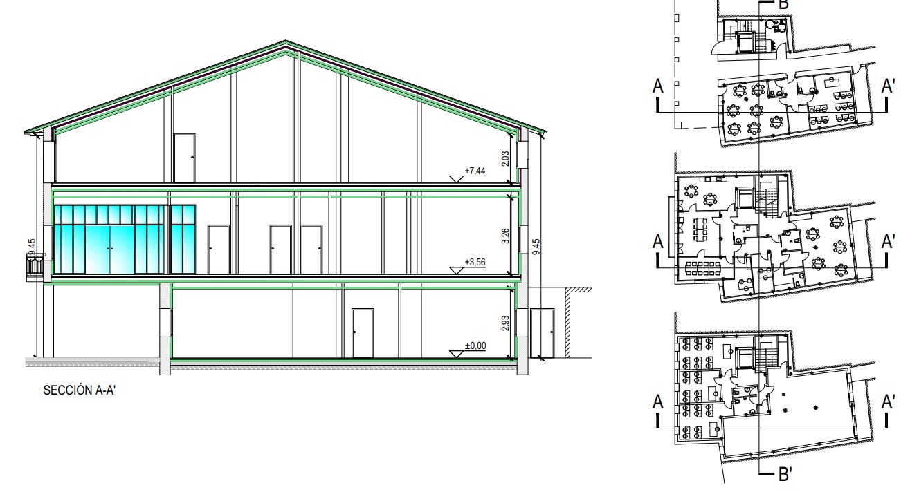
Currently, the building is segregated into two: a staff space with important architectural barriers, which prevents the correct use of its facilities, and a disused home whose construction dates back to 1900. Both constructions present a necessary intervention to stop their deterioration.The Association House is made up of a ground floor through which access is made, two floors above ground and a third with an attic. The second floor lacks the minimum height necessary for its function. For its part, the house has an old commercial premises on its ground floor and two upper floors where the living areas were located. The floors of the two constructions have different height levels with respect to the ground.
The project that we want to carry out seeks to combine the structural, energy and functional rehabilitation of the complex. To achieve this, the first phase will be the consolidation and connection of the two buildings, and the modification of the slab of the top floor, which provides the necessary height to the lower floor for its correct use.
Located in the Plaza Mayor of Belorado, the nerve center of the town's life, the House of Associations stands as a classic construction, porticoed in its lower part, and which has undergone multiple modifications. It hosts several associations, and is the rehearsal place for the municipal band with 20 members, a music school with 40 members and other musical groups in the area. Building, as you can see, busy and used on a regular basis.
Currently, the building is segregated into two: a staff space with important architectural barriers, which prevents the correct use of its facilities, and a disused home whose construction dates back to 1900. Both constructions present a necessary intervention to stop their deterioration.The Association House is made up of a ground floor through which access is made, two floors above ground and a third with an attic. The second floor lacks the minimum height necessary for its function. For its part, the house has an old commercial premises on its ground floor and two upper floors where the living areas were located. The floors of the two constructions have different height levels with respect to the ground.
The project that we want to carry out seeks to combine the structural, energy and functional rehabilitation of the complex. To achieve this, the first phase will be the consolidation and connection of the two buildings, and the modification of the slab of the top floor, which provides the necessary height to the lower floor for its correct use.
Accessibility between the different floors does not adapt to current regulations, being a point of great relevance due to the fact that a large part of the users are elderly or people with reduced mobility. To do this, the staircase sections will be redistributed and an elevator will be placed inside. This improvement will allow the connection between floors.
The role of AFABEL (association of relatives of people with Alzheimer's) within this project is great, it will be located in a plant adapted and appropriate to the needs and regulations in accordance with the contributions of the Association of relatives of Alzheimer's patients. of Belorado, its use as a day center being compatible.
The occupancy of the first floor is calculated in accordance with Decree 14/2001, of January 18, regulating the conditions and requirements for the authorization and operation of social centers for the elderly, since the floor is used in its entirety to be used as a day center for the Association of Relatives Sick with Alzheimer's, and the conditions of the decree do not allow greater occupancy in the center, so it will be 18 users and 4 workers maximum.
But this building will also house spaces on its second floor for the Municipal Music Band, the Municipal Music School and the Municipal Traditional Dance School.
The ground floor will serve as headquarters for different local associations with special prominence for the Association of Pensioners and Retirees of Belorado.
This project is valued as a great opportunity for change for the town of Belorado, thinking about the future and betting on its inhabitants and culture.
The role of AFABEL (association of relatives of people with Alzheimer's) within this project is great, it will be located in a plant adapted and appropriate to the needs and regulations in accordance with the contributions of the Association of relatives of Alzheimer's patients. of Belorado, its use as a day center being compatible.
The occupancy of the first floor is calculated in accordance with Decree 14/2001, of January 18, regulating the conditions and requirements for the authorization and operation of social centers for the elderly, since the floor is used in its entirety to be used as a day center for the Association of Relatives Sick with Alzheimer's, and the conditions of the decree do not allow greater occupancy in the center, so it will be 18 users and 4 workers maximum.
But this building will also house spaces on its second floor for the Municipal Music Band, the Municipal Music School and the Municipal Traditional Dance School.
The ground floor will serve as headquarters for different local associations with special prominence for the Association of Pensioners and Retirees of Belorado.
This project is valued as a great opportunity for change for the town of Belorado, thinking about the future and betting on its inhabitants and culture.
First floor dedicated exclusively to the Association of Relatives of People with Alzheimer's (AFABEL) in Belorado, adapted and compatible for use as a day center. Ground floor intended for the use and enjoyment of different associations of the municipality, especially the Pensioners Association and Retirees of Belorado. Second floor whose destination will be for the Municipal Music Band, Municipal Music School and the Municipal Traditional Dance School.
We have met with all the associations involved and that are going to use the buildings and have taken into account their needs and experience to design the project and adapt the needs to it. We have minutes of the meetings with AFABEL, music school and music band. Also minutes of the plenary sessions where the matter has been discussed and information has been given to the citizens of the great performance of the comprehensive rehabilitation of the building for the social, educational, and cultural purposes described above.Being a large project, we have had to present it to different administrations looking for sources of financing. We have met with the Provincial Council of Burgos, Junta de Castilla y León. We have tried to involve and involve society and the administrations of our project.
We have met with all the associations involved and that are going to use the buildings and have taken into account their needs and experience to design the project and adapt the needs to it. We have minutes of the meetings with AFABEL, music school and music band. Also minutes of the plenary sessions where the matter has been discussed and information has been given to the citizens of the great performance of the comprehensive rehabilitation of the building for the social, educational, and cultural purposes described above.Being a large project, we have had to present it to different administrations looking for sources of financing. We have met with the Provincial Council of Burgos, Junta de Castilla y León. We have tried to involve and involve society and the administrations of our project.
The aforementioned technical project for the amount of one million two hundred and thirty-five thousand and forty-three euros and thirty-five euro cents (€1,235,043.35) and two hundred and fifty-nine thousand, three hundred and fifty-nine euros and ten cents of VAT ( €259,359.10, so the base tender budget amounts to one million, four hundred and ninety-four thousand, four hundred and two euros and forty-five euro cents. (€1,494,402.45)… includes the comprehensive rehabilitation of the aforementioned property, “Casa de Asociaciones”. Given the high cost of the action, the city council has declared the action multi-year and has been co-financed with the Provincial Plan (Diputación de Burgos)2022. ,2023 and 2024, also Local Cohesion Plan of 2023 (Junta de Castilla y León) and PIREP Component 2. Investment C.2 I5 which corresponds to the Program to Promote the Rehabilitation of Public Buildings.
Before developing the project, municipal representatives met with the different social agents involved. The meetings were aimed at finding the most suitable spaces for the intended purposes. As a result of these meetings with the association of relatives of Alzheimer's patients, with the municipal music band, with the music school and with other associations of Belorado, we achieved the design of a building that responds to and brings together the social, cultural, municipal associations.
Among the planned uses, perhaps the most sensitive is the one dedicated to AFABEL, an association of relatives of people with Alzheimer's in Belorado whose main objective is to improve the quality of life of people with Alzheimer's or other dementias and those of their families. Created in 2004 with an average of 17 users. In 2011, AFABEL inaugurated a respite unit for older people in the municipality.
Offer comprehensive care for four hours a day, from Monday to Friday, to people affected by Alzheimer's or other neurodegenerative diseases, trying to delay the institutionalization of the patient for as long as possible, keeping them in their environment.Provide psychosocial and healthcare care to the family members and caregivers of the sick.
At AFABEL we work with each user to try to maintain or recover the greatest degree of personal autonomy and thus slow down cognitive and physical deterioration for as long as possible through non-pharmacological therapies. We also work to improve the degree of socialization by providing an environment that invites the user to participate in activities, avoiding passivity and isolation.
AFABEL provides families, especially the main caregiver, with daily respite time and psychological care (group and individual) to be able to cope with the stress and conflicts caused by the permanent care of a person with dementia. IT IS VERY IMPORTANT TO TAKE CARE OF YOURSELF TO BE ABLE TO CARE.
Among the planned uses, perhaps the most sensitive is the one dedicated to AFABEL, an association of relatives of people with Alzheimer's in Belorado whose main objective is to improve the quality of life of people with Alzheimer's or other dementias and those of their families. Created in 2004 with an average of 17 users. In 2011, AFABEL inaugurated a respite unit for older people in the municipality.
Offer comprehensive care for four hours a day, from Monday to Friday, to people affected by Alzheimer's or other neurodegenerative diseases, trying to delay the institutionalization of the patient for as long as possible, keeping them in their environment.Provide psychosocial and healthcare care to the family members and caregivers of the sick.
At AFABEL we work with each user to try to maintain or recover the greatest degree of personal autonomy and thus slow down cognitive and physical deterioration for as long as possible through non-pharmacological therapies. We also work to improve the degree of socialization by providing an environment that invites the user to participate in activities, avoiding passivity and isolation.
AFABEL provides families, especially the main caregiver, with daily respite time and psychological care (group and individual) to be able to cope with the stress and conflicts caused by the permanent care of a person with dementia. IT IS VERY IMPORTANT TO TAKE CARE OF YOURSELF TO BE ABLE TO CARE.
The innovative character is reflected in combining several objectives in a single project. The first thing is to undertake the comprehensive rehabilitation of a central building and comply with the sustainability, accessibility and climate objectives that we in this municipality defend and commit to. To this we have to add the purposes for which we intend this initiative, to cover all the sensitivities of the municipality. Welfare and protection with the most vulnerable people such as Alzheimer's patients and their families, culture with the municipal music band and school, and associations with associations of retirees, youth... We want the building to be an integrative meeting place and neuralgic axis of the town's activity.
Innovation lies in that, in combining the new with tradition. In a modern building the essence of Belorado.
Innovation lies in that, in combining the new with tradition. In a modern building the essence of Belorado.
The process carried out from the beginning has been characterized by participation. At first we met with the associations involved to see and learn first-hand what their needs were and how to materialize them in the spaces of the building. Once their proposals had been heard and taken into account, a phase of making the project known to the public was carried out. the municipal corporation and therefore the citizens through the means of political and citizen participation (Local Government Board and Municipal Plenary Session).
Given the magnitude of the action, we have had to divide it into two phases, both of which are put out to public tender. An open, transparent and public procedure, with all the guarantees of participation of companies interested in carrying out the execution works of the House of Associations.
Given the magnitude of the action, we have had to divide it into two phases, both of which are put out to public tender. An open, transparent and public procedure, with all the guarantees of participation of companies interested in carrying out the execution works of the House of Associations.
We believe that it is a project that should be replicated in rural areas such as Belorado, first because it contributes to rehabilitating emblematic buildings that would otherwise be ruins and giving them a social, cultural and participatory destiny. In this way, it is possible to sustainably rehabilitate the building and the social network that will use it. We give Belorado a magnificent opportunity through an effort, combining sustainability, beauty and social participation.
The challenge that we may encounter is the cost of its maintenance, but nevertheless, before making the decision, this City Council weighed and assessed the annual weight that having this action open and active may entail. We are totally involved in its maintenance and we annually provide the necessary resources to provide activity to the House of Associations and what it entails. We do not see participation and social acceptance as a challenge since we have held meetings to test citizen interest and we know that since its implementation it will have influx and a high degree of satisfaction.
The comprehensive rehabilitation of the building called "the House of Associations" encompasses in our opinion all the values of NEB. Sustainability in the redesign of the action both in the energy sources used, in the envelope, in water saving, in materials, in waste management. Essential principles that have prevailed both in the project and in its execution. Accessibility, making a building for everyone, not in vain houses the headquarters of the association for Alzheimer's patients and is totally and absolutely adapted. It is important to note that it is the subject of a European call for subsidies. CALL FOR AID FOR THE REHABILITATION OF PUBLICLY OWNED BUILDINGS AND ITS CALL WITHIN THE FRAMEWORK OF THE RECOVERY, TRANSFORMATION AND RESILIENCE PLAN.
On the other hand, aesthetic criteria have prevailed in its design both inside and outside, the building is located in the town's Plaza Mayor.
But the most important thing for us are the purposes for which it will be used. Fruit of participation and reflection with Beliforans. We improve the quality of life of our neighbors by providing a service as important as that. The intended use of this building meets the integration, accessibility and participation criteria that the City Council wants for Belorado.
It will be a fundamental nucleus of social, educational, and participation, creating a unique and essential space for our people. We are very proud of having achieved it and very excited about what we are going to achieve thanks to "LA CASA DE LAS ASOCIACIÓN"
On the other hand, aesthetic criteria have prevailed in its design both inside and outside, the building is located in the town's Plaza Mayor.
But the most important thing for us are the purposes for which it will be used. Fruit of participation and reflection with Beliforans. We improve the quality of life of our neighbors by providing a service as important as that. The intended use of this building meets the integration, accessibility and participation criteria that the City Council wants for Belorado.
It will be a fundamental nucleus of social, educational, and participation, creating a unique and essential space for our people. We are very proud of having achieved it and very excited about what we are going to achieve thanks to "LA CASA DE LAS ASOCIACIÓN"